采暖系统:
冬季向室内供热保持室内所需温度的建筑设备叫做采暖系统。

输送热量的物质或带热体叫做热媒,一般采用水和蒸气做为热媒。
围护结构:建筑物及房间各面的围挡物,如墙体、屋顶、地板和门窗等。分内、外围护结构两类。
采暖分区:根据采暖房间的功能进行采暖分区,并分别测量各区域采暖面积。
地暖地面适宜的表面平均温度(℃)。

采暖负荷:为维持采暖房间室内温度达到设计要求标准,根据采暖房间围护结构的耗热量和产热量的平衡计算结果,需要采暖系统供给的热量。
冬季,人感觉最舒适的温度为16~22度。
采暖负荷的构成:
使用房间的层高:一般来讲,层高越高负荷越大,如有挑高则按2层面积计算。
房间的面积:采暖负荷计算面积为该区域相通的所有面积之和;
房间的用途:进行负荷估算时,房间类型不同,其值也有不同。
外墙的朝向:如果某一房间朝北的外墙较多,那么负荷就越大,单位负荷最低按120W/㎡计算。
窗户的面积及朝向:如果某一房间的窗户是朝北,或者窗户的面积较大,应适量的加大负荷值,一般将窗户面积计入分区采暖使用面积。
房间内的人数、用电设备的发热量;墙的隔热因素:有无墙体保温。
分区负荷计算:
分区负荷计算:分区负荷按照估算法一般由基本耗热量Qj、外墙门窗玻璃附加耗热量Qc和新风附加耗热量Qx等组成。
基本耗热量Qj确定:Qj=面积×单位负荷
一般采暖负荷计算标准 |
|
采暖分区朝向及区域形态 |
单位负荷(W/㎡) |
南、东南、西南平层 |
120 |
北、东北、西北平层 |
130 |
东、西平层 |
120 |
南、东南、西南挑空房间挑空 |
|
北、东北、西北挑空房间 |
|
东、西挑空 |
|
外窗玻璃:双层玻璃或单层玻璃。
新风系统:在原负荷基础上加W,并安装在客厅、餐厅等敞开区域。
卫生间:卫生间按150 W/㎡计算。
热传递:
1)传导:液体及固体均可实现热传导;
2)对流:只有气体及液体可以实现对流传热;
3)辐射:辐射是指热射线的传播过程。
燃气知识:
1)燃气分类

2)燃气燃烧方式
扩散式燃烧:燃气从火孔流出,进行燃烧所需要的空气完全依靠扩散作用从周围大气中获取,进行自然混合燃烧(例:蜡烛、简易打火机等)。
大气式燃烧:也称大气预混式燃烧,在燃气燃烧之前,预先混入一部分空气,混合后从火孔流出,再通过二次空气混合燃烧(例:灶具下有风门可调,风门即是预混一次空气)。
无焰式燃烧:燃气燃烧所需要的全部空气,在燃烧前已完全均匀混合,在燃烧过程中不再需要从周围空气中获得氧气。燃烧温度高、效率高,基本无火焰。(如ISG移动式取暖器)。
3)燃烧稳定性
1 |
回火 |
燃烧速度大于气流速度(人工燃气比较常见); |
燃气燃烧后的产物主要有:二氧化硫SO2、二氧化碳CO2、一氧化碳CO、氮氧化物NOX等等。 |
2 |
离焰 |
燃烧速度小于气流速度(天然气及液化气比较常见); |
|
3 |
脱火 |
气流速度特别大时无法燃烧(天然气及液化气比较常见); |
|
4 |
黄焰 |
空气与燃气比例不当,主要为空气混合不足造成,易产生积炭现象。 |
附:气表最大输出量
气表规格 |
最大输出量(立方米) |
G2.5 |
4 |
G4 |
6 |
G6 |
10 |
常用热源热值:
热源种类 |
液化气 |
天然气 |
人工煤气 |
轻柴油 |
电源 |
|
千卡单位 |
26386kcal/m3 |
10600kcal/kg |
8675kcal/m3 |
4526kcal/m3 |
10400kcal/kg |
860kcal/kW |
千瓦单位 |
30.7kW/ m3 |
12.3kW/kg |
10kW/ m3 |
5.3kW/ m3 |
11.6kW/kg |
1kW/1kW |
锅炉基础:

注:锅炉排气方式发展过程:直排式→普排式(烟道式)→自平衡→强排式(分上抽下鼓两种)→强制平衡式(分上抽下鼓两种方式)。
2)锅炉工作过程
家用采暖生活热水两用炉通常优先供应生活水,当锅炉系统压力正常,水、电、气到位后即可进入工作状态。当打开生活热水龙头,锅炉进水阀有水流过,锅炉通过水流传感信号锅炉自动点火,且根据所设定的温度自动调节供气量的大小(即比例燃烧)。在冬季只要将采暖旋纽(或开关)打开调到合适温度,锅炉会自动进入采暖状态,同时锅炉会根据采暖回水温度自动调节供气量,当回水温度上升到一定程度,锅炉会自动停止燃烧,此时采暖循环泵正常工作,当回水温度下降到某一个值后,锅炉又重新点火。


散热片基础:
分类:家用散热器大多分为钢制散热器、铝制散热器和钢管式散热器。
中央供暖:
分类:集中式供暖,家用锅炉采暖,储热式电采暖,太阳能采暖,天棚低温辐射采暖;
集中式供暖:城市供暖的主力军。
特点:以城市热网、区域热网或较大规模的集中供暖为热源的方式,在目前乃至今后一段时期内可能仍是城市住宅供暖的主要方式。
适用居所:普通住宅(城内大多数住宅小区)
优点:
1.技术比较成熟,安全、可靠,使用方便,价格便宜。
2.每天24小时供暖。
局限性:
1.供暖的时间和温度不能自己控制,立式的散热片不美观、占空间,影响装修效果。
2.供暖期前后无热源。
3.散热片取暖,一般出水温度在70摄氏度以上,但温度达到80度时就会产生灰尘团,使暖气上方的墙面布满灰尘。
家用锅炉散热片供暖:自由调温。
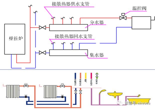
散热器采暖系统一般由家用锅炉、散热器、集水器、分水器、温控装置、管路以及各种阀件组成。

适用居所:低密度住宅。
特点:这种方式通常是在厨房或阳台上安装壁挂炉,由壁挂炉燃烧燃气达到供暖目的,与壁挂炉相连的是室内管线和散热片,一般可实现暖气及热水双路供应。
A.管路材质

铝塑复合管:铝塑复合管是通过挤出成型工艺而制造出的新型复合管材,它由聚乙烯层(或交联聚乙烯)—胶粘剂层—铝层—胶粘剂层—聚乙烯层(或交联聚乙烯)五层结构构成。其中铝层分搭接焊、对接焊成型工艺。
PB(聚丁烯管):由聚丁烯-1树脂添加适量助剂,经挤出成型的热塑性加热管,通常以PB标记。
铜管:材质完全满足使用的要求,采暖市场上不常用。但因其施工工艺较复杂,地下接头多,对安装工人素质要求较高,系统漏水的概率较大。
单管采暖系统:

双管异程系统:
该系统采暖水流过每个散热器的管道长度均不相同,所以造成采暖水流过每个散热器的沿程阻力不同。在采暖调试时,需要对采暖系统进行水力平衡调节。

双管同程系统:
相比较与双管异程系统,双管同程系统采暖水流过每组散热器的管道长度均相等。虽然在系统安装时会增加一条管道的造价,但不需要安装其它的平衡设备。当系统可以组成一个闭合环路时,就可以省去第三条管路。

B.连接方式的比较:
连接方式 |
适用管材 |
配管方式 |
漏水概率 |
使用寿命 |
技术要求 |
故障发现 |
章鱼式 |
铝塑复合管、聚丁烯管 |
套压式接法 |
地下无接头,漏水概率小 |
50年以上 |
相对较容易 |
较容易 |
普通并联 |
铜管 |
焊接 |
地下接头多,漏水概率较大 |
50年以下 |
对工人技术要求较高 |
不易发现 |
注:因铜管系统故障点(如沙眼)很难及时发现,易给用户留下隐患(例:镇江事件),故决定取消铜管并联方式,一律采用章鱼式接法。 |
||||||
C.散热器主要接口方式的分类及特点:

接口方式 |
特 点 |
上进下出 |
标准接口方式,散热效果最佳,传热系数最大。 |
下进下出 |
散热效果相对较差,在温差相同时,其传热系数与上进下出同侧连接时相差15%左右。 |
底进底出 |
散热器底部设置挡水板来强制改变散热器内热水流过的途径,可达到与上进下出接口方式同样的散热效果。 |

D.散热器的布置:
散热器的布置原则应以容易造成室内冷暖空气的对流;室外侵入的冷空气加热迅速,人们的停留区暖和和舒适以及少占用室内有效空间和使用面积。
房间有外窗时,散热器一般应安装在每个外窗的窗台下。这样散热器上升的对流热气流就能阻止和改善从玻璃窗下降的冷气流和玻璃冷辐射的影响,使流经工作区的空气温暖和舒适。
为了方便家具的布置,也考虑选用高款且占地少的散热器布置在房间靠近玻璃窗的内墙侧。在进深相对小的房间内,易使空气形成环路,增强对流换热。

安装位置的选择:
最佳的安装位置为窗户底部或者冷墙壁上(见左下图)。虽然这样做会增加房间的热量损失,但是这样能够使热量在室内的分布更加均匀,使室内更加舒适(散热器安装位置对室内温度的影响分布的影响见右下图) 。

E、锅炉散热片采暖系统设计步骤:
(1) 采暖分区:根据采暖房间的功能进行采暖分区,并分别测量采暖分区面积。
(2)分区负荷计算:根据分区用途确定采暖分区单位面积负荷,并分别计算各分区采暖总负荷。即采暖分区负荷=单位负荷×分区面积。
(3)散热器的选配:
1)根据采暖分区的功能或客户要求确定散热器品牌及型号;
2)根据采暖分区负荷选定对应散热量散热器,散热器的散热量应大于分区负荷。
(4)锅炉选配:根据总的采暖负荷及用户使用生活热水的需求选配锅炉,锅炉的采暖功率应大于建筑物的采暖总负荷。
F.相关部件
(1)分水器:根据系统回路数确定分水器的数量,集分水器每套负责2~8个供回水路,每组集分水器的总回路数不宜大于8个供回水路。

分水器安装注意事项:
安装于有防水层区域,且水平放置;
安装位置附近宜设置地漏;
安装高度为分水器最高处(手动排气阀)距原始地面600mm。
严禁安装于木质柜内以及地板或地毯铺设区域。
严禁安装于有触电危险的区域。
(2)管路管径
主管路:锅炉至分水器和分水器至分水器之间的管路,管径一般为D25×2.5mm、D20×2.0mm;
支管路:支管路为分水器至散热片之间的管路,管径一般为D16×2.0mm。
(3)保温:系统采用橡塑保温,保温层的厚度为9mm。EPE保温,保温层的厚度为7-8mm。
(4)温控阀:应在每组散热器的进水管上设置恒温阀,并根据户内采暖系统形式选择恒温阀类型。如带温包的丹佛斯等。
优点:
1.占地面积小,安装简单,操作便利。
2.采暖的同时也能提供生活热水(优先供应生活水)。
3.舒适性高,适合面积较大的低密度住宅和别墅。
4.最先进之处在于可实现具有多种时段、不同温控预设功能。
5.采暖时间自由设定,可随时开启。
6.每个房间温度能在一定范围内随意调节。
缺点:
1.前期投入较大,运行费用较高。
2.采暖炉使用寿命为15年左右。
3.冬季家中无人时,应将锅炉处于待机状态,让防冻保护起作用。
4.存在一定空气污染。
5.传热方式空气对流,容易积聚灰尘。
地板辐射式采暖:室温由下而上逐渐降低。
特点:低温辐射地板采暖是通过埋设于地板下的加热管—铝塑复合管或导电管,把地板加热到表面温度18至32摄氏度,均匀地向室内辐射热量而达到采暖效果。同时它可以由分户式燃气采暖炉、市政热力管网、小区锅炉房等各种不同方式提供热源。
适用居所:精装修公寓。
优点:
1.地面温度均匀,室温自下而上逐渐递减,舒适度高。
2.空气对流减弱,有较好的空气洁净度。
3.与其他采暖方式相比,较为节能,节能幅度约为10%至20%。
4.有利于屋内装修,增加2%至3%的室内使用面积。
5.有利于隔声和降低楼板撞击声。
缺点:
1.对层高有8厘米左右的占用。
2.地面二次装修时,易损坏地下管线。
3.铺设木地板则有干裂的麻烦,最好选用地砖或复合地板。
4.设定温度不能太高,否则会大大降低输送管道的使用寿命。
5.由于防水需要,卫生间不便铺设,还要借助于电暖气。
风机盘管采暖:
风机盘管主要依靠风机的强制作用,使空气通过加热器表面时被加热,因而强化了散热器与空气间的对流换热器,能够迅速加热房间的空气。但是,由于这种采暖方式只基于对流换热,而致使室内达不到最佳的舒适水平,故只适用于人停留时间较短的场所,如:办公室及宾馆,而不用于普通住宅。由于增加了风机,提高了造价和运行费用,设备的维护和管理也较为复杂。风机盘管分卧式(一般用于宾馆房间)和立式(一般用于办公楼),可明装或暗装。
板式换热器的工作原理如上图所示。板式换热器与管壳换热器相比有很多优点:传热系数高(市管壳式换热器的3~5倍);对数平均温差大;占地面积小(为管壳式换热器的1/5~1/10);重量轻(为管壳式换热器的1/5);价格低;清洗方便;方便改变换热面积及流程组合。请见暖通南社相关课件。
储热式电采暖:
特点:以电热管为加热元件,以蓄热砖为热媒,由于其使用低谷电,电价减半,运行费用较低,与水暖相近。它仅需连续通电加热7-8小时,便可供一天24小时放热。
优点:
1.使用低谷电,电价减半,运行费用与水暖相近;
2.免于维护,使用寿命15年以上;
3.室温变化小;
4.可方便地调节用电量,适应不同经济能力的用户使用;
5.运行安全可靠;
6.利于环保;
7.无跑冒滴漏之忧;
8.彻底解决了采暖收费难的问题。
缺点:
保温缺乏相应配套设施。有关专家认为,目前居室的建筑质量(主要是保温层、门窗质量)、节能、电容量(和电采暖有关)等一些相关保温材料不过关;入住率低、四面墙壁缺少保温夹层、楼层过高、开窗过多等因素都是造成室内温度不高的原因。
出现故障不易解决,储热式电采暖本身是一种精密度较高的设备,因此返修率也随之提高,由于部分电力采暖是采用棚顶或地下铺设管线,增大了维修的难度,冬季居民的正常生活也相应受到影响。
天棚低温辐射采暖:
特点:它是通过混凝土楼板冷(热)能辐射产生作用的,所以也有人称之为“混凝土采暖制冷系统”。该系统的工作原理并不复杂,寿命与建筑物等同。不会因日照产生室内过热现象。

适用居所:精装修公寓。
优点:
1.舒适度高。
2.采暖制冷的能耗明显下降,所以费用自然减少。
3.每年需要采暖和制冷的周期大为缩短。
4.舒适性高,系统工作无噪声,室内温度均匀,无风袭击感。
5.根据开发商提供的计算表明,建筑总能耗仅相当于普通建筑的1/5。
缺点:
1.前期投入较大。
2.在中国技术还不成熟。
太阳能采暖:
特点:太阳能采暖系统一般由集热部件、贮热部件、散热器和辅助热源构成。结构上可分成机械和自然两大类,前者为主动式采暖,后者称为被动式采暖。
优点:造价增加不多,节能效益显著,安全环保。
缺点:系统的造价和运行维护费用均较高。

地暖:
地暖学术名:低温热水地面辐射供暖(lowtemperature hot water floor radi-ant heating)
系统原理:以温度不高于60℃的热水为媒介,在加热管内循环流动,加热地板,通过地面以辐射和对流的传热方式向室内供热的供暖方式。供水温度宜采用35~50 ℃。

各种采暖方式合适度对比:

采用此种采暖形式,室内地表温度均匀,室温由下而上逐渐递减,给人以“脚暖头凉”的舒适感觉,从而形成真正符合人体散热要求的热环境。
地暖分类:根据热源。


1.锅炉水循环地暖:
水循环地暖是以温度不高于60℃的热水为热媒,在埋置于地面以下填充层中的加热管内循环流动,加热整个地板,通过地面以辐射和对流的热传递方式向室内供热的一种供暖方式。
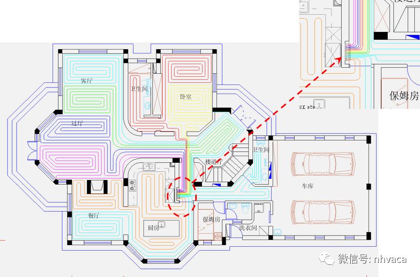
锅炉水系统一般由采暖炉、供回水干管、分水器、集水器、供回水路组成。

地暖管铺设方法:
现行地暖的铺设有干式和湿式两种方法:
干式铺法:
直接将管子嵌入专门的铺设磨具中,不需要填充层,安装简单、散热快,安装高度小,但价格比较贵。
安装高度:30-35mm。
安装价格:约280~350元/m2(含材料人工,按供暖面积计算)。

湿式铺法:
铺设管路后需要进行水泥填充,安装高度比干式大,但蓄热好,施工费用低。
安装高度:70-80mm。
安装价格:200-250元/m2。(含材料人工,按供暖面积计算)

水地暖的管材:
管材:PEX管、PEXL铝塑管、PERT管、PB管,有进口和国产的各种品牌,进口产品较贵。
PB管:是当前几种用于热水的塑料管中价格最贵和可靠性最高的品种。
PERT塑料管:具有可以热熔连接、原料性能稳定可靠和柔韧性好等优点,其综合的优良特性使之在地板辐射采暖领域中具有一定的竞争力。价格适中。
PEX管:是目前欧洲在地暖系统中使用量最大的一个品种。进口和国产的差价更大,低价位的产品应用存在一定的风险。
PEXL铝塑管:热膨胀系数小,抗渗氧,品质极佳。
地暖管材特性:易弯曲、抗老化、耐腐蚀、抗渗氧、耐温、耐压、不结垢、水阻力及膨胀系数等。
水地暖的分集水器:
作用:优化系统各支路的流量分配,更好的控制热量均衡,并且起到各支路开关、系统泄水、自动排气的作用。
分水器:用于连接各路加热管供水管的配水装置。
集水器:用于连接各路加热管回水管的汇水装置。
可通过分集水器将地暖水管分成多路控制,比如一个房间一路。

系统连接方式:目前主流连接方式为章鱼式接法。
系统原理:地板加热系统是通过埋设于地板下的加热管,把地板加热到表面温度18~32℃。均匀的向室内辐射热量以达到采暖效果的装置。
系统构造:整个系统由地面层、找平层、豆石混凝土层、管子、复合保温层、结构层组成。系统管路系统地下无接头,确保其使用的安全性。

陶粒由粘土、亚粘土等为主原料,经加工制粒、烧胀而成的。陶粒因其具有体轻、强度高、隔音、保温耐火、耐化学、耐细菌腐蚀及抗震、抗冻等优良性能,而广泛用于保温混凝土、结构保温混凝土、高层结构混凝土,应用领域比较广泛;陶粒混凝土比重相对豆石混凝土小,所有整体作为保护层重量要轻,从房屋层面承重来说更好;陶粒混凝土本身导热性能要比豆石混凝土稍小,在采暖系统运作时房间温升没有豆石混凝土明显,但是,其蓄热能力会大大提升。现在,陶粒混凝土已经取代豆石混凝土,成为填充层的首选材料。

水地暖的管路铺设(湿式铺法):


锅炉散热片系统与低温热水地面辐射采暖对接系统:
1)系统对接后,除了计算原各自系统外另外需配置的管件设备详见下表。
序号 |
项目名称 |
规格型号 |
说明 |
品牌 |
1 |
水泵 |
用于地暖系统水循环,1台/系统; |
||
2 |
水泵控制开关 |
控制水泵的开关,根据用户需求确定数量; |
||
3 |
三通温控混水阀 |
DN20 |
用于降低地面采暖系统的盘管水温,1只/系统; |
|
4 |
压差旁通阀 |
DN20 |
当所有回路关闭时,给水泵提供通路,保护水泵运行,1只/系统; |
|
注:详图见《散热片系统与低温热水地面采暖系统对接示意图》。 |
||||
2)对接系统水温分为高温区和低温区,散热片接自高温区,盘管接自低温区。
3)盘管分水器,必须为系统最后一组分水器。
低温热电缆地板采暖系统:
将外表面允许工作温度上限为65℃的发热电缆埋设在地板中,以发热电缆为热源加热地板,以温控器控制室温或地板温度,实现地面辐射供暖的方式。

每个房间的温度可通过设置好的温控器控制,房间温度可在5℃-30℃之间调控。当室内温度达到设定的温度值后,温控器自动断开发热电源,发热电缆停止供电,继续保持设定温度发热(平均每供电7分钟可保持温度40分钟左右);当室内温度低于温控器设定值时,温控器接通电缆的电源,发热电缆再一次开始加热。
发热电缆与水循环地暖地暖的比较:
前者是以低温热水作媒介通过循环水加热地板蓄热层,然后均匀的向上辐射热量的一种采暖方式;后者是以电发热电缆取代热水盘管,安装更加灵活,不受区域的限制,单独的小面积可方便的铺设发热电缆,而且独立性较强。
低温热水地暖比较适合较大采暖空间,发热电缆由于区域或家居电网总负荷(容量)的制约更适合解决浴室的供暖。
热泵采暖:
优点:高科技节能、安全、无废气排放,可兼顾生活热水。
缺点:初投资比燃气高。


高能效采暖系统系统组成:

地暖常见问题:
地暖在供暖季节需要24小时开启。主要原因有:
1)预热时间长,一般需要8个小时。若仅在需要的时候运行,无法满足即时制热需求。
2)防止管道冻结。
24H开启不是会很浪费吗?费用也会很高吧?
用燃气确实会很浪费。而大金热泵式地暖采用先进热泵和变频技术,根据室内负荷需要调节输出能力,比如在白天室内负荷很小时,机组耗电非常小。

地板的材料:
多种地板材料选择:天然石材 (如大理石)、瓷砖 、 复合地板 、地暖专用复合地板、部分实木地板、竹地板等。
石材、瓷砖:导热效果好、抗变形能力强,是地暖的理想选择;
地暖专用复合地板、实木复合地板、强化复合地板:比木材含水量低、耐热性好,不宜开裂、变形,厚度小散热快。请选择甲醛含量低的,绿色环保的。
部分实木地板热稳定好、含水率偏低,可以用于地暖。但实木地板比较厚,地暖系统的热量不易传导到地表会降低热效率,而且需打龙骨,铺设时不小心会打到水管。一般不推荐。
水地暖系统的室内设计参数:
地暖系统的设计参数:室内计算温度的取值应比对流采暖系统的室内计算温度低2度。

从地板采暖与对流换热的温度梯度分布曲线来看:
对流换热:屋顶与地板的温度差较大,1.8m以下人员活动区的平均温度在18度左右。
地板采暖:屋顶与地板的温度差较小,温度垂直分布。1.8m以下人员活动区的平均温度在20度左右。
水地暖的供水温度及管间距:
低温热水的供回水温度(参考GB):低温热水地面辐射供暖系统的供、回水温度应由计算确定,供水温度不应大于60℃。民用建筑供水温度宜采用35 ℃ ~ 50℃,供回水温差不宜大于10 ℃ 。

采暖方式比较表:

水地暖系统组件:

室内控制说明:

水地暖系统管路铺设:
三房两厅(例):

分水器的布置和安装尺寸:

分水器的布置和安装尺寸:可设置在厨房墙内。

可设置在卫生间台盆下。

本文来源于蜂窝暖通公众号,如有侵权,请联系删除
知识点:采暖专题知识
0人已收藏
0人已打赏
免费2人已点赞
分享
采暖供热
返回版块20.38 万条内容 · 611 人订阅
回帖成功
经验值 +10
全部回复(1 )
只看楼主 我来说两句 抢板凳来自 土木在线APP
回复 举报