多层及高层建筑均需设置楼梯作为竖向交通及疏散通道,楼梯常用建筑形式有剪刀梯和多跑梯等,结构设计也有支座简支和支座固支、有抗震措施和无抗震措施、参与整体抗震和不参与整体抗震等区别。国标图集16G101-2中,有如下表格和图例:

楼梯分类及适用表

无抗震措施要求时面筋可断开

有抗震措施要求时面筋需贯通,设滑动支座时上下纵筋可不同

有抗震措施要求时面筋需贯通,不设滑动支座时上下纵筋宜相同
楼梯设计时,较多采用的是支座简支假定,弯矩系数为跨中1/10、支座1/20;也可采用支座固支假定,弯矩系数跨中1/24、支座1/12。理论上“支座简支”成本高于“支座固支”。
1、简支的总弯矩系数和=1/10+1/20=3/20,固支的总弯矩系数和=1/24+1/12=3/24,简支的高约20%、固支的低约17%。
2、简支的底部弯矩相对较大,需通长配置的底筋多、可分段配置的面筋少,合计总钢筋量较多;固支的底部弯矩相对较小,需通长配置的底筋少、可分段配置面筋多,合计总钢筋量较少。
设简支假定的底筋面积为1单位、斜段长度L’,则底筋用量1*L’,分段支座筋用量=0.5*L’/4*2=0.25L’,合计总用量1.25L’。固支假定的底筋面积为0.42,则底筋用量0.42*L’,分段支座筋用量=0.84*L’/4*2=0.42L’,合计总用量0.84L’。固支假定的钢筋用量节省约33%。
另外,楼梯常按承受均布荷载的单向板设计,板弯矩及配筋基本跟跨度平方成正比,如:跨度减少一半、板弯矩及配筋可仅为原来的1/4。
以上是纯理论对比结果。工程设计中还需考虑具体的跨度、荷载、常用选筋规格及模数、钢筋锚固等实际条件的影响。
在《楼梯设计及配筋模式比选优化(一)——住宅标准层楼梯》一文中,已对标准层剪刀梯采用“单跨直通厚板”和“增设中间支座两跨薄板”两种做法进行过详细比选,结论是“增设中间支座两跨薄板”较省但比例不多(此处更正上文的一个错误数据,上文的比选数据中,“增设中间支座”的成本按单向斜板每边2根梯柱合计4根计算有误,实际上合计设置2根即可、可减少2根,修正后的数据为“增设中间支座”较“单跨直通+支座固支”可节省约5%。考虑到增设中间梯梁及梯柱的设计及施工相对较复杂,个人建议仍以“单跨直通厚板+支座固支”为优)。分析其原因,主要是住宅标准层的层高及梯板跨度较小,3m层高对应的水平跨度约4.5m,按1/30估算单跨直通的梯板厚度约150mm;增设中间支座后跨度约2.25m理论板厚可取75mm,但实际工程中最小板厚一般为100mm,薄梯板的优势不能充分发挥导致节省量降低、而增设中间梯梁及梯柱也产生了一定的成本增量,导致总体节省效果不明显。
商业裙楼常见的户外大跨度楼梯则情况不同。因建筑功能需求裙楼层高要求较高常为4~5m,对应水平跨度较长(坡度较缓且需设置中间平台)约8m以上,按1/30估算单跨直通的梯板厚度约270mm以上;增设中间支座后跨度约4m梯板厚可取130mm,薄梯板的优势就能充分发挥(各段的弯矩及配筋可仅需约1/4,两段合计仅约1/2),扣除增设中间梯梁及梯柱的成本增量后仍会有较大优势。以下就结合具体案例对裙楼大跨度楼梯的不同结构布置方式进行细化比选。设:商业裙楼层高4.5m,梯段宽度1.8m,梯级尺寸280x160mm、上下两段各为14级,中间平台宽1.5m,楼梯活载3.5kPa。不考虑抗震措施。

商业裙楼楼梯示意
1、单跨支座简支
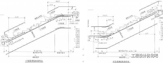
参照国标图集,中间平台不设支座时可选用E型梯。

梯板厚度取水平投影总长8980/30=300mm。按支座简支假定,弯矩分别为支座75/跨中150kN.m,板面和板底配置Φ14@180/Φ18@150满足受力需求,单跨纵筋用量合计约418kg(该重量是按图集所示,将支座负筋直接贯通板面全跨计算得出的。但该种做法是否合理,后面会专项展开讨论一下)。300厚梯板+踏步的砼量约6.64m3。钢筋+砼合计造价约6493元。
2、单跨支座固支
按支座固支假定,弯矩分别为支座125/跨中62kN.m,板面和板底配置Φ18@180/Φ18@150满足受力需求,单跨纵筋用量合计约362kg(同样是按图集所示,将支座负筋直接贯通板面全跨计算得出的)。较支座简支的节省38kg约14%,与总弯矩的理论比值17%较接近,存在一定差异的原因主要是选筋规格、锚固段等的影响。300厚梯板+踏步的砼量约6.64m3。钢筋+砼合计造价约6156元。

3、增设中间支座
E型梯在中间平台板下增设梯梁梯柱后,可分为下段C型梯和上段B型梯两段。板厚取分段长度8980/2/30=150mm。
按支座简支假定,下段C型梯弯矩分别为支座14/跨中29kN.m,板面和板底配置Φ8@140/Φ12@160满足受力需求,单跨纵筋用量合计约77kg(户外大楼梯常为框架结构,按有抗震措施设置通长面筋),上段B型梯弯矩分别为支座14/跨中29kN.m,板面和板底配置Φ8@140/Φ12@160满足受力需求,单跨纵筋用量合计约71kg,两段合计148kg。150厚梯板+踏步的砼量约1.96*2=3.92m3。钢筋+砼合计造价约3239元。
按支座固支假定,下段C型梯弯矩分别为支座24/跨中12kN.m,板面和板底配置Φ12@200/Φ8@170满足受力需求,单跨纵筋用量合计约62kg(同样按有抗震措施的框架结构设置通长面筋),较支座简支C型梯节省15kg约20%;上段B型梯弯矩分别为支座24/跨中12kN.m,板面和板底配置Φ12@200/Φ8@170满足受力需求,单跨纵筋用量合计约66kg,较支座简支C型梯节省5kg约7%。两段合计128kg。150厚梯板+踏步的砼量约1.96*2=3.92m3。钢筋+砼合计造价约3112元。


此处稍微展开分析一下:平均分为2跨后,平台板+斜段长度相同、弯矩及配筋量也相同,但C型梯和B型梯的钢筋重量不同(简支、固支及两者差值)。这主要是折板处纵筋连接构造要求不同导致的。以下是C型梯和B型梯的配筋构造图。

主要区别在于:C型梯是折角处底筋断开互锚、面筋弯折连通,B型梯是折角处底筋弯折连通、面筋断开互锚。因为纵筋是受拉的,C型梯折角处的底筋,如直接弯折连通则会产生斜向下外推的合力,仅靠砼保护层不足以承担该外推力、容易发生剥落,所以需要断开后互锚至板面;而该处的面筋弯折连通同样会产生斜向下外推的合力,该外推力由梯板全厚度砼承担、可以满足要求,所以无需断开互锚(B型梯的原理相同)。支座简支模式中,底筋面积为支座筋的一倍,C型梯是底筋互锚、B型梯是面筋互锚,所以,C型梯的钢筋重量大于B型梯的;支座固支模式中,底筋面积为支座筋的一半,C型梯是底筋互锚、B型梯是面筋互锚,所以,C型梯的钢筋重量小于B型梯的;两种模式的对比,C型梯的钢筋节省重量>>B型梯的。
中间梯梁跨度=梯板宽即1.8m,截面取200*300,底筋2Φ14面筋2Φ12、箍筋Φ6@200可满足需求,钢筋+砼造价约122元;中间梯柱高约2.25m,截面取300*300,纵筋8Φ12、箍筋Φ6@200可满足需求,钢筋+砼造价约254元/根*2=508元。即中间支座合计造价约630元。加上两段梯板的费用,增设中间支座的钢筋+砼总费用为简支3869元/固支3742元,远小于单跨的简支6493元/固支6156元、节省幅度达40%。
通过分析可知,商业裙楼的大跨度楼梯,因跨度及受力较大,采用增设中间支座的做法可以有效减少跨度、受力及截面配筋,虽然设计及施工较单跨直通的略复杂,但成本节省多,性价比高。在目前设计行业确实普遍存在时间赶任务重等困难条件下,仍不建议为图方便快捷而采用单跨直通的简单做法、而是推荐采用增设中间支座的做法,以取得综合最优的效果。
这里也顺便提出一些问题供大家进一步思考讨论:
总结分析对比结果,对商业裙楼的大跨度楼梯结构设计的建议如下:
1、宜增设中间支座,可采用支座固支模式。
2、宜在满足承载力和变形要求的前提下,优化减薄板厚。
3、确需配置通长面筋时,宜采用构造通筋+支座处按计算需要附加短筋。
知识点:裙楼大跨度楼梯设计及配筋模式比选优化
0人已收藏
0人已打赏
免费2人已点赞
分享
结构施工图
返回版块57.56 万条内容 · 1091 人订阅
阅读下一篇
风荷载群体干扰系数的图表算法结构设计中,风荷载是必须考虑的荷载工况之一,基本风压值较高地区的高层或者超高层建筑,风荷载更是是确定结构布置、影响构件设计及成本造价的主控因素。作为前处理的系统性参数,基本风压及其相关的体型系数、高度变化系数、风振系数等,对整体结构布置、构件截面设计等的影响都是广泛全面的,对成本造价的影响也远超后续施工图阶段中部分构件的截面配筋优化。前面几篇文章,分别从时间角度、空间角度讨论了基本风压w0的优化取值,后续
回帖成功
经验值 +10
全部回复(1 )
只看楼主 我来说两句 抢板凳非常好
回复 举报