土木在线论坛 \ 道路桥梁 \ 桥梁工程 \ 预应力混凝土连续梁多点转向顶推施工技术研究

预应力混凝土连续梁多点转向顶推施工技术研究

发布于:2023-02-03 14:10:03 来自:道路桥梁/桥梁工程 [复制转发]
图片


石济客运专线五里堂特大桥全长13.1Km,其中跨越胶济客运专线处采用7孔16m预应力混凝土连续梁设计,梁下墩身结构采用门式钢混框架墩。连续梁位于R=1300m的圆曲线上,与胶济客运专线交角为9°45′,梁面坡度为20.5‰。梁体按曲线设计,梁长116m,梁高1.6m,梁顶宽7.2m,底宽3.33m,重量约2000t。总顶程149.5m,总转向角6°56′。


梁体选位 预制施工


梁体现浇位置选择


因梁体处于20.5‰的下坡上,下坡顶推较上坡顶推更为简便,且小里程侧场地及通行条件均优于大里程侧,因此决定在梁体小里程方向预制;因连续梁为曲线半径1300m的曲线梁,梁体预制顺线路平面曲线位置预制,利用小里程侧永久墩作为部分支墩,小里程方向永久墩为钢筋混凝土普通墩,梁体为32m简支T梁。为满足后期16m跨支点要求,在两永久墩间增设临时支墩用于顶推支点支撑,同时接高永久墩墩顶高度,使其满足梁体处于20.5‰坡度要求。


梁体预制


对梁体下部基础进行处理使基础满足承载力要求,同时做好临时排水沟防止积水浸泡路基;搭设满堂脚手架,搭设完成后组织对其验收,铺设底模,堆载预压,根据预压测量数据计算立模标高,根据立模标高调整底模高度使其与立模标高一致;绑扎连续梁底腹板钢筋,安装及固定底、腹板预应力孔道,加工支立内模,绑扎顶板钢筋,安装及固定顶板预应力孔道,并按设计要求安装及固定各类预埋件,报验合格后由中间向两侧分层浇筑梁体混凝土,养护、等强、穿预应力束,抗压强度及弹性模量达到设计要求后按设计对梁体进行张拉、压浆。


图片

图1 安装示意图


顶推及电控系统设计


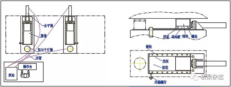
顶推装置


顶推装置由可调式约束滑道、滑座、MGE滑块、导向板、液压千斤顶、液压系统和电控系统组成,并分为有动力有约束、有动力无约束、无动力无约束三种。有动力有约束顶推装置提供水平顶力和竖向支承,并通过可调式约束滑道控制顶推方向;有动力无约束顶推装置提供水平顶力和竖向支承;无动力无约束顶推装置仅提供竖向支承。


水平千斤顶顶柱与滑座采用球铰连接,使滑座随顶柱前进时方向可以微动;水平千斤顶反力座板与滑道板焊接,使千斤顶固定在滑道上。可调式约束滑道用螺栓紧固于墩顶,提供顶推反力。


电控系统


液压同步电控系统是在每个支墩上设分控柜,全桥设一个总控柜,总控柜可控制全部水平千斤顶同步顶进及全部竖向千斤顶同步起落,而分控柜只能控制相应支墩上的千斤顶。所有控制柜均设应急开关,当出现异常状况时均能使整个系统同步停止。系统控制的同步性,是为防止起落梁设备不同步开启、关闭或个别施顶设备出现故障时不同步停止工作,引起连续梁局部应力超限而产生梁体裂缝。


图片

图2 顶推系统构造图及细部图


支撑系统的建立及导梁安装


安装导梁


混凝土梁体无法直接跨越16m的跨度,因此在混凝土梁体两端增设导梁,经计算得知混凝土梁体前端最大悬挑长度为4.75m,因此选用的导梁长度为12m。导梁采用加强型贝雷梁,每端设2组、每组3片,其底面与箱梁底面齐平。


利用汽车吊在梁端拼接导梁,导梁安装时要控制其底面与连续箱梁梁底在一个平面上,导梁安装完成后应对导梁承载能力及导梁与混凝土梁连接部位牢固程度进行试验。利用竖向千斤顶在导梁根部以导梁此位置承受支力的1.1倍进行施顶,来检验导梁及连接部位的可靠性。


建立竖向顶升系统


首先根据梁体、导梁的总重量及竖向支撑点位的个数,来确定竖向千斤顶的型号。


梁体张拉完成后,拆除墩顶部分支架及其范围内的底模(支架搭设前需提前考虑拆除此部分支架后支撑体系的安全性),吊装竖向千斤顶至支架拆除处,并调整各墩位竖向千斤顶顶面与梁底的距离基本一致。


将泵站及分控箱吊至各墩处工作平台上,连通竖向千斤顶至泵站的油路、泵站至分控箱的电路,同时将总控箱吊至梁体顶面并连同分控与总控间的电路,并启动控制系统进行空载试验。


梁体支撑体系转换


支承体系转换时,先由各支墩分控柜单控竖向千斤顶,使各竖向千斤顶与梁底顶紧即停,由总控柜同步开启全部竖向千斤顶,将梁体顶起使其与支架脱离,并满足水平顶推装置安装高度要求。拆除墩顶处支架及模板并安装临时保险墩,完成支承体系转换,然后拆除剩余支架及模板。


安装水平顶推装置


按曲线梁中心线放出顶推工作线及顶程起止点,并做好标记。在支墩顶上分别安装三种顶推装置,首先根据放线位置安装滑道底板,调整标高使各支墩底板中心距梁底的高度相同,并按此标高调平底板,然后用自流平砂浆将底板与墩顶间的缝隙及锚栓孔灌实,拧紧锚固螺栓将底板固定在墩顶。安装滑道板并与底板采用螺栓连接,滑道板前端与调向丝杠连接。依次安装侧向限位板、MGE滑块、滑座、导向板及水平千斤顶,滑座顶部安装楔形垫块,楔形垫块顶面与梁底同坡,并放置橡胶垫板以增大梁底与滑座间的摩擦力。安装完成后连通液压系统,进行空载试验。


顶推施工的多步曲


步履式顶推原理


步履式顶推施工每个循环分为4个步骤完成,具体操作如下:


第1步:总控控制全部竖向千斤顶,同时下降将梁体落在滑块上。


图片

图3a 步履式顶推施工第1步


第2步:总控控制全部水平千斤顶带动滑块向前行进一个行程。


图片

图3b 步履式顶推施工第2步


第3步:根据各墩处计算支反力的情况,先单操各墩位竖向千斤顶上升与梁体初步接触(接触力为 ),完成后总控控制全部竖向千斤顶起升将梁体顶离滑块。


图片

图3C 步履式顶推施工第3步


第4步:分控控制各墩位水平千斤顶回油带动滑块回至初始位置(无水平顶的墩位由人工将滑块拖回初始位置)。


图片

图3d 步履式顶推施工第4步


顶推转向原理


将梁体按曲线轨迹进行顶推,将顶推装置分别布置在连续梁两侧腹板下,每个顶程沿曲线弦线方向顶推,顶程起终点均设在曲线上即弦线的端点,从而保证梁体沿曲线轨迹运动。有动力有约束顶推装置布置在梁体两端,用于控制和调整梁体的运行方向;有动力无约束顶推装置布置在梁体中部,梁体在顶推转向过程中,由于滑座与水平千斤顶顶柱是球铰连接,因此不会对连续梁产生横向约束力;无动力无约束顶推装置布置在不设水平千斤顶的支点上,仅起支承梁体作用并跟随梁体自由滑动。


试顶推


梁体顶推前进的3—5循环内,对临时工程的安全性、顶推设备的性能、摩擦系数、滑道约束效果进行验证,同时对人员操作进行演练,进一步规范操作、增强对整个操作过程的熟练度,加强人员之间的相互配合。


正式顶推


按照上述顶推循环将梁体顶推前行,当梁体前进并脱离后端墩顶顶推装置后,将顶推装置倒安至梁体运行方向前方墩顶,同时根据只在梁体前后端设置带有约束装置滑道的原则,对顶推装置按照限位约束要求安拆相应墩顶的滑块侧面导向板,以满足梁体运行轨迹控制要求,如此反复工作,直至梁体顶推至设计位置。


运行轨迹调整


在实际顶推施工过程中存在测量误差及安装误差,因此梁体实际运行轨迹会与理论产生偏差,当偏差值超过先前设定允许偏差值时,须对运行轨迹进行纠偏,并及时修正装置顶推方向。


纠偏调整采用微调滑道板方向的方法进行。根据测量数据计算轨迹偏离值,梁体被竖向千斤顶顶起后,向轨迹偏离反方向调整滑道板,使梁体在3—5个顶推循环内回到理论轨迹。具体操作步骤如下:先将滑道板与滑道底板螺栓松开,保留1个螺栓作为滑道板旋转中心,用扳手拧动纠偏丝杠,使滑道板到达计算纠偏位置(尺量纠偏丝杠限位板与滑道板距离),重新拧紧螺栓,循环顶推使梁体运行轨迹回至理论。根据轨迹偏离值计算出设备安装误差,回调滑道板并修正设备位置及顶推方向。


图片

图4 梁体运行轨迹调整


千斤顶助力落梁


连续梁顶推至设计位置后,通过竖向千斤顶调整各墩处支反力与计算支点反力偏差值在±10%内,完成后安装千斤顶保险装置,拆除水平顶推装置,腾出安装垫石支座的空间。


将支座放至钢垫石上(支座下螺栓放入钢垫石预留孔内暂不锚固),整体将钢垫石及支座滑移至连续箱梁梁底并对准位置,将支座上板与连续箱梁底支座预埋板栓接,综合调整全部钢垫石高度,焊连钢垫石与钢横梁。


落梁:下降全部竖向千斤顶整体落梁,使支座坐落在钢垫石上,采用重力式灌浆将支座下板螺栓与钢垫石锚固。


拆除导梁:利用吊车拆除梁体前后导梁。


7孔16m预应力混凝土连续箱梁是石济客运专线济南枢纽的重点工程,也是跨越既有胶济客专营业线施工的安全重点卡控项目。经过施工前方案的多次研讨、论证、优化,顶程149m的转向跨线顶推施工于2015年6月9开始试顶推,6月23日顺利完成。


图片

图5 石济客专7—16m连续梁顶推施工


预应力混凝土连续箱梁多点转向顶推施工技术,在经济上合理地降低了施工成本,在工期方面缩短了施工时间,在安全方面保证了胶济客专运营安全,在工艺方面技术构思巧妙、设备结构新颖、施工操作简便,为跨越铁路、公路、江河等连续梁架设施工提供了新的思路及方法,对于跨越行车密度大、行车车速高的高速铁路(客运专线)时,其优势更加明显,具有十分广泛的推广和应用前景。


内容源于网络,旨在分享,如有侵权,请联系删除


相关资料推荐:

预应力混凝土连续箱梁顶推施工

https://ziliao.co188.com/p63284080.html


知识点:预应力混凝土连续梁多点转向顶推施工技术研究


全部回复(9 )

只看楼主 我来说两句
  • cof1675672703631

    非常好

    2023-02-06 17:15:06

    回复 举报
    赞同0
  • huang8901054
    huang8901054 板凳

    《建筑桩基技术规范》JGJ 94

    2023-02-06 10:42:06

    回复 举报
    赞同0
加载更多
这个家伙什么也没有留下。。。

桥梁工程

返回版块

19.44 万条内容 · 655 人订阅

猜你喜欢

阅读下一篇

桥梁BIM参数化建模的二次研发

BIM的参数建模是BIM技术中关键部分。本文介绍了结合路线专家系统,通过二次开发的方式实现。能满足当前依托项目需求且能进行后期扩展的桥梁参数化建模。该研发同时能在一定程度上与设计软件数据互通,为将来桥梁BIM正向设计提供了思路并打下了基础。 BIM的参数建模

回帖成功

经验值 +10