烟道是用来排烟的,风道是用来通风的。
烟道,用于排除厨房炊事活动产生的烟气或卫生间浊气的管道制品。
风道是指用混凝土、砖等建筑材料砌筑而成的用于空气流通的通道。
排烟管道是将房间内产生的烟雾排出去的,不需要送风,二者都是由管道构成,但是从用处来讲有分别。

《建筑防烟排烟系统技术标准》 GB51251-2017 条文节选:
4.4.8 排烟管道的设置和耐火极限应符合下列规定:
1 排烟管道及其连接部件应能在280℃时连续30min保证其结构完整性。
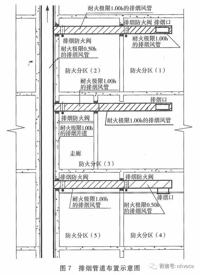
2 竖向设置的排烟管道应设置在独立的管道井内,排烟管道的耐火极限不应低于0.50h。
3 水平设置的排烟管道应设置在吊顶内,其耐火极限不应低于0.50h;当确有困难时,可直接设置在室内,但管道的耐火极限不应小于1.00h。
4 设置在走道部位吊顶内的排烟管道,以及穿越防火分区的排烟管道,其管道的耐火极限不应小于1.00h,但设备用房和汽车库的排烟管道耐火极限可不低于0.50h。
条文解释:
......
当排烟管道水平穿越两个及两个以上防火分区时,或者布置在走道的吊顶内时,为了防止火焰烧坏排烟风管而蔓延到其他防火分区,本标准要求排烟管道耐火极限不小于1.0h,提高排烟的可靠性。对于管道的耐火极限的判定必须按照《通风管道耐火试验方法》GB/T 17428的测试方法,当耐火完整性和隔热性同时达到时,方能视作符合要求。
排烟管道布置示意图见图7。

本文来源于网络,如有侵权,请联系删除
知识点:排烟管道的耐火极限要求
相关推荐:
0人已收藏
0人已打赏
免费0人已点赞
分享
通风排烟
返回版块13.92 万条内容 · 627 人订阅
阅读下一篇
变配电室通风设计要点总结一、系统形式 地上变配电室宜采用自然通风,不能满足自然通风要求的地上变配电室及地下变配电室应设置机械通风系统。变配电室宜独立设置机械通风系统。当通风无法保障变配电室设备的温湿度要求时,宜设置空调降温系统。 设置气体灭火系统的防护区(如变配电室),应设置火灾后通风换气,地下防护区和无可开启外窗的地上防护区应设机械通风系统。该区域内的通风、空调管道应能自动关闭。
回帖成功
经验值 +10
全部回复(0 )
只看楼主 我来说两句抢沙发