关于曲线桥直做的桩位坐标计算
前几天有个朋友问我关于曲线桥梁布置的问题,大家来看看下面的平面图:
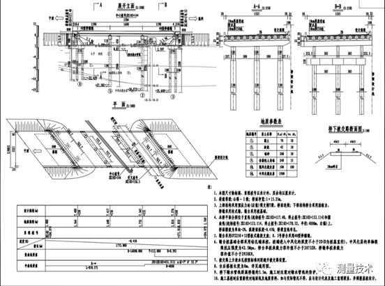
1、从图上可以看出,桥梁的起点里程为K102+117.48,终点里程为K102+170.52(含耳墙),桥梁中心桩号为K102+144,桥跨形式为15.98m+16m+15.98m,桥梁斜交角度为50°。
根据桥墩桥台一般构造图可以做出如下计算:
0#桥台盖梁中心线里程:K102+117.48+2.5(耳墙长度)+0.3/sin50°=K102+120.372
1#桥墩中心线里程:K102+117.48+2.5(耳墙长度)+0.040(缝宽)+15.98=K102+136
2#桥墩中心线里程:K102+136+16=K102+152
3#桥台盖梁中心线里程:K102+170.52-2.5(耳墙长度)-0.3/sin50°=K102+167.628
这样我们就可以运用软件来求解计算:
1、根据直曲表输入交点要素,如下图:
2、根据桥梁墩台一般构造图输入控制线参数,如下图:
3、输入结算结果与设计值对比输出结果:

设计值:
分析:输出结果与设计值只有1#、2#墩桩位差距较大,因为桥梁布置采用直线布置,以台背前缘线与路线设计线的交点作为直线,以该直线作为桥梁设计线,通过桥梁设计线布孔及布梁。计算时可能把桥梁设计线与路线设计线当做一条线来看,实际直线布置,这时桥梁设计线是一条直线,而路线中心线是直线和圆曲线,如下图:

这样的情况需要借助CAD辅助画图求解,可以根据前面软件计算出台背前缘交线里程桩号,然后用CAD画图标注如下:
图中蓝色线为以桥梁设计线计算出的桩位,黑色为软件计算出的桩位,基本重合,计算正确。
推荐资料(点击文字跳转):
知识点:曲线桥直做的桩位坐标计算
0人已收藏
0人已打赏
免费1人已点赞
分享
工程测量
返回版块7.08 万条内容 · 311 人订阅
阅读下一篇
影响RTK测量误差有哪些因素随着卫星定位技术的快速发展,人们对快速高精度位置信息的需求也日益强烈。 RTK采用载波相位动态实时差分(Real-time kinematic)方法,是GPS应用的重大里程碑,它的出现为工程放样、地形测图、各种控制测量带来新曙光,极大地提高了外业作业效率。 RTK工作原理
回帖成功
经验值 +10
全部回复(0 )
只看楼主 我来说两句抢沙发