概述
梁桥指结构在垂直荷载作用下,支座只产生垂直反力而无推力的梁式体系桥的总称。
静力特性:①简支梁式桥;②连续梁桥;③悬臂梁桥;④T形刚架桥。
截面形式:①板式梁桥;②肋梁式梁桥;③箱形梁桥。
预应力度:①普通钢筋混凝土;②部分预应力混凝土;③全预应力混凝土梁桥。
按施工方法分类:整体浇筑式梁桥和预制装配式梁桥
按装配式结构块件划分方式的不同,分为:纵向竖缝划分、纵向水平缝划分和纵、横向竖缝划分。

横向分段装配式梁
(串连梁)



混凝土梁桥的特点:
缺点:
①自重大。
②钢筋混凝土梁带裂缝工作。混凝土材料是抗拉性能极差的一种材料,处于受拉区的混凝土容易出现裂缝。
优点:
①造价低,可就地取材
②耐久性好,混凝土耐久性好,耐高温
③可塑性强,以按照设计意图做成各种形状的结构,例如适应线形的变化做成曲线桥。
④刚度大
预应力混凝土梁桥的特点:
①预应力的作用。通过张拉预应力筋,使受拉区预先储备一定的压应力,在外力作用时,混凝土可不出现拉应力或不出现超过某一限值的拉应力。
②全预应力混凝土梁在使用荷载下不出现裂缝。
③节省材料,提高桥梁的跨越能力。与钢筋混凝土梁桥相比,一般可节省钢材30%-40%,跨径愈大节省愈多。
④更适合于装配式桥梁。如悬臂拼装、顶推法和旋转施工法在预应力混凝土梁桥中得到新的发展,可根据需要在结构纵、横向和竖向任意分段,施加预应力,即可集成理想的整体。
板桥的构造
板桥的优点是建筑高度小、构造简单、施工方便,采用预制装配施工时,预制构件重量小、架设方便。主要缺点是:跨径不宜过大。
从结构静力体系来看,可分为简支板桥、悬臂板桥和连续板桥。
一、整体式简支板桥的构造

常用跨径一般在8m以下,板厚与跨径之比一般为1/12~1/16。
桥面宽度往往大于跨径,实际上双向受力状态。当桥面板宽较大时,除配置纵向的受力钢筋外,尚应计算配置板的横向受力钢筋。

二、装配式简支板桥的构造

1)矩形实心板梁桥
实心板截面形状简单、施工方便、建筑高度小、结构整体刚度大,梁高一般为0.16-0.36m左右,适合于小跨径桥梁。
2)空心板桥
当跨径增大时,应采用空心板截面,不仅能减轻自重,而且能充分利用材料。





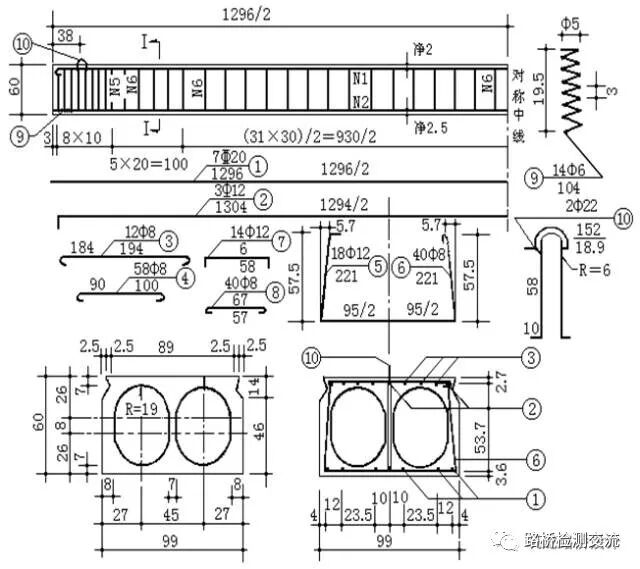
先张法预应力混凝土空心板桥钢筋布置图(单位:cm,钢筋直径:mm)
3)装配式板桥的横向连接
装配式板桥板块之间必须采用横向连接构造.以保证板块共同承受车辆荷载。常用的横向连接方式有企口混凝土铰连接和钢板焊接连接。
(1)企口混凝土铰联接
企口混凝土铰接型式有圆形、菱形和漏斗形三种
实践证明:企口式混凝土铰能保证传递横向剪力,使各块板共同受力。

(2)钢板焊接联接
如果要加快工程进度,也可以采用钢板连接。就是将钢板N1焊在相邻两块件的预埋钢板N2上。

简支梁桥的构造
简支梁桥(simply-supported beambridges)属于静定结构,它受力明确,构造简单,施工方便,是中小跨度桥梁中应用最广泛的桥型。
简支肋梁桥的上部构造由主梁、横隔梁、桥面板、桥面构造等部分组成。这类桥梁可采用整体现浇和预制装配两种不同的方式进行施工。
主梁是桥梁的主要承重结构;
横隔梁保证各根主梁相互结成整体,以提高桥梁的整体刚度;
主梁的上翼缘构成桥面板,组成行车(人)平面.承受车辆(人群)荷载的作用。
一、整体式简支T形梁桥
整体式梁桥在城市立交桥中应用较广泛,具有整体性好、刚度大、易于做成复杂形状等优点,多数在桥孔支架模板上现场浇筑,个别也有整体预制、整孔架设的情况。
1. 为了减小桥面板的跨径,在两根主梁之间设置次纵梁,如图b。
2. 桥面板的跨中板厚不应小于10cm。桥面板与梁肋衔接处一般都设置承托结构。

整体式梁桥横截面
二、装配式简支T形梁桥
装配式简支梁桥具有建桥速度快、工期短、模板支架少等优点而应用广泛。主梁的横截面形式可分为P形、T形和箱形。


装配式T形简支梁桥的构造布置
① 主梁布置及构造
当桥面宽度已知后, 选定主梁的间距是主要的问题。对于跨径大一些的桥梁,适当加大主梁间距减少片数,钢筋混凝土的用量会少些;但此时桥面板的跨径增大,悬臂翼缘板端部较大的挠度对引起桥面接缝处纵向裂缝的可能性也大些。
主梁梁肋厚度在满足抗剪要求后,可适当减薄;梁肋端部可逐渐加宽;对于预应力主梁梁肋,一般做成马蹄形。


②桥面板(翼缘板)的布置与构造
一般为变厚形式,端部较薄,向根部逐渐加厚。翼缘根部(与梁肋衔接处)厚度应不小于梁高的1/10,边缘厚度不应小于10cm。
主梁吊装就位后,当设横隔梁时,必须借助横隔梁与翼缘板的接头将所有主梁连成整体;对于少横隔梁的主梁,应在翼缘板上加设接头和加强桥面铺装。
常用的桥面板横向连接有焊接和湿接接头两种:
焊接接头:
概念:用钢板或螺栓将相邻两片梁翼板和横隔板焊接起来形成横向联系的方法。
优点:施工方便、连结速度快、焊接后能立即承受荷载。
缺点:耗费钢材较多、需要有现场焊接设备,且有时需在桥下进行仰焊,有一定困难,整体性效果稍差一些。
湿接接头
概念:系主梁预制时,将翼板端部预留出一部 分,钢筋外伸。梁架设就位后,将相邻两翼板的钢筋焊接相连,然后支撑板现浇接缝混凝土,使各片梁横向连结形成整体。
优点:节省钢板用量、整体性好
缺点:施工较复杂、接缝混凝土养生达到初期后方能承受荷载。
③横梁布置及构造
横隔梁在装配式T梁中起着保证各根主梁互相连结成整体的作用,
刚度愈大,桥梁的整体性愈好。

端横梁:T梁的端横隔梁是必须设置的,它不但有利于构件的稳定性,而且能显著加强全桥的整体性;与主梁同高。
内横梁:每隔5.0~10.0m设置一道,高度取主梁高度的0.7~0.9倍,厚15~18cm,可挖空。


装配式梁简支T梁横隔板构造

装配式梁简支T梁端隔板构造

装配式梁简支T梁横隔板构造
装配式梁简支T梁横隔板构造
三、组合梁桥
用纵向水平缝将桥梁的梁肋部分与桥面板(翼板)分隔开来,使单梁的整体截面变成板与肋的组合截面。?施工时先架设梁肋,再安装预制板,最后在接缝内或连同在板上现浇一部分混凝土使结构连成整体。
组合梁桥两种形式:
I形 ——混凝土简支梁桥
箱形 —— 预应力混凝土梁桥
分阶段受力。
悬臂体系和连续体系梁桥的构造
普通钢筋混凝土和预应力混凝土简支梁桥的经济跨径分别为20m和40m左右。超过此跨径范围,不经济。
为了降低材料用量指标,对于较大跨径的桥梁采用能减小跨中弯矩的悬臂体系、连续体系梁桥等。
一、悬臂体系梁桥
1.悬臂梁桥
1)结构类型
2)力学特点
属于静定体系
悬臂梁利用悬出支点以外的伸臂,使支点产生负弯矩对跨中正弯矩产生有利的卸载作用,跨中正弯矩大大减小
由于弯矩图面积的减小,跨越能力增大u体系形式:双悬臂、单悬臂、双悬臂加挂梁、T形刚构
缺点:悬臂端容易下挠,行车舒适性较差
3)构造特点
① 跨径布置(各跨跨径比,悬臂长与跨径比)
跨线的单孔双悬臂梁桥:中孔跨径由跨线行车净空的要求确定。主梁为T型截面时,悬臂长度一般为中跨长度的0.3~0.4倍;当采用箱型截面时,悬臂长度可适当加大,但不能超过中跨长度的0.5倍。
跨河的单孔双悬臂梁桥和三跨带挂梁的单悬臂梁桥:中孔为悬臂孔,跨度由通航净空决定,其中挂梁长度lg一般为(0.4~0.6)l。
当不受上述这些条件限制时,就可按照梁的弯矩包络图面积为最小的原则来确定边孔与中孔径的划分。
② 截面形式


③ 梁高
一般采用变高度梁,支点梁高/跨中梁高 = 2~2.5
优点:增加支点抗弯能力,不增加很多的弯矩
底缘曲线:抛物线、正弦曲线、圆弧、折线
4)适用情况
悬臂梁桥在施工和成桥运营阶段两者受力状态是一致的,非常适用于悬臂施工方法。
在支点附近梁的上翼受拉,容易出现裂缝;悬臂端与挂梁衔接处的挠曲线产生不利于行车的折点。故目前很少采用。
2.T形刚构桥
T形刚构是一种墩与梁固结、具有悬臂受力特点的梁式桥。与简支梁桥相比,具有较大的跨越能力。分为跨中带剪力铰和跨中设挂梁两种基本类型。

1)分类及力学特点
① 带挂梁的T构桥型

属静定结构,不受温度及基础沉降产生次内力的影响;
采用悬臂法施工,施工与运营阶段受力状态一致;
与带剪力饺的T形刚构桥相比,其受力和变形性能均略差一些,但没有后者为设置剪力铰进行强迫合龙以及更换剪力铰处支座的麻烦;
主要缺点是桥面上伸缩缝增多,对于高速行车不利。
② 带铰的T构桥型

超静定结构。
带铰的T形刚构,它的上部结构全部是悬臂部分,相邻两悬臂通过剪力铰相连结。
剪力铰是一种只能传递竖向剪力,但不能传递水平推力和弯矩的连结构造。
2)构造特点
对于钢筋混凝土T构桥,挂梁的经济长度一般在跨径的0.5~0.7范围内;
预应力混凝土T构的挂梁经济长度一般在跨径的0.22~O.50范围内;
主孔跨径大时,取较小比值,并应使挂梁跨径不超过35~40m,以利安装;
悬臂受力的T构承受的全是负弯矩,上缘受拉,因而配筋比较简单。
墩柱尺寸一般较大。
3)适用情况
T构带挂梁:在混凝土的长期收缩徐变作用下和汽车荷载的冲击力作用下,T构悬臂梁端会发生下挠;
T构带铰:铰的左右两侧主梁变形不一致,引起行车不平顺;施工过程中有时还需强迫合龙;当T构的两边温度变化不同时,易产生不均匀变形,引起较大次内力;剪力铰的构造计算因式中的理想铰尚存在差异,难以准确地计算出各种因素产生的次内力;
带挂梁和带饺的T形刚构目前均已较少采用。
3. 预应力筋的布置
预应力混凝土梁桥的布束原则:
应考虑施工的方便,尽可能少的切断预应力钢筋
符合结构受力特点,既要满足施工阶段的受力要求,又要满足成桥后使用阶段各种荷载组合下的受力要求;既要考虑结构在使用阶段的弹性受力状态的需要,也要考虑结构在破坏阶段的需要;并注意避免在超静定结构体系中引起过大的结构次内力。
避免使用多次反向曲率的连续束筋,以降低摩阻损失。


二、连续体系梁桥
将简支梁梁体在支点上连结形成连续梁。

1. 预应力混凝土连续梁桥
1)等截面连续梁桥
① 力学特点
在恒载和活载作用下,支点截面负弯矩一般比跨中截面弯矩大,但跨径不大时这个差值不是很大,可以应用等截面形式。


② 构造特点
可选用等跨和不等跨两种布置方式。u不等跨布置:边跨为0.6~0.8中跨u等跨布置:跨径大小主要取决于经济分孔和施工的设备条件。高跨比一般为l/15~1/25;在顶推施工的等截面连续梁桥中梁高H与顶推跨径之比一般为1/12~1/17。
③ 适用范围
中等跨径:40~60m(国外有达80m的);u以等跨为宜,亦可用不等跨;u适应于预制装配(逐孔架设、顶推法施工)和就地浇注施工(有支架、移动模架)。
2)变截面连续梁桥
① 力学特点
当连续梁的主跨跨径接近或大于70m时,主梁支点截面的负弯矩将比跨中截面的正弯矩大很多,采用变截面连续梁桥更符合受力要求,当加大靠近支点附近的梁高(即加大了截面惯矩)做成变截面梁时,还能进—步降低跨中的设计弯矩。


② 构造特点
分跨:
连续孔数一般不超过5跨;u不等跨布置。多于三跨的连续梁桥,除边跨外,其中间各跨一般采用等跨布置,以方便悬臂施工;
多于两跨的连续梁桥,其边跨一般为中跨的0.6~0.8倍左右,当采用箱形截面,边孔跨径其至可减少至中孔的0.5~0.7倍;

有时为了满足城市桥梁或跨线桥的交通要求而需增大中跨跨径时,可将边跨跨径设计成仅为中跨的0.5倍以下,此时,端支点上将出现较大的负反力,故必需在该位置设置能抵抗拉力的支座或压重以消除负反力。


③ 适用范围
主跨跨径接近或大于70m;
适宜于悬臂法施工。

2.连续刚构桥综合连续梁与T构的优点;
超静定体系对地基要求高;
适合于中等以上跨径的高墩桥梁。
1)力学特点
梁体连续;
墩、梁、基础三者固结为一个整体共同受力;
由于墩梁固结共同参与工作,连续刚构桥由活载引起的跨中正弯矩较连续梁要小,因此,连续刚构桥的主跨径可以比连续梁桥的设计大一些。
2)构造特点
(1)主梁
主梁在纵桥向大都采用不等跨变截面的结构布置形式u边跨和主跨的跨径比值在0.5~0.692之间,大部分比值在0.55~0.58之间。
(2)主梁截面高度
箱梁根部截面的高跨比一般为l/16~l/20,其中大部分为1/18左右,也有少数桥梁达到或低于1/20;
跨中截面梁高通常为支点截面梁高的1/2.5~l/3.5,略小于连续梁的跨中梁高 。
(3)桥墩
主要适用于高桥墩;
柔度应适应由于温度变化、混凝土收缩、徐变以及制动力等因素引起的水平位移,以尽量减小这些因素对结构产生的次内力;
水平抗推刚度宜在满足桥梁施工、运行稳定性要求的前提下尽量地小,在横向的刚度应设计得大一些。

3)适用范围
常用于大跨、高墩的结构中,桥墩纵向刚度较小,在竖向荷载作用下,基本上属于一种无推力的结构;
由于预应力技术的发展,连续刚构桥是大跨径桥梁选型中具有竞争力的桥型之一;
优点:主梁保持连续,无需设支座;同时避免了连续梁和T构两者的缺点;
缺点:对地基承载力的要求较高;主墩刚度过大时,产生过大的温差拉力对结构不利;墩梁联结处应力复杂。
3. 横截面形式和尺寸
横截面形式主要有板式、肋梁式和箱形截面。
1)横截面形式



①顶板和底板厚度
基本要求:既要满足纵、横向的受力要求,又要满足结构构造及施工上的需要。
选定原则:满足布置纵、横预应力筋的构造要求,满足桥面板横向弯矩的受力要求。
②腹板厚度
主要取决于布置预应力筋和浇注混凝土必要的间隙等构造要求。

③横隔梁(板)

4.预应力筋布置
说明:
常设置三向预应力筋(即纵向预应力、竖向预应力和横向预应力)。
主筋逐段接长可采用连接器。
预应力筋数量和布筋位置需要根据结构在使用阶段的受力状态予以确定,同时满足施工各阶段的受力需要。

1)纵向主筋的布置方式
材料:纵向主筋常采用钢绞线或钢丝束。
布置方式:连续配筋、分段配筋、逐段接长力筋、体外布筋等。——与所采用的施工方法及预应力种类有关
①连续配筋
就地浇筑连续梁,可按照桥梁各部位的受力要求进行连续配束。通常力筋的重心线为二次抛物线组合而成的轨迹。

②分段配筋
悬臂施工和简支—连续施工。

③逐段接长力筋
顶推法施工:钢束常分前期张拉力筋和后期张拉力筋。
逐孔施工:其主束布置往往也采用逐段接长配筋。

④体外布筋
体外布筋是将力筋设置在主梁截面以外的箱内,利用横隔梁等结构物对梁施加预应力。在桥梁加固方面已有先例。
2)横向和竖向布筋
横向:用以加强桥梁的横向联系,保证桥梁的横向整体性、桥面板及横隔板横向抗弯能力的主要钢筋,一般布置于横隔板或截面的顶板中。
竖向:布置在腹板中,只要提高截面的抗剪能力,在预留孔道内按后张法工艺施工。
相关资料推荐:
https://ziliao.co188.com/d63764247.html
知识点:混凝土梁桥构造与设计要点
0人已收藏
0人已打赏
免费4人已点赞
分享
桥梁工程
返回版块19.44 万条内容 · 655 人订阅
阅读下一篇
桥梁钢模板拼缝大的原因分析河南伟志模板厂家提供钢模板是用于混凝土浇筑成型的钢制模板,钢模板以其多次使用、混凝土浇筑成型美观等特点被应用于建筑工程中。我们在安装使用桥梁钢模板期间要按照规定进行组装。这样才能工作。 在桥梁钢模板施工的时候,为什么会出现缝隙过大的问题?今天我们来探讨一下这样的问题。 为什么会出现拼缝过大的现象: 由于模板间接缝不严有间隙,混凝土浇筑时产生漏浆,混凝土表面出现蜂窝,严重的出现孔洞、露筋。 桥梁用钢模板拼缝大的原因分析:
回帖成功
经验值 +10
全部回复(0 )
只看楼主 我来说两句抢沙发