一座看似常规的系杆拱桥,为何有如此可观的跨越能力(其跨度位于世界系杆拱桥之首)?若再仔细看图1,可发现这桥的吊杆布置方式与常见的系杆拱桥者有所不同。这就是本文拟讨论的网状吊杆拱桥(Network Arch Bridge)。
从传统系杆拱到网状吊杆拱
这个话题,得从系杆拱说起。众所周知,拱的水平推力得依靠坚实的地基承担。当地基不适于抵抗水平力时,可以在同一拱的两拱趾(拱脚)之间增设水平柔性拉杆(称为系杆),形成系杆拱;或者,借用能承受拉弯作用的梁(称为系梁或刚性梁)来承受水平力。这样,拱的水平力就不用墩台承受了。
按现在的惯常说法,对采用竖吊杆布置的系杆拱,根据其拱肋和系杆(梁)的相对刚度大小,可分为柔性系杆刚性拱(图2a,即系杆拱)、刚性系杆柔性拱(图2b)和刚性系杆刚性拱(图2c)。后两种,实际上是拱-梁组合结构。

系杆拱桥的构思,由来已久。早在1482年,达芬奇就曾绘制过系杆拱桥的草图。至于系杆拱桥的工程实际应用,依笔者拙见,始于19世纪上半叶。
1849年,英国工程师布鲁内尔采用熟铁建造过跨度62m的系杆拱铁路桥(构造与图2c相近,参见亚东桥话4:布鲁奈尔其人其事)。1841年,美国工程师斯夸尔·惠普尔(Squire Whipple, 1804-1888)获得弓弦式桁架桥的专利。所谓弓弦式桁架(Bowstring truss),就是指上弦杆呈弧形,下弦柔性杆水平布置,其间布置若干竖杆及节间交叉斜杆的桁架。1869年建成的惠普尔铁拱桁桥(图3),跨度33.5m,桥宽7m弱;采用锻铁做下弦拉杆,铸铁做上弦压杆,另设木桥面。可以看出,把这桥稍加改造(去掉交叉斜杆,让竖杆直接吊住桥面),就是一座系杆拱桥了。
图3 美国惠普尔铁拱桁桥(1869)
刚性系杆柔性拱也称为朗格尔拱,这是以奥地利工程师约瑟夫·朗格尔(Josef Langer)的名字命名的。1858年,朗格尔提出在等高钢板梁顶面增设柔性拱(只设置铰接竖吊杆);因柔性拱是用来加劲钢梁的(不是刚性梁服务于柔性拱),故这样的构造也叫朗格尔梁。1883年,建成第一座朗格尔桥。顺便提及,自锚式悬索桥也是朗格尔在1859年最早提出来的。
刚性系杆刚性拱也称为洛泽拱,这是以德国工程师赫尔曼·洛泽(Hermann Lohse,1815-1893)的名字命名的。19世纪下半叶,德国出现了上下弦杆均为弧形的桁架桥,称为双凸透镜式桁架或鱼腹梁,采用的是德国工程师冯·保利(von Paoli)在1865年提出的专利。美国匹兹堡在1883年建成的Smithfield街桥(图4上),就是一个典型的桥例。洛泽将透镜式桁架改为上下布置弓形桁架、中间布置竖杆的结构,并按此建成过数座桥梁(其中之一见图4下)。这样的结构,看上去融合了鱼腹梁和系杆拱的构造特点。不过,后来它是如何变成“刚性系杆刚性拱”的,就不得而知了。
图4 美国Smithfield街桥(上,1883)和德国汉堡北易北河桥(下,1872)
除了竖吊杆,系杆拱桥的吊杆也可采用其他的布置方式(如扇形布置)。最有代表性的是丹麦工程师尼尔森(Octavius F. Nielsen)在1926年提出的斜吊杆布置(不设竖吊杆,见图1d),后来称之为尼尔森拱或尼尔森体系。斜吊杆的立面布置,可以不交叉(图中实线所示);或仅交叉一次(增加图中虚线所示)。
设想对系杆拱半跨均布加载,对竖吊杆拱,未加载侧靠拱趾的几根竖吊杆会因松弛而退出工作,这导致对应部位的拱和梁的弯矩增大;对尼尔森拱,未加载侧的半跨则只有部分斜吊杆(间隔分布)退出工作。可知,用斜吊杆代替竖吊杆,尽管拱肋和梁的轴向力不会有显著变化,但弯矩及竖向挠度却可减少。另外,斜吊杆也增强了系杆拱桥的整体刚度和稳定性,结构自振频率得到提高。
1932年,尼尔森在法国建造的Castelmoron桥,是一座钢筋混凝土系杆拱桥(无交叉斜吊杆),跨径140m,为当时同类桥梁跨径最大者(图5)。目前世界上的几座大跨度尼尔森拱,都是20世纪70~80年代由日本建造的,如Onoura桥(跨度195m,1972年)、Utsumi桥(跨度219.6m,1988年)等。近年来,我国高铁也建成若干座跨度百米左右的钢管混凝土尼尔森拱,如武广客专胡家湾桥、京沪高铁蕴藻浜桥等。
图5 法国Castelmoron桥(1932)
若把斜吊杆再加密,系杆拱的受力行为是否会更好?实际上,在尼尔森体系问世之前,德国人就尝试过了。1878年,在德国东部城市里萨,就曾建过一座这样的铁路桥(图6)。但可以想象,在那个年代,这样复杂的桥梁结构的计算设计困难、构造施工繁杂,难有竞争力。于是,这样的实践也只能浅尝辄止。
图6 德国里萨易北河铁路桥(1878)
到1955年,挪威阿哥德大学的Per Tveit教授提出了网状吊杆拱桥(图2e)的概念,其主要是针对斜吊杆布置成网状的系杆拱桥而言的。这里所说的网状,定义为一部分斜吊杆与其他斜吊杆至少交叉二次;当然,也可以大概理解其为加密型尼尔森体系。
网状吊杆拱的显著受力特点,就是拱肋和系梁所承受的弯矩小,且分布更加均匀。图7所示者,为三种吊杆布置方式及其拱肋和系梁在L/2、L/4处的影响线对比。相较而言,网状吊杆拱的拱肋和系梁的弯矩影响线幅值最小,而且减幅明显。这意味着网状吊杆可在很大程度上减少拱肋和系梁的弯矩,如此一来,拱肋和系梁就可更加纤细,材料也会少用一些,经济和美学效果就显现出来了。
图7 不同系杆拱桥的弯矩影响线对比
按笔者的理解,网状吊杆拱的显著结构特点,是可以把网状吊杆视为调整拱桥力学行为(包括稳定、动力行为)的一种手段。网状吊杆不仅仅是简单的传力构件,更是结构系统的重要组成部分。因此,对图2c所示的一类拱桥,无论其是下承式拱或中承式拱,提篮拱或外倾式拱,规则拱或异形拱,单一材料拱或多种材料拱,都可通过网状吊杆的优化布置,取得良好的效果。
自20世纪60年代至今,世界上已建成网状吊杆拱桥近百座(含6座铁路桥)。第一座网状系杆拱是Tveit教授参与设计的挪威Steinkjer公路桥,跨度约80m,1963年建成。同年建成的德国费马恩海峡大桥,跨度248m,公铁两用,是早期网状系杆拱桥的经典代表。见图8。
图8 挪威Steinkjer桥(左)和德国费马恩海峡桥(右)
从90年代起,挪威、日本、德国、美国等国家建造了若干网状吊杆拱桥,下表列出了部分有代表性的桥梁。
图2f所示的刚架系杆拱,属于一种外部超静定的少推力组合体系,在近30年内得到一定发展。该类桥梁的构造特点是:拱趾与桥墩固结,墩顶不设支座;桥道系不参与结构整体受力;荷载产生的水平分力由布置在桥墩之间的系杆平衡。这类拱桥可用于单跨,也可用于多跨,我国已建成多座。
网状吊杆拱桥构造及实例
对网状吊杆拱桥的主要构造特点,简要分述如下。
拱 肋
拱肋多为钢箱和钢管结构,很少使用钢筋混凝土拱肋。由于拱肋的弯矩很小,系梁的也不大,这在很大程度上减小了结构自重,拱的轴力也大幅降低,因此拱肋无需很大的抗弯刚度,其截面比常规拱桥者更为纤细。另外,拱轴线多采用圆弧形(与吊杆布置有关),矢跨比大致在1/7~1/5。
系 梁
多种形式,可以是钢梁,或混凝土梁,或组合梁。因主梁的弯矩不大,梁高可远小于常规拱桥者。
吊 杆
通常采用由圆钢、条钢、高强钢丝(含密封钢索)、钢绞线等材料制成的柔性吊杆,其中圆钢居多(连接方便,易于检修)。根据吊杆类型,吊杆与拱肋和系梁的连接可采用铰接、焊接、锚固等方式。
吊杆的数量和布置在很大程度上会影响结构的受力。在网状吊杆拱桥发展初期,因计算能力受限,吊杆数量相对较少,形式相对简单;得益于有限元技术的发展,吊杆数量可增多,布置形式也较为多变。
网状吊杆的数量,通常是其他系杆拱的2~4倍。若吊杆数量过多,不仅浪费材料,所起效果也大打折扣。根据现有的工程实践,吊杆下端点的间距一般在2~5m之间。有文献给出了单片拱的合理吊杆数量:跨度100m时,吊杆数36~46;跨度150m时,吊杆数38~48;跨度200m时,吊杆数40~50;等等。
常见的几种吊杆布置方式为:(1)恒定倾角:吊杆下端点沿跨度等距分布,吊杆与主梁成恒定夹角α(45?≤α≤75?);(2)递增(减)倾角:吊杆上端点沿拱轴线等距分布,吊杆与主梁夹角α逐渐增大(减小);(3)法线等夹角:吊杆上端点沿拱轴线等距分布,吊杆与拱轴线的法线成恒定角度α;(4)下端点间距渐变:吊杆上端点沿拱轴线等距分布,吊杆下端点间距逐渐变化。
另外,车辆及横风等活载容易引起柔细吊杆的振动,可能导致各吊杆在相交处碰撞。根据动力分析结果,可视情况在吊杆相交处设置减振装置,以防止吊杆相互碰撞,减小吊杆振动,降低疲劳损伤。常见的减振装置见图9。
图9 网状系杆交叉点处设置的减振装置
施 工
多采用先梁后拱的支架施工方法,也可采用斜拉扣挂方法按先拱后梁的次序施工(如德国费马恩桥)。顶推方法时有应用,包括系梁顶推、拱肋顶推(如图1所示的俄罗斯布格林斯克桥)或整跨顶推。条件允许时,采用大件拼装、整体浮吊的方法,较为便捷。
实 例
01
该桥主跨220m,桥宽7.6m(行车道宽5m,单车道);拱肋采用两根外径711mm、壁厚40mm(在拱趾附近增至60mm)的空心钢管,矢高33m;横撑也采用钢管,直径250mm,壁厚5mm;系梁为两道0.4m厚预应力混凝土梁,中间车道板厚0.25m;主跨两端还分别设有35m、30m边跨,采用梁高1.2m预应力混凝土梁;每根拱肋竖面内,大致按“法线等夹角”方式布置44根直径42mm的密封钢索吊杆,铰接。具体布置见图10。
图10 挪威Brandangersundet桥基本布置
图11 挪威Brandangersundet桥(2010)
该桥主跨结构仅重1860t。先在岸边支架上浇筑混凝土梁并张拉预应力,5个月后(以减少徐变影响)分三大段吊装拱肋并张拉吊杆;最后用2台浮吊运至桥位处架设就位(图11下)。
02
日本西宫港桥该桥孔跨布置为252m,第一根短吊杆竖直外,其余网状斜吊杆,吊杆间距12m;桥面使用正交各向异性钢面板,车行道采用u肋加劲箱型系梁之间设置4道小纵梁,吊杆设置3道横肋。拱肋内倾约69°,箱型系梁顺拱肋斜向腹板设置拱肋用钢2120t;下弦用钢1825t;桥面用钢3370t;横撑用钢170t;全桥约825kg/㎡。







网状吊杆拱可用于高铁桥吗?
网状吊杆拱桥早已应用于多座公路桥梁和一些常规铁路桥梁。高铁桥梁更注重结构的动力行为,动挠度等变形也直接关系到轨道平顺性和行车舒适度。因此,高速铁路桥梁必须具有足够的竖向、横向和扭转刚度。
为考察网状吊杆拱桥用于高速铁路桥梁的可行性,笔者曾开展过主跨128m的网状吊杆高铁系杆拱桥(双线)的试设计研究。择要介绍如下。
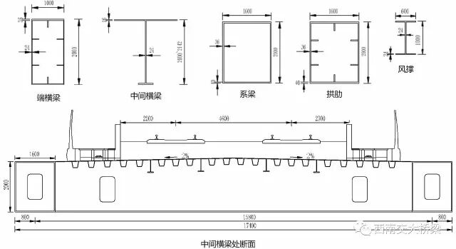
图12所示为试设计桥的三维示意和吊杆立面布置。采用下承式全钢拱-梁组合结构,Q345q钢,道砟桥面,跨度128m。拱肋采用提篮形式,倾角9?。拱轴线为圆弧线,矢高21.76m,矢跨比0.17。全桥设置2×46根直径80mm的圆钢吊杆,吊杆下端沿跨径等距分布,倾角在55?~80?之间取值。
图12 试设计桥的三维示意和吊杆立面布置
截面布置上,两根拱肋和系梁均为箱形截面,其间设置箱形端横梁和T形中间横梁,横梁上布置带倒T形小纵梁的正交异性钢桥面板。主要尺寸见图13。需要指出,拱肋和系梁的截面高度仅为2m,大约是目前国内高铁同等跨度钢系杆拱桥对应构件尺寸的60%弱。
图13 试设计桥的构件截面及尺寸图(单位:mm)
(下面的两段文字比较枯燥,不感兴趣者可直接略过。)基于《高速铁路设计规范》(TB 10621-2014),采用Midas/Civil软件建模,按ZK活载和13种荷载组合进行了静力分析和验算,结果如下。(1)变形:梁体竖向挠度21.6mm≈L/6000(L/1500,为相应的规范限值,下同),横向变位7.3mm≈L/17500(L/4000),扭转变形量0.8mm(1.5mm),梁端转角0.8‰(2‰);(2)应力:分析了拱肋、系梁、风撑、端横梁、中间横梁、小纵梁、桥面板和吊杆的应力情况,吊杆的最大拉应力不到170MPa,拱肋的最大压应力不到120MPa,其余构件的应力水平更低;(3)应力幅:吊杆的应力幅只有容许应力幅的0.25~0.6倍,梁构件的应力幅只有容许应力幅的0.2~0.5倍。可见,各项指标远小于规范限值。
采用Midas/Civil软建模,进行动力行为分析和验算,结果如下。(1)结构自振频率:一阶对称横弯f1 = 1.615Hz(0.667Hz,为相应的规范限值,下同),一阶对称竖弯f2 = 1.805Hz(1.334Hz,为跨度96m时的限值)。(2)车桥耦合分析:选取国产CRH2列车,速度等级120~250km/h,采用德国低干扰轨道谱生成的轨道不平顺数据,验算时采用最不利值。对结构,跨中竖向振动位移4.88mm,横向0.26mm(7.6mm);跨中竖向振动加速度0.35 m/s2(3.5 m/s2),横向0.17 m/s2(1.4 m/s2);对车辆,脱轨系数0.19(0.8),减载率0.19(0.6),横向力15.9kN(56.7kN);竖向加速度0.63 m/s2(1.3 m/s2),横向0.94 m/s2(1.0m/s2);舒适度竖向1.96,横向2.58(3)。可见,各项指标均满足规范限值。
以国内某客专线某钢系杆拱桥(采用刚性竖吊杆,跨度128m)为对象,对比了所设计的网状吊杆拱桥的用钢量。结果表明,后者比前者节省钢材约22%,达600余吨。
尽管还可进一步细化和优化,上述试设计结果已表明网状吊杆拱桥具有应用于客专及高铁桥梁的可观潜力。
结束语
系杆拱桥的发展,已逾一个半世纪。观其发展脉络,可体会出桥梁工程师们为追求结构更合理、材料更节省、造型更美观的目标而付出的持续努力。
网状吊杆系杆拱桥最能体现“拱肋受压,系杆受拉”的力学意图;在桥面较窄情况下,拱肋和梁的截面总高度与跨度之比可达到1/100。通过采用轻质组合桥面,可提升系杆拱桥的经济竞争跨径。同时,由于桥面板恒载受力小,其后期维修更换方便。供各位同仁可参考!
相关资料推荐:
https://ziliao.co188.com/p59810085.html
知识点:网状吊杆拱桥
0人已收藏
0人已打赏
免费3人已点赞
分享
桥梁工程
返回版块19.44 万条内容 · 655 人订阅
阅读下一篇
桥梁下部结构计算流程,非常经典~0 1 荷载及荷载组合 公路桥梁下部结构设计荷载分为三类,即永久荷载(恒载);可变荷载(按期对桥涵结构的影响程度又分为基本可变荷载(或荷载)和其他可变荷载);
回帖成功
经验值 +10
全部回复(0 )
只看楼主 我来说两句抢沙发