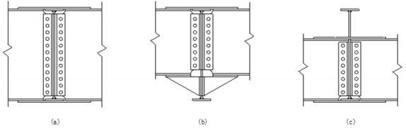
1、分类:按桥面位置的不同分为上承式桁梁桥、下承式桁梁桥、和双层桁梁桥2、组成:由主桁、联结系、桥面系及桥面组成

(一)主桁它是的主要承重结构,承受竖向荷载。主桁架由上、下弦杆和腹杆组成。腹杆又分为斜杆和竖杆;节点分大节点和小节点;节间距指节点之间的距离。

2、作用:联结主桁架,使桥跨结构成为稳定的空间结构,能承受各种横向荷载
3、纵向联结系分上部水平纵向联结系和下部水平纵向联结系;主要作用为承受作用于桥跨结构上的横向水平荷载、横向风力、车上横向摇摆力及离心力。另外是横向支撑弦杆,减少其平面以外的自由长度。
4、横向联结系分桥门架和中横联;主要作用为是增加钢桁梁的抗扭刚度。适当调节两片主桁或两片纵联的受力不均。

2、传力途径:荷载先作用于纵梁,再由纵梁传至横梁,然后由横梁传至主桁架节点。

(四)桥面桥面是供车辆和行人走行的部分。桥面的形式与钢梁桥及结合梁桥相似。
?弦杆的规格和大节点的个数较少,适应定型化设计,便于制造和安装
?我国铁路中等跨度(L=48m~80m)下承式栓焊钢桁梁桥标准设计。


?双重腹杆桁架(Parallel chord rhombic truss)
?适用于大跨度钢桁梁,如武汉、南京长江大桥和我国铁路标准设计(L=96m~120m)下承式简支栓焊钢桁梁桥。

主桁架的主要尺寸
?先确定桥梁跨度,再确定主桁架的主要尺寸包括:桁架高度、节间长度、斜杆倾角和两片主桁架的中心距。
?在拟定上述尺寸时,要综合考虑各种影响因素,相互协调,尽可能采用标准化和模数化,目的在于使设计、制造、安装、养护和更换工作简化及方便。

我国铁路桥标准设计,下承式桁梁跨度有48、64、80m等三种,全部采用三角形桁架,桁高11m,节间长8m,主桁中心距为6.4m。

?铁路钢桥:中、小跨径的桁架,上承式桁架的节间长度一般为3~6m,下承式桁架的节间长度一般为6~10m,跨径较大的下承式桁架节间可达12~15m。

?斜杆倾角与桁高、节长有矛盾时,可在合理范围内进行调整。

?下承式钢桁梁桥的主桁中心距还应满足桥梁建筑限界的要求,
?上承式桁梁桥的主桁中心距还要考虑横向倾覆稳定性的要求,抗倾覆稳定安全系数不得小于1.3。
? 竖向及横向刚度均比简支梁大 ,内力分布更趋合理 ;
? 跨度大于120m的多孔桥,采用连续桁梁较为合理 ,钢材比简支梁省约8~10%
?三孔跨度的合理比例是7:8:7,为了美观,常采用等跨布置 。
? 梁高:通常为跨度的1/7~1/8, 支座处可适当加高。

?对于挂梁及锚梁的跨中部分高度约为跨度的1/6.5~1/7



?便于采用全自动焊,矫正焊接变形较容易,工地连接螺栓安装方便
?组装、焊接、矫正焊接变形和在工地安装连接螺栓都比H形截面费工费事
?腹板内设有间距不大于3 m的隔板,为防锈,端隔板必须密封焊接
?(d)、(e) 截面适用于工厂焊制的上弦、下弦杆件

(i)(j)截面适用于铆接上、下弦杆(g)(h)所示截面适用于铆接的下弦杆和腹杆,节点板是贴于其竖板外侧
?同一主桁中各杆件的宽度b(指两节点板内壁间距)必须一致,使各杆件在节点处能用节点板相连
?上、下弦杆(chord)在各节间的高度应尽可能一致
?连续桁梁若杆高h不大于杆长的1/15,简支桁梁若杆高h不大于杆长的L/10,可不计算节点刚性次应力
?高度h有260、440、600、760、920、l100mm等多种。

?压杆钢板宽厚比bi/δi应满足局部稳定的要求,《桥规》规定

?刚度不足时,杆件在自重作用下会产生较大的挠曲,在活载作用下容易发生较大的振动,导致连接松动和降低疲劳强度,在运输安装过程中也容易发生变形。《铁路桥规》对杆件容许最大长细比的规定。《公路桥规》也有类似的规定,比下表稍松一些。

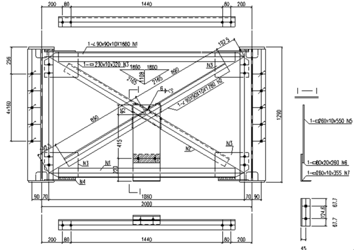
我国铁路下承式各种跨度的栓焊钢桁梁标准设计其桥面系采用统一布置及统一尺寸,见图7.2.2、图7.2.3、图7.2.4


纵梁平面

纵梁剖面


纵、横梁的连接形式

横梁与主桁连接形式
对于跨度大于80m的简支桁梁,一般在跨中的一个节间内应设有纵梁断缝。

钢桁梁的节点既是主桁杆件交汇的地方,也是纵、横联杆件及横梁连接于主桁的地方,它连结位于主桁、纵联、横联三个正交平面内的杆件,构造比较复杂。


2. 内插式节点


3.全焊节点

? 各杆件轴线应尽量在节点处交于一点,如有偏心,应计算偏心影响;对于联结系杆件偏心影响不大,可不考虑。
?所需的连接螺栓个数:主桁杆件应按杆件的承载力计算;联结系杆件按杆件内力计算。? 杆件进入节点板的第一排螺栓数,可适当少布置几个,以减少杆件的截面削弱。
? 弦杆在节点中心中断时,一般均需添设弦杆拼接板。
? 所有杆件应尽量向节点中心靠拢,连接螺栓应布置紧凑,使节点板平面尺寸小些,也有利于降低节点刚性次应力和增加节点板在面外的刚度。
? 为了加强节点板在面外的刚度、屈曲稳定和抗碰撞能力,必要时得在节点板的自由地段设置加劲角钢或隔板。

? 应避免不同平面内的栓钉钉头发生冲突。所有工地安装螺栓的位置,均应考虑施工时螺栓扳手工作的空间。
? 节点内不得有积水、积尘的死角及难于油漆和检查的地方。

4、联结系构造
(一)纵向联结系




(二)横向联结系

桁梁桥是由主桁架、平纵联、横联和桥面系组成的空间结构。空间桁架的结构分析,主要可分为两类。第一类方法是把桁架作为空间杆系结构,按结构矩阵分析的方法进行。第二类方法是把空间桁架转换成薄壁闭口截面梁,按弯曲扭转的结构进行分析

桁梁桥的简化计算方法是把钢桁梁的杆件内力分析分为两步进行:
第一步,把刚性节点的空间结构分解为纵梁、横梁、主桁、纵联、横联这样一些独立的平面结构分别进行计算,并假定各节点为铰接的。各平面结构只承受作用于该结构平面内的荷载,两个平面结构共有的杆件的内力按两个平面结构分别计算出的内力叠加。
第二步,采用近似方法计算在第一步中没有考虑的节点刚性和结构空间作用的影响。
一般把第一步按铰接平面结构算出的应力称为主要应力或主应力,而把第二步考虑节点刚性与结构空间作用影响算出的应力称为次应力。


1、活载发展系素的考虑在铁路钢桥设计中,为了保证在较长时期内能适应机车车辆载重量增大的需要,设计时应在现今使用的列车活载基础上预留一个发展系数。可采取二种方法:(1) 使计算活载等级大于现行运行列车的活载等级;(2) 使设计容许应力低于实际容许的应力。
设计容许应力究竞降低多少才合理主要考虑的因素有:(1) 钢桥合理使用年限(即设计基准期,一般为l00年);(2)活载的增长速度;(3)考虑应力储备所需附加投资的有效利用。在我国将钢桥所用钢材的设计容许应力按实际容许应力(通常称为检定容许应力)降低20%。

预留的活载发展系数:实际上能承担更高等级的活载(通常称为检定活载等级)与设计活载的比值。

(二) 活载内力计算 -1、活载发展系素的考虑

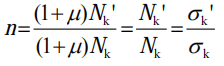
钢桁梁桥中某根杆件的恒载内力为Nd;设计活载内力为 NL,在设计活载和检定活载作用下该构件应满足:


对同一座桥中的不同构件,由于a值是不相等的,则n值也不同, n min… n i … n max 。n值小,杆件能承受的活载潜力也小些,故整个钢桁梁桥活载通过能力将由n最小的杆件控制,而所有n较大的那些较强杆件的潜力均不能充分利用。这显然是不合理的。解决这一矛盾的有效办法是将所有较弱构件的设计活载内力人为提高 η 倍,使各件的安全度相一致,达到与最强杆具有同等的检定等级,即做到ni =nmax 。

又根据


?桁架梁的弦杆、斜杆、竖杆及支座反力均需按照影响线计算最大荷载,影响线面积计算见图7-3-2;
?要考虑车辆及人群荷载的横向分布系数mc和m人 ;
?考虑车辆活载对桥梁的动力作用的冲击系数(1+ μ)。
计算原则:将纵横梁分别按简支梁计算内力,对支点弯矩进行调整 。
纵梁跨中弯矩及支点反力可按简支梁计算;纵梁支点负弯矩则按跨中弯矩的0.6倍计算。
《桥规》规定横梁近似按简支梁计算,跨度等于主桁中心距
端横梁采用与中间横梁相等的截面,一般内力不必检算;《铁路桥规》规定:起重横梁所受荷载按起顶重量P超载30%计算



?有承受支点弯矩的板件时:竖向角钢上承受支点反力的螺栓数要比按简支梁反力算出的数字增加10%。
?无承受支点弯矩的板件时:竖向角钢上承受支点反力的螺栓数,在纵梁腹板上的按简支梁反力增加20%;在横梁腹板上的按简支梁反力增加40%
?有承受支点弯矩的板件时:竖向角钢上承受支点反力的螺栓数要比按简支梁反力算出的数字增加10%。
?无承受支点弯矩的板件时:竖向角钢上承受支点反力的螺栓数,在横梁腹板上的按简支梁反力增加10%;主桁上的连接螺栓数:单线桥增加20%;双线桥及公铁两用桥应根据实际支点反力与支点弯矩的大小,通过计算确定。
?考虑拼接处构件有应力集中及局部偏心现象,节点板应力比较复杂,拼接板面积应大于杆件净面积10
?主桁杆件按杆件的承载能力计算;计算荷载为 Nj=A0[?]
?主桁腹杆可按1.1倍的杆件内力与75%的杆件净面积强度较大值进行计算;计算荷载为Nj=max{1.1N, 0.75A0[?]}

?斜交或平行于被连接杆件轴线的截面为0.75[?]
?可能破坏截面:1-2-3-4、1-2-3-5、1-2-3-6-7截面撕破

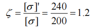
?检算所受剪力较大的7-7截面。根据平衡条件求该截面的法向力N和剪力Q,按偏心受力构件验算。

?3.腹杆与弦杆间节点板水平截面的法向应力与剪应力检算
?检算所受剪力较大的9-9截面。根据平衡条件求该截面的剪力T,计算剪应力和偏心力矩引起的法向应力。

(一)纵向联结系的计算计算杆件内力时,可将简支桁架桥的纵向联结系当作水平放置的简支铰接桁架计算

(一)桥梁挠度《桥规》规定:简支桁架桥由静活载(不计冲击力)所引起的竖向挠度铁路桥不应超过挠度的1/900 ,公路桥不应超过挠度的1/800 。
(二)预拱度《桥规》要求桥跨结构应设预拱度,对简支桁架桥而言,预拱度曲线应与恒载和一半静活载所产生的挠度曲线基本相同,而方向则相反。
(三)横向刚度《铁路桥规》要求:下承式简支桁梁及连续桁梁的边跨,其宽度与跨度之比不宜小于1/20,连续梁中跨的宽跨比不宜小于1/15。

相关资料推荐:
[湖南]双塔双跨钢桁梁悬索桥散索鞍门架设计图纸(附36页计算书)
https://ziliao.co188.com/d62752809.html
知识点:钢桁梁桥设计与计算
全部回复(0 )
只看楼主 我来说两句抢沙发