STONE CRAFT
园林中常用坐凳做法大样
坐 凳
SITS STOOL
园林不仅具有美感更应赋予实际的体验感才是成功的设计。园林景观设计中坐凳能提供给人休息、聊天的公共设施,坐凳的设置地点要结合实际周边空间来考虑,使得园林环境中能产生各种趣味性和功能性。

//
园林中坐凳是重要的景观,在设计中扮演着重要的景观元素和角色,这就需要我们了解做的作用才能更好的应用到设计中。
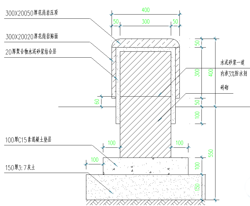
石材坐凳
Stone benches


一般作为种植池和坐凳两个功能相结合
▲ 树池平面图
▲ 树池剖面图
具有线条美感
▲ 弧形坐凳平面图
▲ 弧形坐凳立面图
▲ 弧形坐凳剖面图
形状特别吸引游人的目光
▲ 标准长椅模块
▲ 文化长廊坐凳立面图

为行走的游人提供短暂的休憩空间

形态各异的造型和材质布置在园区中能成为一个景观节点

可以把空间围合也能保护树木一般作为种植池和坐凳相结合


0人已收藏
0人已打赏
免费0人已点赞
分享
园林施工图
返回版块76.58 万条内容 · 324 人订阅
阅读下一篇
景观施工图-从水刷石/水洗石/洗米石 到 胶粘石水刷石、水洗石、洗米石是同一种东西,胶粘石是工艺上改进了一些,它们从视觉上都很相似,都是一些彩色小石子粘到墙面或者地面上,作为一种装饰。 最早见到这种施工工艺是小时候,80年代末,老家盖房子,外墙面就是用的水刷石。
回帖成功
经验值 +10
全部回复(1 )
只看楼主 我来说两句 抢板凳回复 举报