你知道什么是条形基础吗?其实条形基础计算长度大于宽度的一种混凝土基础形式,常用于结构不是大的砖混建筑,如别墅,农村自建房等。今天就给大家分享一下条形基础。

图1
一、认识条形基础
条形基础是指基础长度远远大于宽度的一种基础形式。按上部结构分为墙下条形基础和柱下条形基础。基础的长度大于或等于10倍基础的宽度,

图2
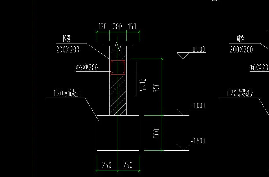
二、条形基础的构造
条形基础从截面上看与独立基础一样,呈阶梯形,且根据基础深度分层分段浇筑混凝土,是底部做成宽大的混凝土墩以支撑上部的构件。不同的是独立基础基础支撑上部的柱子,如果有一排柱子,或者连续的墙,就要加长做成条带形,就形成了条形基础,能承载上部墙面荷载。

图3
三.条基工程量相关计算
混凝土条基:以体积计算


图4
混凝土条基A轴:0.5*0.5*(3.55+3.6+4.15+0.3)=2.9^3
条基模板量的计算:只需要在条基的侧面装模板
A轴条基模板工程量:0.5(高)*(3.55+3.6+4.15+0.3)*2(两边都需要支模版)=11.6m^2
0人已收藏
0人已打赏
免费1人已点赞
分享
地基基础
返回版块12.11 万条内容 · 717 人订阅
回帖成功
经验值 +10
全部回复(0 )
只看楼主 我来说两句抢沙发