土木在线论坛 \ 建筑结构 \ 混凝土结构 \ 剪力墙钢筋的标注及排布

剪力墙钢筋的标注及排布

发布于:2024-03-19 16:37:19 来自:建筑结构/混凝土结构 [复制转发]
从今天开始,我们开始剪力墙的讲解,剪力墙的钢筋相对比较复杂,包含的内容比较多,我们就从最基础的开始,今天讲剪力墙钢筋的标注及钢筋排布。

1、剪力墙钢筋标注

剪力墙的钢筋标注形式有很多,今天就讲几个常用的,常用的这几个理解了,其他的标注形式也就会分析了,先看一个剪力墙的平面图,如图1所示。
图片
图1
这个图,在一般的住宅楼里经常会看到,里面有连梁、暗柱、剪力墙,平面图只是标注了名称,连梁和暗柱今天不讲,先讲剪力墙,如图2所示。
图片
图2
图2上墙的名称:Q2、Q3两个墙,只有名称没有配筋,配筋会怎么标注呢?如图3所示。
图片
图3
这个是把剪力墙的所以信息以一个表格的形式罗列出来,我们就叫它表格标注方法。标注的很详细,剪力墙的名称、所在楼层、墙厚、水平筋、垂直筋、拉筋。再来看另外一直标注方式,如图4所示。
图片
图4
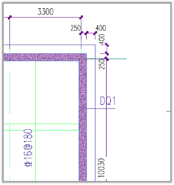
这个也是在墙上标注了名称:DQ1,这个名子怎么解释呢?原则还是一样的,是每个字的第一个字母,挡土墙,这个墙一般都会出现在地下,墙外面就是回填土,所以叫挡土墙,这个类型的墙钢筋相对比较多,表格形式不能完全体现,所以就把墙的剖面图画出来,直接标注钢筋,也有的图纸是在剖面图只标示意,钢筋也在表格里。下面就来看一下钢筋的标注。如图5所示。
图片
图5
图5上很多钢筋,除了水平筋、垂直筋、拉筋以外,还有垂直附加筋,压墙也压脚筋。还有一种钢筋,是带有英文字母缩写的,如图6所示。
图片
图6
这个钢筋经常会有同学在问,下面就给大家说一下这些字母都代表什么钢筋,如图7所示。
图片
图7
这个看懂了并不难理解。常用的钢筋标注,我们就讲这三种类型,下面总结一下。
剪力墙钢筋标注:
1、表格形式;
2、墙身大样;
3、平面图。
剪力墙钢筋:
1、水平筋;
2、垂直筋;
3、拉筋;
4、附加钢筋;
5、压墙筋和压脚筋。
标注我们看懂了,那这些钢筋在剪力墙里是怎么排布的,必须有这个概念,对计算钢筋才有帮助。下面就一个一个来看钢筋的排布,也是最基本的,下面看水平钢筋,如图8所示。
图片
图8
这个好理解,图纸是剪力墙的立面图,蓝色的线条是墙的水平筋,下面看一下垂直筋,如图9所示。
图片
图9
再看拉筋,如图10、图11所示
图片
图10
图片
图11
这两个图都是拉筋,但钢筋排数不同,量相差一半,这个是大家在做实际工程要注意的点。上面这几个图都是钢筋排布的平面图,下面为了让大家更清晰理解钢筋排布,先来看一下钢筋的三维图。如图12所示。
图片
图12
图12是2排钢筋的排布,剪力墙的钢筋都是钢筋网片立着放,墙左边一排,墙右边一排。3排钢筋的排布如图13所示。
图片
图13
三排钢筋就是在两排钢筋中间多一层网片,下面在看一个四排钢筋的三维图,如图14、图15所示。
图片
图14
图片
图15
不管是几排的钢筋,其实道理是一样的,都是几个网片,下面再看一下几排钢筋针对的拉筋剖面图的显示,如图16、图17所示。
图片
图16
图片
图17
通过上面里,三维、剖面图,大家肯定对剪力墙的钢筋排布有个基本的理解了,这对于后面讲钢筋的算法有很大的帮助。


全部回复(0 )

只看楼主 我来说两句抢沙发
这个家伙什么也没有留下。。。

混凝土结构

返回版块

140.17 万条内容 · 2217 人订阅

猜你喜欢

阅读下一篇

长年做混凝土结构设计,何曾手算过一片剪力墙的配筋?

起因: 8 度 0.2g ,框剪结构,剪力墙 配筋大,水平计算配筋也很大,对于不是经常做高烈度区的来说,对剪力墙的计算配筋这么大感到惊奇。 对6、7度区的项目,墙体配筋大都是构造,有计算配筋也是很小,很少有人去手算,更关键的是手头的参考书里面很少见有手算剪力墙配筋的算例。 通常,大学教育及注册结构考试教会了我们手算板、梁、柱、地外墙等构件在各种内力情况下的配筋,但似乎没有遇见过让手算一片剪力墙的配筋。

回帖成功

经验值 +10