现代日本木结构住宅常见用于3层及3层以下的独立民居,在保留传统梁柱式木结构特点的基础上,结合了轻型木结构的部分做法,采用斜撑或剪力墙抵抗侧向荷载,梁柱节点常采用榫卯与金属连接件组合的连接方式, 既传承了亚洲传统的木结构美学,又引进了新型木结构技术,良好地体现了传统与现代的结合。本文介绍了日式小截面木框架剪力墙结构体系的概况。
1??体系构成
1.1??结构布置
日式小截面木框架剪力墙结构体系由梁柱框架体系传递竖向力,由斜撑式或覆面板式剪力墙抵抗水平力,图1展示了该体系的各部分组成构件名称。该体系通常采用混凝土条形基础或混凝土筏板基础,在混凝土基础上搭建木质条形基础,将整体结构架空于地面上。基础搭建完成后在地梁上立柱搭建二层楼面梁,再插斜撑或钉覆面板构成抵抗水平力的剪力墙。

图1??日式木结构住宅结构示意
1.1.1??柱的布置及规定
建筑的角部柱通高至屋面,称为“通柱”或“轴柱”;其余柱搭建于横梁之上,称为“管柱”,竖向荷载由屋面传递至横梁,再由横梁传递至“通柱”或“管柱”。抵抗水平作用力的、具有斜撑或钉接覆面板的剪力墙中的小墙骨柱称为“间骨柱”,通常仅起构造作用,不传递竖向荷载。
1.1.2??剪力墙的布置
计算水平作用下剪力墙的数量时,《建筑基准法》中采取了“壁倍率”法。关于壁倍率, 《建筑基准法》规定“当单片剪力墙的承载力达到1.96?kN/m时,该墙的壁倍率为1”,若某方向上布置m米壁倍率为n的剪力墙,则该方向的总抗侧承载力为(m×n ×1.96)kN。
条例46条给出的覆面板壁倍率是最保守的估计值,未根据钉的类型、钉的间距和覆面板厚度给出不同的壁倍率,其应用条件在本文1.2节给出。
日本木结构多采用“容许应力法”验算地震作用,包括两水准的设计。
《建筑基准法》中分“重型屋面”和“轻型屋面”两种情况给出3层及以下住宅建筑在地震作用下每层楼需要的剪力墙系数(表1)。
表1??地震作用下的剪力墙系数aE cm/㎡

注:当建筑地基为软弱地基时,表1中系数应放大1.5倍。
楼层最小总剪力墙壁倍率按下式求得:
β=aE×AE
式中:β为楼层最小总数剪力墙壁倍率;aE为表1所示剪力墙系数;AE为该楼层建筑投影总面积。
在风荷载作用下,《建筑基准法》也根据不同地区给出了相似的剪力墙系数表,剪力墙数量与地震作用下剪力墙数量估算方法相似:
β=aw×Aw
式中:aw为风荷载作用下的剪力墙系数;Aw为楼层所受风荷载面积。
采用该法可快速估算建筑物所需剪力墙的数目,缩短了设计周期,提高了设计效率。
1.2??剪力墙构造要求
对于斜撑式剪力墙,受拉支撑应选择截面不小于15?mm×90?mm的木材或直径不小于9?mm的钢筋;受压支撑应选择截面不小于30?mm×90?mm的木材。对于不满足30?mm×90?mm 的斜撑,即使受少量的压力,也忽略其受压斜撑的作用而视作受拉斜撑。斜撑式剪力墙壁倍率的应用条件为:墙宽(边骨柱到边骨柱的距离)不小于90?cm,墙高与墙宽的比值不大于3.5,管柱与管柱或管柱与通柱之间的间距不得大于2?m,且应交替设置斜撑(图2)。

图2??斜撑式剪力墙可应用壁倍率的高宽比例规则
对于覆面板式剪力墙,墙的刚度和强度主要由覆面板种类和覆面板与木骨架之间钉连接的性质决定。在受剪情况下,每片覆面板均独立发生旋转变形,因此日本法规中对覆面板式剪力墙壁倍率的高宽比应用规则相较于斜撑式剪力墙的高宽比规则宽松:单片覆面板式剪力墙的最小宽度不小于60?cm,且高宽比应不大于5。由于覆面板式剪力墙的刚度由钉列的转动惯性矩决定,而钉列的转动惯性矩与钉的布置以及覆面板大小有关(图3)。

图3??覆面板式剪力墙可应用壁倍率的高宽比例规则
日式覆面板式剪力墙通常可分为剪力墙、准剪力墙、腰壁、垂壁(图4)。规范中规定的壁倍率通常指覆面板四周均与骨架钉接的剪力墙的壁倍率,其他类型的剪力墙承载力和刚度可通过计算或试验得到。

图4??日式小截面木框架剪力墙体系中覆面板式剪力墙的分类
2??日本标准中平面规则性检验的方法
《建筑基准法》中给出了“四分检验法”和“偏心距检验法”2种检验平面布置规则性的方式。“四分检验法”,通常用于检验直接用壁倍率法作为剪力墙承载力设计值的常规小截面木框架剪力墙结构体系;“偏心距检验法”,通常用于检验采用试验值或计算值作为剪力墙承载力设计值的小截面木框架结构体系。
2.1??四分检验法
将建筑物的各层平面分别在x水平方向和y水平方向四等分,分别计算各水平方向两端1/4进深部分(图5)的总墙体壁倍率,使得
βx1/βx2≥0.5,且βy1/βy2≥0.5
式中:βx1为x方向两端1/4进深部分墙体壁倍率中较小值;βx2为x方向两端1/4进深部分墙体壁倍率中较大值;βy1为y方向两端1/4进深部分墙体壁倍率中较小值;βy2为y方向两端1/4进深部分墙体壁倍率中较大值。

(a)

(b)
图5??四分检验法
(a)x方向计算时;(b)y方向计算时
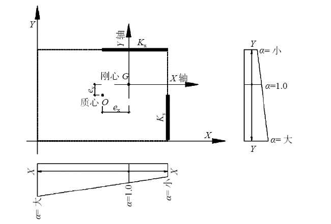
2.2??偏心距检验法
偏心距检验法即根据有效剪力墙线上的墙体总刚度,算出平面布置的刚心与质心的偏心距离,使该值小于一定规范限值。具体计算指标及判断方法如图6所示。
其中,
式中:Rex为x方向的偏心率;Rey为y方向的偏心率;ey为y方向的偏心距离,即刚心和质心在y方向的距离;ex为x方向的偏心距离,即刚心和质心在x方向的距离;rex为x方向的回转半径;rey为y方向的回转半径;∑Kx为x方向墙体的刚度总和;∑Ky为y方向墙体的刚度总和;KT为整体刚性指标;Jx为以刚心为坐标原点,x方向的墙的刚度乘以墙所在位置y坐标的平方的总和;Jy为以刚心为坐标原点,y方向的墙的刚度乘以墙所在位置x坐标的平方的总和。

图6??偏心距检验法
还可算出每条有效承重墙线上墙体的扭转校正系数:

式中:αxi为x方向上第i条有效承重墙线上墙体的扭转校正系数;αyj为y方向上第j条有效承重墙线上墙体的扭转校正系数;∑Kxi为x方向上第i条有效承重墙线上墙体刚度总和;∑Kyj为y方向上第j条有效承重墙线上墙体刚度总和;y为以刚心为坐标原点,x方向墙所在的有效承重墙线到刚心的距离,与重心在同一方向为正,反之为负;x为以刚心为坐标原点,y方向墙所在的有效承重墙线到刚心的距离,与重心在同一方向为正,反之为负。
即按刚度分配后,由于刚心与重心不重合,会产生扭矩,为平衡扭矩会再次分配剪力,此时的剪力等于该条有效承重墙线上墙体的扭转校正系数乘以扭转分配前的剪力。
根据GB 50011—2010《建筑抗震设计规范》(2016年版)3.4.3规定,可以扭转校正系数判断位移比是否小于1.2:

3??设计算例
某川西乡村民居建筑,建筑面积204.46?㎡,高8.706?m。基本雪压0.10?kN/㎡;基本风压0.30?kN/㎡;地面粗糙度B类;抗震设防烈度为7度第三组、设计基本地震加速度为0.1g,场地类别III类。该建筑的平面、立面分别如图7所示,表2为该建筑采用的材料及自重。


(b)

(c)
图7??设计算例(川西某民居)
(a)1层平面;(b)2层平面;(c)剖面图
表2??主要建筑材料的自重荷载 kN/㎡

一般形式的隐柱式四周钉接式剪力墙可根据覆面板厚度、钉子长度、钉间距查GB 50005—2017《木结构设计标准》附录N的表N.0.1,得到单位长度剪力墙的强度设计值和刚度设计值,并进行下一步计算。
本算例采用隐柱式两边接钉式剪力墙(图8),并根据《建筑基准法》中给出的算法计算该剪力墙的强度设计值和刚度设计值,得到每片该类型剪力墙的设计强度为2.34?kN,刚度K0为556.14?kN/rad。

图8??剪力墙示意
根据GB 50009—2012《建筑结构荷载规范》计算结构所受风荷载标准值,并采用底部剪力法计算地震作用标准值,根据下式计算剪力墙所需片数:
式中:Qw为风荷载标准值;QE为地震作用标准值。
计算结果列于表3,1层剪力墙及2层剪力墙的布置分别如图9所示。
表3??剪力墙计算结果


(a)

(a)
图9??剪力墙墙的布置
(a)1层墙;(b)2层墙
3.1??层间位移角验算
每片墙的刚度为556.14?kN/rad,求得x方向的最大层间位移角为1/267,y方向的最大层间位移角为1/252,均小于1/250,满足GB 50005—2017《木结构设计规范》规范要求。
3.2??扭转验算
经计算,Rex=0.125<0.3,Rey=0.022<0.3,满足日本规范要求。x方向墙体位移比为1.09<1.2,y方向墙体位移比为1.021<1.2,满足GB 50011—2010《建筑抗震设计规定》第3.4.3条要求。
4??结论
小截面木框架剪力墙体系在日本已得到了较全面的发展,其壁倍率设计法和“四分检验法”可简便、高效地计算体系的最小剪力墙长度,并判断剪力墙布置是否会造成结构整体发生扭转;而采用“偏心率检验法”,则可较好地与我国抗震规范中的指标判断法相结合,快速判断体系的平面规则性。
未来可考虑结合我国的抗震设计方法,在我国木结构相关规范或标准中引入日式小截面木框架剪力墙体系的设计方法,提高我国的设计效率,推动木结构住宅的发展。
0人已收藏
0人已打赏
免费1人已点赞
分享
混凝土结构
返回版块140.17 万条内容 · 2215 人订阅
回帖成功
经验值 +10
全部回复(1 )
只看楼主 我来说两句 抢板凳《建筑基准法》中分“重型屋面”和“轻型屋面”两种情况给出3层及以下住宅建筑在地震作用下每层楼需要的剪力墙系数。
回复 举报