今天以混凝土框架结构节点区抗剪性能为对象再次展开讨论:
一、节点区内的剪力为柱内剪力的5~6倍
(a)一榀框架

(b)侧向变形
图1 框架承受侧向力及其变形趋势
在图1(a)所示的单榀框架结构中,在顶部承受一水平集中力,可以代表水平风或水平地震作用下的基本受力模式。其中的局部梁柱单元CDEFGH节点所围区域,在水平变形后的特征如图1(b)所示,层间侧移角φ大于梁柱节点的转角θ,梁柱在节点区域的弯曲曲率相反,互为平衡。局部节点的梁柱关联变形及杆件弯矩分布如图2所示。



图2 杆件变形及弯矩分布
在截取上图杆件反弯点之间的隔离体后,从图3可以看出,在水平力作用下,梁柱杆件围绕节点的平衡形成后,在隔离体的上柱内承受向右侧的剪力,在隔离体下层柱则承受向左的剪力;在框架梁内,由于与柱端弯矩平衡,则右侧梁为向上剪力,左侧梁为向下的剪力。

图3 梁柱节点区隔离体变形及杆件内剪力示意

图4 框架梁邻近节点区截面的拉压力偶
假定框架层高为H,反弯点均在柱高中间位置,柱所受剪力为V,上下柱在节点部位弯矩分别为VH/2,总和为VH,此弯矩由梁端弯矩总和平衡。假定每侧梁在节点外侧弯矩为VH/2,由于梁高一般为层高的1/6~1/7,梁内纵筋内力臂长度与梁高相差不大时,则会在梁内纵筋形成3V~3.5V的拉压力,两侧梁在节点外侧同高处的受力刚好同向,则节点区内由于框架梁纵筋拉压形成的错节点剪力为6V~7V。
二、节点区内的剪力方向与柱内的剪力方向相反
根据图5所示,在围绕节点的杆件反弯点所形成的隔离体内,框架柱内的剪力方向,与节点区内由于框架梁拉压纵筋形成的剪力方向刚好相反。柱端弯矩在柱纵筋内形成的拉压力偶与框架梁内的拉压力偶共同作用,会产生和柱内剪切裂缝相反方向的主拉应力,并因此可能开裂并造成节点区剪切破坏。


图5 节点区内的剪力方向及混凝土开裂方向
由于柱内剪力与节点区内梁形成的剪力相反方向,所以节点区内的剪力水平,大致为5V~6V。
三、节点区的抗剪承载力如何考虑
上述分析之后,大家不仅要疑问,在节点区内有这么大的剪力,如果柱身剪力本身就很大的话,那节点区如果配置和柱身一样的箍筋,甚至是按柱端加密区配置,还能保证其继续承载吗?诚然,我们先不说能否继续正常工作的可能,至少我们对节点区的箍筋设置、混凝土浇筑密实度等需要引起足够多的重视,尤其一线设计人员以及现场施工技术人员,必须加强对节点区性能的保证。
由于节点区梁高和柱宽尺寸比较接近,在节点区内的剪切破坏,类似于梁构件剪跨比较小时的受力形式,即达到极限状态时发生斜压破坏,受压对角线上的混凝土受到另一个对角线方向的拉力影响,最终裂成多个棱柱受压失稳破坏(图6(a))。

(a)对角线斜压受力
(b)斜压破坏的承载力
图6 节点区的受剪破坏模式及斜压破坏承载力
从剪跨比较小的梁截面受剪试验结果(图6(b))可知,其无腹筋梁斜截面承载力可达到2.5ftbh0,即斜截面允许受剪限值Vmax=0.25fcbh0。从另一个角度理解时,对角线斜柱截面约为1/3~1/2的柱截面宽度,其受压承载力约为1/3~1/2 fcbh0。这样看来,节点区极限剪力比柱身较高剪跨比时的极限剪力会高一些,如果采取斜拉筋等措施约束斜压棱柱或限制斜裂缝,则会增加其极限承载力(图7)。当斜筋不好设置时配置比柱身加密区更多更粗的箍筋,也可达到约束节点区混凝土的目的。


图7 节点采用交叉斜筋
四、钢框架与混凝土框架节点区抗剪的异同
在现浇钢筋混凝土框架结构中,图4所示的节点区梁内纵筋的拉压力偶,由于有楼板的存在,使得节点内上部水平剪力大部分通过楼板等传递,最终水平极限荷载比试验中的纯框架节点提高许多。而钢结构框架中,钢格板楼面活花纹钢板楼面等,很难与框架梁上翼缘共同工作,节点区上翼缘的拉压力无法通过楼板传递,造成的节点内水平剪力会比较大。另外,钢板与混凝土的抗压或抗剪破坏机理不同,其加强方式也有所区别。
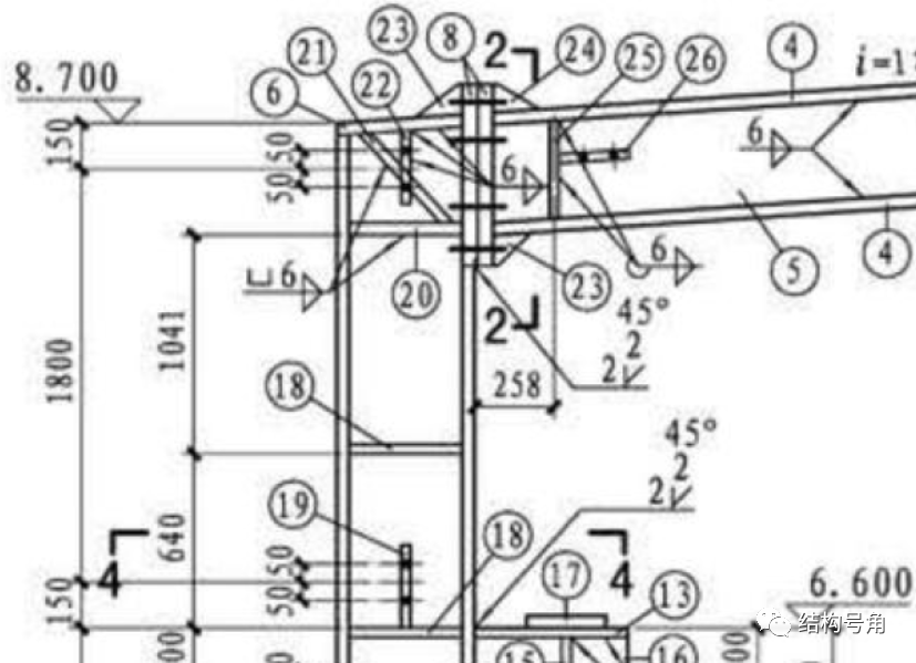
门式刚架的节点区,有时也会因节点区抗剪强度或刚度不足而予以加强(图8)。大家觉得这种斜向加强肋,是为了竖向荷载下的抗剪加强,还是水平风荷载下的节点区加强呢?

图8 门式刚架端部节点区加强示意
0人已收藏
0人已打赏
免费2人已点赞
分享
钢结构工程
返回版块46.53 万条内容 · 1214 人订阅
回帖成功
经验值 +10
全部回复(0 )
只看楼主 我来说两句抢沙发