近年来,我国建筑业已经进入到新建与维修并进阶段,在加固、改造已成为必然趋势的前提下,既有建筑物作为加固、改造的基础,已经成为必不可少的一部分。而在既有建筑物的加固与改造之前,又必须进行检测与鉴定,在既有建筑物的现场检测过程中,不可避免会出现一些没有设计图纸或设计图纸缺失的项目。本文主要分享几个无图纸既有砌体结构建筑的典型案例 ,并总结和引申无图纸既有砌体结构建筑检测时的要点。

|
|
|
|
|
(2)房屋内部分业主对承重墙体存在拆改现象,常见的拆改情况如下图3~图4。
|
|
|
|
|

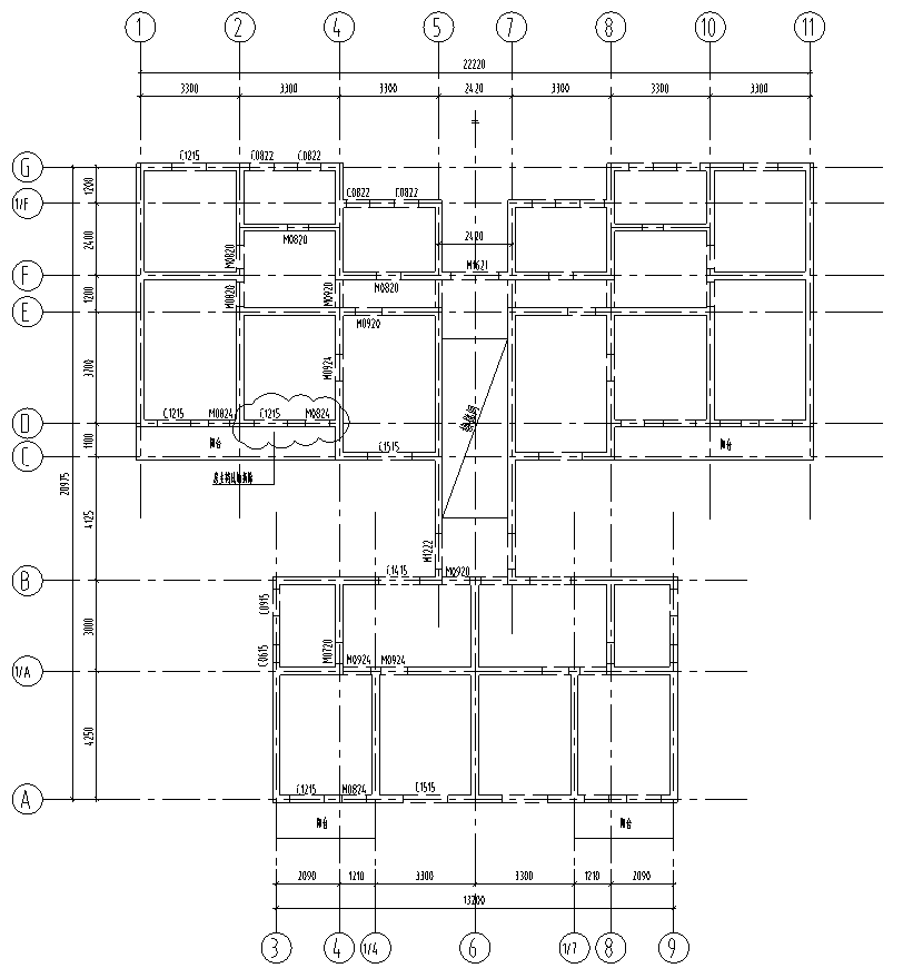
某建筑平面图见下图5,该房屋总共3层,建造于80年代,结构形式有钢筋混凝土框架结构、单层砌体空旷厂房等,设计图纸等缺失,该房屋楼面板均采用现浇钢筋混凝土板,屋面板采用现浇钢筋混凝土板、预制钢筋混凝土圆孔板、钢桁架加石棉瓦屋面,委托方对该房屋的改造加建等情况不详。在现场检测过程中,主要发现的问题如下。
|
图5 1层建筑平面布置示意图 |
|
|
|
图6 两区域交接位置连接情况 |
图7 两区域交接位置连接情况 |
对上述案例一和案例二进行总结和扩展,无图纸既有砌体结构建筑现场检测时的要点有:
(1)确定结构类型、建筑用料、房屋砌法。常见房屋类型的有砖木房屋、砖砌体房屋、砖混房屋(又分为底框房屋、内框架房屋等)、混合结构房屋等;建筑用料一般是烧结红砖或青砖,实心墙房屋砌法一般是全顺砌法、一顺一丁砌法或梅花丁砌法等;空斗墙房屋砌法一般是无眠空斗法、一眠多斗法等。
|
|
|
图8 墙体灰缝厚度大于12mm |
图9 空斗墙砌筑方法不符合规范要求 |
0人已收藏
0人已打赏
免费0人已点赞
分享
砖混结构
返回版块10.11 万条内容 · 448 人订阅
阅读下一篇
砌体结构受压验算相关问题分析YJK砌体结构以门、窗间墙段为单元验算墙体轴心受压承载力。砌体结构的受压验算分为两种计算模式:当砌体墙中无构造柱时,按无筋砌体进行受压验算;当砌体墙中有构造柱时,按组合砖墙进行受压验算。对于长度小于250mm的小墙段,软件不作墙体受压验算。 无筋砌体受压验算计算公式:
回帖成功
经验值 +10
全部回复(0 )
只看楼主 我来说两句抢沙发