如果仅是设计一根箱型悬臂梁,我想绝大部分的结构工程师都会轻车熟路、信手拈来。
可当问题变成高层剪力墙结构这种空间结构体系时,便可能会无从下手,较无章法。
作为在一线工作的结构工程师,大白也同样经历过这种迷茫阶段。
爱因斯坦说过:“一切都应该尽可能地简单,但不要太简单”。
细心的朋友可能会发现,前面六个章节,多个工程实例以及1万多字,似乎只是用一种相对复杂的方法尝试回答这样一个问题:
通过"剪力墙结构设计进阶之路"这一系列的文章,大白逐步记录了自己在高层剪力墙结构设计方面的思考和研究历程,并大体建立起了剪力墙结构刚度形成、变形控制、墙体布置和调整效率等方面的思维框架。
大白认为:
为了论证这个思路,大白做了如下工作:
首先,在剪力墙结构设计进阶之路(二)——减位移比可以加刚度?一文中,推导出高层结构层间位移角与层间位移比的内在联系;
其次,在剪力墙结构设计进阶之路(三)——控制层间平动位移的路径里,尝试解释了高层建筑结构层间平动位移与顶点平动侧移的关联;验证了约束高层建筑结构的顶点平动侧移,亦限制了其中部及以上楼层的层间平动位移角的控制思路;
再次,在剪力墙结构设计进阶之路(五)——跟着变形调模型(理论篇)中,研究了高层剪力墙结构顶点平动侧移的控制策略,指出高宽比和配套的调整方案是影响高层剪力墙结构顶点平动侧移控制效率的关键因素;
最后,在剪力墙结构设计进阶之路(六)——有些墙体为什么重要?内,分析了剪力墙布置和调整的结构效率问题;明确了抗侧力体系构建和提高墙体调整效率的首要原则;提出充分利用结构工程中的“马太效应”,提高结构调整的效率的建议。

大白 项目实景
控制层间位移角的策略
(a)优先控制结构非偶然偏心状态下的位移比
一般情况下,宜结合位移比数值,初步判断扭转振动反应的量级;
调整结构布置,尽可能减小楼层刚、质心之间的距离,以控制各楼层的位移比,提高结构的名义侧移刚度,进而控制楼层的层间位移角。
(b)基于侧移变形形态的调整策略
理想的情况,楼层的刚、质心完全重合,扭转振动反应完全消除,结构的抗侧刚度得到充分发挥。
由于实际工程条件约束,一般难以实现该目标。当楼层的位移比控制的差不多了,而层间位移角仍无法满足要求时,说明结构的实际抗侧刚度不足,需进一步加强。
此时,应结合各主轴方向的侧移变形形态,选择合理的结构布置调整方案:
弯剪型时重点加强横墙的刚度,弯曲型时着重增强翼墙的共同作用;
地震工况下,需要严格执行上述策略,避免层间位移角难以控制;
确定调整方案后,将结构材料均匀、对称地设置在侧移刚度增量敏感性高的墙体(例如满跨布置于平面最大宽度的组合墙体)上。
通过高效约束顶点平动侧移,以实现控制结构中部及以上楼层的层间平动位移角,进而控制结构的层间最大位移角。
结合多年工程实践,大白绝对可以打包票,该策略框架是有效和易于操作的。
展 望
从一系列的疑问开始,大白在解决疑问的路途上,被一个又一个新的问题,带到了目前这个阶段。
文章的最后,大白想展望下这套思维框架还需要进一步解答的问题。
前文在讨论剪力墙布置和调整的结构效率问题时,还未回答一种常见的情况:
如果因为建筑的功能需求,结构布置无法从效率出发,构建以最优横墙为主的抗侧力体系。
那么在随后的结构方案调整之前,我们仍有个非常重要的任务,就是怎样找出现有结构平面内的抗侧刚度最大的主要横墙?
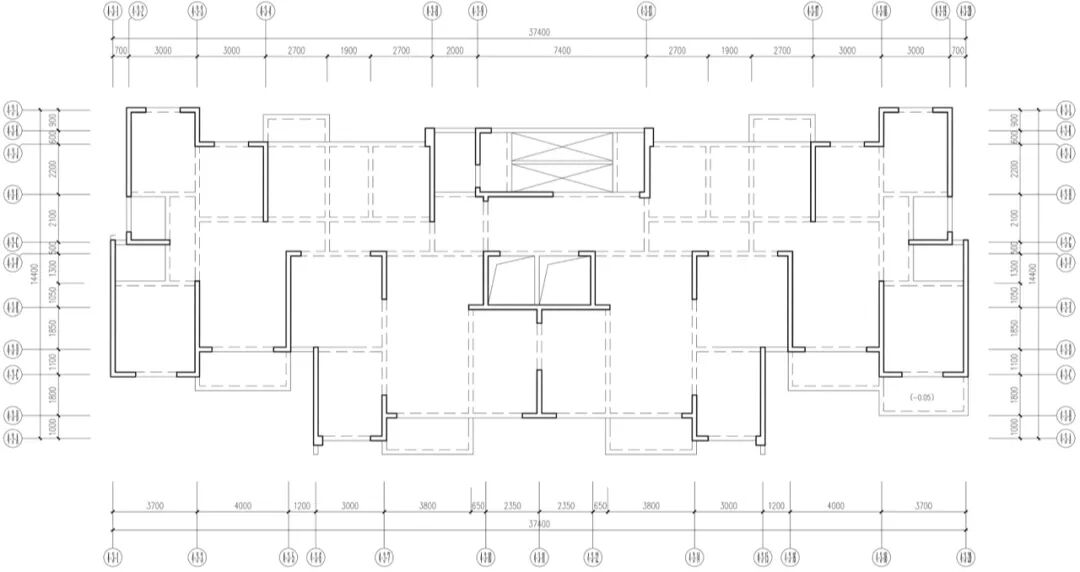
用一个实际工程案例,留给大家一道思考题吧,欢迎大家踊跃私信,你们觉得下图的主要横墙在哪里,判断依据是什么?

某项目楼层结构平面布置图
来源:构思结构,如有侵权请联系删除
0人已收藏
0人已打赏
免费1人已点赞
分享
混凝土结构
返回版块140.17 万条内容 · 2215 人订阅
阅读下一篇
剪力墙结构设计进阶之路(六)——有些墙体为什么重要?在进阶之路(五)中,大白提出了基于侧移变形的结构调整策略。 但在解决实际工程问题时,大家肯定会有这样的疑问: 结构任一主轴方向的变形是非常直观的,配套的结构调整方案也弄懂了,只是在上手时,依然无从下手。 大白也经历过同样的阶段,材料加在哪片横墙上?或是哪片横墙的翼缘上?是否存在一些指导性的原则? 大家都清楚,建筑专业对平面布局、功能需要和立面要求等等需求,限制了剪力墙结构的墙体位置、长度和开洞方式,各片横墙的侧移刚度难以相同。
回帖成功
经验值 +10
全部回复(0 )
只看楼主 我来说两句抢沙发