建立起顶点平动侧移和楼层层间最大平动位移角的联系后,接下来就可以通过干预结构的实际刚度,量化分析其对顶点平动侧移的影响,进而估量其对层间最大平动位移角的影响。
傅总《实用高层建筑结构设计》书中使用的矩形实心截面梁无法实现这个需求,因为:
1)如果说建筑平面的外轮廓尺寸就是悬臂梁的截面尺寸,那么楼层的竖向构件只能均匀弥散在整个实心矩形梁截面内。建筑外轮廓不变的情况下,无法展现不同结构布置方案的差异。
2)结构的顶点平动侧移无法与平面竖向构件布置方案联系起来,就没办法从宏观上判断不同结构布置方案的优劣。
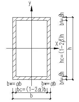
针对以上问题,大白想到了箱型截面梁,它的受力特点和剪力墙结构近似:
腹板(横墙)抗剪,翼缘(有效翼墙)抗弯。
调节腹板或翼缘的尺寸,代表结构横、翼墙布置方案的调整,然后结合顶点平动侧移的变化情况,让我们直观判断调整方案的优劣。

(a)弯曲侧移变形 (b)剪切侧移变形
剪力墙结构近似侧移变形简图
要想量化变形的结果,首先要确定截面的尺寸。
大白利用平面布墙率指标n来表征箱型梁的截面尺寸,通常项目可取n=4%~7%。
所谓平面布墙率,就是建筑标准层平面内,全部剪力墙投影面积占楼层结构面积的比例。

箱型梁典型断面
结合简图及公式,先尝试分析了箱形悬臂梁的变形特征:

表格说明:
1、高宽比是影响高层剪力墙结构侧移变形形态的主要指标;
2、无法通过调整墙体布置,来改变侧移变形形态。
结构矮墩时,剪切侧移和弯曲侧移各占部分比例,侧移变形呈弯剪型;
结构细长时,可考虑忽略剪切侧移,侧移变形呈弯曲型。
弯剪型和弯曲型的差别,在于变形曲线上有反弯点。

(a)弯剪型曲线 (b)弯曲型曲线
特别应该注意:
平面狭长的结构,由于纵、横向高宽比差别极大,各向的侧移变形形态截然不同。
整个算例:某33层钢筋混凝土剪力墙结构,层高3m,墙厚200mm,梁高200×600mm,结构的质量中心和刚度中心完全重合。

结构平面布置图
查阅计算结果,两个主轴方向的侧移变形曲线如下:

结构侧移变形曲线
X向的高宽比为99/24.2=4.1,侧移变形呈弯剪型;
Y向的高宽比为99/12=8.2,侧移变形呈弯曲型;
明显看出,两个主轴方向的侧移变形形态完全不同。
实际工程项目的情况如何?是否符合上述规律?
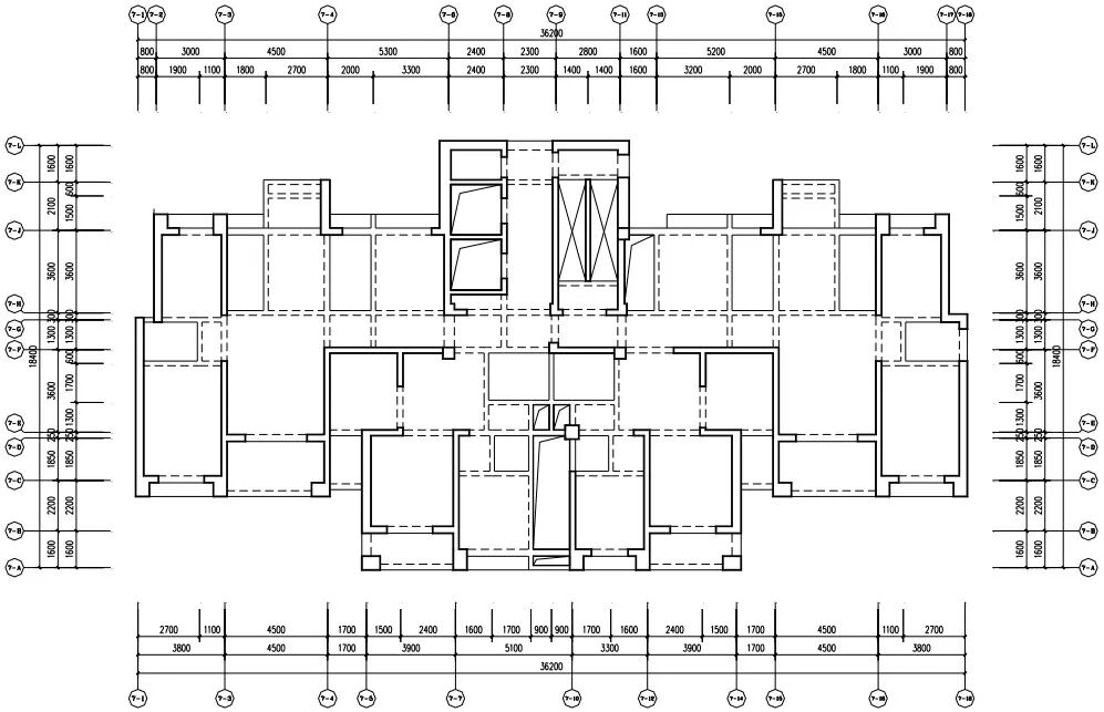
案例1:某33层剪力墙住宅,建筑高度99.6m,抗震设防烈度为7度,设计基本地震加速度值为0.1g,设计地震分组为第三组,建筑场地类别为Ⅲ类,特征周期为0.65s。50年一遇基本风压为1.3kN/㎡,地面粗糙度为A类。

某33层住宅标准层平面图
该案例X向平面最大长度36.4m,高宽比为99.6/36.4=2.7;Y向的最大宽度18.8m,高宽比为99.6/18.8=5.3。与简化算例相比,结构两主轴方向的侧移变形显现出相同的规律。

某33层住宅结构侧移变形曲线
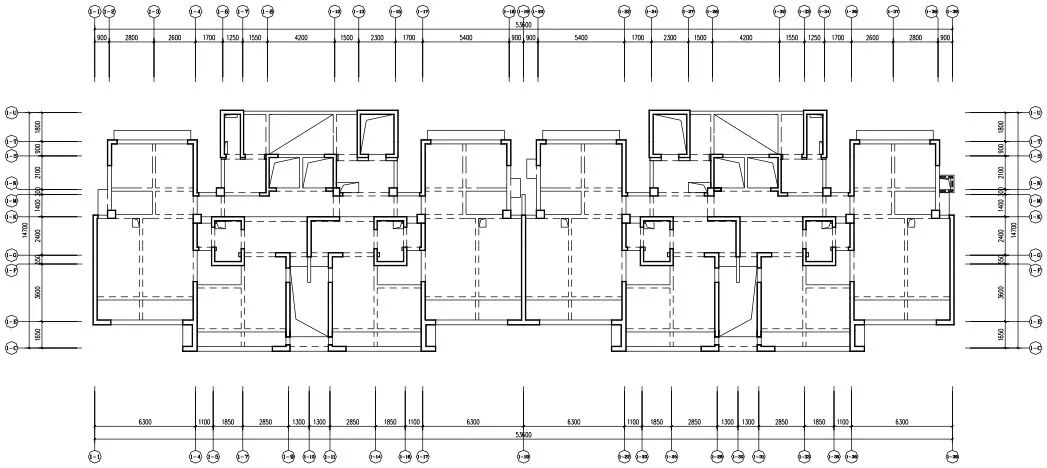
案例2:某28层剪力墙住宅,建筑高度84.6m,抗震设防烈度为7度,设计基本地震加速度值为0.15g,设计地震分组为第三组,建筑场地类别为Ⅱ类,特征周期为0.45s,50年一遇基本风压为0.8 kN/㎡,地面粗糙度为A类。

某28层住宅标准层平面图
该案例X向平面最大长度53.8m,高宽比为84.6/53.8=1.6;Y向的最大宽度15 m,高宽比为84.6/15=5.6,相较于33层住宅案例,两者的侧移变形形态几乎完全一致。

某28层住宅结构侧移变形曲线
上述案例说明,实际工程案例的侧移变形形态与理论分析的预测是相符的。
美中不足的是,无论是理论分析或者是结合实际项目,都无法预测弯剪型转变为弯曲型变形的临界高宽比数值。
实际工程项目中,由于平面形状复杂,高宽比难以简单算得,就算求出临界高宽比,与高宽比指标一样,运用起来也会存在诸多问题(例如是用最宽的面宽,或者是用最窄的,还是用等效宽度等等)。
所幸的是,各向的侧移变形形态倒可以简单获得,并且表现直观。
宏观上,跳过高宽比这个不好量化的指标,先看看各向的侧移变形。
配合其他一些指标,可以综合判断结构的高宽比是否合理,限于文章篇幅,以后我们再聊。
在下一篇文章中,大白将展示,如何利用变形形态与高宽比的内在联系,以及结构初步方案的变形形态,指导我们进行下一步的结构布置调整工作。
大白画重点啦:
高宽比是影响高层剪力墙结构侧移变形形态的主要指标;
无法通过调整墙体布置,来改变侧移变形形态;
平面狭长的结构,各向的侧移变形形态截然不同;
以及:
宏观上,高宽比不好算,可以先看看结构的侧移变形。
来源:构思结构,如有侵权请联系删除
0人已收藏
0人已打赏
免费0人已点赞
分享
混凝土结构
返回版块140.17 万条内容 · 2216 人订阅
阅读下一篇
剪力墙结构设计进阶之路(三)——控制层间平动位移的路径大白从层间位移角和位移比联系的研究中,得到的最大收获,是发现了控制层间位移角的策略框架: 规范的层间位移角是名义值,叠加了扭转效应的影响,仅能体现结构的名义刚度而非实际刚度; 层间位移由层间平动和层间扭转位移组成,可拆解后分别控制。 约束层间扭转位移的关键在于控制扭转效应,前文已研究了相应对策。接下来大白不禁思考,控制层间平动位移的路径在哪? 前文提到,某次学习中,专家要求剪力墙结构要有纯粹的剪切或弯曲变形,大白隐约觉得不妥。
回帖成功
经验值 +10
全部回复(0 )
只看楼主 我来说两句抢沙发