
大白是个完美主义者。工作初期,一个剪力墙住宅模型,定下结构体系,微调指标、调连梁超限、与模板调吻合,总要算个三、四十遍。
带着问题做事,每个模型多算几遍,久而久之,一些内在逻辑渐渐的涌现出来。
大白隐约感觉到,风荷载作用下,结构楼层的层间位移角与层间位移比似乎存在某种关联。
伟大的艾萨克·牛顿爵士曾经说过;“我总是把我的研究主题摆在面前,耐心等候,直到第一缕晨光初现,并逐渐变成一片光明。”
当时大白还没有意识到,这个猜测及其延伸出相关问题的研究,构成了大白的剪力墙结构设计逻辑的主要框架。
初现的第一缕晨光,慢慢的变成了一片光明。
验证过程并不复杂。如图所示,结构的楼层最大层间位移△max,其实是由平动层间位移和扭转层间位移组成的。

水平荷载作用下结构的扭转变形
将楼层的最大层间位移角θ:

以及楼层的非偶然偏心状态下的层间位移比λ(以下简称为层间位移比):

两者合并之后,即呈现如下联系:

上图同时还告诉我们,楼层层间平动位移△a不受扭转效应的影响,仅和结构的实际侧向刚度相关。
举个例子,两种结构布置,方案二质心与刚心的偏移,并不影响结构Y向的层间平动位移,两个方案的实际侧向刚度是一致的。
(a)方案一 (b)方案二
结构平面布置方案
但是,偏移产生的扭转效应,使得楼层的层间位移比发生了变化,层间位移角也同比例放大,两者的关系是正比例的。
假定方案一的楼层层间最大位移角为1/1000,位移比是1.0。随着方案二刚质心的偏移,它的层间最大位移角将发生如下变化:

风荷载的扭转振动效应对层间位移角的影响
仅单纯看指标,会误以为方案二的结构刚度不足。
讽刺的是,两个方案用到的结构材料几乎完全相同,结构刚度是“被”削弱的,展示的是其名义刚度。
所以大白认为:
结构工程师需要有良好的工作习惯,结构布置的刚质心要重合是有实际用途的。
清楚两个指标的内在联系后,我们可以知道,控制结构刚心和质心的偏移不但能减小结构的层间位移比,还能控制结构层间位移角,结构效率高,造价也更经济。
指标还能告诉我们,所布置结构的真实刚度大概是多少。
假设模型的楼层层间最大位移角是1/833,该层的层间位移比为1.2,可以借此估算,结构的实际层间最大位移角大概有1/1000。只要该方向刚质心的偏差能纠正重合,就没必要再增加墙体了。
上面讨论的是风荷载的情况下的结果,如果是地震工况下,两者的联系是否还成立?
具体验证过程大白在《建筑结构》的论文中已有论述,这里不再重复,直接给出结论:
地震工况下,控制位移比可以间接控制层间位移角,只不过和风荷载不同,两者的关系不是线性的。
论文中提到,结构非偶然偏心状态下的层间位移比可用于直观判断结构的刚度、质量分布是否规则和平面抗侧力体系布置是否合理;与侧向荷载作用的量值大小无关,能从几何上直接度量结构各楼层的扭转振动反应。
在实际工程运用中,可以结合各楼层的位移比数值,初步判断扭转振动反应的量级,通过合理调整结构布置,尽可能减小楼层刚心与质心之间的距离,以控制各楼层的位移比,提高结构的名义侧移刚度,进而控制楼层的层间位移角。
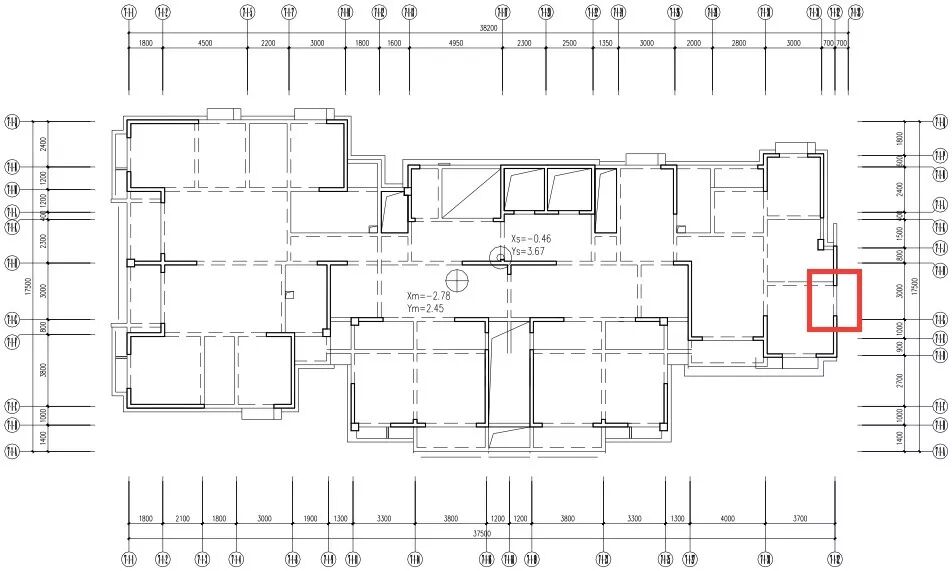
我们来看案例,某18层剪力墙住宅,建筑高度52.6m,抗震设防烈度为7度,设计基本地震加速度值为0.15g,设计地震分组为第二组,建筑场地类别为Ⅱ类,特征周期为0.40s。50年一遇基本风压为0.8kN/㎡,地面粗糙度为B类。
结构初步布置方案如下图所示:

某18层住宅标准层初步方案及质心与刚心位置

初步方案的层间位移角

初步方案的位移比
经试算,地震工况为Y向的控制工况,层间最大位移角出现在第13层,为1/945。同时,该层的最大层间位移为3.07mm,平均层间位移为2.49mm,地震工况下的层间位移比为3.07/2.49=1.23。结合上文,可以推算出结构的实际刚度为1/(945x1.23)=1/1162,可知结构实际刚度已经足够,纠偏即可,无需再增加墙体。
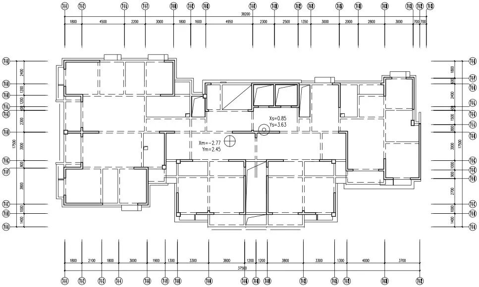
图中红色方框位置的剪力墙开洞,其余布置不变,调整后的布置方案如下:

某18层住宅标准层调整方案及质心与刚心位置
调整后,楼层X向刚心的位置,由0.85大幅移动至-0.46,Y向定位轻微变化,过程中楼层的质心几乎不动;结构的层间最大位移角大幅减小至1/1029,名义刚度提高了8.2%;层间位移比优化至1.08,降低了12.2%;结构的实际刚度仍有1/1111,仅较初步方案降低4.6%。
消减墙体用量的同时获取结构刚度,足以证明该策略的高效与经济。
控制偏心率的过程也使得结构的不规则程度有较大幅度的缓解。
对比前后两个方案,13层Y向地震下规定水平力作用下的层间位移比,由1.11降至1.02,大大减少了结构的扭转效应。

调整方案后的层间位移角

调整方案后的位移比
案例结果汇总如下:

案例及理论分析说明,减位移比确实可以发挥结构的实际刚度。
来源:构思结构,如有侵权请联系删除
0人已收藏
0人已打赏
免费0人已点赞
分享
混凝土结构
返回版块140.17 万条内容 · 2218 人订阅
阅读下一篇
剪力墙结构设计进阶之路(一)——思考从疑问开始本文是对大白发表在《建筑结构》上论文的扩写,在原文的理论分析基础上,针对各个要点增加了案例分析,方便大家理解原理,并能熟练运用。同时,也是做为大白剪力墙结构设计思考历程的一个记录。 工作的前5年,主要从事框架和框剪结构项目(刚开始在乙级院,主要做18层以下的建筑)的设计。真正开始接触剪力墙结构,还是到现在单位以后的事情。 刚接触这个结构体系时,发现自己原先累积的认识
回帖成功
经验值 +10
全部回复(0 )
只看楼主 我来说两句抢沙发