蚌埠市城市规划馆、档案馆及博物馆基地南北长约185 米,东西宽约535米,地势平整。城市规划馆、档案馆合为一馆位于地块东侧,档案部成L形布置在建筑西.南侧,规划部成L形布置在建筑东.北侧,两者围合成一完整回字形体量。博物馆位于地块西侧,中间为中轴线广场。






01.
场地解析
本项目规划用地位于东海大道南侧,市委市政府对面拟建市政务文化广场内。北临东海大道、西临龙滩路、南临文政路、东临龙湾路。规划总占地面积约150亩。其中,博物馆用地约55亩,规划馆、档案馆用地约55亩。拟建总建筑面积约6.9W平方米,其中蚌埠市博物馆建筑面积约3.4W平方米,其中地上2.5W平方米,地下0.9W平方米;档案馆和规划馆建筑面积3.5W平方米,其中地上2.7W平方米,地下0.8W平方米。



项目用地位于城市新区龙子湖畔 ,是城市魅力蓝图上的重要文化地标。
市政务文化广场的西侧,与市委市政府隔路相望,是政治中心与文化中心交点。
基地北侧为行政中心,南侧文化片区,是城市新区规划山水轴的重要节点。
项目用地是连接行政中心与龙子湖景观轴的重要空间节点,需要创造和谐的对话关系。
02.
规划立意
七千年前的双墩文化-火车拉来的工业文明-高铁时代新形势
“新时代”呼唤“新形式”
城市化飞速发展的今天
千篇一律的城市形象
蚌埠的城市中心建筑如何独树一帜??

建筑高度不应对行政中心形成压迫感

水平舒展的形体,以创造有节奏变化的天际线



温润如玉
玉,石之美者,有五德,润泽以温,仁之方也——《说文解字》
玉璧的虚与实,阴与阳,演化为建筑内与外.庭院与实体的空间关系。




徽派意韵
山水之居
徽州古民居聚落讲求与山水自然生态环境和谐相依的适居性思想。

蚌埠双墩遗址具有典型的当地文化面貌。我们抽取刻划符号中的象形与几何特征,生成独特的建筑立面纹理。

徽州古民居受徽州文化传统和优美地理位置等因素的影响,形成独具一格的徽派建筑风格。粉墙、瓦、马头墙、砖木石雕以及层楼叠院、高脊飞檐、曲径回廊、亭台楼榭等的和谐组合,构成徽派建筑的基调。

对于无采光要求的实体墙面我们采用浮雕的处理方式达到立面光影变化的效果。将墙体纹理进行正负形处理得出窗的立面栅格百叶。

将徽派建筑屋顶的瓦片抽象出模数化的构件,铺展在博物馆屋面,又将其倒置在规划馆与档案馆弧面以下,产生延续性。

竖向竹条杆件将三馆的中庭空间渲染出宁静幽雅的气质。

空间体验
博物馆展览空间围绕中厅穿插边庭,亦抑亦扬,形成有节奏变化的室内空间,
规划馆.档案馆空间层层递进,沿中央水院拾级而上,丰富参观体验。
03.
功能组成

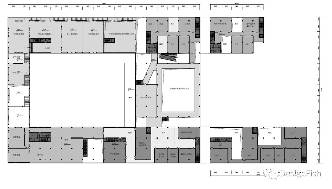
仓库、设备、安全保卫用房、档案馆仓库用房、档案馆公共服务用房、档案馆人员办公用房
地下停车库、规划展览用房、宣传教育与公共服务用房、业务研究与办公用房

安全保卫用房、藏品库区、陈列展览用房、地下停车库
观众服务用房、设备用房、行政办公用房、业务科研用房















04.
技术分析
外部流线
各功能单元设置独立出入口,人行集中于广场,车行利用场地周边城市干道设置出入口。
内部流线
各功能流线独立,垂直交通依据使用功能的不同而分别设置,形成明确的使用功能流线。



博物馆
公共服务由室外下沉广场进入,通过东南角庭院与首层南区公共服务区相连,即辅助展览又可独立运营。
参观流线沿中庭环形展开,行进中穿插小庭院,打破单调.沉闷的展览空间模式。
业务科研及行政办公由西侧独立门厅进出 ,独立电梯到达各个办公区。
货车直接到达地下室藏品库区,独立的货梯把货物直接运到各个展厅。

规划馆
参观人流由中庭扶梯到达二层规划模型大展厅,然后沿阶而上,参观各分区展厅。
公众服务人流经由水面之桥,进入首层公共服务空间。
货物直接到达地下室藏品库区,通过独立的货梯直接运到各个展厅。
档案馆
公众服务人流由门厅沿中心水院层层叠进。
行政办公.业务技术由独立电梯直达三层村落格局的办公单元。








0人已收藏
0人已打赏
免费3人已点赞
分享
城市规划设计
返回版块15.39 万条内容 · 251 人订阅
阅读下一篇
规划设计、建筑设计、方案设计等相关概念网络资料2019.6 规划设计:是指对项目进行较具体的规划或总体设计,综合考虑政治、经济、历史、文化、民俗、地理、气候、交通等多项因素,完善设计方案,提出规划预期、愿景及发展方式、发展方向、控制指标等理论。 规划层次为城镇体系规划、城市总体规划、城市规划、镇规划和乡(村)规划五个层次;类型大致有国土规划、区域规划、城市总体规划、分区规划、城镇体系规划、控制性详细规划、修建性详细规划、城市设计
回帖成功
经验值 +10
全部回复(1 )
只看楼主 我来说两句 抢板凳蚌埠市城市规划馆、档案馆及博物馆基地南北长约185 米,东西宽约535米,地势平整。城市规划馆、档案馆合为一馆位于地块东侧,档案部成L形布置在建筑西.南侧,规划部成L形布置在建筑东.北侧,两者围合成一完整回字形体量。博物馆位于地块西侧,中间为中轴线广场。
回复 举报