土木在线论坛 \ 建筑设计 \ 建筑方案设计 \ Double: 一城两面——长沙绿色高层建筑设计

Double: 一城两面——长沙绿色高层建筑设计

发布于:2023-11-29 15:36:29 来自:建筑设计/建筑方案设计 [复制转发]

课设任务书

类型及限高

办公,酒店,公寓,商业或综合体(自拟定);限高150m。

相关指标

1、城市设计∶净用地面积36370.35㎡,地上总建筑面积约145481.4㎡,容积率不超过4.0;

2、建筑设计∶选取其中一至两栋建筑进行方案设计,地上建筑面积约75000㎡,建筑密度不超过35%,绿地率不小于35%;

3、地下建筑面积根据停车数及设备功能用房区自行确定,地下及地面停车数要求参见《长沙市城市规划管理技术规定》(2018年修订版);

4、机动车出入口设置∶富通路,湘汉路。

成果要求

1、彩图3-4张A1,包含但不限于:效果图、彩色总平、各类必要的分析图;
2、黑白线稿技术图纸一册A1,包含:总平面图、平面(裙楼、塔楼标准层、地下层等)、立面、剖面、大样等;
3、手工模型(制作并提交照片);
4、绿建报告一份A4。

图片

  原始地形图

Double: 一城两面——长沙绿色高层建筑设计

指导老师:徐峰 张光

设计时长:14周(2021.10-2021.12)

作者人设:微痛保研的小兔崽子和臭瓜蛋子——相爱相杀的ENFP和ISTJ课设老搭档 ??

图片


设计介绍:

不同于低年级做过的多层公建,高层设计有更多限制的条件,但其实限制越多设计越好做。我们在此次设计中认真思考了新建高层对于城市和居民的影响,关注现实条件,尊重要求限高和相关技术规范,在满足各项要求的情况下尽可能使设计更合理;与此同时,我们也结合环境利用绿色建筑模拟技术指导设计,优化方案,对建筑外围护结构的性能进行了优化设计。

图片

“一城两面”场地肌理

基地概况:

场地位于湘江东侧的南湖金融区 ,基地一侧是冉冉升起的摩天大楼,西邻湘江中路,江景开阔;东边是东瓜山社区。沿江的高楼展现最新的都市高楼景观,而东侧密集社区中,隐藏着最有生活气息、市井文化的老长沙街巷。一城两面,城市的两种姿态在这同时展现。

设计定位:

新老并存、一城两面(Double的由来):

将市民和冬瓜山游客纳入考虑,在场地东边留出广场铺地和可亲近的都市景观,同时尽量将高楼后退,减少对社区的压迫感;体量上尽可能减少对江景山景资源的吞并。

图片
图片

设计定位与形体生成

场地设计:

在我们看来,总图设计是这次高层设计非常重要的一环,总图不仅是体现建筑体块在场地中的位置,更重要的是建筑外部空间的设计和要素关系的处理,以及满足各类规范要求。

1、在方案之初,根据任务书要求容积率、密度、建筑面积等指标,进行不同体块组合的尝试

图片

体块对比排布图

2、综合考虑平面形态、沿江面天际线、室外活动场所以及地块开敞面朝向等要素,筛选出四个更优方案,对其进行建筑外风环境比选优化。

3、风环境模拟(CFX):模拟夏季冬季及过渡季风况,比较、择优选取塔楼组合。

图片
图片

借助风环境模拟、草模推敲形体

4、最终得到综合各方面选优的体块排布情况

5、一轮又一轮:户外公共空间组织、建筑主次入口位置、车行流线和地上地下停车、人行流线和广场、场地内外标高处理、消防扑救和消防车道……【不想多说了(懒),还是看看翻箱倒柜找出来的皱巴巴图纸吧】

图片
图片

滑动查看手绘草图


【总图崽崽,方案前期还得看手绘呐】

图片
图片
图片


滑动查看

总平线图


【二草看的图们,最后这图被fengfeng小小地鼓励了一下!耶】

图片

【最后的总图宝贝】

比较与模拟  &  对绿色建筑的理解:

1, 努力让绿建思维伴随整体设计,并不是在最终来贴合既成方案的一套理论。

2, 软件只是帮助分析的工具,先搞清楚想通过软件分析得到什么样的指导(用哪个绿建软件做分析并不重要,我们没有用也不被提倡用很复杂的软件,关键还是化为己用,以方案设计为主)。

●风——主要关注建筑外部环境设计

●光——关注建筑内部采光等

●热——高层课题中,重点关注幕墙及遮阳

方案初期,我们首先利用 Ecotect 中 WeatherTool 来认知长沙市的气候总体环境,做出初步判断,后续用CFX模拟风环境辅助场地设计,分析建筑朝向及各表面辐射情况,主要从风环境和热辐射两方面来初步指导方案设计和建筑表皮设计,并结合案例,思考绿色建筑可能实现的技术路径。

图片
图片
图片

滑动查看

绿建分析


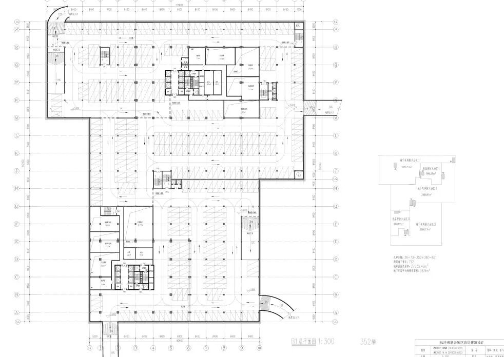
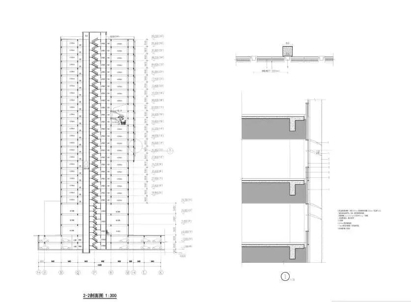
在一步步推进中,我们的高层课设终于在2021雪落下的那几天结束了。最后就放些回看觉得如今自己不配的技术图吧。

图片
图片
图片

回顾问答

Q:高层设计相较于二三年级的小体量设计,规模剧增,这种变化对设计的过程和方法有什么影响吗?

istj:可能低年级对指标没有那么敏感,但高层设计体量比较大,从一开始就得对数据灵敏,把握大方向,算出来要做几栋、每栋多高、相互间怎么联系,然后对外形造型推敲,接着对平面和功能细化。

enfp:因为高层设计时间很紧,相较而言没那么看重概念,而且高层标准层的变化更多基于功能和结构的要求,在低年级可能更多是空间氛围的变化。


Q:绿色高层设计是我们第一次接触技术模拟软件的课程,如何快速掌握模拟软件并与设计结合嘞?

enfp:对软件的选择和学习可以是目的导向,哪一步需要分析什么就去学哪个软件。至于与设计的结合,我认为绿建模拟是贯穿在设计过程中的,模拟的结果作为推进的方向参考。


Q:绿色高层设计涉及很多很多设计规范(还有闭卷考试),如何快速掌握规范知识?

istj:从大四到开始实习我发现最重要的一本规范就是防火规范,但很多东西只刷一遍还是不会应用,需要一遍遍在实际问题中巩固。


Q:有什么值得分享的合作小技巧吗?

istj:分工比较重要,看你们不同的兴趣在哪里,合理分工可以节省很多时间。

enfp:取长补短!设计中多商量、多沟通可以解决很多问题。但是长期工作难免有小摩擦,主动交流能解决很多问题,明确共同目标,齐心协力做设计??

图片
图片

后记:

周末抽空整理了去年高层作业的资料,有被这扎实的训练感动了一小下,厚厚一沓的过程稿能看到自己一步步的进步,好多纸上还有峰光的红笔批注,有回到小学的感觉嘿嘿!感谢最好的峰光组合!??


全部回复(0 )

只看楼主 我来说两句抢沙发

建筑方案设计

返回版块

21.18 万条内容 · 300 人订阅

猜你喜欢

阅读下一篇

盒子的律动 | 广州南湖山庄高层住宅

西侧景观低点 摄影:陈小铁 项目概况 项目位于广州市白云区同和路东侧,此地块背山面水,东面靠山,可以看到美丽的山景,西面,南面视野比较开阔,可以望到波光粼粼的南湖及广州市区,地块垂直高差达118米,拥有得天独厚的自然景观。项目由高层住宅和低层住宅,及小区配建的公共配套设施组成,是一个生态、低密度的花园式山地住宅项目。C区包括8栋2-3层的连体低层住宅,C区的建筑面积为

回帖成功

经验值 +10