
西侧景观低点 摄影:陈小铁
项目概况
项目位于广州市白云区同和路东侧,此地块背山面水,东面靠山,可以看到美丽的山景,西面,南面视野比较开阔,可以望到波光粼粼的南湖及广州市区,地块垂直高差达118米,拥有得天独厚的自然景观。项目由高层住宅和低层住宅,及小区配建的公共配套设施组成,是一个生态、低密度的花园式山地住宅项目。C区包括8栋2-3层的连体低层住宅,C区的建筑面积为6750㎡;D区包括4栋24-27层高层住宅,及一栋与之相连的小区会所,D区的建筑面积为77664㎡。最高建筑高度93.7M。小区综合平衡容积率0.71,绿地率32%。

▲设计草图
▎设计理念
01 因地制宜
规划总平面建筑布局结合山地特征,采用台地开发模式,因地制宜进行布置,形成顺应地势的小聚落组团空间和层层跌落的山地景观。
原有地形在别墅区和高层区存在一个陡崖,规划利用地下车库空间的合理布置,强化了别墅区的层叠布局,弱化了陡崖造成的压迫感,减少了土方的回填,形成了更加人性化的场地空间。

▲总平面图

▲分析图1
02 景观资源最大化
场地西侧为广州市著名的风景区南湖。项目采用了逐层抬高的布置方式,多数低层住宅都有较好的视线通廊,高层布置在半山之巅不仅不会遮挡别墅,更为高层住户提供了更加独特的景观体验,强化了景观优势。

▲分析图2
03 户型创新
高层住宅将台地的概念引上空中,在空中植入平台,并用层层成90度错位,形成6米高的空中院落。客厅结合平台设计在楼宇尽端转角处,为住户提供270度的无敌景观。在顶层更提供三层的复式空中别墅。

▲高层住宅转角阳台 摄影:陈小铁
04 接触自然
不仅仅是低层住宅的半开敞天井院落,高层住宅的环绕形的大平台和空中院落,而且在高层住宅下部的半开敞阳光车库中,设计最大限度的让住户能有机会接触自然。

▲建筑整体日景 摄影:战长恒
▎技术创新

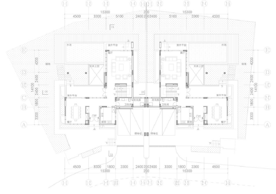
▲低层住宅户型图-C01栋首层平面图

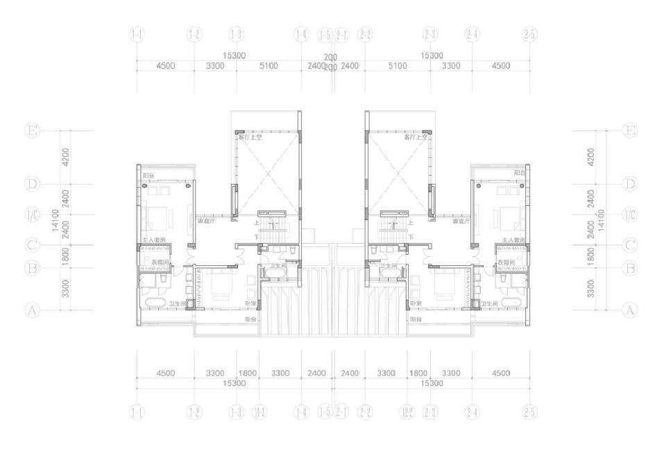
▲低层住宅户型图-C01栋二层平面图
2、四栋高层住宅建筑利用横板的元素强调建筑层的感觉,并不断左右错落,既丰富活泼了立面,又可以形成两层通高的空间,使视野变得比较开阔。在顶部设计的多套复式户型,利用平台出挑为住户设计了空中私家泳池,提供十分独特的生活体验。

▲摄影:战长恒


▲通往建筑车行路 摄影:战长恒
3、半山会所。在D区高层住宅区,结合地形,横跨山崖设置了半山会所,住户可通过塔式电梯从山脚直达高层的入户平台花园,并在层层叠落的平台上设置不同的功能用房,满足住户的文娱活动和社区交往,顶层设置屋顶无边泳池,一览南湖美景。

▲高层夜景 摄影:战长恒
4、阳光车库。在高层住宅的底部,结合山地地形设计了一面开敞的阳光车库。车库采用斜坡式停车,减少施工土方的开挖同时,提高了停车效率。在外围护上没有采用传统的墙体封闭,而是采用预制清水混凝土板遮阳,形成富有韵律,可以呼吸的外立面。

▲车库屋顶花园 摄影:战长恒
▲南湖山庄D-1至D-4、G-7栋展开立面图
▲高层低点 摄影:战长恒
▲高层住宅外观 摄影:战长恒
▲空中花园大堂入口 摄影:战长恒
▲高层复式玄关 摄影:战长恒
▲高层复式转角餐厅 摄影:陈小铁
▲高层复式客厅 摄影:陈小铁
0人已收藏
0人已打赏
免费1人已点赞
分享
建筑方案设计
返回版块21.18 万条内容 · 300 人订阅
阅读下一篇
概念设计 · 就是要有一点异想天开!概念这个东西特别抽象, 是创造性思维的体现, 是一种理想化的物质, 它表现为一个由粗到精、由模糊到清晰、 由抽象到具体的不断进化的过程。 通常它们都是 充满幻想,搞大想象力! ps:下面这些 菲律宾最高法院概念设计 “法院”都是那么的庄重, 在设计上也是有条不紊, 然而看到这样的设计, 颠覆了心中的概念!
回帖成功
经验值 +10
全部回复(0 )
只看楼主 我来说两句抢沙发