案例一
以下图片来源:MAT 超级建筑事务所 ,版权归其所有,仅供学习交流使用





▽ 二层平面,second floor

▽ 三层平面,third floor

▽ 剖面及立面图,sections and elevations


▽ 轴测图,axonometric drawing

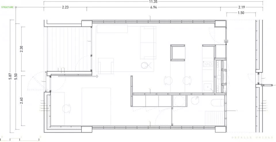
▽ 公寓单元平面图,housing unit

▽ 建筑结构图,details

案例二
简而不凡 – 杭州第二中学钱江校区学生宿舍楼
以下图片来源:浙江大学建筑设计研究院有限公司 ,版权归其所有,仅供学习交流使用


▼寝室轴测图,Isometric of bedroom ?浙江大学建筑设计研究院

▼走廊,Corridor ?浙江大学建筑设计研究院

▼活动室,Activity room ?浙江大学建筑设计研究院


▼总平面图,General layout ?浙江大学建筑设计研究院有限公司

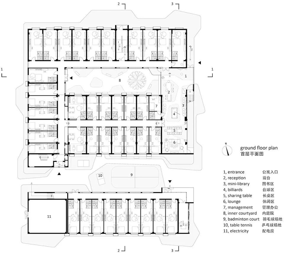
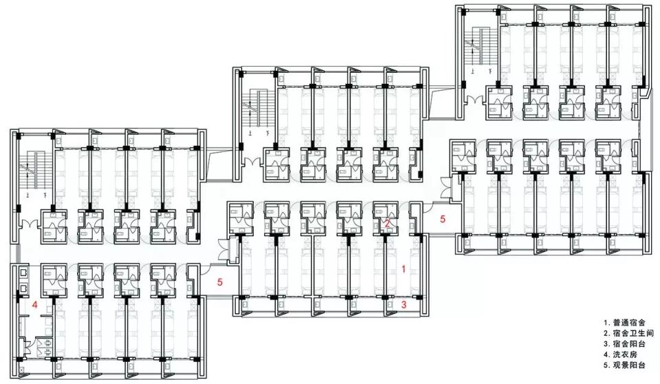
▼标准层平面图,The standard floor plan ?浙江大学建筑设计研究院有限公司

▼南立面图,South elevation ?浙江大学建筑设计研究院有限公司

▼东立面图 剖面图,East elevation and the section ?浙江大学建筑设计研究院有限公司

案例三
以下图片来源:MAT 超级建筑事务所 ,版权归其所有,仅供学习交流使用




▼单元一点透视图,units in one point perspective


▼一层轴测图,exploded axon 1F

▼二、三层轴测图,exploded axon 2F & 3F

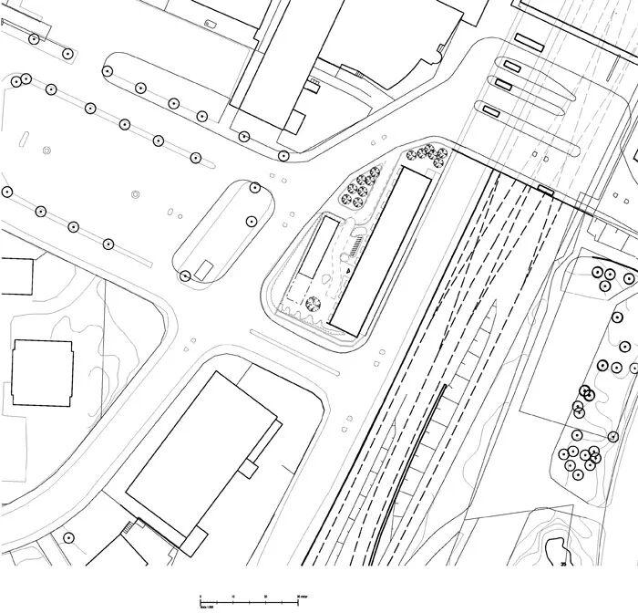
▼总平面图,master plan

▼一层平面图,1F plan

▼1-1剖面图,1-1 section

▼2-2剖面图,2-2 section

▼3-3剖面图,3-3 section

▼西立面图,west elevation

案例四
以下图片来源:Scheiwiller Svensson Arkitektkontor,版权归其所有,仅供学习交流使用





0人已收藏
0人已打赏
免费0人已点赞
分享
建筑方案设计
返回版块21.18 万条内容 · 300 人订阅
阅读下一篇
Overlap House:容纳自然的层叠住宅△ 项目外观 ?Daici Ano 设计单位 平田晃久建筑设计事务所 项目地点 日本东京 建成时间 2018年6月 建筑面积 177.49平方米 本文文字由设计单位提供。 自工作室成立起,将建筑自然化的设计思路就从未改变,然而最近我们衍生出了一些新的思考。尽管柔软的形式与包含空间的差异性让自然具备了一定的弹性,但大家仍会认为“自然”仅是一种单向性的流入,不受其他元素的控制。
回帖成功
经验值 +10
全部回复(0 )
只看楼主 我来说两句抢沙发