北京天桥演艺区南区公建项目屋面造型为四端翘起的弧形结构,屋面结构主要由金属屋面、玻璃采光顶和立面玻璃幕墙组成,设计新颖、造型独特,从而对屋面结构的安全性、防水性要求也更高,给设计和施工带来了极大困难。在此,重点介绍该工程金属屋面部分的深化设计方案,供业内人士参考借鉴。
作者单位:沈阳远大铝业工程有限公司方案部
摘自:《中国建筑防水》2020年第3期

北京天桥演艺区南区公建项目位于北京市西城区天桥南大街。天桥演艺区是“人文北京”的重要窗口,是宣南传统文化发祥地之一,也是西城区传统文化重要展示地区。本项目是天桥演艺区的重点工程,属特大型甲级剧场建筑,分为地下4层、地上3层,地上建筑高度18 m,局部舞台台塔高21 m,地下室标高-18.6 m,局部-23 m。总建筑面积74 861 m2,其中地上27 060 m2,地下47 801 m2。

本工程金属屋面采用立边咬合防水屋面系统。此系统具有整体结构性防水和排水功能,完全取消螺钉连接,不限制屋面金属板长,结构简洁、轻巧、安全,施工安装简便,并且能满足多种造型施工安装。

1)成熟的结构传力维护系统,适用于坡度≥1.5°的屋面或墙面,应用广泛;
2)现场制作,大跨度(≤200 m)单板可通长无驳口、无钉孔,施工简单,锁合牢固;
3)优异的排水防渗性能、独特的抗热膨胀性能及安全可靠的抗风压性能;
4)先进的二次成型(瓜皮工艺和扇弯工艺),轻松解决双曲面或单曲面的覆盖难题;

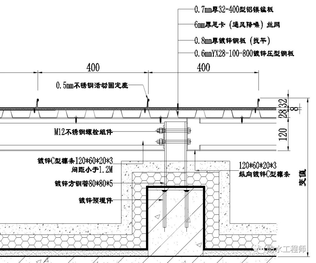
本工程金属屋面从上到下构造组成依次为:金属面板—防潮层—找平层—支撑结构—转接结构—预埋件—主体结构。

面板材料选用进口0.7 mm厚铝镁锰板,板块规格为32 mm高、400 mm宽,板块现场压型。

不锈钢活动固定座采用0.5 mm厚不锈钢板压制而成,通过不锈钢自攻钉固定在镀锌找平板和压型钢板上;屋面板与固定座采用活动式咬合连接,能有效吸收金属板块纵向由于温度差造成的胀缩预应力,保护好屋面板的结构防水性能。
通风降噪层采用进口恩卡通风降噪丝网,厚度为6 mm。通风降噪丝网有一定的伸缩性和通气性,可避免极微量的水在基层和金属层之间的流动,还可起到一定的抗噪声作用,极大地减少降雨敲击在金属层上的噪音。
采用0.8 mm厚镀锌钢板作找平板,与不锈钢固定座一起固定在压型钢板上,起到对通风降噪丝网的支撑和屋面的找平作用。
找平钢板下方采用0.6 mm厚YX28-100-800镀锌压型钢板,采用自攻钉固定在屋面檩条上,起到支撑屋面系统和提升屋面刚度的作用。
本工程金属屋面支撑檩条采用镀锌C型檩条120×60×20×3(mm),纵向檩条间距小于3 m,横向檩条间距小于1.2 m 。横竖檩条通过80×80×5(mm)镀锌方钢管与主体结构预埋件相连。
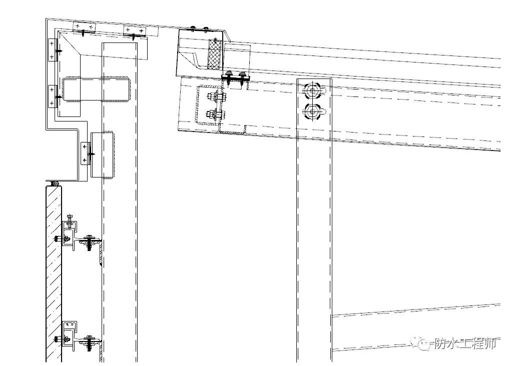
本工程金属屋面整体呈四边翘起的双曲造型,并且屋面上方有5个凸出屋顶造型,其中①④为双曲造型,四边翘起;②③⑤为单曲造型,两端翘起。凸出造型侧面位置为石材幕墙和玻璃幕墙,整体屋面的中部设有大型玻璃采光顶。屋面利用结构造型进行排水路线设计。

采用专门的锁边机械将屋面板与支架连接成为一个防水及抗风的整体,无需用螺钉穿透屋面板,整个屋面板系统通过特制的连接支座在温度变化下自由滑动、伸缩,避免了屋面板伸缩、扣盖咬合缝发生错位而导致屋面渗漏的现象。
屋面板的折边要遵循设计原则,较高位置的折边向上,水流入天沟位置的屋面板折边向下。下弯折边应注意先安滴水片再折弯板头。
檐口和天沟交接处的屋面板需要进行修剪,保证屋面板伸入天沟的长度不小于标准规定的尺寸。排水天沟采用2 mm厚不锈钢板制成,上安装不锈钢篦子,确保排水通畅。

本工程5个凸出的屋面造型,立面为石材幕墙和玻璃幕墙,金属屋面与立面幕墙交接处采用铝板封修,铝板上做内凹造型滴水槽。

全部回复(1 )
只看楼主 我来说两句 抢板凳谢谢楼主分享
回复 举报