该幼儿园位于巴黎第十区的圣路易医院,项目位于一个遗产区,规划面积350平方米,旁边是一个现有的医院员工幼儿园和一个花园,项目建成后将由两个园所共享这个花园。

由于项目所在地块有一条弯曲的道路和一个现有的花园,这些条件决定了建筑的形状。建成后幼儿园将提供48个婴儿床,由于巴黎市要求该建筑是可拆卸的,建筑师选择了干式建筑方法和预制的木质结构和可拆卸的组件,使该建筑可以完全解体,并在未来的另一个地方重新安装使用。

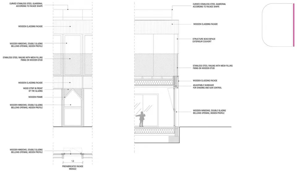
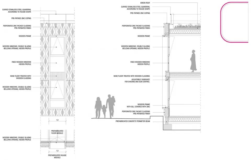
建筑物有不同的表面特征: 建筑物的第一面与周围公共空间相连,覆盖着预先风化的锌板,以便更好地融入巴黎的环境。这种覆盖层起到了保护性的作用,它的穿孔图案带来了现代气息,从地块旁边的圣路易小教堂的窗户中获得了灵感。带有木质框架的双层窗户重新诠释了前面建筑的窗户,并且由于网状图案的存在,有助于将建筑的规模降到最低。

第二个面是隐藏在外面的视野中,并朝向现有的花园开放。它的处理方式与建筑的其他部分形成了鲜明的对比:更加透明和通透,与共享花园建立了直接的关系,它使光线穿过儿童的空间。玻璃幕墙也揭示了建筑的木材结构(胶合木柱和梁)和框架模块。一楼的后退创造了一个部分覆盖的室外露台。

第三面是建筑的绿色屋顶,再现了项目之前医院里的花园。它有助于保水和保护生物多样性,为鸟类和昆虫提供了一个可以进入的空间。

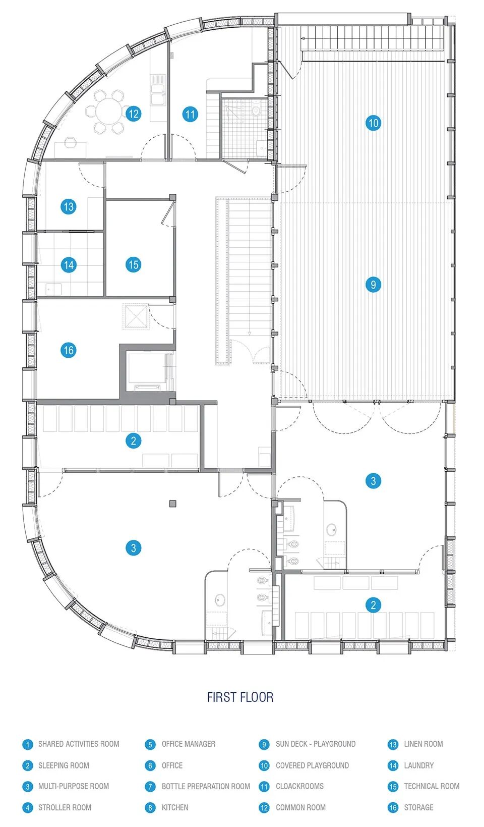
该项目的空间设计围绕着一条室内中央通道展开,在主要通道的轴线上连接上下两层,每层楼都有一个日间护理单元。在西侧与锌制外墙相连,成为办公室、员工空间和技术服务部。在另一侧,它提供了通往花园的儿童专用的通道。楼上也有通往露台的通道。

在这样的背景下开展项目建设面临多方挑战:融入一个传统的历史环境,在施工期间维持医院的活动,以及非常有限的施工面积。

建筑图纸

首层平面图,ground floor plan ? Janez Nguyen Architects

二层平面图,first floor plan ? Janez Nguyen Architects

立面01,elevation 01 ? Janez Nguyen Architects

立面02,elevation 02 ? Janez Nguyen Architects

立面03,elevation 03 ? Janez Nguyen Architects

剖面图,sections ? Janez Nguyen Architects

构造细节01,details 01 ? Janez Nguyen Architects

构造细节02,details 02 ? Janez Nguyen Architects
编辑:Paul
来源:Janez Nguyen Architects
0人已收藏
0人已打赏
免费6人已点赞
分享
结构资料库
返回版块41.29 万条内容 · 423 人订阅
阅读下一篇
冈山大学的无柱木质教室来源:设计联(ID:my-uapid) 隈研吾与他的建筑事务所Kengo Kuma and Associates (KKAA) 为日本冈山大学开发了一间木制教室。该项目的重点是加强木结构,并为在该领域学习的学生提供丰富、舒适的学习环境。
回帖成功
经验值 +10
全部回复(3 )
只看楼主 我来说两句-
天地不言
沙发
2023-09-08 15:35:08
赞同0
-
加倍努力
板凳
2023-09-04 21:24:04
赞同0
加载更多建筑师选择了干式建筑方法和预制的木质结构和可拆卸的组件,使该建筑可以完全解体,并在未来的另一个地方重新安装使用。![]()
回复 举报
学习了法国Saint-Louis 幼儿园案例-建造在城市遗产区的木结构建筑,多谢了。
回复 举报