土木在线论坛 \ 建筑结构 \ 建筑加固 \ 楼板开大洞如何加固处理?

楼板开大洞如何加固处理?

发布于:2023-08-04 16:24:04 来自:建筑结构/建筑加固 [复制转发]

前言

最近小编做了个既有小区加固改造的新项目,借此机会与大家共同分享、共同探讨这类改造项目的具体设计过程。

图片


正文


本次主要分享项目中关于地库开洞增设电梯的内容,本项目加固改造的基本原则是在完成新增建筑的基础上,对原有结构进行合理的抗震加固以保证加固后原有结构的整体与局部的刚度、强度符合安全性的要求。


关于新增电梯的做法无外乎楼板开洞,再增设电梯结构。考虑到钢结构具有自重轻、施工快、节省成本等优点,为了尽量降低对原有结构及原有基础的影响,新增电梯结构采用钢框架形式(见下图),此类钢框架结构较常规,在这里不再过多赘述。钢柱的基础拟采用现有防水底板加厚的方式,避免破除掉车库原有底板后产生的危害结构安全及防水等不利影响。

图片
图片

图1 电梯结构布置图


在地库中新增设电梯不可避免的需要对既有楼板进行开洞处理,开设洞口后局部切断了原有传力路径和配筋,不可避免地导致洞口周边板的内力增大,会造成应力集中,同时切断了板内钢筋,致使承载力降低,因此应对开洞后的楼板进行洞口加固设计。开洞现浇楼板的加固处理需要综合考虑楼板的形式、洞口大小、洞口位置等因素,根据现行国家规范《混凝土结构加固设计规范》GB 50367-2013,主要加固方式包括粘钢加固、板面增大截面法加固、粘贴纤维布加固、洞口新增边梁加固这几种形式。常规来说,若开设洞口宽度不大于300mm并且切断钢筋不大于5%时,可不做加固处理。若开设洞口宽度不大于1000mm并且切断钢筋不大于20%时可采用粘钢加固或粘贴纤维布加固(一般采用双面加固)。若开设洞口宽度大于1000mm或切断钢筋大于20%时,应采用新增边梁加固,一般电梯洞口大小为2m~3m之间,增设电梯洞口应增设边梁进行加固(视情况考虑是否需要对原有主梁进行加固)。


图片

图2 增设混凝土梁加固楼板开洞


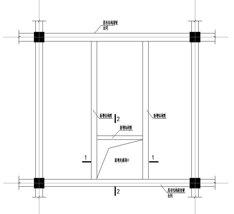
本项目电梯洞口尺寸为2300mmX2500mm,洞口切断钢筋达到了原有钢筋的30%,故采用增设边梁的方法进行洞口加固处理。

图片

图3 本项目加固楼板开洞示意图


图片

图4 增设混凝土梁大样图


开洞区域的楼板钢筋应与洞口边梁有可靠的锚固,新增混凝土梁以原有地库框架梁为支座,钢筋通过植筋锚入原有梁内(穿孔部位应采用胶粘剂灌注锚固)。

图片

图5 开洞部位钢筋锚固示意图


由于新增电梯洞口是在原地库顶板上开洞,考虑到现有2m深覆土的存在,另需在洞口四周混凝土梁上增设2m高挡土墙,洞口边新增边梁可与挡土墙一同采用现浇形式,原有地库框架梁上起的挡土墙通过植筋的形式锚入现有框架梁中。

图片

图6 原有梁上增设挡土墙图


部分原有地库框架梁上局部起挡土墙,同时又承担了新增的洞口补强边梁传递而来的荷载,拟采用粘贴纤维布加固法对这部分框梁加固(篇幅所限,梁加固法请见下次分享~)。


加固改造施工过程,植筋胶一般采用A级胶,采用适用于潮湿环境的植筋胶,并由厂家提供证明文件。相关指标应符合《混凝土结构加固设计规范》GB 50367中4.4的有关要求。钻孔前用钢筋保护层测试仪查明混凝土钢筋布置,需避开结构主筋位置;植筋中心距应≥5d,边距≥2.5d;孔端至构件外表面的混凝土保护层厚度不应少于2D,植筋直径与对应的钻孔直径设计值见下图:

图片

图7 植筋直径与对应的钻孔直径设计值


在加固改造类的项目的施工过程中,需特别注意破除原有结构或依托原有结构增设新结构构件等过程所产生的不利影响,在设计图纸中最好注明相关的设计说明,如拆除施工前的卸荷、拆除次序、施工方法、拆除过程中产生的结构损伤及相关修补措施等等,对于一些年限较久的建筑,尤为可能存在缺少设计图纸、建筑构件开裂腐蚀、施工作业环境受限等不利情况,相比于新建项目,这类改造项目有可能难度更高,对于设计、施工单位的全过程配合程度也更高,需要我们设计师与施工单位在项目的整个过程密切沟通,针对于各种不确定性的问题以及突发状况共同商议、共同解决。

全部回复(0 )

只看楼主 我来说两句抢沙发
这个家伙什么也没有留下。。。

建筑加固

返回版块

1.66 万条内容 · 381 人订阅

猜你喜欢

阅读下一篇

建筑结构加固改造设计施工

1. 北京信息科技大学 三个校区14个单体抗震加固设计。

回帖成功

经验值 +10