土木在线论坛 \ 建筑设计 \ 建筑规范 \ 建筑高度与层数计算

建筑高度与层数计算

发布于:2023-03-28 09:18:28 来自:建筑设计/建筑规范 [复制转发]

室外设计地面


室外设计地面应同时满足以下两个条件:

  • 建筑首层主要安全出口的室外设计地面标高;

  • 满足消防扑救操作要求的室外设计地面标高。

注释:两个条件对应的地面标高不一致时,应按两者中较低的标高值确定。


图片

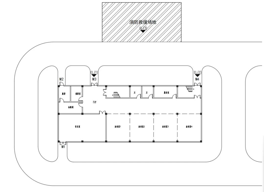
首层平面示意图

主要安全出口

这里指建筑物中作为人员集中疏散的安全出口,如图示中M3\M4;

●个别房间直接对外的安全出口不视为“主要安全出口”,如图示中M1\M2;


消防扑救操作要求

一般是指消防车登高操作场地,因为登高操作场地处会有直接进入建筑的口。

消防扑救操作要求

一般是指消防车登高操作场地,因为登高操作场地处会有直接进入建筑的口。

消防扑救操作要求

一般是指消防车登高操作场地,因为登高操作场地处会有直接进入建筑的口。

消防扑救操作要求

一般是指消防车登高操作场地,因为登高操作场地处会有直接进入建筑的口。


实际项目中,当室外地坪标高存有不同时,主要安全出口的室外地坪视为“室外设计地面”,标高为图示中EL(1)、EL(2);

满足扑救操作要求的室外地面也视为“室外设计地面”,标高为图示中EL(3);

当EL(1)、EL(2)、EL(3)不一致时,按较低者的标高值确定。


屋面面层


图片

平屋面示意图

平屋面常作为临时避难和救援场所,计算建筑高度时,原则上应算到屋面面层高度(即建筑标高);



图片

坡屋面示意图

坡屋面没有临时避难和救援的需求,因此计算高度时,可直接按结构层来计算(即结构标高)




进入正题

图片

点击+自动丨淡入动画


建筑高度计算一共分为6种情况:其中第1-5适用与所有建筑,第6种情况仅使用于住宅建筑。


1


平屋面

【附录A.0.1.1】

建筑高度应为建筑室外设计地面至其屋面面层的高度(包括有女儿墙的平屋面)。

图片

平屋面建筑高度示意图

建筑高度 H=H1

注释:因女儿墙作为防护构件,且相对高度不影响消防救援,因此在计算建筑高度时,可不计入女儿墙高度

2


坡屋面

【附录A.0.1.2】

建筑高度应为建筑室外设计地面至其檐口与屋脊的平均高度。

图片

坡屋面建筑高度示意图

建筑高度 H=H1+1/2H2

3


多种形式的组合屋面

【附录A.0.1.3】

建筑高度应按上述方法分别计算后,取其中最大值

图片

多种形式组合屋面建筑高度示意图

建筑高度 H=(H1,H1+1/2H2)max

注:同一建筑有多种形式的屋面时,建筑高度应分别按①、②计算后,取其中的最大值。

4


台阶式地坪

【附录A.0.1.4】


三要素

防火墙

防火墙分隔,防火墙上的洞口采用甲级门窗洞口;

防火墙两侧建筑的疏散系统应完全独立,防火墙上的门仅可用作联系,不能作为疏散。

安全出口

各自有符合规范要求的安全出口

消防车道

沿建筑的两个长边设置贯通式或尽头式消防车道。当某一侧为高层建筑时,对应长边应满足消防救援场地设置要求)

图片

台阶式地坪建筑高度示意图

注:同时满足①②③三个要素时可按H1,H2分别计算建筑高度;否则应按H3计算建筑高度。

5


局部突出屋顶房间

【附录A.0.1.5】


二要素

辅助用房

局部突出屋顶的嘹望塔、冷却塔、水箱间、微波天线间或设施、电梯机房、排风和排烟机房以及楼梯出口小间等辅助用房。

图片

≤1/4

辅助用房面积占屋面面积不大于1/4。

图片

屋顶局部突出房间建筑高度示意图

注:局部突出屋面的构筑物或辅助用房无常停留人员,一般不需要救援且对建筑本身临时避难和灭火救援影响很小,因此可不计入建筑高度。


6


住宅建筑

【附录A.0.1.6】


二要素

≤2.2m

底部且室内净空高度不大于2.2m的自行车库、储藏室、敞开空间。

≤1.5m

室内外高差或建筑的地下或半地下室的顶板面高出室外设计地面的高度不大于1.5m的部分。

此部分仅针对住宅,即对公建不适用。

图片


住宅建筑高度示意图

  • H1>1.5m时,建筑高度H= H1+H2+H3

  • H1≤1.5m,H2>2.2m时,建筑高度H= H2+H3

  • H1≤1.5m,H2≤2.2m时,建筑高度H= H3

注:建筑高度计算时应遵循连续性




建筑层数计算





建筑层数应按建筑的自然层计算,下列空间可不计入建筑层数:

1.室内顶板面高出室外设计地面的高度不大于1.5m的地下、半地下室。

2.设置在建筑底部且室内高度不大于2.2m的自行车库、储藏室、敞开空间。

3.局部突出屋顶的设备用房,出屋面的楼梯间等


层数的计算没有特别的难度,但不计入的特殊情况与建筑高度计算有一些相似之处,计算时需要注意建筑性质。

  //  

概念:自然层是按楼板、地板结构分层的楼层。

与建筑高度计算对比

判定情况

建筑高度计算

建筑层数计算

室内顶板面高出室外设计地面的高度不大于1.5m的地下、半地下室

可不计入建筑高度

(仅住宅)

可不计入建筑层数

(所有建筑)

设置在建筑底部且室内高度不大于2.2m的自行车库、储藏室、敞开空间

可不计入建筑高度

(仅住宅)

可不计入建筑层数

(所有建筑)

局部突出屋顶的设备用房,出屋面的楼梯间

同时满足设备用房面积<大屋面面积的1/4时,

可不计入建筑高度


可不计入建筑层数

(所有建筑)

知识点:建筑高度与层数计算

建筑高度和建筑层数的计算方法

全部回复(0 )

只看楼主 我来说两句抢沙发
这个家伙什么也没有留下。。。

建筑规范

返回版块

34.61 万条内容 · 519 人订阅

猜你喜欢

阅读下一篇

耐火等级与耐火极限

01 材料、建筑构件、建筑物的关系 概念 材料 单一物质或均匀分布的混合物。

回帖成功

经验值 +10