一:写字楼一般要求
1. 规范
(1) 净高要求
按照办公楼等级划分,一类办公室内净高不低于2.7米,二类不低于2.6米,三类不低于2.5米,走道净高不低于2.2米,储藏室净高不低于2米。
(2) 走廊宽度与防火疏散
一般根据走廊长度与房间单双面布局区分,一般走廊长度≤40米的,单面布置房间,最小宽度为1.3米,双面布置房间为1.5米;大于40米长度的,单面布置房间最小宽度为1.5米,双面为1.8米。
(3) 电梯设置
5层及以上,按照办公面积每5000㎡至少设置一台。
(4) 外窗可开启面积
外窗不宜过大,可开启面积不少于窗面积的30%。
(5) 会议室
大中小会议室可分散布置,小会议室面积宜为30㎡左右,中会议室60㎡,平均使用面积,中、小会议室,有会议桌的不小于1.8㎡/人,无会议桌的0.8㎡/人。大会议室看情况,方面长宽比不宜大于2:1。
2. 办公人均面积指标
一级办公:13-15㎡/人
二级办公:11-12㎡/人
三级办公:9-10㎡/人
3. 标准层面积
一般情况下2000-2500较为合适。
平面过大会出现内部交通流线组织、防火分区、疏散距离、建筑体型处理等相关问题。
建筑 |
层数 |
标准层面积 |
深圳国贸 |
50 |
1322 |
日本世贸中心 |
40 |
2458 |
香港中银 |
70 |
2030 |
东京阳关 |
60 |
3187 |
美国世贸中心 |
88 |
2711 |
|
||
4. 办公室进深的尺度

根据使用功能、建筑规模、有效使用面积、室内空间尺度的重组灵活性及实用性,自然采光的环境卫生、视觉空间感受等综合因素,超高层办公建筑的标准层方面进深尺度以10-15米为宜。
进深跟标准层面积有很大关系。
5. 室内净高
(1)影响净高的因素:
结构梁所占高度 空调主干管的高度及位置 消防喷淋管的高度 电缆桥架高度及位置 照明定居、入吊顶的高度、吊顶构造高度
(2)办公室内净高与楼面积的一般关系
标准层500-1000㎡,室内净高至少2.8米
标准层1000-1500㎡,室内净高至少3米
二:写字楼核心筒
1、核心筒结构分类
核心筒按照结构承重体系可以划分为四类:

结构体系 |
特征 |
使用情况 |
|
框架体系 |
由核心筒与外围柱子框架组成的高层建筑结构 |
适用于高度≤100米建筑物,柱间距一般为8.1m*8.1m,也有达到9m(3的倍数);常用于写字楼、大跨度的公共建筑,如剧院、体育馆、火车站等。 |
|
剪力墙体系 |
由核心筒的一侧、两侧或三侧为剪力墙体系,其余全部为自由隔墙,可方便各种管道的自由穿行 |
||
框架剪力墙体系 |
核心筒由框架柱与剪力墙组合而成,同样具有剪力体系核心筒的优点 |
适用于100-150m建筑物(20-40层)建筑物。 优点:使用率较高,使用灵活。缺点:柱间距较小,井底舒适度,自重较大。 |
|
筒体体系 |
可以有单筒、双筒或多筒的形式,筒体的结构要求使得管道、开门受一定程度的限制,但也可以把对外关系较多的设备管道设在结构筒体之外以弥补其缺陷,这种类型建筑高度最高。 |
||
2、核心筒类型(按照位置)
a中央型独立核心筒
图A比较常规,交通路线短捷,筒体与平面的几何中心位置一致,有利于高层建筑的结构布置,是高层办公建筑采用最多的一种平面形式。
图B/C/D中长筒式核心筒,两边布置较大空间办公室,交通线路,便于布置电梯。结构均衡规整,水平刚度大。

其中:A B C的进深W为10-15m,标准层面积为1800-2500㎡;
D的进深W为20-25m,标准层面积为2000-3000㎡
B分散型核心筒
根据核心筒个数,又分为单侧筒式、双侧筒式以及三侧筒式等等,共同的特点是筒体位于建筑的外侧,使用空间进深较大,可布置大空间景观办公室,底层大厅通透、宽敞,但是结构受力不太理想,需要加强中间区域框架的刚度。

这种核心筒能得到高度灵活的大房间,适用于各层功能不同,层高不同的复合结构。进深W宜为20-25㎡,标准层面积为1500-2000㎡。
C外筒式
核心筒位于建筑外部,与建筑主体分开,用通道与建筑相连,特别是有利于创造大面积、完整、开敞的办公空间。通常作为大公司的办公楼,大家使用,不利于出租型的多用户办公。为保证各使用部分满足疏散距离的要求,面积大的建筑需在多处设置疏散楼梯。

d中偏筒
筒体位于建筑中部,紧靠外墙面,这种做法通常用于平面比较扁长的建筑,交通路线均匀、短捷。

E特殊型核心筒
核心筒占标准层总面积的比例:25%左右,当核心筒比例达到28%以上时,则表明有效使用面积降低,不够经济。
中心筒 |
||||
建筑名称 |
深圳国际商会中心 |
卓越世纪中心4号楼 |
北京财富中心 |
上海中建大厦 |
规模 |
13.3万 |
6.5万/150m |
10万/165m |
6.8万 |
结构类型 |
内筒外框型钢混凝土组合结构 |
框架核心筒 |
型钢混凝土框架+剪力墙核心筒结构 |
框架核心筒 |
核心筒位置 |
中心矩形核心筒 |
中心筒 |
中心筒 |
中偏筒 |
标准层面积 |
2000㎡(5-55F办公) |
1940㎡ |
2407㎡ |
2300㎡ |
层高/净高 |
3.6m/2.7m |
4m/3.3m |
3.7m/2.9m |
4.5m/2.75m |
柱距/进深 |
9m/12m |
7.2m/8.5m |
8.4m |
9m/9.5m |
电梯数量 |
16(客梯)+3(货梯) |
10(客梯)+2(货梯) |
24(客梯)+2(货梯) |
14(客梯)+2(货梯) |
单梯服务面积 |
5000㎡ |
5300㎡ |
6000㎡ |
4000㎡ |
使用率 |
75% |
75% |
73% |
75% |


中长筒 |
|||
建筑名称 |
北京华贸中心 |
北京第五广场 |
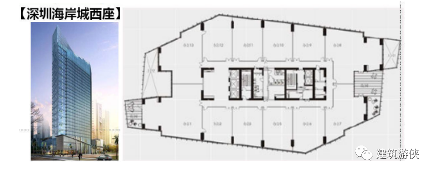
海岸城西座 |
规模 |
20万 |
12万 |
5万 |
结构类型 |
型钢混凝土框架-钢筋混凝土筒体 |
钢筋混凝土框架-核心筒架构 |
框架+核心筒结构 |
核心筒位置 |
中心矩形核心筒 |
中长筒 |
中长筒 |
标准层面积 |
2200㎡ |
2200㎡ |
2087㎡ |
层高/净高 |
4m/2.7m |
4m/2.9m |
3.75m |
柱距/进深 |
9m/10m |
8.4m/12m |
8.4m/12m |
电梯数量 |
1#2#12(客梯)6+6(高低区),3#3+6+6(高中低区) |
8+2 |
8+2 |
单梯服务面积 |
4200㎡ |
3000㎡ |
3000㎡ |
使用率 |
73% |
70% |
80% |


中长筒 |
||
建筑名称 |
深圳智慧广场 |
北京新保利大厦 |
规模 |
9.7万 |
10万 |
结构类型 |
框架剪力墙 |
钢框架-钢筋混凝土筒体混合结构 |
核心筒位置 |
分散筒中的双核心筒 |
中偏筒 |
标准层面积 |
1943㎡ 1507㎡ |
2010㎡ |
层高/净高 |
4.3m/3.5m,4.5m/3.6m |
4m/2.9m |
柱距/进深 |
8.6m/17.2m,25.8m |
9m/9米或者13米 |
电梯数量 |
A B栋各13部 |
15部 |
单梯服务面积 |
3500㎡ |
3800㎡ |
使用率 |
84% |
|

3、电梯设计
(1)电梯分区
A. 为了有效使用电梯,一组电梯的提升高度不易超过一个避难层的高度(50米),同时《办公建筑设计规范》也规定建筑高度超过75m的办公建筑电梯应分区或分层使用。
B. 低层区层数宜多些,高层区层数宜少些,建筑竖向空间布局时注意,把人多的空间布置在低区,人少的空间布置在中高层区;
C. 电梯的速度可随着分区所在部位的增高而加快,即高层区电梯比中低层区的快;一般第一个50米,速度位1.75m/s,每隔50米升一级,每升一级可加1m速度,即50-100m速度为2.5m/s,100-150m速度为3.5m/s,150-200速度为4.5m/s。
(2)电梯数量
一般写字楼5000㎡,一部1000kg客梯
高级写字楼4000㎡,一部1000kg客梯
超级写字楼3000㎡,一部1000kg客梯
建筑类别 标准 |
数量 |
||||
经济级 |
常用级 |
舒适级 |
豪华级 |
||
办公 |
按建筑面积 |
6000㎡/台 |
5000㎡/台 |
4000㎡/台 |
<2000㎡/台 |
按办公有效 使用面积 |
3000㎡/台 |
2500㎡/台 |
2000㎡/台 |
<1000㎡/台 |
|
按人数 |
350人/台 |
300人/台 |
250人/台 |
<250人/台 |
|
写字楼计算电梯时,需要用使用面积,即如果有商业裙房需要减去。首层不用电梯的面积也扣掉。
建筑 |
高度 |
建筑面积 |
电梯 |
平均单梯面积 |
卓越世纪中心4号楼 |
185米 |
6.5万 |
10(客梯)+2(消防梯) |
5417㎡/部 |
卓越时代广场 |
218米 |
8.28万 |
14(客梯)+2(消防梯) |
5175㎡/部 |
卓越世纪中心1号楼 |
280米 |
10.5万 |
20(客梯)+2(消防梯) |
4772㎡/部 |
安联大厦 |
150米 |
6.2万 |
12(客梯)+2(消防梯) |
4428㎡/部 |
深圳新能源大厦 |
250米 |
9万 |
22(客梯)+2(消防梯) |
3750㎡/部 |
|
||||
(3)电梯布局
一般电梯群控不要超过4台,而4台最好用两两相对,横向一排4台群控效果不理想。客梯横向最好不要超过3台,超过后不能很好地看到信号。
超高层电梯数量多,所以要注意一个方向来人很可能对大堂压力过大,所以应该有两个面的入口比较好,必要时四面都能进门。也有以下两种解决方法:
01可以采用双大堂的做法,即首层、二层均设大堂,以解决疏散进出的拥挤,在首层大堂单设自动扶梯直接上二层大堂。
02在门厅设一定数量的直通电梯上到空中门厅,例如在100吗、以上来转化,其核心筒可以重叠使用,以节省核心筒的尺寸,节省面积。缺点是直达梯人数多,可以考虑在电梯厅的一侧解决。
A “一”字形
电梯一字排开,分为上下或左右两排,各组群的侯梯空间串联起来,形成建筑的内走道,核心筒的各组成部分就沿着走道布置。
特点:标准层一分为二,各电梯组群的电梯厅串联起来,形成内走道,走到两端布置疏散楼梯间,整个交通组织清晰明了,非常简洁。易于划分较小出租单元。

B 鱼骨型
四组电梯分为上下左右2行2列布置,核心筒形成“鱼骨”状的交通流线,核心筒各组成部分就依附于这个骨架布置。
特点:电梯组群分区明确、易于识别,疏散楼梯与消防电梯占角布置,均衡合理。

C L字型
电梯组呈“L”型布置,两组电梯互相垂直。
特点:电梯厅之间既相互独立,又联系方便。一个疏散单元位于“L”型内侧,另一个位于外侧,均衡布置,利于疏散。

D “十”字型
电梯组呈“十”字布置,核心筒内部形成“十”字的走道。平面中心对称,利于交通组织、设备布置以及结构布置。
特点:各组群之间分区明确,但又联系方便,既分又合,疏散单元占角布置,中心对称,可使平面各点疏散距离均衡。适用于层数及电梯数量较多的平面,用户分隔面积较大。

(4)电梯尺寸
高档电梯一般不用1000kg,门偏小只有1m。1150kg的电梯门可以做到1.1m,更舒适。1600kg的电梯门可以做到1.3m。
电梯门的短墙不可设计成抗震墙,设计成填充墙,可以减少0.2m。只要将电梯背后的墙加加厚0.1m,其抗震作用反而更大。
电梯重量 |
人数 |
轿厢尺寸 |
井道尺寸 |
800kg |
10 |
1350*1400 |
1900*2100 |
1000kg |
13 |
1600*1400 |
2200*2100 |
1350kg |
18 |
1900*1500 |
2500*2300 |
(5)电梯厅
1) 电梯侯梯厅宽度
不宜太窄也不宜太宽,一般2.5m-4m之间。值得注意是,在首层的电梯口,不要缩小宽度,如厅宽是3m,口部也应该是3m,因为首层的人数是标准层的10-12倍。

2) 电梯与电梯厅的基本组合形式
组合形式 |
特点 |
走道式 |
利用走道作为侯梯空间,可节省平面交通面积,提高实用率; 缺点是侯梯厅被走道穿越,空间不完整 |
凹室式 |
电梯厅为袋型空间,相对比较完整 |
组团式 |
电梯数较多时,采用组团式将多个电梯厅组合起来 |
|
|
4、货梯及消防电梯兼货梯
根据《高层民用家在哪户设计防火规范》GB50045-95:
高层建筑消防电梯的设置数量应符合下列规定:
当每层建筑面积不大于1500㎡时,应设1台;
当大于1500㎡但不大于4500㎡,应设2台;
当大于4500㎡,应设3台。
消防电梯可与客梯或工作电梯兼用,但应符合消防电梯的要求。
消防电梯要有6㎡的防烟前室,前室要有约0.8㎡的正压送风建筑风道。
货梯与课题的比例大约是1:4的关系,大约20000平方米需要一部1000kg货梯。
其他:
不是所有的电梯都有必要通到地下室,消防梯兼货梯,需要下到地下室,单纯的消防梯不需要下到地下室(消防梯是高层需要)。每组电梯有一个通到地下室,满足地下停车需要即可。也可以在大堂换乘。
货梯兼消防电梯时,消防梯需要有6㎡的防烟前室,前室要有约0.8㎡的正压送风建筑风道。
5、消防疏散楼梯间
(1)楼梯宽度
根据《防火规范》规定楼梯净宽应不小于1.2m。防烟楼梯间需要0.8㎡的正压送风风道及6㎡的前室,其中一个楼梯可与消防前室合用一个10㎡ 的前室。

(2)疏散梯数量
一般塔式高层办公楼标准层建筑面积大约1500-2500㎡,有2个独立疏散楼梯就足够了。
(3)前室及送风道
防烟楼梯间需要约0.8㎡的正压送风道及6㎡的防烟前室,前室也要有约0.8㎡的正压送风建筑风道。
如与消防电梯合用前室,则需10㎡的防烟前室和约0.8㎡的正压送风建筑风道。
6、电梯与楼梯的关系
楼梯放在电梯对面,楼梯在电梯的背面或侧面,楼梯的休息平台与电梯厅相结合。

7、辅助空间
(1)卫生间、清洁间
《办公建筑规范》规定:
男厕每40人设大便器一具,每30人设小便斗一具;
女厕每20人设大便器一具。
洗手盆不分男女,每40人设一具。
以1500㎡标准层,以10㎡/人计算,每层最多150人。按照男女各一半,男厕需要2个厕位和3个小便斗,女厕内需要4个厕位。洗手盆男女也需要两个即可。
清洁间不可少,但是可以小一点,占用一个厕位就满足。无障碍卫生间尺寸不得小于2m*2m。
写字楼首层最好不设厕所,因首层停留的人少,万一管理不善,大堂容易有异味,影响写字楼形象。可以上二层或者地下一层,用标识指引即可。
(2)茶水间
小开水间可用电水炉,附设一个洗池和小台面以方便洗刷茶杯和倾倒茶籽等。可考虑设置在核心筒内,面积大小10-20㎡不等。现在茶水间希望视野开阔,有吧台。
(3)平面设计原则
卫生间及茶水间设计在核心筒同一位置,便于管井对齐,方便走管。更多的做法是灵活利用上下电梯分区的电梯厅或者电梯井道的位置,节省面积,提高实用率。
8、设备空间
(1)强弱电井
高层办公每层应设强电间、弱电间,强电弱电大约各6㎡。
强电井最实用方法紧邻电梯井道,利用筒体宽度的富余空间设置。
弱电井不易于强电井道紧邻或共用,因其容易受到电流强磁场的干扰。
(2)水管井和空调水管井
一般分隔给两个以上较小的管井,既有利于检修方便,也与核心筒结构墙体的较小空间分隔布置吻合。
水管井里各种水管分别是消防水管、雨水管、高位水箱上水、给排水、排污管、冷冻供水、凝结水、冷却回水、冷却供水、热水管道、热水循环管道等。
未必包含所有的管道,其中热水管道和热循环管道是生活用,一般只有根据办公楼的实际要求才会设计(例如公寓式写字楼)。这些管道相对都不小,有的达到500mm-600mm,大约要占8㎡-10㎡。
(3)空调机房
空调机房主要是针对高层建筑中华越来越多采用的VRV小型中央空调系统而设,机房大小要根据具体项目与设备专业沟通后确定。
(4)新风机房及新风井
超高层建筑设计中新风机房多设在上下的避难层里,因为避难层一般占不到一个避难层,可兼用。也有放在地下室或屋顶层。因此在核心筒里只要留有新风管道就行了。根据建筑体量由设备专业确定,一般不会超过3㎡。
若有新风机房放在核心筒内,大约占标准层面积的1.5%,即1000平方米的话需要15㎡。
新风机房如果设在无法直接通风的位置,则需要在其周围设置与之匹配大小的新风井,反之则不需要设置新风井。
(5)走廊排烟井
一类高层建筑和建筑高度超过32米的二类高层建筑的下列部位,应设机械排烟设施;
无直接自然通风,且长度超过20m的内走道或虽有直接自然通风,但长度超过60m的内走道。
排烟井大小需根据实际项目所需排烟量及排烟井个数与设备专业沟通后确定。
(6)设备机房平面布置原则
若分层设置空调机房,需要考虑空调机房的位置主要是以下两点:
01靠近负荷中心,均衡布置,以缩短空调管的长度,尽量避免空调管对楼层净高影响;
02尽量靠近外墙布置,以便直接引入新风,省去新风竖井。
(7)管井平面布置原则
管井的位置应尽量靠近负荷中心,以利于走线和减少线路能量消耗,因此管井应靠核心筒外围不止。具体到每个管井,则略有不同。
水管井应靠近水单元分散布置,如卫生间、开水间以及空调机房等;
电气间不管是否进人检修,紧邻公共走道布置比较适宜,保证检修时不影响办公空间的使用。
9、避难层
(1)通向避难层的防烟楼梯间应在避难层分隔,同层错位或上下层断开,但人员必须经避难层方能上下。
(2)考虑人体体型特点,在不至过分拥挤的情况下,人均避难层使用面积指标0.2㎡。
(3)避难层可兼做设备层,但设备、管道宜集中布置。
(4)避难层设消防电梯出口和消防专用电话,其他客货梯不得在避难层处设出口。
10、车库设计
(1)车库应尽量不和其他机房放在同一层,因为层高不同,而其他机房在同层的面积一定少于50%。面积即使不损失,空间也要损失,坡道要加长。
(2)地下车库防火单元允许做到4000㎡,要求疏散楼梯少,有很多疏散楼梯不用下去,以节省面积。
(3)车位的面积,每辆车40㎡计算,约占用建筑面积的20%。基础数据1800*4800。
(4)车库尽量设计成单行线,会增加一些车位。
(5)转圈坡道占面积较多,应尽量少用。
11、对结构柱的估计
一般经验:
100米高办公,柱子1.7㎡,柱直径是1.3米*1.3米。如下:
100米——1.7平方米——13.*1.3
90米——1.53平方米——1.2*1.2
若感觉柱子太粗,可以在下面几层用型钢混凝土柱,那么100米高办公,柱子1㎡。
100米—1㎡—1m*1m
120米—1.2㎡—1.1m*1.1m
145米—1.45㎡—1.2m*1.2m
170米—1.7㎡—1.3m*1.3m
超高层也可以考虑用筒中筒,外筒的柱间只有一半柱距的一般,如4-6米,入口处可以拔掉一根,用斜柱来转移。
知识点:写字楼核心筒设计要点整理
0人已收藏
0人已打赏
免费21人已点赞
分享
混凝土结构
返回版块140.17 万条内容 · 2216 人订阅
回帖成功
经验值 +10
全部回复(1 )
只看楼主 我来说两句 抢板凳很不错,很有干货
回复 举报