0 引言
随着GB50116-2013《火灾自动报警系统设计规范》(以下简称“新《火规》”)的实施,火灾自动报警系统设计增加了许多子系统,消防应急照明和疏散指示系统便为其中之一。本文是规范实施后在设计中的一些经验总结的分享,值得一读:

1、消防应急照明和疏散指示系统的联动控制设计
集中控制型消防应急照明和疏散指示系统,应由火灾报警控制器或消防联动控制器启动应急照明控制器实现。
集中电源非集中控制型消防应急照明和疏散指示系统,应由消防联动控制器联动应急照明集中电源和应急照明分配电装置实现。
自带电源非集中控制型消防应急照明和疏散指示系统,应由消防联动控制器联动消防应急照明配电箱实现。
2 、消防应急照明和疏散指示系统的优点
在新《火规》未发行实施之前,消防应急照明的设计采用双路电源末端互投供电,并且消防应急标志灯具自带蓄电池。部分地方消防部门要求,与消防相关的机房照明也需要加蓄电池。然而,照明灯具在蓄电池质量好的情况下使用寿命可达到两三年或更长时间;若蓄电池质量不佳,除更换费用,维护成本及人工成本也是一笔不小的开销。现在建筑设计中,大型综合体、客运建筑、医院等人员密集场所比比皆是,一旦发生火情,如果不能做到及时合理疏散,后果将不堪设想。所以火灾自动报警系统中增设消防应急照明和疏散指示系统的联动控制有如下优点。
1)带有自检功能,确定故障点,保证系统的正常运行。
2)集中控制各个应急照明灯具,并能指示疏散方向。
3)目前市面应急疏散灯具产品一般多为24/36V供电电压,避免人身触电,安全可靠。
4)采用LED光源,绿色环保、寿命长。
5)采用消防应急灯具专用电源(EPS)作为备用电源,方便管理维护。
3、 消防应急照明和疏散指示系统的平面图纸设计
新《火规》实施之前的消防应急照明设计中,大多数设计师包括笔者在内,在车库、公共走道等位置通常会将普通照明中的1/2或1/3考虑为应急照明,有的地下室应急照明直接100%兼作普通照明。
以一类高层建筑楼梯间为例,楼梯间设置应急照明灯(不带蓄电池),消防强制点亮,疏散指示灯自带蓄电池(如图1~2所示)。然而按照新《火规》的要求,增加消防应急照明和疏散指示系统后,平面图设计中出现了相应的问题。


1)如果应急照明直接改由集中应急电源供电,由于消防应急照明灯具自身功率过高,造成应急电源(蓄电池)容量过大。以飞利浦单端(紧凑型)节能荧光灯为例,走道照明灯具功率值为10W,光通量为600lm。采用集中电源集中控制型消防应急照明和疏散指示系统,应急照明按普通照明的1/2或1/3考虑,应急备用电源容量会相当大,不符合实际使用。而目前市面上消防应急照明和疏散指示系统的产品通用LED光源,如果以LED光源直接替代节能荧光灯,以3WLED光源为例,光通量仅为80~100lm,又很难满足平时走道照度要求100lx。
2)JGJ16-2008《民用建筑电气设计规范》中,规定一类高层建筑公共走道照明为一级负荷;又如车库大空间区域,事故停电时为了保证人员安全疏散,需设置为事故照明使用的事故照明箱。
综上,建筑照明按功能设置相应的照明配电箱,即普通照明箱、应急照明箱、公共事故照明箱。
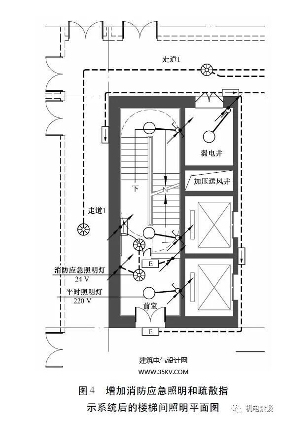
在增加消防应急照明和疏散指示系统后,楼梯间照明改由公共事故照明箱供电,增加消防应急照明灯,消防应急照明灯及疏散指示灯电源均引自集中蓄电池,应急照明配电箱系统图及楼梯间照明平面图见图3~4。


其他如车库、走道等场所,平时普通照明电源引自普通照明箱,疏散功能的照明电源引自事故照明箱或与应急照明兼用(满足最低照度值即可),或自应急照明箱单独引一路消防应急照明电源,平面及系统图同理。
4 、消防应急照明和疏散指示系统问题总结
1)如一类高层建筑的照明设计按照规范要求:
电井内需设置一级负荷的公共走道照明箱、应急照明箱、三级负荷的普通照明箱、智能疏散照明分配电装置等4个配电箱。电井面积需考虑充足。
2)GB17945-2010《消防应急照明和疏散指示系统》规范中要求消防应急照明灯应急状态下光通量不应低于50lm,而规范要求疏散照明照度最高值仅为5lx,所以单独增加一路消防LED应急照明即可满足。
3)按照新《火规》之前应急照明箱系统图做法,每个应急照明回路设置消防强启模块,火灾时消防应急照明可由消防控制室集中控制。而在现有规范中,只有JGJ48-2014《商店建筑设计规范》中明确大型商店建筑的疏散通道、安全出口和营业厅应设置智能疏散照明系统。所以,除上述建筑类型外,应急照明回路设置消防强启功能,应急照明灯及疏散指示灯均自带蓄电池,是满足消防设计要求的。
5 、结束语
火灾自动报警系统的设计是现代民用建筑前期预防火灾的重点,在满足安全可靠性的同时,还能做到经济合理、技术先进、维护管理方便才是电气设计之本。以上为笔者对消防应急照明和疏散指示系统的一些总结,随着技术的进步,相信消防系统会更加完善。本文仅供设计人员参考,也欢迎同行们批评指正。
内容源于网络,旨在分享,如有侵权,请联系删除
相关资料推荐:
https://ziliao.co188.com/d62425608.html
知识点:火灾自动报警系统和应急照明的联动控制设计 的相关问题思考与总结
0人已收藏
0人已打赏
免费3人已点赞
分享
建筑消防给水
返回版块28.41 万条内容 · 744 人订阅
阅读下一篇
消防配电电线电缆知识要点我国发生的火灾中,因电线电缆引起的火灾占较大比例,火灾时引燃电线电缆中可燃绝缘和护套材料致使火灾事故进一步扩大,电线电缆绝缘和护套材料燃烧散发出的有毒气体会造成人员伤亡,并阻碍消防人员的灭火,发生火灾可能导致消防设备的电源线路被烧毁,不能确保消防电气设备正常运行,延误了灭火时间,造成更大的人员和财产损失。为了使电线电缆的选择做到安全可靠、技术先进、经济合理,防止电线电缆所引起的火灾,减少电线电缆在火灾中造成的人身伤亡和财产损失,保证消防设备电源线路在火灾中仍能适时维持其完整性,国家的各类规范对于消防配电中的电线电缆的材质及敷设提出了具体明确的要求。
回帖成功
经验值 +10
全部回复(0 )
只看楼主 我来说两句抢沙发