土木在线论坛 \ 建筑设计 \ 居住建筑设计 \ 现代建筑的空间特征

现代建筑的空间特征

发布于:2023-03-14 11:06:14 来自:建筑设计/居住建筑设计 [复制转发]
图片


 17、18世纪的英国住宅中,因为主人和佣人之间的主仆关系,人与人交流方式的改变对于空间组织产生了影响即住宅的使用空间开始分离,形成供佣人使用的走廊空间,并且让走廊与楼梯的交通空间连接起来。

代表建筑:红屋(莫里斯的住宅,由韦伯设计

图片


图片


1、意大利园厅别墅

文艺复兴时期的住宅,中心化的平面,四个门,说明当时不太注重私密性,注重人与人的交往


2、维康府邸

大厅的空间面对花园,把贯穿空间设计在一个层次上,相较于文艺复兴的空间出现私密的区分


3、17世纪的住宅

17世纪的英国,建筑平面开始有了走道,但是仅仅起到区分主人和仆人区域的作用。


4、如画\园林式空间

是当时新形成的美学范畴对法国古典主义园林的抗衡。从空间理念上提供了一种非正式的空间,人与空间的关系是运动的,与空间的关系是变化的,并非一下子全部展开,与中国古典园林的思想一致,这些特征最后发展到了现代建筑中。


5、19世纪工艺美术运动

以红屋为代表,自由建筑运动 - 场地空间与组织,但是空间并未形成开放性。


图片

意大利圆厅别墅


图片

维康府邸


图片

园林式空间


图片


一、间平面,诺曼·肖   


1、 间平面的概念

间平面Room plan:将一间间房间串联起来的空间形制,体现出自由的空间组织


2、住宅设计

走道式的空间组织:通过走廊将空间组织在一起,每一个空间都是独立、自由的序列


二、空间体积规划(Raumplan),路斯   


1、空间体积规划的概念

空间体积规划:把各种容积的房间组织在一起,打破房间之间的界限,形成整体的空间,是一种空间组合的方法。


2、代表建筑:穆勒住宅


1)不同房间/不同空间高度的组合

每一个功能单元是互相独立(错层),自由组合的关系,而交通空间是具有连贯性的,通过行走的路径呈现出不同房间的景象。

空间设计考虑到场地(山地)的特性和景观朝向,例如客厅和起居室具有最好的景观朝向,可以眺望远处布拉格的市中心。


图片


2)区分和整合

区分:材料的丰富性塑造不同的功能单元,保持自身的空间品质(例如:通过材料区分客厅与起居室,客厅采用大理石的材料,而起居室选用亲切的材料,利用家具和软质材料)

整合:不同高度空间的整合方式受到英国式住宅“走廊平面”的影响,利用交通空间将所有空间串联起来,但是这里的走廊空间是具有不同高差的交通空间


图片


3)建造适宜

整体做法是一种空间的打开,关注内部空间,虽然有“装饰就是罪恶”的名言,但是路斯强调的是建造适宜,即内外的合适性,并不排斥适宜的、恰到好处的装饰。


图片


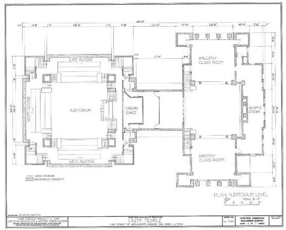
三、 游走空间的运动  赖特   


1、 统一教堂


1)对称关系的分析

从空间的形式去分析,是一种对称的空间形制,从使用者的角度去分析,教堂面对主要的交通干道并没有设立入口,因此入口并不位于中心的位置,人进入教堂以后感受不到空间的对称性。

2)游走空间的运动:延迟、局部的隐藏,时隐时现

从街道进入教堂,面对祭坛空间,需要转弯 7 次,是一个环绕迂回的空间路径,形成了与传统教堂的空间概念(正入口进入直接面对祭坛空间)完全不同,尽管在形式上是一种对称关系,但是其实是一种全新的空间概念。


图片
图片


2、草原式住宅

十字形的空间形制,以壁炉为中心,空间向自然空间伸展,形成对话交流的关系,并没有严格划分空间之间的区别,并且以壁炉为中心的空间之间具有互相渗透的关系。


3、罗比住宅

1)餐厅与起居室形成的连贯空间

交通空间与壁炉形成交通核,但并不是划分餐 厅与起居空间的要素,在不同空间中通过相同元素的渗透,即延续窗和屋顶连贯的、一致的形式以及墙体线脚的延伸,打通两种空间的界限,形成空间之间的交流关系,是一种整体性的空间特征。

2)打破方盒子

通过缜密的结构手法设计思维打破“盒子”的形制,以达到流动自由空间的效果。


图片
图片


四、 建筑漫游,柯布西耶   


1、新建筑五点


底层架空

屋顶花园

横向长窗

自由平面

自由立面(可以结合萨伏伊别墅一起记忆)


图片


2、多米诺体系


柯布提出的多米诺体系,分析楼板与立柱之间的关系,解放空间,进一步提出底层架空的概念,适应了汽车的普以及城市的发展。

由于通过墙体限定空间会使得功能受到约束,所以使用立柱体系打破了墙体承重的传统。因此,在立柱体系与满足空间功能的需要的前提下,可以提出自由平面的组织方式。


图片


3、建筑漫游


强调空间的组织与人的感受、经验,人的运动所引起的视觉变化关联起来,关注建筑空间的延展与景观的关系,追求理想秩序与功能空间。

注意:从多米诺框架到新建筑五点,再到对于空间流动性的探索,是一种连续发展的过程,对于空间的设计不仅追求室内空间的流动,还强调建筑体量的完整性,认为建筑只有回到几何的关系中,才能呈现形式完整性的意义。


图片


4、 四种原型


1) 拉罗歇住宅

内部空间的组织受到英国 19 世纪住宅的影响,由交通空间将不同的空间串联起来,但是走廊的空间特征已经模糊化,难以明确区分交通空间与其他空间,建筑外部是由一个个的体量叠加组合而成,没有形式理想的秩序。


2) 加歇住宅\斯坦恩别墅

a 自由的平面组织,并且形式具有清晰的秩序;

b 建筑外部具有一种整体的秩序关系;

c 内部空间的自由组织与功能形式的合理安排,比较难以把握。

图片

四种原型


图片

拉罗歇住宅


图片

加歇住宅



3) 拜索别墅

采用多米诺的框架体系,内部空间按照功能的需要进行合理的组织;建筑由于采用框架的形式,并没有形成建筑完整的外部形象。


4)萨伏伊别墅

内部是串联的功能空间,外部为西方古典建筑的理想秩序,具有几何关系的整体

b 最理想的形式:体现出自由的功能空间与理想秩序形式完美结合

c 自由空间的张力:二层花园与起居室的空间关系与外部立面并不是对应关系,强调外部完整性与内部自由空间建立辩证的关系

建筑漫游:体现出不同的空间景致随着路径逐步展开的空间概念


图片

拜索别墅


图片

萨伏伊别墅



五、 流动空间体验,密斯   


1、密斯的主要设计思想


1) 结构逻辑性

2) 功能适应形式:先结构后形式,先空间后功能,讲究条理

3) 少就是多:“少”是强调在建筑形体的处理上遵循简约原则,净化多余的部分,在结构方面提倡使用简洁的钢框架,实体部分则使用玻璃幕墙;“多”则是指在工业化条件下使用新技术,在形体简洁的同时达到丰富的艺术效果

4) 打破方盒子:地板与天花板形成两个连贯的界面,房间没有威哥,分隔而连贯,玻璃的使用使得庭院和室内没有界限


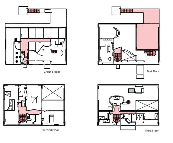
2、里尔住宅


空间没有完全地打开,后花园“拒绝了花园大门与住宅入口的直径连接”,访问者需要经过数次转折才能看到全部景色,这种延迟展现的策略也说明了观者如何变成“流动的观察者”


图片


3、图根哈特住宅


1)延续了里尔住宅基座的设计手法,体现砖宅的设计理念——各种墙体都成为独立的元素,进行围合与渗透;

2)构建空间与花园的关联性,将室内空间与花园置于一个层面进行塑造,虽然使用玻璃分隔室内外空间,但是玻璃的围合并不影响密斯对于整体空间的思考和处理方式;

3)结构的清晰性:密斯使人清晰地区分支撑结构,使得柱子具有独立的表达。


图片


4、巴塞罗那德国馆


1)景观建筑师

a 每个景观都是片段式的,总是不那么直截了当地一个接一个显现出来

b 不同的空间景致随着使用者的运动逐步展开,“步移景异”


2)流动的观察者

a 雕塑:引导的姿态,与光影的关系,是空间画龙点睛的要素

b 大理石与园林:把园林与建筑放在一起设计,风景室内化

c 十字钢柱:使空间不被大面积的柱子挡住,失去流动性


图片
图片


3)  水平切面

天花板与地面被视为同一元素,强调两个面之间的自由连贯,中间展开不同元素之间的组织,建构空间与景观互相渗透的对话关系;密斯水平式的切面形成水平向的框景,将视线拉向远方,关注远方的景观 。


4) 空间关系解读

传统对于巴塞罗那馆的阅读——“似是而非的对称”,天花板和地板的性质做的非常一致,消解两个界面的差异性,加强流动性;密斯的空间具有矛盾性,一方面追求空间的连贯性,另一方面追求建造的精确性以及精确的表达,空间的伸展与围合之间存在矛盾。


图片
图片


5、范斯沃斯住宅


1)特点

在建筑外表面清晰的呈现结构体系,追求内部空间的完整性和连贯性;天花板与地面纯净的关系以及将最小化的窗框形式,尽可能不打断/不影响室外景观在室内所呈现完整的图景,建筑四周的玻璃窗成为了一幅自然景观的“画卷”。


图片


2)通用空间

流动空间”概念的进一步发展,在流动空间中,大的空间被划分为几个相互连贯的小空间,但是把隔墙移走之后,留下来的就是一大片整体空间,在空间中可以随意布置,将其改造成任意形式,比流动空间更加完美、更加纯粹,印证了密斯“少就是多”的追求。

b 将结构体系置于建筑空间的外部,这种设计手法并不是为了清晰的展现结构形式,而是使得室内空间尽可能不被结构元素所打破,从而塑造空间的完整性与连贯性,强调室内空间与景观互相渗透的对话交流关系


图片


6、芝加哥湖滨公寓

第一座真正意义上的高层建筑,全面空间的代表


7、西格拉姆大厦

密斯风格,国际式风格的代表


图片

芝加哥湖滨公寓


图片

 西格拉姆大厦


8、克朗楼


1)完全对称,有台基,用新技术来呈现古典的秩序

2)通过将结构体系置于建筑外部的设计手法,例如上翻梁,对于立柱位置的调整,进而形成最为完整、连贯的内部空间,即毫无障碍的通用空间

3)通用空间并不是为了呈现结构形式,而是强调空间的完整性与连贯性以及对于室外景观的渗透关系,与古典建筑不同,密斯的空间是没有等级化的中心空间


图片
图片


图片


1、1932年MOMA国际式建筑展


1)策展人:希区柯克、菲利普·约翰逊

2)《国际式风格:1922年以来的建筑》

基于展出的现代建筑作品以及对于时代敏锐的观察,认为现代建筑是建筑发展的普遍方向,并且针对 20 世纪现代建筑的发展特征进行了深入的探讨,总结共同特点, 称之为国际式风格。


图片


2、新建筑风格的三个原则


1)作为体量的建筑

由于建造体系转向框架结构,建筑从传统墙体承重的体块,转向了支撑、体量和表皮的组织,内部和外部获得自由,一种以体量形成外表的原则,作为表皮的材料成为塑造建筑外部的要素。

2)相关的有序性

依据功能的需要、建造的特征,形成建筑形制的布局方式,而不再依据古典建筑的原则特征组织建筑的形式。

3)应用型装饰的摒弃

不再使用对于塑造空间毫无意义的装饰。


知识点:现代建筑的空间特征

空间的特征

全部回复(0 )

只看楼主 我来说两句抢沙发
这个家伙什么也没有留下。。。

居住建筑设计

返回版块

28.74 万条内容 · 423 人订阅

猜你喜欢

阅读下一篇

室内净高的计算--民用建筑设计标准

1、室内净高应按楼地面完成面至吊顶、楼板或梁底面之间的垂直距离计算,如下图示abc; 2、当楼盖、屋盖的下悬构件或管道底面影响有效使用空间时,应按楼地面完成面至下悬构件下缘或管道底面之间的垂直距离计算,如下图示a、b。 内容来自网络如有侵权,请直接号内私信我们删除! 知识点:室内净高的计算 电气设备室内净高的问题

回帖成功

经验值 +10