&卫生间的位置
1.室内公共厕所的服务半径应满足不同类型建筑的使用要求,不宜超过50.0m。
2.在食品加工与贮存、医药、档案、文物等有严格卫生、安全要求房间的楼上不应布置卫生间、盥洗室、浴室等有水房间。
3.在餐厅、医疗用房等有较高卫生要求用房的直接上层,应避免布置厕所、卫生间、盥洗室、浴室等有水房间。
&卫生间洁具布置
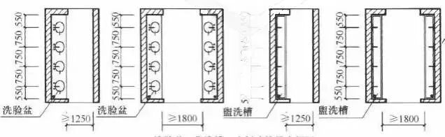
盥洗池
1.盥洗槽水嘴中心与侧墙面净距不应小于550mm;居住建筑洗手盆水嘴中心与侧墙面净距不应小于350m。且并列洗手盆或盥洗槽水嘴中心间距不应小于700m。
2.单侧并列洗手盆或盥洗槽外沿至对面墙的净距不应小于1250m;居住建筑洗手盆外沿至对面墙的净距不应小于600m。
双侧并列洗手盆或盥洗槽外沿之间的净距不应小于1800m。

小便器
1.并列小便器的中心距离不应小于0.7m
2.小便器中心距侧墙或隔板的距离不应小于0.35m
3.小便器之间宜加隔板
厕所隔间
1.单侧厕所隔间至对面洗手盆或盥洗槽的距离,当采用内开门时,不应小于1.3m;当采用外开门时,不应小于1.5m。
2.单侧厕所隔间至对面墙面的净距,当采用内开门时不应小于1.1m,当采用外开门时不应小于1.3m;双侧厕所隔间之间的净距,当采用内开门时不应小于1.1m,当采用外开门时不应小于1.3m。
3.单侧厕所隔间至对面小便器或小便槽的外沿的净距,当采用内开门时不应小于1.1m,当采用外开门时不应小于1.3m;小便器或小便槽双侧布置时,外沿之间的净距不应小于1.3m(小便器的进深最小尺寸为350mm)。
注:厕所的尺寸推荐配合图记忆。
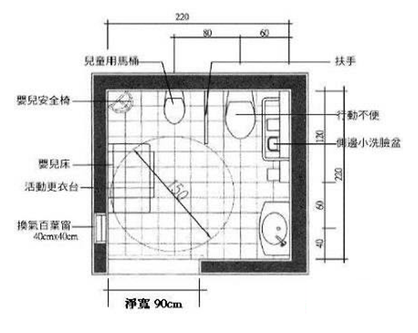
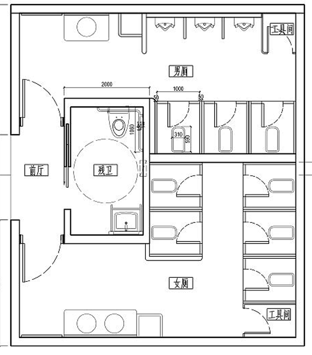
&无障碍卫生间
无障碍卫生间的内部应满足半径为1.5m的轮椅回转半径。
无障碍卫生间宜单独设置(无性别),也可以与其他卫生间合设,具体尺寸与布局方式见下图。
&住宅类建筑卫生间
别墅、酒店也是建筑快题常考的题目之一,此类建筑的卫生间主要有盥洗池、沐浴区和马桶区三大功能分区,常见布局和尺寸如下图。
知识点:卫生间
0人已收藏
0人已打赏
免费3人已点赞
分享
居住建筑设计
返回版块28.74 万条内容 · 423 人订阅
阅读下一篇
民用建筑的安全疏散距离1 安全疏散距离 在民用建筑里面,安全疏散距离两个指标,一个是位于两个安全出口之间的疏散门的距离要求,另一个是位于袋形走道两侧或尽端的疏散门的距离要求,这个要求也是从房间内任一点到疏散门的距离要求,它们两个是一致的。也就是在民用建筑里等于是把从室内到安全出口的距离分成了两段,第一段是从室内任一点到最近疏散门的距离,第二段是从疏散门到安全出口的距离。 这个建规的5.5.17的表格,大家重点要把一、二级耐火等级的距离记住,这是高频考点。对于高层建筑来说,它们从房间内任一点到疏散门的距离正好都是从疏散门到安全出口的距离的一半,高层医疗病房24、12,高层医疗非病房、高层教学、高层旅馆、展览建筑都是30、15,其他高层40、20,都是一半。对于歌舞娱乐场所和老幼的场所,疏散门到安全出口的距离要求都是25m,房间内任一点到疏散门对于歌舞场所是9m,老幼是20m。单多层医疗是35、20,单多层教学 35、22,单多层其他建筑是40、22。
回帖成功
经验值 +10
全部回复(0 )
只看楼主 我来说两句抢沙发