导读
简析负压隔离病房楼的特点,通过设计实例,介绍了负压隔离病房楼的给水、热水、排水、消防给水、污水处理等给排水主要系统的设计要点,总结了负压隔离病房楼在卫生器具选择、施工安装要求等方面的心得和建议。
2019年末开始,世界范围内开始爆发新冠肺炎,在针对此类烈性传染病的防、控、治的过程中,负压隔离病房发挥了巨大作用,合理设计和使用负压隔离病房,不仅能为病患提供安全、安心的治疗,也能为医护人员提供有效的防护。
1 负压隔离病房的特点
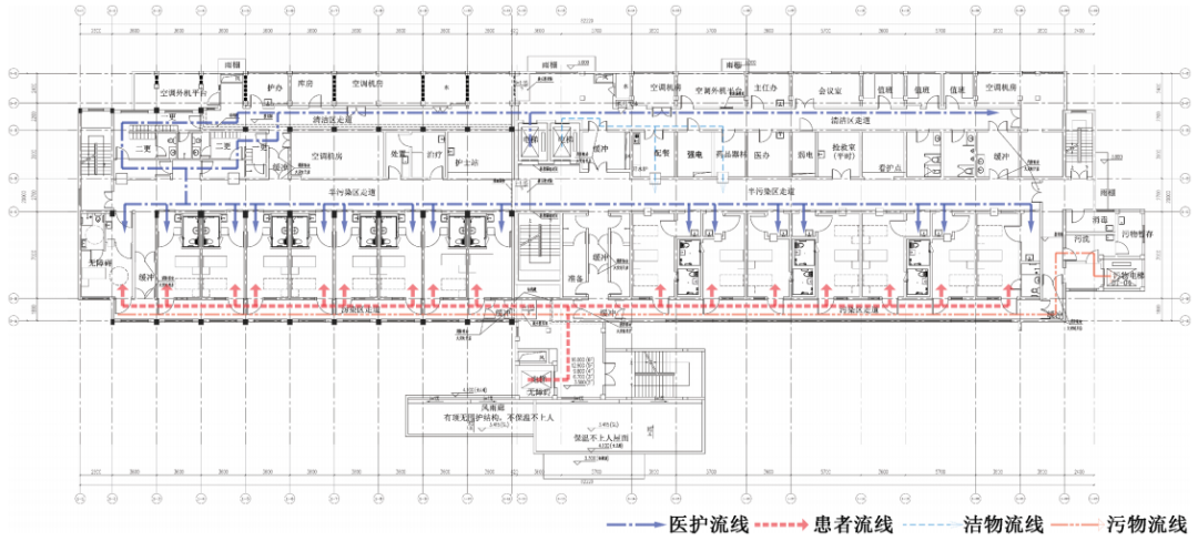
所谓负压隔离病房,是指采用空间分隔并配置全新风直流空气调节系统控制气流流向,保证室内空气静压低于周边区域空气静压,并采取有效卫生安全措施防止交叉感染和传染的病房。其病房楼标准平面布置必须包括且严格区分清洁区、半污染区、污染区、医务人员通道和病人通道,即“三区两通道”;“三区”相邻空间之间必须设置有组织气流并形成卫生安全屏障的“缓冲间”;其医疗流程过程中,必须严格执行更衣、沐浴、换鞋、洗手等卫生通过方式。以上海某医院老院区普通病房楼改建的负压隔离病房楼(下称改建病房楼)为例进行介绍,其标准层平面见图1,标准层流线见图2,病房轴侧示意见图3。

图1 负压隔离病房楼标准层平面

图2 负压隔离病房楼标准层流线
图3 负压隔离病房轴侧示意
负压隔离病房是一个高标准、严要求的传染病房,从其定义的理解,主要包括2方面内容:一是对气流组织和内部气压的要求(气流流向示意见图4,图中箭头颜色自蓝至红表示污染越来越严重);二是有效防止交叉感染和传染。前者主要涉及建筑、结构、暖通专业,后者则涵盖了全专业。给排水专业需要从用水、排水、接触等方面采取有效的措施防止交叉感染和传染。
图4 负压隔离病房气流示意
2 主要设计依据
目前现行的可作为主要设计依据的规范或标准有《传染病医院建筑设计规范》(GB 50849-2014)、《传染病医院建筑施工及验收规范》(GB 50686-2011)、《新型冠状病毒感染的肺炎传染病应急医疗设施设计标准》(T/CECS 661-2020)、《综合医院建筑设计规范》(GB 51039-2014)、《医院污水处理工程技术规范》(HJ 2029-2013)等。
在本次疫情期间,国家相关部门出台的设计导则或文件主要有国卫办规划函[2020]111号《新型冠状病毒肺炎应急救治设施设计导则(试行)》、国卫办规划函[2020]166号《新冠肺炎应急救治设施负压病区建筑技术导则(试行)》、应急管理部消防救援局《发热病患集中收治临时医院防火技术要求》、环办水体函[2020]52号《关于做好新型冠状病毒感染的肺炎疫情医疗污水和城镇污水监管工作的通知》。
除此之外,各地区根据本次疫情和中央相关决策、精神,相应制定了一系列地方性指导文件、设计导则等,可参考执行。另外,由中国建筑标准设计研究院组织编制的图集《应急发热门诊设计示例(一)》(20Z001-1)可作为设计制图参考。
3 给排水主要系统设计
3.1 规模概况
改建病房楼为6层(多层)无地下室的砖混结构,以“平战结合”的使用需求为整体设计思路。平时为普通病房楼,最大床位数257床;战时(即疫情时期)为负压隔离病房,最大床位数204床。
3.2 给水系统
考虑负压隔离病房通常为烈性传染病房,改建病房楼采取严格防回流防污染措施。其生活给水泵房和生活热水机组均设置在室外独立区域(清洁区),生活给水系统全部采用断流水箱加恒压变频泵组的方式供水。水箱按调节容积平均分为2个,便于定期清洗维护,同时也考虑疫情时期若水箱内水质不能满足要求可及时清洗检修。
在生活水箱进水总管上预留DN25支管和截止阀,可以作为负压隔离病房楼加强消毒剂投放和计量接口,同时也能作为市政供水末端水质检测取样口。此条参考了湖北省“导则”和浙江省建筑设计研究院“指南”,同时考虑设置该接口后可以方便采样比对市政供水和单体储水水质,及时分析应对水质差异问题,在基本不影响造价且技术上极易实现的原则下建议采用。
由于改建病房楼远期为普通病房楼,所以在确定用水标准时同时考虑了《传染病医院建筑设计规范》(GB 50849)、《建筑给水排水设计标准》(GB 50015)和《综合医院建筑设计规范》(GB 51039)规定的标准取值。平时使用时,需要考虑每床一位陪护家属,医护人员除分布在病房楼以外还分布在门急诊等处;而战时无家属陪护需求,且医护人员集中在病房楼,所以在用水量的计算过程中,应灵活运用规范取值的上下限和用水人员的具体分布情况,并以最不利情况进行用水量的复核。改建病房楼计算采用的用水标准见表1和表2,用水量见表3。
表1 给水用水标准(平时)
表2 给水用水标准(战时)

表3 给水用水量

给水总管井设在清洁区,在管道设置时,给水总管及检修阀门等设置在清洁区和半污染区,按两区各自独立使用防止交叉污染为原则;当无法避免时,管道按供水水流方向从清洁区穿越至半污染区,并在清洁区设置关断阀、倒流防止器等措施。
3.3 热水系统
热水主要供给病房、医护人员洗浴,公共卫生间洗手等。改建病房楼采用集中供热方式,系统为恒压变频供水设备供水、空气源热泵辅助电加热机组集中加热至使用温度后供应生活热水,采用全日制机械循环同程布置,设备自带自动调节水温的装置,且热水制备设备带有保证使用安全的装置。热水计算采用的用水标准选用应与冷水相对应,见表4和表5,热水用水量和耗热量见表6。
表4 热水用水标准(平时)

表5 热水用水标准(战时)

表6 热水用水量和耗热量

在热水机组选型时,如果仅考虑按平时和战时的设计最大值进行设备选型,热水机组会非常庞大,既不经济也不节能。建议按战时标准进行计算和设备选型,以平时使用时适当考虑空床率和错峰使用进行复核,可以满足平战结合使用需求。改建病房楼最终生活热水机组选用见表7,经比对,每床位的热水使用量、耗热量等经济指标与雷神山医院基本相当。
表7 生活热水机组选型

改建病房楼每层都设置了冷水、热水、热水回水管,热水、热水回水管在设计时采用同程布置,每个回水点均从热水支管的维修阀门(采用截止阀)后、支管减压阀前(若有)的短支管接出,保证回水点后的不循环热水支管长度不超过5 m。热水回水管由于无法避免穿越了半污染区,设计在每层热水回水总管回至清洁区内时,设置AOT消毒装置第一时间对回水消毒杀菌。
3.4 消防给水系统
改建病房楼的室内消火栓系统采用临时高压消防给水系统。在清洁区或半污染区的楼梯出入处、前室、走道等明显易于取用的地方设置DN65室内消火栓、软管卷盘和手提式灭火器组合箱进行保护,室内消火栓的设置满足每个楼层每个防火分区内的任何一点都有二股充实水柱到达,水枪充实水柱不小于10 m。在每个护士站设置一个组合箱,供水总管、阀门附件、消防箱等尽量避免设置在污染区。
改建病房楼的自动喷水系统采用临时高压消防给水系统,共设2套湿式报警阀组,一组保护清洁区和半污染区,一组独立保护污染区。病房楼各部位均采用湿式系统保护,喷头采用快速响应喷头隐蔽式安装。每层为一个防火分区,但设计中每层设置2个水流指示器,一个控制保护清洁区和半污染区,另一个独立控制保护污染区。污染区水流指示器后分为两路供水总管:一路为保护走道等区域(系统常开);另一路专门保护病房(战时可闭),设置独立信号阀,当战时用作负压隔离病房时可单独关闭,以防止误喷、保护危重病人,而平时可系统常开正常使用。改建病房楼自动喷水系统原理示意见图5,图中忽略系统次要配、部件。

图5 自动喷水系统原理示意
3.5 排水系统
改建病房楼室内采用污废水合流制,清洁区、半污染区、污染区的排水立管各自独立设置,均为升顶透气系统,透气口出屋面2 m,在口部设置耐湿、耐腐蚀的高效过滤器。其清洁区往病房楼北侧排放清洁污废水;其半污染区、污染区往病房楼南侧排放污染污废水,其中空调机房冷凝水、真空吸引机房排水等均属污染废水。排水管出单体后在南北两侧的室外埋地设置玻璃钢成品化粪池作预消毒池,分别对清洁污废水和污染污废水进行预消毒处理,然后再进入院区污水处理站进行集中处理。改建病房楼的生活污废水排放系统原理示意见图6。

图6 生活污废水排放系统原理示意
由于改建病房楼楼板均为20世纪80年代预制板,且为多层建筑,排水系统考虑单立管伸顶透气的方式,按标准层平面布置,每个病房卫生间设置一根污水立管,且污水立管尽量分散布置。这样的排水立管设置方式,对改建老式建筑来说可以最大程度减轻楼板开洞对原有结构的破坏程度;对负压病房楼来说,最大程度地减少了病房内压力泄漏扩散的隐患点,同时保证了同层病房各自独立排水,相邻之间避免了交叉感染和相互传染的可能性。
改建病房楼污染区、半污染区的生活污废水排水管出户至室外预消毒池之间的管段,采用HDPE排水埋地塑料管,热熔连接,能有效防止埋地管道接口处的渗漏;每30~50 m间距设置一根DN100通气管,埋地引入单体伸顶透气,能有效防止埋地管道有毒有害气体的积聚、保持管道水流通畅。
改建病房楼室外雨污水为分流制。屋面雨水和四周道路雨水有组织收集,经消毒池消毒处理后排入市政污水管网。消毒池有效容积受院区场地限制,采用5 min雨水量作为调蓄容积;雨水排放量经复核可以被市政污水管网接纳。
改建病房楼除了排水不常用的机房(如真空吸引机房、压缩空气机房、空调机房等)地漏采用可开启的密闭地漏以外,其余所有地漏均采用带过滤网的无水封直通型地漏加存水弯,其中病房卫生间、医护卫生间、污洗间等地面排水地漏采用洗手盆排水对地漏存水弯补水,特别是病房卫生间,病患如厕完毕用具消毒功能的洗手液洗完手,补充了地漏存水弯水封的同时,也将消毒液注入了存水弯,对抑制排水管内病原微生物的扩散是有利的。所有有效水封高度要求50~75 mm,补水时不得破坏有效水封,且应在疫情期间加强对地漏水封的定期补水措施。洗手盆对地漏存水弯补水示意见图7。

图7 地漏存水弯补水示意
3.6 污水处理
从本次新冠肺炎疫情期间出台的标准、文件来看,主要强调对污废水、废气的消毒和整个污水处理系统的密闭。
改建病房楼可利用原有的污水处理站埋地式处理池、加药间、设备间等,将原埋地处理池改建为调节池以加大消毒停留时间,并将原来可开启的检修孔、人孔等进行密闭处理。新增2座玻璃钢成品污水处理池,处理工艺为二级生化工艺,埋地密闭设置,并联运行。改建时应注意,处理规模应按平时最高日污水处理量设计,并留有10%~20%左右的设计裕量;处理工艺和系统密闭性应按战时要求设计;尾气经高效过滤器或紫外杀菌消毒器处理后高空排放。改建后的污水处理站主要技术指标见表8。
表8 改建后污水处理站主要设计指标

改建病房楼预消毒池、二级生化处理池均采用了玻璃钢成品装置,主要是因为玻璃钢成品池与混凝土结构处理池相比,其密闭性能好、能有效防渗漏、施工安装便捷,且设备材料易购,在本次疫情期间为项目改建赢得了不少宝贵的时间。但也应注意在池体埋地敷设前,应预留好其透气管,且应引入单体伸顶并处理后进行高空透气。
4 其他需注意的事项
4.1 主要卫生器具的选择
卫生器具及配件应选择安全可靠的产品,减少维修的风险;其出水应防喷溅,器具材料应耐腐蚀,器具表面应防粘结。便器、洗手盆等应以便于消毒清洁操作的挂式安装为首选。大、小便器应选用器具构造内自带存水弯的产品,宜选用冲洗效果好、污物不易粘附在便槽内且冲洗后便槽内回水较少的产品。
负压隔离病房卫生间的洗手盆是病患使用最频繁的卫生器具,也是病患如厕后自身清洁消毒的最后一道措施,应采用防接触效果最好的感应式水嘴,同时在洗手盆旁应设置装有消毒洗手液的感应式皂液器。在经济条件允许的情况下,推荐采用具感应式开闭盖和充水功能的智能型坐便器,如厕前感应式开盖,如厕后感应式闭盖并在闭盖后由脚部感应式冲水,全程可无手部接触;但其他功能如臀部温水冲洗、暖风干燥等并不适合使用。若采用感应式自动冲洗阀坐便器,可以避免用手直接接触冲水按钮,能一定程度降低手部接触交叉感染风险,但仍存在用手开闭盖的直接接触可能。
其余公共卫生间的洗手盆、便器等,供医护人员使用的洗手盆等,建议以感应式开关为首选,当条件受限时,也可考虑膝动开关、脚动开关或手柄长度不小于160 mm的肘动开关。
4.2 施工安装要求
(1)为严格保证给水水质,给水管道、管件、阀门安装前后应清除油垢和进行脱脂处理。
(2)为防止病原微生物通过管道与套管、套管与墙壁和楼板之间的缝隙扩散、蔓延,给水排水管道、消防管道穿过墙壁和楼板时应设套管,套管内的管段不应有接头,套管与墙和楼板之间、管道与套管之间应采用不燃烧和不产尘的密封材料封闭;管道与套管之间的缝隙应采用柔性材料填充密实;套管的两侧应设置扣板,应用工程胶密实;管道穿越楼板和防火墙处应满足楼板或防火墙耐火极限的要求。管道穿越楼板或墙体时应注意管道外壁与墙体或楼板之间留有一定的距离,便于安装时密封、填实等操作。
(3)负压隔离病房内部与室外正常气压保持的负压差为15 Pa,为防止负压作用引起的病原微生物的扩散蔓延,排水管道不应在负压隔离病房内设置检查口或清扫口。
(4)排水管道通气管口应高出屋面不小于2 m,通气管口周边应通风良好,并远离一切进气口。
(5)为防止病原微生物扩散、维持房间压力梯度或气流流向,污染区和半污染区的给水排水、消防给水管道应严格密封。
(6)室内以及至室外预消毒池之间的排水管道应进行严格的闭水试验,防止管道内污水外渗和泄漏。
内容源于给水排水,旨在分享,如有侵权,请联系删除
相关资料推荐:
https://ziliao.co188.com/d63619257.html
知识点:负压隔离病房设计这样做
0人已收藏
0人已打赏
免费3人已点赞
分享
建筑给排水
返回版块47.29 万条内容 · 1372 人订阅
阅读下一篇
和新塑业PE给水管pe灌溉排水管dn110大口径PE管pe给水管使用规定 1管材存放、搬运和运输时,应用非金属绳捆扎,管材端头应封堵。 2管材、管件存放、搬运和运输时,不得抛摔和剧裂撞击。 3管材、管件存放、搬运和运输时,不得曝晒和雨淋 4管材、管件从生产到使用之间的存放期不宜超过一年 pe给水管连接技术 1、热熔连接 2、电熔连接 3、承插式柔性连接 4、法兰连接 5、钢塑过渡接头连接 pe给水管技术要求 尽管HDPE管道已经成功应用于许多领域,但在使用过程中仍需要注意以下几个事项:
回帖成功
经验值 +10
全部回复(0 )
只看楼主 我来说两句抢沙发