土木在线论坛 \ 给排水工程 \ 建筑给排水 \ 水泵接合器详解

水泵接合器详解

发布于:2023-02-20 10:24:20 来自:给排水工程/建筑给排水 [复制转发]

消防给水部件讲解——水泵接合器

水泵接合器是消防给水系统中非常重要的部件,当消防水泵由于种种原因无法启动供水或者消防水池内储水已用完但火灾仍未扑灭的情况下由消防车装运消防用水,通过消防车车载泵连接水泵接合器继续为系统管网供水。下面我们来详细讲解一下水泵接合器的知识点。

一、水泵接合器的设置场所

图片

二、水泵接合器的组成

水泵接合器由接口、本体、连接件(弯头)、放空管、止回阀、安全阀和截止阀组成。 

图片

需要注意几点:

安装顺序为:接口-本体-连接件-止回阀-安全阀-放空管-截止阀

水流方向为:接口-本体-连接件-放空管-止回阀-安全阀-截止阀

止回阀方向:由接合器流向截止阀(向管网供水)

安全阀的作用:用于排除系统管网超压的压力,即安全阀安装系统侧,止回阀后

 

三、设置要求

图片

注意:每种水灭火系统单独设置水泵接合器,每种水灭火系统单独计算超过3个时可减少,不是几种系统总数超过3

图片

2.临时高压消防给水系统向多栋建筑供水时,消防水泵接合器应在每座建筑附近就近设置。如下图,从图中可以看到多栋建筑可以合用一组水泵接合器。但各建筑的截止阀需要标注明确,不然会导致水流不明确。

图片

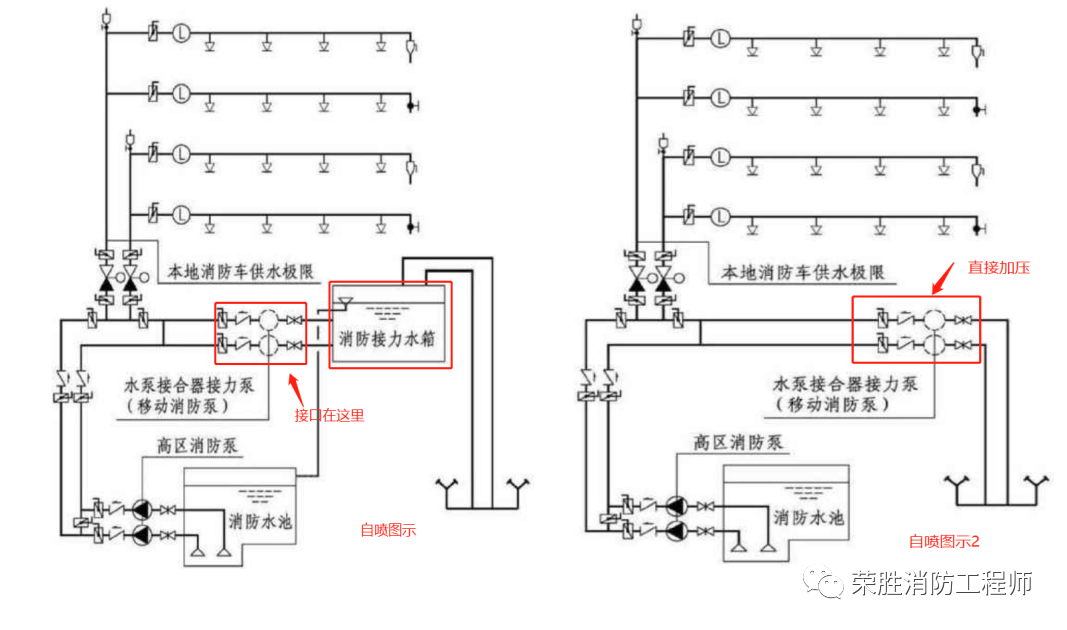
3.消防给水为竖向分区供水时,在消防车供水压力范围内的分区,应分别设置水泵接合器;当建筑高度超过消防车供水高度时,消防给水应在设备层等方便操作的地点设置手抬泵或移动泵接力供水的吸水口和加压接口

该条要求自喷和给水中给出了不同的设置方案。但无论哪种方案,都要以安全可靠为主。

图片
图片

内容源于网络,旨在分享,如有侵权,请联系删除


相关资料推荐:

消防水泵接合器安装

https://ziliao.co188.com/p45203731.html


知识点:水泵接合器详解


全部回复(0 )

只看楼主 我来说两句抢沙发
这个家伙什么也没有留下。。。

建筑给排水

返回版块

47.29 万条内容 · 1372 人订阅

猜你喜欢

阅读下一篇

容积式换热器

容积式换热器是利用冷、热流体交替流经蓄热室中的蓄热体(填料)表面,从而进行热量交换的换热器,间壁容积式换热器的冷、热流体被固体间壁隔开,并通过间壁进行热量交换的换热器,因此又称表面式换热器。 容积式换热器热媒温降大。汽水换热时,凝结水出水温度约50℃,回水管上下需设疏水器,给使用维修带来方便,水-水换热时,热温降为同型换热器的2~2.5倍,120~150℃的高温热水换热后可降至70~75℃。

回帖成功

经验值 +10