土木在线论坛 \ 给排水工程 \ 建筑给排水 \ 用实例认识给排水热水系统

用实例认识给排水热水系统

发布于:2023-02-15 13:31:15 来自:给排水工程/建筑给排水 [复制转发]
建筑热水系统的任务,除开少数需要热水的工业建筑外,大多数情况下是为生活建筑物提供符合舒适要求的水量、水压、水质、水温的卫生热水。 集中热水供应系统是利用加热设备集中加热冷水后通过热水管网送至建筑物中的各个热水配水点,为保证系统热水温度设置循环回水管,将暂时不用的部分热水再送回加热设备。

一、热水管道系统施工图识图准备
1、建筑整体情况分析
(1)本楼位于某城市,楼高49.800m,共14层。楼层较高,对于需要足够的压力方能使热水供应上楼。
(2)本楼属于综合楼性质,内部包含了公共大厅、办公室、客房等使用功能。2~14层有布局完全相同的公共卫生间,要求热水管道系统必须把热水配送至每个卫生间的配水龙头;4~9层有客房卫生间,每层的客房卫生间布局不尽相同,有单个卫生间配一个管道井,也有两个毗邻卫生间共配一个管道井,要求热水管道系统必须在管道井内把热水配送至每间卫生间。
2、生活热水系统
1)热水供应温度为60°C,最高日用水量为27m3。
2)热水循环泵采用自动、手动两种控制方式。当热水回水水温小于45°时启动水泵,回水水温达到50°C时停泵。
(1) 生活卫生热水的标准供给温度:60°C 。查询规范可得楼内各空间中每个人的热水定额,然后可计算出整幢建筑物的最高日热水用水量。
(2) 本条叙述热水循环泵的控制方式。根据热水回水温度决定启停热水泵的方式属于自动控制方式。通过这条我们得知,整个热水管网内的热水温度是不应低于45°C的。

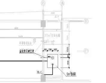
二、热水管道系统的负一层内容识图

热水管道系统属于给水系统的范畴,所以我们援引生活给水系统的识图方法和顺序来对室内消火栓系统进行识读。 我们做好上述识图准备之后,开始从本教材所提供的某综合楼给排水工程施工图的热水管道系统图开始阅读。在阅读此系统图的时,我们采用先简后繁的顺序来逐步阅读。并随时在相关的平面图上印证。 通读后,发现本图的右边偏下的地方,有两台水泵及一套管道、管件。我们根据地面符号截取负一层内容:
图片
图2.37 热水循环泵及管道系统图
图片
图2.38 热水循环泵及管道平面图 前面的章节中学习过生活给水泵、消火栓给水泵的识图,图2.37和图2.38中关于管道穿墙、水泵、标高、阀门等我们都能识读清楚。但热水循环泵及管道与生活给水和消火栓系统有相同和不同之处: (1)设备表,查询到两台热水循环泵是一用一备。 (2)热水循环泵吸入口与生活给水泵和消火栓给水泵不同,热水循环泵吸入口在RL-10连接出来的管道上。 (3)热水循环泵压出口连接热水机组。 (4)综合(2)(3),得知热水循环泵是位于管网中间,提供管网内热水循环的动力设施,水由管道中来,输往管道中去。 (5)此二图中,管道和热水机组之间的连接没有在图纸上表达出来。这部分内容是经过给排水、暖通二专业协商,由暖通专业进行设计。 (6)在热水循环泵压出口和热水机组进水口的连接处,设置了来自JL-12的冷水补水管,楼层中各配水点消耗了的水量,均由此管补充。补充后立即在热水机组中加热。前述2.3.3.1中有关于JL-12的相应内容。 (7)本二图中标有水流方向,有助于我们热水系统运行流程的理解。

三、热水管道系统一~四层的内容识图
通观热水管道系统图,我们会发现在图面上中间偏左偏下部位的内容比较繁杂,标高范围在±0.00和11.400m之间,简化后,根据热水系统流程,添加水流方向箭头,得到下图:
图片
图2.39 热水管道系统图1~4层部分 查询一、二、三层给排水管道平面图,水施-04、05、06后得到下二图:
图片
图2.40 热水管道系统图一层平面图图
图片
2.41 热水管道系统图二层平面图 因三层没有热水配水点,所以在图2.39、图2.40、图2.41中,可以清晰地看出: (1)水流由RL-2经过减压阀(阀后压力0.15MPa)减压流下,连接二层4.200m以上的五角星形位置的支管,在此之前,在7.700m的高度,分出一支DN25的横管,横向行至合适位置,再经由RL-3立管流下,连接一层公共卫生间内的两个热水龙头。 (2)在系统图中,此处管网本身转折、交叉较多,又受到RL-7立管的影响。所以图面较繁杂,不易看懂。我们认清此处:
图片
管道断开的符号,应把RL-7立管及其横管从四层以下的管路中排除。 (3)图2.39中右下角的二层标高符号
图片
是标注RL-2立管的。 (4)我们保持系统图中的空间关系不变,但是延伸减压阀以下的管线,可以把图2.39转化为:
图片
图2.42 热水管道系统图1~4层部分(转化图) (5)图2.42就比较便于我们对这部分的识图理解了。 (6)图2.39中五角星形位置连接的支管,其系统图位于RL-2立管13层的位置。截取出来如:
图片
图片
图中,热水横管标高43.850m,高于楼层0.65m(43.850-43.200=0.65m),此横管的高度适用于本楼此位置的任何一根热水横管。同样我们可知,图2.47中,二层五角星形位置的热水横管的标高应为:4.850m(4.200m+0.65=4.850m)。 (7)这些内容都可以在水施-04,一层给排水管道平面图中一一得到印证。 四、热水管道系统的四~九层内容识图 通观本教材所提供的某综合楼给排水工程施工图的消火栓给水管道系统图,我们会发现在四~九层部分管道相当整齐。保留系统图中的四~九层内容。把其他楼层的内容淡化,得到下图:
图片
图2.43 热水管道系统图4~9层部分 运用前述生活给水系统,2.3.4和2.3.5中获得的知识和识图能力,在图2.43中,可以看出: (1)四~九层中,设置有RL-1、2、4~10共九根热水立管。九层顶部、十层楼板下设置有一根横管,四层楼板下,11.000m的位置设置有一根横管。 (2)根据前述内容,RL-1立管是从热水机组出来的,水流方向向上。其余八根立管水流方向向下。 (3)RL-2立管供应公共卫生间和相邻客房卫生间的热水配水点。RL-4~10立管供应客房卫生间热水配水点。 (4)热水由RL-2立管送下,在五角星形处分支,在RL-10立管三角形位置汇合。形成一个封闭循环管网。 (5)左边方框区域内的内容,是毗邻卫生间通过一根热水立管供应热水的横支管系统图。放大后得到:
图片
图片
RL-4~9六根立管的热水横支管形式均同此。 (6)右上角方框内,是单卫生间通过一根热水立管供应热水的横支管。放大后得到
图片
图片
RL-2~10二根立管的客房卫生间热水横支管形式均同此。 (7)RL-1立管在四~九层间没有连接任何横支管。 (8)为排出热水管网中的气体,在RL-4、10立管的顶端,设置了自动排气阀。 五、热水管道系统在十层以上的内容识图
图片
图2.44 热水管道系统十层以上系统图 在图2.44中,热水系统变得清晰、简单: (1)共有RL-1、2两根立管穿行在十层以上,并上至屋顶、连接水箱。 (2)RL-1上行至55.300m处转折接入水箱,水箱出水管在55.800m处出来下行到50.100m处横贯整个楼面,连接RL-2立管。 (3)RL-2立管在十层以上,仅供应公共卫生间热水配水点。其支管的内容在2.6.3中提及。 (4)屋顶热水箱的系统图、平面图:
图片
图片
综合屋顶热水箱的系统图和平面图,本身就比较简单的屋顶热水箱的设置和相关管道的构造就一目了然了。 (5)热水箱和给水系统的屋顶水箱对比,同样都有溢流及泄空管,但是热水箱没有透气管,仅有一个自动排气阀。

内容源于网络,旨在分享,如有侵权,请联系删除


相关资料推荐:

某地2层公共浴室及食堂给排水热水平面图系统图

https://ziliao.co188.com/d62217465.html


知识点:给排水热水系统


  • shibushi1983
    shibushi1983 沙发

    貌似还缺水箱的大样图。。。。。

    2023-02-16 19:46:16

    回复 举报
    赞同0

建筑给排水

返回版块

47.29 万条内容 · 1370 人订阅

猜你喜欢

阅读下一篇

井用泵的扬程计算

井用潜水泵是深井提水的重要设备,使用时整个机组潜入水中工作,把地下水提取到地表。简单点说,就是把一定重量的地下水从井下提升到地面上需要用水的地点,单位时间内提升的地下水容积就是所说的流量,那么提升到地面的高度就是扬程了(应该说是扬程的主要部分,应该还包括管路阻力和出水口压力需求,这里不做详细讨论)。 那么井下的提升高度到底是水泵的安装位置还是水井的水位呢?

回帖成功

经验值 +10