土木在线论坛 \ 给排水工程 \ 建筑给排水 \ 井用泵的扬程计算

井用泵的扬程计算

发布于:2023-02-15 13:25:15 来自:给排水工程/建筑给排水 [复制转发]

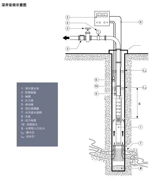
井用潜水泵是深井提水的重要设备,使用时整个机组潜入水中工作,把地下水提取到地表。简单点说,就是把一定重量的地下水从井下提升到地面上需要用水的地点,单位时间内提升的地下水容积就是所说的流量,那么提升到地面的高度就是扬程了(应该说是扬程的主要部分,应该还包括管路阻力和出水口压力需求,这里不做详细讨论)。


图片

那么井下的提升高度到底是水泵的安装位置还是水井的水位呢?


首先我们来了解一下两个名词 - 静水位和动水位


水井水位即水井的水面标高。水位有静水位、动水位之分。开机抽水前的水面标高称静水位(即上图中 - LS),开机抽水时,水井水面随抽水时间下降,这个变化的水面标高称动水位。在水泵出水量相对稳定、水面降到某一深度便稳定下来不再下降时的水面标高称稳定动水位。通常说的动水位是指稳定动水位(即上图中 - LD)。从静水位到动水位的垂直高度即抽水过程中水位下降的深度叫水位降深或抽水降深(即上图中 - S)。


那么,根据水泵工作时的水井水位到地面的高度差作为为提升高度的话,就应该依据动水位(即上图中 - LD)作为扬程。


如果按照水泵的安装位置作为扬程会选型过大,首先造成设备采购上的成本浪费:电泵要买大,管道电缆要加长,运行还费电;同时也造成水泵运行时偏大流量过载,极易造成电机烧毁。

如果按照静水位作为扬程来选,会造成选型扬程过低,运行时会水量不足或者根本抽不上水。


因此,深井泵考虑地下水位高差是必须选择动水位动水位动水位

内容源于网络,旨在分享,如有侵权,请联系删除


相关资料推荐:

泵的扬程计算与选型

https://ziliao.co188.com/p63254687.html


知识点:井用泵的扬程计算


全部回复(0 )

只看楼主 我来说两句抢沙发

建筑给排水

返回版块

47.29 万条内容 · 1370 人订阅

猜你喜欢

阅读下一篇

排水管道施工管理

一、熟悉图纸 开工前首先必须了解图纸、熟悉图纸,以免开工会忙中出错。至少要做到以下几点: 1.会同甲乙丙三方图纸交底。

回帖成功

经验值 +10