土木在线论坛 \ 建筑设计 \ 居住建筑设计 \ 建筑物楼梯设计的注意事项

建筑物楼梯设计的注意事项

发布于:2023-02-14 14:23:14 来自:建筑设计/居住建筑设计 [复制转发]

一、疏散净宽

楼梯在建筑中最重要的功能是解决人员疏散,其中《建筑设计防火规范》GB-50016-2014(2018年版)及《民用建筑设计统一标准》GB50352-2019 及其他专项规范对楼梯的净宽宽度均有要求。包括但不限于商业建筑楼梯净宽不应小于1.4m,高层医疗建筑不应小于1.30m,高层建筑不应小于1.20m。其中需要注意的是,《中小学设计规范》中要求的人员每股人流0.60m,疏散通道及楼梯的净宽不小于2股人流且按0.6m的整数倍进行增加。与《民用设计统一标准》中规定的0.55m一股人流,摆幅(0~0.15m)的规定有所区别。

对于楼梯的净宽,根据《民用设计统一标准》中规定的当一侧有扶手时,梯段净宽因为墙体装饰面至扶手中心线之间的水平距离。当有凸出物时,梯段净宽应从突出物表面算起。

在楼梯施工图设计中应注意各类栏杆扶手中心线到板边的距离:


1、其中根据图集木扶手金属栏杆距离板边距 离为50mm


图片

2、金属扶手金属栏杆距离梯段板边距离为70mm


图片


3、需要特殊注意的是,扶手类型为设置在梯井内部的类型时,应按到梯段板边来考虑疏散宽度,而不再计算到扶手中心线。


图片

4、而对于双侧设扶手的楼梯,需在侧墙设靠墙扶手


图片

根据扶手安装要求,靠墙扶手侧的扶手距离抹灰完成面,应不小于60mm,也就是说按一般做法楼梯内墙面抹灰厚度为13~17厚,按最不利20mm计算。侧墙面需扣除的疏散净宽为80mm。综上,楼梯净宽的确定应单侧扶手时: 

(1)木扶手楼梯净宽=板宽-50-20计算=板宽-70
(2)金属楼梯梯段净宽=板宽-70-20=板宽-90
双侧扶手时; 
(1)木扶手楼梯净宽=板宽-50-80=板宽-130
(2)金属扶手楼梯净宽=板宽-70-80=板宽-150

通常在建筑设计时,为保证疏散净宽及考虑后期施工误差,在条件允许的情况下,最好按单侧扶手净宽=板宽-150,双侧扶手=板宽-200来考虑楼梯的疏散净宽。


二、休息平台


根据《民用设计统一标准》规定,当梯段改变方向时,扶手转向端处的平台最小宽度不应小于梯段净宽,并不得小于1.2m。当有搬运大型物件需要时,应适量加宽。直跑楼梯的中间平台宽度不应小于0.90m。


图片


1、平行双分楼梯按分段宽度的净宽确定休息平台宽度,而非合段



图片


2、异形多跑楼梯的异形休息平台最窄处也应满足休息平台净宽的要求




图片

3、当休息平台受限时,梯井端扶手可以内推至梯井内连接至两侧梯跑扶手处,此时休息平台净宽应算至梯井结构板处。但是应考虑踏步梯面厚度,应扣除实际梯面厚度,由梯段最凸出处算至墙边。

4、当楼梯间设护窗栏杆,护窗栏杆底部设挡台时,休息平台净宽应算至挡台而非护窗栏杆。

5、当休息平台侧墙处有框梁凸出墙面时,当梁底距离不能满足人员通行时(距地净高小于2.0m),休息平台净宽应该算至梁装饰完成面。如设置与框架梁内侧面齐平的平台栏杆板等,楼梯平台的净宽从栏杆(板)内侧算起。

注意:疏散用楼梯和疏散通道上的阶梯不宜采用螺旋楼梯和扇形踏步;确需采用时,踏步上下两级所形成的平面角度不应大于10°,且每级离扶手250mm处的踏步深度不应小于220mm。注意部分规范特殊规定:如中小学校疏散楼梯不得使用螺旋楼梯和扇形踏步,幼儿使用的楼梯不应采用扇形、螺旋形踏步;老年人使用的楼梯严禁采用弧形楼梯和螺旋楼梯。



三、开敞楼梯间和敞开楼梯间



根据《民用设计统一标准》规定,当梯段改变方向时,扶手转向端处的平台最小宽度不应小于梯段净宽,并不得小于1.2m。当有搬运大型物件需要时,应适量加宽。直跑楼梯的中间平台宽度不应小于0.90m。

公建:
1与敞开外廊直接相连的楼梯间,除医疗建筑、旅馆及类似使用功能建筑;设置歌舞娱乐放映游艺场所的建筑;商店、图书馆、展览建筑、会议中心及类似功能建筑的其他六层以下多层公共建筑。老年人照料设施:高度≤24m的老年人照料设施与敞开外廊直接联通的室内疏散楼梯。

住宅:


1、不大于21m的住宅,不与电梯井相邻布置的疏散楼梯

2、建筑高度不大于21m,与电梯井相邻布置疏散楼梯,户门采用乙级防火门

3、建筑高度>21m,不大于33m的住宅,户门采用乙级防火门



虽然在防火上,敞开楼梯间有安全隐患,可能成为烟、火向其他楼层蔓延的通道,但是根据消防释义,对于规范允许采用敞开楼梯间的建筑,在计算防火分区时,敞开楼梯间可不按上下层联通的开口考虑。

相对于敞开楼梯间,敞开楼梯为直接对室内开放,不能形成为何的疏散空间,不能作为疏散楼梯使用。而敞开楼梯间,可以作为疏散楼梯使用。

且敞开楼梯同自动扶梯及共享一样,其上、下层相连通的开口,防火分区的建筑面积应按上、下层相联通的建筑面积叠加计算。



四、分隔地上地下的防火墙



根据《防火规范》规定,建筑的地下部分与地上部分不应共用楼梯间,确需共用楼梯间时,应在首层采用耐火极限不低于2.00h的防火隔墙和乙级防火门将地下或半地下部分与地上部分的联通部位完全分隔。


在施工图设计过程中,容易犯错的两点:



1、隔墙范围未能将地上地下完全分隔开

2、防火隔起止部分的梯段板或者是楼层板并未向梯井延伸,防火隔墙没有植根的地方和压顶部分

3当防火隔墙从首层半层处起时,结构平面补充次梁,该次梁造成下部楼梯碰头



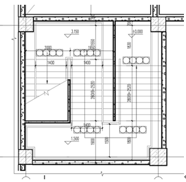
如下方案例楼梯:


图片


首层平面图                                   


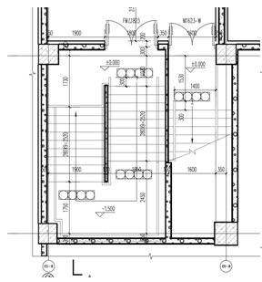
图片


中间层平面图                                

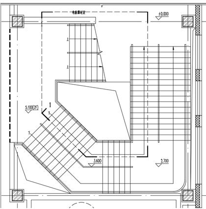
图片

二层平面图                                  


图片


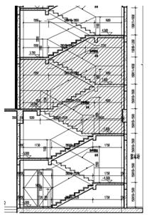
楼梯剖面图  



此种多跑楼梯,地上地下防火封堵情况较为复杂,且楼梯平面转换容易忽略墙体砌筑位置。该楼梯容易忽略的位置:



1、右侧上跑楼梯转换到左侧楼梯间平面时,楼梯间的侧墙如何落地


如果右侧区域上空不为空,为其他功能时,在保证休息平台不碰头的情况下应在封板标高加一层次梁。楼梯间侧墙砌筑在次梁上。

如果右侧区域上空为空,左右在上侧均为地上楼梯间时,可在与地下楼梯的防火封堵范围外某一梯板向右侧延伸200mm宽度,将楼梯间墙体砌筑在梯板上。


2、地上与地下的防火隔墙封堵位置


该楼梯最右侧为地上跑,中间为地下跑,两者中间封墙,很容易忽略第二跑以上区域和地下区域在梯井和休息平台处空气是串通的。而且地下第一跑与地上第二跑在同一平面内,仅在这两个梯板形成的三角区域内封防火隔墙,起不到防火分隔的作用。一定要封堵不同平面内的隔墙才能达到防火效果。



总结,楼梯设计属于建筑设计的一个基础环节,但相当重要,担负着人员安全疏散的重任。在建筑多样化的环境,楼梯形式多种多样,万变不离其宗,应把握好楼梯设计的重点环节,守好建筑设计的生命关。

知识点:建筑物楼梯设计的注意事项

建筑楼梯的设计注意事项

全部回复(2 )

只看楼主 我来说两句抢地板
  • songliangt1
    songliangt1 沙发

    非常好

    2023-02-23 09:23:23

    回复 举报
    赞同0
  • xubeibei_5
    xubeibei_5 板凳

    学习了,谢谢楼主分享,好资料,赞!

    2023-02-22 09:40:22

    回复 举报
    赞同0
这个家伙什么也没有留下。。。

居住建筑设计

返回版块

28.74 万条内容 · 422 人订阅

猜你喜欢

阅读下一篇

楼梯的设计要求

一、根据《民用建筑设计统一标准》GB 50352-2019规范要求: 6.8.1 楼梯的数量、位置、梯段净宽和楼梯间形式应满足使用方便和安全疏散的要求。 6.8.2 当一侧有扶手时,梯段净宽应为墙体装饰面至扶手中心线的水平距离,当双侧有扶手时,梯段净宽应为两侧扶手中心线之间的水平距离。当有凸出物时,梯段净宽应从凸出物表面算起。 6.8.2条文说明 本条明确了当楼梯一侧有扶手时,梯段净宽应考虑扣除墙面装饰的构造厚度。另外,当有框架柱或其他构件、设施等凸出在楼梯间内(凸出楼梯间四角的除外)影响通行宽度时,梯段净宽应从凸出部分算起。当楼梯附设无障碍升降平台时,梯段净宽应自升降平台折起后的最外缘算起。

回帖成功

经验值 +10