土木在线论坛 \ 建筑设计 \ 居住建筑设计 \ 江南传统民居保护与活化利用

江南传统民居保护与活化利用

发布于:2023-01-16 10:18:16 来自:建筑设计/居住建筑设计 [复制转发]

引言


本文所指江南相对狭义,指的是植根于“水网”地理及吴越文化圈的太湖流域。江南地区的建筑风格也是十分独特的,有着独特的江南韵味。俗话说得好,一方水土养育一方人,所以江南地区的民居文化特点也深深包含着江南独有的文化韵味。南浔(图1)地处湖州之东,太湖之南,是江南最富庶的古镇。“南浔古镇景区占地面积34.27平方公里,东界至宜园遗址东侧起,西界至永安街起,南界自嘉业堂藏书楼及小莲庄起,北界至百间楼。古镇以南市河、东市河、西市河、宝善河构成的十字河为骨架,其间又有许多河流纵横交错,街和民居沿河分布,随河而走,以南东街、南西街为串联,构成了十字形格局,街巷肌理完整,河道水系基本保存。十字河两岸形成商业街道,既有傍水筑宇、沿河成街的江南水乡小镇风貌,又有众多高品质的私家大宅第和江南园林,形成了小桥流水人家与大宅园林交相辉映的街区特色。”[1]


图片

图1 古镇南浔


南浔百间楼传统民居

的特点和现状


典型江南传统民居建筑的特点


百间楼位于南浔镇东,沿运河东西两岸,有一处长400米、门面约150间的沿水民居群,距今已有400多年的历史,因始建时有楼屋百间,故名“百间楼”。百间楼是古镇南浔最具魅力的明清建筑群。其建筑沿河而建、贴水而居、以河当路、以廊成市。整条街房舍连排,高低错落,侧墙相接,整齐有致,沿着河道蜿蜒逶迤,与河流并行,并用石桥相连。粉墙、黛瓦、檐廊、河埠、花墙、券门、廊柱倒映水中,船只来往,桨声渔歌,处处洋溢着百间楼民居群的亲水灵气(图2)。


图片

图2 百间楼


百间楼民居依河筑屋,依水成街,建筑空间布局受封建社会伦理、儒家传统、风水民俗等方面的影响,这也是人文因素在意识形态上的反映。百间楼民居空间层次分明,为一河两街的布局方式。单体建筑的基本单元为“间”,开间相对较小。立面上,以一至三间横向连成“落”,“落”与纵向的天井构成“进”,多“进”的纵深串联再以两侧的高围墙封闭组成住宅,但是住宅都不大,多为穿堂合院的形式。这也体现了百间楼民居在统一形式规律下所呈现出空间序列的节奏美。为适应江南气候潮湿与百间楼人口密度大的特点,建筑多为两层,外墙高大,前后门贯通,通风换气效果好。百间楼民居在二层居多,以左右高院墙与前后房屋共同围合成天井,有利于房屋的采光、通风和排水之用。底层以及顶层分别为砖、木结构,在防潮的同时,更能在有限的沿河空间内拓展住宅面积。至于粉墙黛瓦则不但美观,也能起到防水的作用。天井占地面积较小,以高高的内墙为衬托,内部筑池叠石、种竹栽树,形成一个较为封闭、安静的内庭式院落空间,同时也成为大厅窗外的风景。民居建筑以雕饰见长,鲜有彩绘;砖木结构以立帖式居多,施以粉墙、黛瓦以及青砖,施色淡雅。常况下,楼房不超过双层结构,高大的院墙将住宅包围起来,轿厅、客房、正厅等在轴线处次第排开,花厅、书房、卧室等则分列于两轴。


恢复古镇风貌


随着经济的发展,旅游资源被不断开发,古镇旅游越来越受游客欢迎且发展迅速。而针对有着不同历史文化内涵的古镇资源,在开发过程中却出现了同质化、原有文化衰落、环境污染、建筑风貌破坏等问题。古镇旅游可以给当地带来非常巨大的经济利益,在巨大的经济利益的驱动下,旅游被当做是古镇发展的主要目的和动力,但居民的生活质量却没有得到改善,现存的建筑具有民居老化、基础设施不全、存在火灾隐患等问题,已不符合现代人的居住要求,许多年轻人也因此不愿意住在老镇区而纷纷迁往新区。同时,居民自发地建筑整修开始使用新的材料,影响了古镇传统建筑风貌的延续。如百间楼地段由于没有对周围环境进行有效控制,后建的烟囱、水塔以及厂房等高踞民居之上,破坏了历史氛围,成为严重视线障碍。


以“开发利用中去保护”为最终目的,为了实现积极寻找政府长远的保护利益和商业化的投入产出运营模式的最佳结合点的目标,南浔挖掘其丰富的旅游资源、深厚的历史底蕴、优越的区位优势,全力布局古镇振兴。建筑保护分为以下两个阶段:


2011年前的保护思路着重于文物保护单位的环境整治、水乡风貌与空间形态的完整保护,古镇内居民生活质量普遍得到改善;


2011年后的侧重点则放在促使文物保护与环境整治进入一个良性的循环,古镇保护开始取得了初步的综合效益。


活化利用的难点


产权不清


南浔区的历史建筑产权主要分为公有、集体所有和私有。不少历史建筑因为历史的原因,产权并不明确,产权问题也十分复杂。因此,首先要处理好产权问题,这也是南浔区文物建筑活化利用的关键。目前这个问题已经逐步得到解决。2011年后将侧重点放在促使文物保护与环境整治进入一个良性的循环,古镇保护取得了良好的综合效益。特别是近几年,古镇政府出面回购了80%左右的普通民居建筑,分阶段修缮后进行统一协调、多业态运营,浔东里民居群就是在这个背景下被统一回购。


合理把控


《中华人民共和国文物保护法》中也没有文物利用的相关条款。历史建筑也同样具有不可逆的属性,活化利用合理性把握得不准确,会损害文物主体的价值,而且难以恢复。如何把控历史建筑活化利用的合理性是我们需要探索推进的另一个难点。


浔东里民居群位于百间楼东侧,南临大街西临张静江故居,由王宅、张宅、徐宅组合而成(图3)。由于日久失修且常年无人居住,浔东里民居的现状是残破不堪,墙体开裂,很多木构件都已腐烂,但残留精美的砖雕和参天的银杏树能告诉你这里曾经的兴旺与尊荣(图4、图5)。浔东里民居属于不可移拆类历史建筑,重新修复建筑容易,但是让它在旅游兴旺的今天以何种姿态展示在众人眼前是一个值得深思的问题。


图片

图3 浔东里民居群平面


图片

图4 浔东里的建筑现状1


图片

图5 浔东里的建筑现状2


浔东里民居群活化

利用应对策略


定位


随着古镇旅游的开发和推广,高品质的游客群不断涌入这个有400年历史的古镇。原先本土居民自发改建的小客栈、小民宿或小餐饮店已经不能满足当下快速发展的旅游需求。而且由于不是专业机构设计和改建,结果导致破坏了原有的民居建筑风貌,因此如何探寻传统民居的保护和活化利用变得尤为重要。浔东里民居的活化利用围绕展现江南人文大宅的主题精品酒店展开。目标通过室内外的整体修缮和改造,打造一个集休闲、餐饮、娱乐、度假为一体的高端民俗,既解决了日益破败的老宅影响古镇建筑风貌的问题,又能满足当下古镇旅游开发中高品质游客休闲度假的需求,还能通过该酒店展现南浔水乡的传统建筑特色和文化内涵,成为南浔传统民居活化利用的一个典范。


保护定级


按照历史建筑的历史、科学和艺术价值以及完好程度,对历史建筑按以下分类进行保护:


一级,建筑的立面、结构体系、平面布局和内部装饰不得改变;


二级,建筑的立面、结构体系、基本平面布局和有特色的内部装饰不得改变,其他部分允许改变;


三级,建筑的立面和结构体系不得改变,建筑内部允许改变。


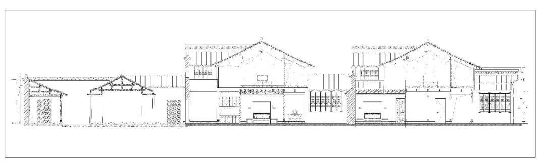
参照这个标准,浔东里民居群属于不可移拆历史建筑。在不改变立面和结构体系的前提下,内部空间允许改变,这使得变民居为高端酒店成为可能(图6)。


图片

图6 浔东里民居修缮剖面


活化利用定位


历史建筑的活化利用必须考虑原有建筑空间的经营布局以及空间形态与新业态的适合度。南浔古镇中的嘉业堂及小莲庄、张氏旧宅群、尊德堂等全国重点文物保护单位都被开辟为参观浏览的景点场所,南浔丝业会馆延续原有功能活化利用成为“城市客厅”,浔东里的民居群的传统住宅模式的空间格局经过讨论后,确定转型为高品质的酒店民宿,既能把浔东里庭院深深、江南大宅的江南民居呈现在游客面前,又可以满足当下不同游客对古镇旅游的住宿消费等需求。这种定位可以最大限度地利用原有的空间格局,民居的居住空间转型为客房空间,结合酒店的配套功能需求,设置了大堂吧、早餐厅、咖啡书吧、茶室等公共服务功能空间(图7)。


图片

图7 改造后的书吧空间


挖掘文化基因


传统文化中蕴含的精髓是极为广泛的,而传统民居建筑则是传统文化精髓中的主要组成部分。传统民居不仅在建筑领域发挥着自身最为重要的建筑功能,还充分地体现着极为丰富的当地人文情怀。浔东里民居群的建筑不仅体现了传统江南民居的建筑风格,也蕴含了南浔当地传统的社会伦理、儒家传统、风水民俗等文化基因。挖掘提炼浔东里民居群的文化基因使之融入到活化利用的新功能空间,能充分阐释南浔的地方文化。


对于改造项目,现场的踏勘考察是非常必要的。旧建筑的破损程度、传统建筑装饰构件(砖雕、石雕、木雕)图形内容及保留状况如何、原有建筑空间的文化氛围、建筑与周边环境、道路、水网、植物的关系,只有在现场的亲身感受,才能激发创作的灵感和真实的空间感受。浔东里民居群由三个宅邸(王宅、刘宅、徐宅)组合而成,三宅之间隔墙为邻紧密相连。相互依靠相互借势,现场残存的砖雕“树德务滋”门额就很好地诠释了当时民居主人的格局与胸怀(图8)。


图片

图8 砖雕“树德务滋”


统筹修缮、装修与运营的关系


历史建筑的活化利用一般会经历三个阶段:第一阶段是保护性的建筑修缮;第二阶段是根据功能定位后的内部装修;第三阶段就是项目的管理与运营。每个阶段也都由设计和施工两部分组成。常规建筑修缮侧重于建筑主体结构与建筑外观的“修旧如旧”或“修旧如故”,对今后物业实际使用功能考虑得很少,标准也很低。内部的设计和装修如果缺乏与后期经营管理方的沟通,也会使旧建筑的活化利用成为昙花一现,难以持久。所以浔东里民居群的改造项目从立项开始,古建修缮单位、内装设计方和酒店管理方就开始了紧密沟通。功能和布局的合理性、保护和利用的合规性及今后运营的便捷性做到了高度融合。


在项目设计之初,要协调好古建修缮和活化利用的关系。常规的古建筑保护修缮是从建筑年久失修的安全性和城市建筑风貌的角度出发,更多考虑的是如何延续建筑的传统风格、尽可能地恢复建筑的原有格局,对于今后的使用考虑较少。这种模式对于一些名人故居的修缮不存在什么问题,因为这类功能要求较为简单。但是对于一些经营性的商业空间往往就不能满足其使用功能和标准,二次的改造装修既造成了财力和物力的浪费,又容易造成原有建筑格局和风貌的破坏。因此浔东里民居的改造把这两者的顺序做了调整。在古建设计院初稿完成的时候,民居活化利用的平面方案就同期介入。在平面功能上能够做到两者兼顾,把对一些必要和特殊要求的建筑材料和安装方式提前考虑到建筑修缮设计阶段。修缮过程中预留了原来封火墙的门洞,使得三户不同的宅院可以相互穿插,使酒店交通流线组织成为了可能,通过一条主通道,串连起大堂、餐厅、书吧、茶室和各个客房的功能空间(图9)。


图片

图9  整合后的浔东里酒店平面


创新设计


内部空间的二次打造


传统木构的民居建筑开间和层高受到材料的制约,开间较窄,层高也不高。民居建筑改造成酒店后,一些公共区域如餐厅、大堂等原来独立的小空间,打开后变成了大空间,空间的尺度感就会显得压抑。在保留原有梁架结构不变的前提下,浔东里民居酒店的餐厅、大堂等功能空间中二层的木板楼面我们采取的留空的处理,丰富了酒店的空间层次。


现代设备与材料的选型


传统民居改造成主题酒店,落实过程中最常见的问题有底层防潮防腐问题、木构建筑的楼层荷载问题、隔音保温的问题、管线设备安装的问题等。浔东里酒店改造充分考虑了以上因素。针对江南水乡多雨潮湿的气候环境,材料上选择防潮抗污的复合新材料如木纹复合铝板、吸水率高抗菌的灰泥涂料等。设备上采用空调、地暖、新风、除湿器结合的方式保证室内的干燥。隔音保温上使用双层中空玻璃结合古建窗扇修缮的样式,保证传统的立面风格又满足酒店空间的使用标准。针对传统民居坡顶的建筑形态,常规的空调内机在坡顶的建筑空间中会显得非常突兀,因此我们采用落地式空调内机,隐藏于茶水柜内,使空间形态保持较好的完整性。楼层荷载问题主要出现在卫生间区域。由于木结构的承载力有限,水泥瓷砖地面和隔墙的传统卫生间形式不符合楼层的荷载系数,现代的高分子轻型的复合整体卫浴空间可以满足轻荷载抗渗漏标准,适合在木构建筑的二层楼面使用。


随着防火标准的提升,很多古镇对木构建筑都提出了配备消防喷淋的要求,还有强弱电、暖通等工程的管线对传统建筑空间来说都有伤害。因此针对管线的处理可以用几种方式来处理:对明管进行美化或艺术处理,让其成为建筑内部结构的形态展现;有些复杂交错的管网可以通过拆装可逆的二次吊顶或隔墙来处理(图10)。


图片

图10 改造后的酒店客房


整合利用建筑外部空间


江南传统民居有丰富的庭园空间,浔东里的民居也不例外。对这类空间的合理利用不仅有利于优化整合民居群建筑空间序列,同时也是提升酒店品质的重要手段。公共服务区域的庭园空间可以打造户外景观庭院(图11)或户外餐饮功能;客房区的庭园可以直接纳入到客房的私享花园范畴,形成客房的一部分(图12);面积足够的民居外部闲置地块可以打造室外休闲泳池,成为酒店的一大特色配套功能(图13)。


图片

图11 茶室外的水景庭院


图片

图12 客房私享庭园


图片

图13 酒店户外泳池


当地非遗元素融入软装陈设


非物质文化遗产是中华民族优秀传统文化的重要组成部分,它不仅具有浓郁的人文精神,也具有丰富的工艺特色。软装饰对于室内空间来说,是空间环境的灵魂,软装饰是设计师向受众展现的一种意境和情怀,体现的是室内空间的文化内涵。浔东里民居酒店把南浔当地的非物质文化元素如轧蚕花、辑里湖丝、桑蚕农耕、千金剪纸、双林绫绢等融入酒店空间的软装陈设中,不仅可以美化、提升酒店的人文环境,也可以展示当地南浔特有的民俗技艺文化,丰富酒店住客的休闲活动内容,营造有品质、有文化、接地气、有特色的江南民居民宿类酒店整体环境氛围。


结语


随着经济的发展,古镇旅游的热度将会在未来持续增温。更多的传统建筑会被转换角色投入到服务旅游、接待游客的队伍中。旅游开发中对传统民居的保护会越来越受重视,同时活化利用的诉求标准也会越来越高。让历史建筑说话,让传统民居活化,是一种极为重要而且更加积极的保护方式。传统民居建筑文化中蕴含着极为丰富的地域文化、人文精神,要想有效地促进传统民居及其建筑文化基因的传承,作为现代人的我们必须要充分对传统建筑所具备的地域性、人文性等特色加以关注,并能够始终对多元化建筑文化进行保持,这才是实现传统民居保护和活化利用的主要目的。当下及未来两者之间还面临着一些困境,这些困境包括保护与开发的困境、旧建筑与新科技的困境、历史建筑修缮标准与旅游需求的困境。困境在短期内不会轻易消除,我们应在探索中寻求更好的活化利用的解决途径和应对困境的策略。实现历史建筑活化利用是一个漫长而且综合的过程,需要健全相关的法律法规、相关的政策指导,需要更多的理论支撑,需要文物行业和设计行业的扎实工作和创新与探索,需要社会各界的共同关注。


图片来源:

图1、图4、图5、图8:作者自摄

图2:南浔古镇官网

图3、图6、图7、图9—图13:作者自绘


注释和参考文献:略

作者:王海波,左琰

文章来源:建筑与文化,2021年12期

原题目:《江南传统民居保护与活化利用研究——以南浔古镇浔东里民居群改造为例

图文版权归原作者或机构所有,仅供学习参考,如有出入,请以原刊原文为准

特别鸣谢:王海波老师,左琰老师


知识点:江南传统民居保护与活化利用

江南民居

  • lijiawei411
    lijiawei411 沙发

    江南地区的建筑风格也是十分独特的,有着独特的江南韵味。俗话说得好,一方水土养育一方人,所以江南地区的民居文化特点也深深包含着江南独有的文化韵味。

    2023-02-07 18:39:07

    回复 举报
    赞同0
这个家伙什么也没有留下。。。

居住建筑设计

返回版块

28.74 万条内容 · 423 人订阅

猜你喜欢

阅读下一篇

洞悉户型设计的几个关键点

客厅功能的重新定位 (1) 面积趋势 厅的面积要大小适中,首先要实用,要考虑与其他房间(尤其实卧室)的协调,一般来说,视户型总面积的大小,客厅的开间应在3.8-5米之间,过大或过窄都与人们的家居生活规律有冲突。而通常情况下,进深与开间之比,不宜超过1.5,否则也将因过于狭长影响使用。 (2) 与阳台的关系阳台应与客厅连接,一方面阳台与自然直接对接,是“风光”入室的最佳通道;另一方面,阳台不能穿过卧室形成干扰,影响私密性,而应与厅相连接,成为厅的延伸。目前,新式公寓已把阳台改建成一个与厅直接连接,多面采光的“阳光室”,住户可以再次布置一个茶座,很有生活情趣,同时,阳台舍子啊客厅的向阳面,则应考虑再起背阳面设置次阳台或窗户,以形成“穿堂风”增加客厅的通透性;

回帖成功

经验值 +10