选择什么样的系统流程和蓄冰装置(类型、容量):
1 空调逐时负荷的具体情况以及特点是选择系统流程的核心因素;
2蓄冰装置较大程度地影响着系统流程的选择;(蓄冰装置的比较)
3 目前主流的系统流程是采用不完全冻结式蓄冰盘管的制冷主机上游的串联系统,部分建筑因其负荷特点可考虑采用冰球的并联系统;
4 受系统初投资以及机房占地的制约,目前主流的蓄冰系统为分量式蓄冰模式;
5 目前各种品牌的蓄冰装置基本上都能根据不同建筑的情况选择适用的系统流程,但是系统一些关键参数有所不同,在竞争过程中具体分析其优势及劣势,但是掌握公司目前主推的各种流程是基础,熟练之后就可举一反三进行其他厂家的流程优劣分析。
选择什么样的制冷主机:
冰蓄冷系统用冷水机组的选择主要取决于机组可以获得的出水温度、容量范围、效率和价格。此外,制冷剂类型和自控系统也应考虑。
1、容量因素:冷水机组有往复式、螺杆式、离心式、蜗旋式以及吸收式等机组,选择冷水机组时考虑的主要因素是容量问题。
每种机型的典型容量范围见下表:
典型容量选用范围:
型式 |
kW |
|
往复式 |
<25~150 |
<90~530 |
螺杆式 |
50~800 |
180~2800 |
离心式 |
500~2000 |
1800~7000 |
2、效率因素:
制冷主机的制冷能力随蒸发温度的降低而降低,随冷凝温度的降低而提高。通常蒸发温度每降低1 ℃,制冷能力约下降3%,故在制冰工况下的容量约为额定容量的60 ~70%。
型式 |
COP |
|
空调 |
制冰 |
|
往复式 |
4.1~5.4 |
2.9~3.9 |
螺杆式 |
4.1~5.4 |
2.9~3.9 |
离心式 |
5~5.9 |
3.5~4.1 |
3、出水温度
在冰蓄冷应用中,冷水机组出水温度变化范围一般为(-8~7℃),要求制冷主机的蒸发温度经常变化。

上图表示了主机在白天补充供冷和夜间制冰时的压缩机吸气温度在24小时内的变化曲线。在这个典型的冰储冷过程中,在制冰周期开始时,压缩机的吸气温度是相当高的,可运行在-2.2℃;制冰过程中,吸气温度逐渐下降;在制冰过程最后一个小时,有些压缩机的最终吸气温度可下降至-12.2 ℃。而空调时吸气温度维持在约3.3 ℃。因此,压缩机的吸气温度在-12.2~3.3℃之间变化,这要求用于冰储冷的压缩机应是可变压头。
压缩机形式:
1、螺杆式压缩机(单螺杆、双螺杆)
螺杆式压缩机靠汽缸中一对螺旋形阴阳转子相互啮合旋转,阴阳转子的齿槽在相对齿的填塞下,使容积不断变化,实现对制冷气体的压缩。
A 容积效率高,压力比高;
B 对湿冲程不明显,无液击危险;
C 制冷量可通过滑阀无级调节;
D 适合制冰工况。
2、离心压缩机
离心压缩机是速度型压缩机,制冷气体经叶轮高速旋转后获得一定的压力,气体的压力能由动能转换。压缩机进出口焓差与叶轮圆周速度有直接关系。制冰时由于蒸发温度低,故压缩机进出口的焓差大,这要求叶轮圆周速度要高,而实际上叶轮允许的最高速度受材料强度及其它因素限制,因此单级离心机所能达到的压比有限,不适合用于制冰工况,若用于制冰工况需采用多级离心机,而且,多级离心机可避免在低负荷时的喘振现象。
3、其它压缩机
涡旋式压缩机同螺杆式一样,具有保养方面的优点,因为它们对吸气管道内带液体制冷剂有较大的允许度,但容量较小;往复式压缩机则有液击危险;
溴化锂吸收式冷水机组的出水温度只能达到约4.4℃,不能制冰;氨吸收式冷水机组的出水温度可低达-14.6℃,虽有制冰应用,但不易得到组装型设备。
控制要求:
1 机组需同时满足制冰和空调两种工况要求;
2 在制冰工况下,能随外界负荷变化实现能量自动调节;
3 空调工况和制冰工况的切换,可以通过简单的面板操作或外部遥控操作实现;
4 机组微电脑控制系统的信息显示、载冷剂的温度控制、系统控制、系统保护、爬坡控制及远距离监视等功能必须同时满足空调和制冰工况的要求;
5 载冷剂出口温度范围为-7.5~7℃,且机组能自动跟踪载冷剂出口温度,根据该温度调整蒸发温度,以实现温度跟随,保证系统效率;
6 无论在何种模式、何种工况下,主机均能卸载运行。
冰蓄冷系统制冷主机容量计算方法:
1 如果夜间低谷电期间存在相当数量的负荷,则基载主机的总容量为夜间负荷中的最大值,为了在过渡季节获得更好的运行效率,可考虑通过选定基载主机的数量将冷量进行拆分。如果夜间有负荷,但是负荷相对较小,也可考虑不设基载主机,但是冰蓄冷系统流程必须具备制冰兼供冷功能。如果无负荷则系统一般情况下不设基载主机。在业主较为重视系统初投资的情况下,可以通过设置基载主机来减小双工况主机的总容量以及系统总蓄冰量,一般情况下,通常确定的基载主机和双工况制冷主机的制冷容量相同,有助于减小冷却水系统的投资。
2 低谷电时段有N小时运行制冰,其他时段内由双工况主机及融冰来承担的系统总冷负荷为Σ(如果系统已设基载主机,则应将基载主机全天承担的总冷量扣除),其余需要供冷的时段有X小时,则双工况制冷主机的总容量C计算公式为:
C=∑/(065N+X)。
特殊说明:
A 基本原则是主机提供的总冷量加上总融冰量等于全天冷负荷总量,即负荷平衡。
B 对于为减小投资而设基载主机的情况,应在EXCEL表内做负荷平衡的时候经过几次试算来得出合适的主机容量。
C 对于夜间存在很小的负荷并且由边制冰边供冷工况满足的情况,在按照以上公式计算的时候,应将夜间低谷电期间的总冷负荷加入以上公式的分子中。
D 如果逐时负荷中出现部分时段内空调负荷相对较低,即可能存在不需要全部的双工况制冷主机都投入或全部投入但可能卸载的情况,这样按照上述公式计算出的双工况制冷主机的总容量需要修正,可以先忽略,然后在EXCEL表内做负荷平衡的时候酌情调整。
E 从上述公式中可以简单分析出各地不同的低谷电时段对双工况制冷主机制冷容量的影响。对于江西,N=6;对于江苏、福建、深圳等区域,N=8;对于安徽,N=9;对于浙江, N=12(但有2小时在中午,通常运行主机单独供冷工况,不记入制冰时间)。相对于标准的8,N值越大则系统双工况主机的总容量会减小,反之则主机总容量会增加。
系统其他设备如何计算性能参数:
1 乙二醇泵:
A 并联系统(冰球):
初级乙二醇泵:制冷主机制冷容量(千大卡/小时)/5℃×1.1(m3/h),扬程约18米;
次级乙二醇泵:板换制冷容量(千大卡/小时)/5℃×1.1(m3/h),扬程约20米。
B 串联单循环系统(盘管):
乙二醇泵:流量=MIN{制冷主机对应流量,板换对应流量},需简单校核;
扬程:主机蒸发器+板换一次侧+蓄冰盘管+管道。
C 串联双循环系统(盘管):
初级乙二醇泵:流量=制冷主机制冷容量(千大卡/小时)/5℃×1.1(m3/h);
扬程=主机蒸发器+蓄冰盘管+相应管道。
次级乙二醇泵:流量=板换制冷容量(千大卡/小时)/5℃×1.1(m3/h);
扬程=板换一次侧+相应管道。
2 冷冻水泵:
基载冷冻水泵:基载主机制冷容量(千大卡/小时)/5℃(m3/h)
扬程=基载主机蒸发器+末端最不利压差+管道压降,通常约32米;
板换冷冻水泵:基载主机制冷容量(千大卡/小时)/5℃(m3/h)
扬程=板换二次侧压降+末端最不利压差+管道压降,通常约32米;
3 冷却塔:
1)冷却塔的选择与当地湿球温度关系很大,标准选塔参数为28℃。一般情况下,应根据当地的湿球温度结合冷却塔样本进行选择;
2)在南方地区,冷却塔的流量(m3/h)略小于制冷主机的冷量(RT),在北方地区,冷却塔可以更小一些。
4 冷却水泵
1)冷却水泵可以按照主机冷凝器设计流量的1.1倍选择;
2)冷却水的扬程与楼高无关,扬程=塔体扬程+主机冷凝器压降+管道压降,一般扬程为24米。对于无风机冷却塔或闭式冷却塔,塔体扬程较高,应注意。
5 板式换热器
传热面积:F=Q/β?K ?△tm
F:传热面积,m2;
Q:总传热量,W;
β:传热面积污垢修正系数,一般0.7~1.0;钢板换取0.7,铜板换取0.75~0.8。
K:传热系数,W/(m2 ?℃);(4000~5500);
△tm:传热介质和被传热介质的对数平均温差,℃。
板换的成本由挡板、板片和垫片组成。传热面积直接对应板片数量,影响成本的权重较大!
对数平均温差:
△tm= (△ta- △tb)/(ln △ta/ △tb)
△ta:热交换器传热介质和被传热介质间最大温差;
△tb:热交换器传热介质和被传热介质间最小温差。
对于给定板换,对数温差越大,热交换量越大。对于已知换热量板换,对数温差越大,换热面积越小,越便宜。

△ta= (t2- t1’) |
△ta= (t1- t1’) |
△tb= (t1- t2’) |
△tb= (t2- t2’) |
对并联系统板式换热器选型参数一般为为一次侧(冷剂侧)为5℃/10℃,二次侧(冷冻水侧)为7℃/12℃。
对于串联大温差系统而言选择合适的一次侧供回液温度是很重要的。
例如:对于二次侧供回水温度为3.3℃/12℃的低温送风系统一次侧供回温度如何定?首先确定一次侧溶液泵流量,即主机额定流量(按主机空调工况容量和5℃温差而得);然后根据板式换热器换热量和乙二醇泵流量确定板换一次侧供回温差,比如为8.5℃;则可根据蓄冰盘管的特性选择盘管出口温度即板换一次进口温度。对于不完全冻结式内融冰盘管一般可取2.2℃,则一次出口温度为10.7℃。当然降低进口温度可降低板式换热器投资,但提高了对蓄冰装置的要求,或者增加冰量才能满足。如果适当加大乙二醇流量,比如主机温差为4℃,板换温差为6.8℃,则可降低板换及蓄冰装置要求,但系统管路系统及水泵投资又相应增加,因此对于较大型的冰蓄冷系统应该经过综合经济比较得出最优的选型参数。
对于末端为常规系统的板换冷剂恻进口温度一般定为3.5℃,较经济。
6 蓄冰槽
冰球式系统的蓄冰装置可采用闭式或开式蓄冰槽。
圆形冰球(无配重)一般较适用于闭式立罐系统,若用于开式冰槽则需考虑配以防止冰球上浮的装置,如在冰槽上部装钢制格栅。内部水流方向宜设计为上下流。左右流易形成短流,导致融结冰率较低。
一般蕊芯冰球可适用于开式或闭式系统,内部流动方向根据情况可以为水平流或上下流。
蓄冰槽工艺:无论对于何种蓄冰槽,保证零渗漏是首要问题。应考虑-8℃~30℃的温度范围变化。
1)若为混凝土槽需注意:
一般为内保温,保温内部须做防水层,保温与槽壁之间须做防潮处理。对蓄冰盘管,槽体底部局部受压点需特殊处理,以防止保温材料和防水层受损。
2)若为钢制槽
一般为外保温,钢槽内壁须考虑防腐处理,保温层外侧须考虑防潮及外保护层。位于室外的槽体顶部外保护尽量采用浅色系,以减轻日射得热造成的冷量损失。
7 乙二醇
1)冰球系统应采用25%体积比的乙二醇溶液,盘管系统可采用25%重量比的乙二醇溶液。
2)对于冰球系统,乙二醇的使用量(吨)约为系统总蓄冷量(RTh)的0.9~1%。
3)对于盘管系统,乙二醇的使用量(吨)约为系统总蓄冷量(RTh)的2.5~3.5‰。
4)系统蓄冰量越大相对乙二醇使用量会下降。
8 其他辅助设备(定压、水处理等)
对开式蓄冰系统而言,蓄冰槽本身即可作为膨胀定压装置,只是在设计时需考虑液位膨胀空间以及保证乙二醇泵吸端低于槽体最低液位和尽量使乙二醇系统所有管道低于槽体最低液位。
对于闭式系统,可采用开式膨胀水箱,也可采用闭式膨胀水箱,采用闭式膨胀水箱流程管路上须设置安全阀,其泄液应排至收集箱,以便回收二次冷剂。
系统膨胀量计算:
于盘管式闭式系统,其膨胀量为系统总溶液量在不同温度下的体积变化,而且溶液体积是随着结冰过程的进行而变小;
对蕊芯冰球来说系统膨胀量主要是冰球结冰后体积变化量,一般为总的冰球体积的10%左右
对圆形冰球由于其球内留有部分膨胀空间(约为冰球体积6%),结冰后球内的空气被压缩,冰基本上充满球体内腔,然后再向外膨胀,因此,该系统膨胀量约为冰球总体积的4%左右。
对于后两种情况溶液在结冰过程体积减小,而冰球在结冰过程体积增大,后者远大于前者。因此前者可忽略不计,可作为设计余量来考虑。
系统的经济性如何:
1 运行费用计算
基本方法:
STEP1:在设备配置表明确后,在EXCEL表内根据运行策略(不同的运行策略对应的投入运行的设备的种类和数量有所不同)做出每小时的运行费用,最后进行统计即可。
STEP2:确定总供冷天数以及不同设计日负荷下的天数。对于南方地区供冷周期通常为5个月,即150天左右(5月15日至10月15日)。推荐的不同负荷的天数比例如下表:
空调负荷全年分布表如下:
冷负荷率(%) |
75~100 |
50~75 |
25~50 |
<25 |
占总运行时间的百分数(%) |
10 |
50 |
30 |
10 |
STEP3:根据不同负荷状态下全天的运行费用乘以对应天数,再将不同负荷状态下的运行费用进行统计之后即可获得最终的结果。
2 投资回收期计算
投资回收期分为静态和动态两种计算方法。静态投资回收期的计算方法为:静态回收期(Ys)=初投资增加(△P)/运行费用节省(△R)动态投资回收期的计算方法为:动态回收期(Yd)=初投资增加(△P)(1+Li)Yd/运行费用节省(△R)
可以根据△P/ △R以及Li,可以根据复利表查出Yd。如果手头没有复利表,可以将以上公式简化为Yd=(1+Li*Yd)Ys,即Yd=Ys/(1-Li*Ys)。
蓄冰通用流程说明:
1 蓄冰模式
供冷时不使用冷水主机,冷负荷完全由蓄冰系统供给。
蓄冰槽和冷水主机的容量都比较大,仅适用于负荷大,持续时间短的场合。
初投资大、运行费用省;控制简单。
分量蓄冰:
① 主机优先:主机满负荷运行,冷量不足融冰补充。
② 融冰优先:蓄冰装置优先提供冷量,不足部分由主机补充。
冰蓄冷系统流程分类:串联流程;并联流程。
供给冷量时,依据制冷主机与蓄冰装置的相互关系分为:串联流程和并联流程两种布置结构。
串联流程:按主机与蓄冰装置的相对位置分:
主机上游:主机出水温度较高,效率较高;蓄冰装置进口温度较低,要求较高。
主机下游:主机出水温度低,效率较低;蓄冰装置进口温度较高,要求较低。
主机上、下游:

串联流程的几种形式:
开式(冰球)系统串联流程;闭式(盘管或冰球)系统串联流程:单循环,双循环。
开式(冰球)系统串联流程:

可以实现以下四种工作模式:
主机制冰;主机单供冷;融冰单供冷;主机与融冰联合供冷。
流程特点及适用性:
适用于蓄冰装置为冰球开式系统,末端为常规系统。
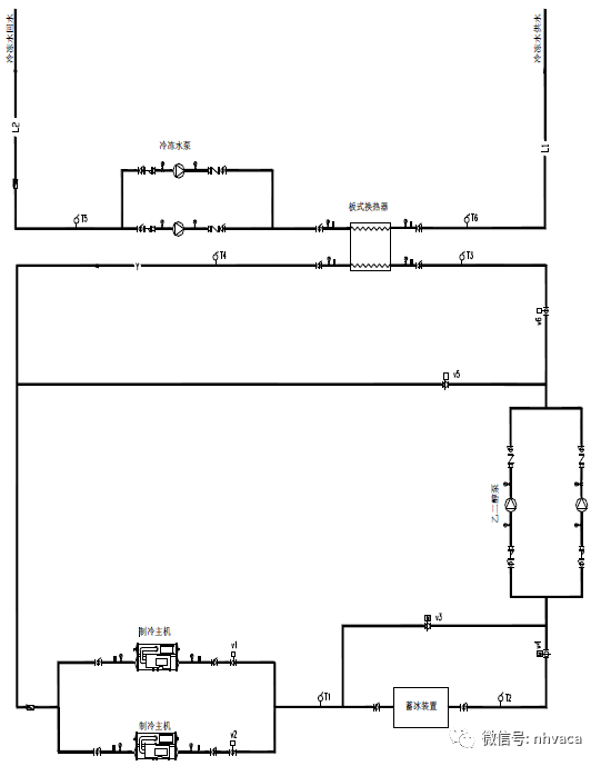
闭式系统串联流程(单循环):

可以实现以下四种工作模式:
主机制冰;主机单供冷;融冰单供冷;主机与融冰联合供冷。
流程特点及适用性:
1)闭式冰球,末端为常规系统;
2)盘管,末端为常规或大温差系统。
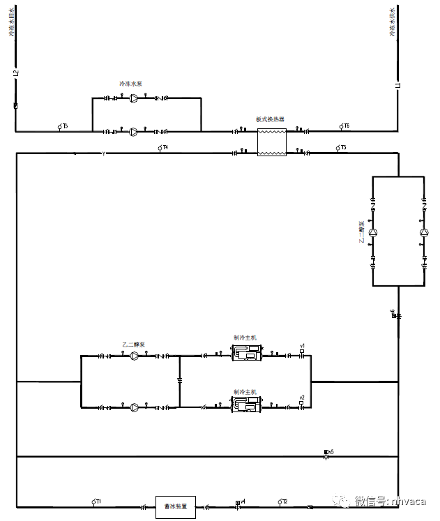
闭式系统串联流程(双循环):

可以实现以下五种工作模式:
主机制冰;主机制冰兼供冷;主机单供冷;融冰单供冷。
主机与融冰联合供冷流程特点及适用性:
1)闭式冰球,末端为常规系统。
2)盘管,末端为常规或大温差系统。
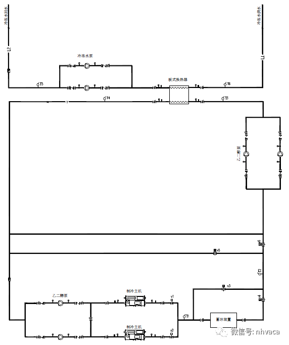
并联流程1:

可以实现以下四种工作模式:
主机制冰;主机单供冷;融冰单供冷;主机与融冰联合供冷。
流程特点及适用性:蓄冰装置为闭式或开式冰球,末端为常规系统。
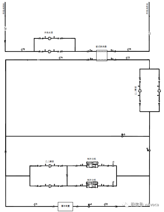
并联流程2:

可以实现以下五种工作模式:
主机制冰;主机制冰兼供冷;主机单供冷;融冰单供冷;主机与融冰联合供冷。
流程特点及适用性:蓄冰装置为闭式或开式冰球,末端为常规系统。
冰蓄冷串联系统控制策略:
1 主机优先
① 控制方式:
设定主机出口温度为冰蓄冷系统供液温度;
当系统负荷小于主机供冷量时,主机及相应的水泵,冷却塔应进行台数调节;
台数调节的依据是回水温度T2。
② 特点:
主机满负荷运行,冷量不足由融冰补充;
在部分负荷时,主机出水温度下降,效率降低;
在冷负荷较小时,融冰速率极低;
控制简单。
2 融冰优先
特点:
根据蓄冰装置融冰性能和负荷情况分配各个时段的融冰量;
根据各个时段分配的融冰量,核算系统流量确定水泵开启的最少台数;
根据融冰量、流量和蓄冰装置出口温度,计算蓄冰装置进口温度;
根据蓄冰装置进口温度,计算主机出口设定温度。
① 当主机和水泵开启台数对应时,蓄冰装置进口温度即为主机出口设定温度T1=T2。

② 当水泵开启台数大于主机开启台数时,须根据系统回水温度T4、蓄冰装置进口温度T2和各支路流量计算主机出口设定温度T1。

3 单级泵系统流程
1)主机制冰

2)主机单供冷

3)融冰单供冷(乙二醇泵变频)

4)融冰单供冷(电动阀调节)

5)联合供冷(主机优先、融冰优先)

4 双级泵系统流程
1)主机制冰

2)主机制冰兼供冷

3)主机单供冷

4)融冰单供冷(电动阀门调节)

5、联合供冷(主机优先、融冰优先)

本文来源于网络,如有侵权,请联系删除
知识点:冰蓄冷系统设计方案
相关推荐:
0人已收藏
0人已打赏
免费0人已点赞
分享
制冷技术
返回版块14.67 万条内容 · 883 人订阅
阅读下一篇
二管制、四管制控制区别1.二管制:供冷供热合用同一管路系统。 2.四管制:供冷、供热的供、回水管分开设置。 四管制为热水供回水,冷水供回水分别设置。二管制为冷热水共用。四管制风机盘管有热盘管和冷盘管。二管制风机盘管只有共用盘管。 3.二管制控制方案与四管制控制方案的区别 二管制控制方案是由温控器与三线制电动阀组合控制,由温控器设定温度与测量温度之间的对比来给电动阀开/关阀信号。 而四管制控制方案由温控器与冷水阀与热水阀组合控制,制冷模式下,热水阀处于关闭状态,不受控制,除非温控器把模式转换成制热模式时热水阀才受控;相反制热模式下,冷水阀处于关闭状态,不受控制,除非温控器把工作模式调换成制冷模式时冷水阀才受控。当然此控制方案只能使用二管制电动阀。
回帖成功
经验值 +10
全部回复(0 )
只看楼主 我来说两句抢沙发