深基坑工程事故案例分析
1、杭州地铁深基坑事故概况
1.1 事故调查结果公布
2008年11月15日下午3时15分,正在施工的杭州地铁湘湖站北2基坑现场发生大面积坍塌事故,造成21人死亡,24人受伤(截止2009年9月已先后出院),直接经济损失4961万元。
其直接原因是施工单位违规施工、冒险作业、基坑严重超挖;支撑体系存在严重缺陷且钢管支撑架设不及时;垫层未及时浇筑。监测单位施工监测失效,施工单位没有采取有效补救措施。
1.2 工程概况
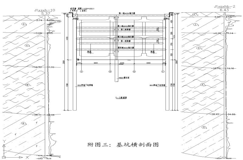
杭州地铁事故基坑,长107.8m,宽21m,开挖深度15.7~16.3m。设计采用800mm厚地下连续墙结合四道(端头井范围局部五道)Φ609钢管支撑的围护方案。地下连续墙深度分别为31.5m~ 34.5m。基坑西侧紧临大道,交通繁忙,重载车辆多,道路下有较多市政管线(包括上下水、污水、雨水、煤气、电力、电信等)穿过,东侧有一河道,基坑平面图如下图所示。

基坑平面图
根据勘察,北2基坑西侧坍塌区为深厚的淤泥质土层,平均厚度32m,最大厚度35m,天然含水率近50%,呈流塑-软塑状,土体力学性质差。地下潜水位为0.5m,无承压水。
各土层的物理指标

各土层的力学指标

1.3 事故概况
基坑土方开挖共分为 6 个施工段, 总体由北向南组织施工 至事故发生前,第1施工段完成底板混凝土施工,第2施工段完成底板垫层混凝土施工,第3施工段完成土方开挖及全部钢支撑施工,第4施工段完成土方开挖及3道钢支撑施工、开始安装第4道钢支撑,第5、6施工段已完成3道钢支撑施工、正开挖至基底的第5层土方同时,第1施工段木工、钢筋工正在作业;第3施工段杂工进行基坑基底清理,技术人员安装接地铜条;第4施工段正在安装支撑、施加预应力,第 5、6 施工段坑内2台挖机正在进行第5层土方开挖。

首先西侧中部地下连续墙横向断裂并倒塌,倒塌长度约75m,墙体横向断裂处最大位移约7.5m,东侧地下连续墙也产生严重位移,最大位移约3.5m。由于大量淤泥涌入坑内,风情大道随后出现塌陷,最大深度约6.5m。地面塌陷导致地下污水等管道破裂、河水倒灌造成基坑和地面塌陷处进水,基坑内最大水深约9m。下图所示为一组事故现场照片。






2、 杭州地铁深基坑事故的原因分析
2.1 破坏模式分析
根据勘查结果对基坑土体破坏滑动面及地下连续墙破坏模式进行了分析,并绘制相应的基坑破坏时调查平面图与施工工况图以及基坑土体滑动面与地下连续墙破坏形态断面图。


据靠近西侧地下连续墙静力触探试验表明,在绝对标高-8m~-10m处(近基坑底部), qc值为0.20MPa(qc仅为原状土的30%左右),土体受到严重扰动,接近于重塑土强度,证明土体产生侧向流变,存在明显的滑动面。
西侧地下连续墙墙底(相应标高-27.0左右),C1孔静探qc值约为0.6MPa(qc为原状土的70%左右),土体有较大的扰动,但没有产生明显的侧向流变,主要是地下连续墙底部产生过大位移而所致。


杭州地铁破坏模式示意图
2.2 勘察问题
由于勘察工作量不足,加上勘察人员对土性的认识的不足,造成基坑工程勘察资料不详细或土的物理力学指标取值偏高,使设计计算失误引起的事故。如杭州地铁工程在勘察方面主要有以下一些问题:
不符合规范要求
1)基坑采取原状土样及相应主要力学试验指标较少,不能完全反映基坑土性的真实情况。
2)勘察单位未考虑薄壁取土器对基坑设计参数的影响,以及未根据当地软土特点综合判断选用推荐土体力学参数。
3)勘察报告推荐的直剪固结快剪指标c、Φ值采用。平均值,未按规范要求采用标准值,指标偏高。
4)勘察报告提供的④2层的比例系数m值(m=2500kN/m4)与类似工程经验值差异显著。
提供的土体力学参数互相矛盾,不符合土力学基本理论。
1)推荐用于设计的主要地层土的三轴CU、UU试验指标、无侧限抗压强度指标与验证值、类似工程经验值差异显著。
试验原始记录已遗失,无法判断其数据的真实性。
2.3 设计问题
由于基坑设计涉及到多种学科,如土力学、基础工程、结构力学和原位测试技术等,需要对场地周围环境、施工条件、工程地质条件、水文地质条件详细了解和掌握,是一门系统科学,具有复杂性。所以目前基坑支护的设计方案与措施大多数是偏于保守的,即便如此,如果设计的人员经验不足,考虑不周,也易引起相应的事故。对522例基坑事故统计也说明基坑设计的不足,是引发事故的重要原因。杭州地铁工程在设计方面主要有以下一些问题:
计算参数的选择
1)设计单位未能根据当地软土特点综合判断、合理选用基坑围护设计参数,力学参数选用偏高降低了基坑围护结构体系的安全储备。
2)设计中考虑地面超载20kPa较小。基坑西侧为一大道,对汽车动荷载考虑不足。根据实际情况,重载土方车及混凝土泵车对地面超载宜取30kPa,与设计方案20kPa相比,挖土至坑底时第三道支撑的轴力、地下连续墙的最大弯矩及剪力均增加约4%~5%,也降低了一定的安全储备。
考虑不周,经验欠缺
1)设计图纸中未提供钢管支撑与地下连续墙的连接节点详图及钢管节点连接大样,也没有提出相应的施工安装技术要求。没有提出对钢管支撑与地连墙预埋件焊接要求。
2)同意取消施工图中的基坑坑底以下3m深土体抽条加固措施,降低了基坑围护结构体系的安全储备。
经计算,采取坑底抽条加固措施后,地下墙的最大弯矩降低20%左右,第三道支撑轴力降低14%左右,地下墙的最大剪力降低13%左右,由于在坑底形成了一道暗撑,抗倾覆安全系数大大提高。
3)从地质剖面和地下连续墙分布图中可以看出,对于本工程事故诱发段的地下连续墙插入深度略显不足,对于本工程,应考虑墙底的落底问题。
4)设计提出的监测内容相对于规范少了3项必测内容。

2.4 施工问题
基坑土方超挖以及支撑施加不及时,支撑体系存在薄弱环节,基坑边超载过大等均容易引起基坑失稳。由于在以上因素的作用下,会引起基坑围护结构变形较大,容易导致支撑破坏或地下水管破裂,进而引发事故的发生。如杭州地铁工程在施工方面主要有以下一些问题。
(1)土方超挖
土方开挖未按照设计工况进行,存在严重超挖现象。特别是最后两层土方(第四层、第五层)同时开挖,垂直方向超挖约3m,开挖到基底后水平方向多达26m范围未架设第四道钢支撑,第三和第四施工段开挖土方到基底后约有43m未浇筑混凝土垫层。土方超挖导致地下连续墙侧向变形、墙身弯矩和支撑轴力增大。

与设计工况相比,如第三道支撑施加完成后,在没有设置第四道支撑的情况下,直接挖土至坑底,第三道支撑的轴力增长约43%,作用在围护体上的最大弯矩增加约48%,最大剪力增加约38%;超过截面抗弯承载力设计值1463kN?m/m。
支撑体系问题
1)现场钢支撑活络头节点承载力明显低于钢管承载力
钢支撑体系均采用钢管结合双拼槽钢可伸缩节点, 施加预应力后钢楔塞紧传递荷载但该节点的设计、制作加工、 检测、验收、安装施工等均无标准可依, 处于无序状态
现场取样试验结果表明, 正常施工状态下该节点的承载力为3 000kN,明显低于上述钢管的承载力计算值5479kN。
如果在未设置第 4 道支撑的情况下直接挖土至坑底,第 3 道钢管支撑的最大轴力均超过钢管支撑轴心受压承载力设计值3 000kN 如果进一步考虑活络头偏心、钢楔没塞满活络头间隙等节点薄弱因素, 实际作用于第 3 道支撑的轴力与钢管节点的承载能力之间的差距将更大。
现场钢支撑体系的破坏状态表明: 大部分破坏均为该节点破坏,充分说明该伸缩节点不满足与钢管等强度 、等刚度的连接要求。

2)钢管支撑与工字钢系梁的连接不满足设计要求
设计要求钢管支撑在系梁搁置处,需采用槽钢有效固定,实际情况部分采用钢筋(有的已脱开)固定、部分没任何固定措施,这使得钢管计算长度大大增加,钢管弯曲现象不同程度存在,最大弯曲值达11.76cm,由于偏心受压降低了钢管支撑的承载力。

从以上计算可以看出,在本工程中,21.05m无支点的钢管相对中间有一支点的钢管的抗压强度设计值减小了约1/3,相差较大。
3)钢立柱之间也未按设计要求设置剪刀撑

设计要求系梁垂直方向每隔三跨设一道剪刀撑,边跨应设置,实际情况未设,降低了支撑体系的总体稳定性。
4)部分钢支撑的安装位置与设计要求差异较大
钢支撑安装位置相对设计位置偏差较大,最大达83.6cm , 平均为20.6cm;相邻钢管间距与设计间距偏差最大达65.0cm。安装偏差导致支撑钢管受力不均匀和产生了附加弯矩。
5)钢支撑与地下连续墙预埋件未进行有效连接
钢管支撑与地连墙预埋件没有焊接,直接搁置在钢牛腿上,没有效连接易使支撑钢管在偶发冲击荷载或地下连续墙异常变形情况下丧失支撑功能。

2.5 监测问题
基坑工程不确定性因素多,应实施信息化施工,监测是基坑信息化施工中必不可少的手段,对基坑工程,监测单位应科学、认真测试,及时、如实报告土体位移、地面沉降、支撑轴力等测试成果。对于杭州地铁工程在施工方面主要有以下一些问题:
(1)提供的监测报表中数据存在伪造现象,隐瞒报警数值,丧失了最佳抢险时机。
电脑中的原始数据被人为删除,通过对监测人员使用的电脑进行的数据恢复,发现以下3个问题。
(1)2008年10月9日开始有路面沉降监测点11个,至11月15日发生事故前最大沉降316mm,监测报表没有相应的记录。
(2)11月1日49号(北端头井东侧地连墙)测斜管18m深处最大位移达43.7mm,与监测报表不符。
(3)2008年11月13日CX45号测斜管最大变形数据达65mm,超过报警值(40mm),与监测报表不符。
通过以上可以发现,电脑中的数据与报表中的数据不一致,实际变形已超设计报警值而未报警,可以认为监测方有伪造数据或对内对外两套数据的可能性。
(2)监测方案中的监测内容和监测点数量均不满足规范要求。


(3)测点破坏严重且未修复,造成多处监控盲区;部分监测内容的测试方法存在严重缺陷。
通过钢支撑应力计现场测试表明,钢支撑受拉时应力计读数变大,受压时应力计读数变小,根据此原理,监测报表中的所有钢支撑均出现拉应力,明显不符合钢支撑的受力状态,说明监测数据不可靠。
2.6 其它问题
(1)专项方案审批管理混乱,未严格按设计及规范要求监理。
(2)监理未按规定程序验收,违反监理规范。
(3)发现存在严重质量安全隐患,而未采取进一步措施予以控制
综上所述:由于基坑土方开挖过程中,基坑超挖,钢管支撑架设不及时,垫层未及时浇筑,钢支撑体系存在薄弱环节等因素,引起局部范围地下连续墙产生过大侧向位移,造成支撑轴力过大及严重偏心。同时基坑监测失效,隐瞒报警数值,未采取有效补救措施。以上直接因素致使部分钢管支撑失稳,钢管支撑体系整体破坏,基坑两侧地下连续墙向坑内产生严重位移,其中西侧中部墙体横向断裂并倒塌,风情大道塌陷。
(未完待续)
内容源于网络,旨在分享,如有侵权,请联系删除
相关资料推荐:
https://ziliao.co188.com/d62562533.html
知识点:深基坑施工注意事项
0人已收藏
0人已打赏
免费0人已点赞
分享
道路工程
返回版块15.09 万条内容 · 689 人订阅
阅读下一篇
「智慧管廊」最新概念!聚焦“智慧管廊”,打造“智慧城市” 上海市政总院,凭借多年来在综合管廊行业的规划设计、规范标准制定、新技术研究应用等各方面工作的技术沉淀,提出契合国内综合管廊运管特点的「智慧管廊」概念。
回帖成功
经验值 +10
全部回复(2 )
只看楼主 我来说两句抢地板施工现场一片混乱,吸取教训,总结经验,感谢提供。
回复 举报
不错的资料,谢谢分享。。。。
回复 举报