0 引言
泡沫轻质土作为一种轻质凝结材料,由于具备良好的自立性、较高的流动性、浇筑时较小的侧压力及较短的硬化凝结时间等特点,其在高速公路路基工程中的应用范围较为广泛,目前国内外多采用泡沫轻质土换填路基的方法以解决不均匀沉降和桥头跳车难题。在大量工程应用的同时,探明泡沫轻质土路基在施工与运营阶段的沉降变形规律成为了本领域的重要研究方向。
现场试验测试是一种相对真实有效的数据采集手段,多用于路基沉降变形的量化分析,也是泡沫轻质土研究领域相关学者采用的主要研究方法之一。路通等运用现场监测的手段对深厚软土地基工况下泡沫轻质土基底应力应变与分层沉降规律进行了探究;孙旭东等结合现场监测与数值模拟的研究方式,对广佛江快速通道某段泡沫轻质土路堤的基底压应力与沉降的分布特征进行了研究;杨春风等基于唐津高速扩建工程某试验段,采用数值模拟方法分析了泡沫轻质土路堤的基底应力应变分布规律;李群依托某公路扩建工程,采取现场监测试验的方法,对泡沫轻质土填筑路基的沉降变形规律进行了研究。以上研究均涉及到轻质土路基的变形特性,但仍存在系统性不足的缺点,不能同时反应填筑体竖向与横向的变形分布规律,需进一步完善轻质土路基变形体系研究。
目前国内外对于轻质土路基填筑形式与沉降变形规律相关性的研究相对较少,同时不同工况下的轻质土路堤变形分布规律也尚未有详细的对比研究。因此本文以广连高速TJ05标段某半填半挖式泡沫轻质土路堤为例,对路基施工过程中的深层水平位移、分层沉降以及基底剖面沉降等数据进行采集分析,进而探究在桥台段与非桥台段两种不同工况下轻质土路堤变形随时间和空间的发展变化规律。本研究为半填半挖式泡沫轻质土路堤的变形分析提供了参考,对于实际工程建设具有一定的指导价值。
1 工程概况1.1 工程简介
广州从化至清远连州高速公路TJ05标A2分部路基项目地处广东省英德市,起点里程桩号为K70+650,位于连江口镇,终点里程桩号为K79+000,位于水边镇,共计8.432 km。总计路基挖方量约为2 411 000 m3,填方量约为1 892 000 m3,高边坡18处,设计标准为双向六车道,设计速度120 km/h,整体式路基宽度34.5 m。结合现场施工进度情况,将泡沫轻质土填筑试验段设置在K74+000~ K74+200的里程之间,具体填筑段平面示意如图 1所示。

图 1 泡沫轻质土填筑段平面示意

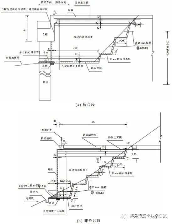
图 2 不同区间段轻质土填筑横断面示意
试验段区间恰位于拟建的南山一号隧道进口处,经过实地考察发现区间一端与桥台相连。桥台段地基土为天然土,而非桥台段地基土为新填土,考虑到桥台段与非桥台段地基土的差异性,为对比研究泡沫轻质土施工期间两者的沉降特性,故本次现场监测试验在桥台段与非桥台段分别设有监测断面。桥台段与非桥台段填筑横断面如图 2所示。
1.2 工程地质与水文条件
依据相关勘察资料,本试验区间在勘察深度范围内上覆地层为残坡积层,下伏基岩为泥盆系砂岩。地层由上而下依次为粉质黏土、全风化砂岩、强风化砂岩。填方区内无地表水体,地表水主要为雨季时形成的地表径流,水量受季节影响而变化;地下水主要为第四系松散堆积层孔隙水及深层基岩裂隙水。试验区间地层物理力学参数如表 1所列。
表 1 岩土层的物理力学参数

2 现场试验方案
结合现场施工进度以及实际情况,将试验段设置在右线里程K74+000.0~K74+200.0之间。分别选取桥台段与非桥台段两个试验段进行路堤深层水平位移、分层沉降和基底剖面沉降的监测分析,监测仪器与观测目的如表 2所列。
表 2 现场监测仪器与监测目的


图 3 现场试验区间测点布置平面示意
在桥台段距离桥头11.1 m处的底部设置一联合测试管LC-1-1用于测试泡沫轻质土路堤的分层沉降与深层水平位移,该测管所在位置桩号为K74+010,横向距离路肩约2.85 m。并在该测管的一侧预埋剖面沉降管PC-1-1用于测试路基基底的剖面沉降,其所在断面的桩号分别为K74+007。在非桥台段同样在填筑断面底部竖直设置一联合测试管LC-2-1,该测管所在位置桩号为K74+105,横向距离路肩约2.9 m。在其侧边预埋设有一剖面沉降管PC-2-1,桩号为K74+110。详细的测点平面布置见图 3。
此外,本次现场试验主要通过在填筑体中预埋设沉降磁环来实现深层土分层沉降数据的采集,为便于分析,这里对各沉降磁环间隔的距离设置为0.5 m或者1.0 m,现场试验测点布置断面示意如图 4所示。

图 4 现场监测点布置断面示意
路堤深层水平位移实测如图 5所示。根据现场试验数据可得到LC-1-1与LC-2-1处的泡沫轻质土累积荷载时程曲线,见图 6.3 试验结果分析。
3.1 路堤深层水平位移
![]() |
| 图 5 路堤深层水平位移实测 |
![]() |
| 图 6 现浇泡沫轻质土累积荷载时程曲线 |
由实测数据可绘制出LC-1-1处的水平位移时程曲线,见图 7。
![]() |
| 图 7 LC-1-1水平位移时程曲线 |
桥台处竖沿向均匀分布的各个测试点的水平位移量随着时间的推移不断发展增大,最终趋于收敛保持稳定。由图 7可以看出,水平位移在空间上表现为底部变形最小、顶部变形最大,沿着埋深方向近似呈现为线性分布,埋深7.25 m处水平位移增长幅度最小,在整个施工期间增大了0.07 mm,几乎可以认为该点未发生水平方向的变形;埋深1.25 m处水平位移值的增长速率相对较快,后期稳定在1 mm左右。究其原因,在于轻质土路堤内部的水平附加应力分布呈现一定的规律性,随着深度的增加,上覆荷载产生的水平附加应力逐渐减弱。
同理可得到LC-2-1处的水平位移时程曲线,如图 8所示。类似于桥台处的深层水平位移分布变化规律,非桥台处各测试点的水平位移量也是随着时间的推移逐渐发展,最终趋于稳定。根据图 8可知,水平位移在空间上表现为底部变形最小、顶部变形最大,沿着埋深方向近似呈现为线性分布。
![]() |
| 图 8 LC-2-1水平位移时程曲线 |
通过对监测数据的分析可知,在填筑期间越是处于顶部的土体,其水平变形的速率越大,变形量也较为明显;埋深越大,土体越为稳定。对于填筑高度7 m左右的公路路基而言,其总体水平位移能够保持在1 mm内,主要因为轻质土与普通填土的差异性较大,浇筑完成后其强度增长较为迅速,且内部不会产生太大的侧压力,整个填筑期间泡沫轻质土路堤本身的水平位移可忽略不计。虽然实测水平位移在数值上相对较小,对于路基变形控制的指导价值有限,但从定量分析的角度探究泡沫轻质土路堤在填筑期的侧向位移分布,也从侧面体现了轻质土材料在公路路基工程中的技术优越性。
综合对比桥台段LC-1-1与非桥台段LC-2-1处的深层水平位移测试结果,发现无论是桥台段还是非桥台段断面的泡沫轻质土路堤,内部的水平位移都相对较小,且两处水平方向的变形分布与发展规律基本相同,不同之处在于非桥台段的变形值略大于桥台段的变形值,这主要与两处地基土层的差异性相关,地基土物理力学性质越好,相应的路堤水平变形也相对越小。
3.2 路堤分层沉降
现场主要通过预埋沉降磁环,并结合分层沉降仪感知其位置变化,从而实现沉降数据的收集,现场实测如图 9所示。
![]() |
| 图 9 路堤分层沉降实测 |
根据现场试验数据可得到LC-1-1处的分层沉降时程曲线,见图 10。由图 10可以看出随着泡沫轻质土路堤分层填筑工序的持续进行,填筑体的内部分层沉降量不断增大,在所布置的测点中,以埋深7.25 m处的沉降最大,最大值为35 mm,埋深1.25 m处的沉降最小,最小值为9 mm。不同于运营期的沉降变形特性,填筑期断面底部的轻质土最早施工,变形时间最长,所承受的上覆荷载也相对最大,因而埋深较深处的累积沉降总量高于埋深较浅处。
![]() |
| 图 10 LC-1-1分层沉降时程曲线 |
此外,通过分析分层沉降曲线的变化趋势发现,可知现浇泡沫轻质土填筑体的主要沉降发生在填筑初期,这主要是因为泡沫轻质土是一种类水泥材料,其强度变化呈现逐渐增长的规律,在填筑初期轻质土尚未完全硬化,此时抗压强度较低,易产生较大沉降变形;后期轻质土固结硬化到一定程度后,主要表现为弹性变形,因此后期沉降量相对较小。
同理可绘制出LC-2-1处的分层沉降时程曲线,见图 11。
![]() |
| 图 11 LC-2-1分层沉降时程曲线 |
由图 11可以看出,随着填筑工序的进行,非桥台段填筑体内部沉降逐渐增大,在所布置的监测点中,以埋深6.65 m处的沉降最大,最大值为40 mm,埋深2.15 m处的沉降最小,最小值为8 mm。从最大值来看,相较于桥台段LC-1-1埋深7.25 m处的35 mm的沉降量,非桥台段埋深6.65 m处已产生40 mm的沉降;从整体上看,LC-2-1分层沉降结果也是普遍大于LC-1-1分层沉降的结果。根据沉降分析结果,可以认为在相同深度条件下,桥台段的沉降变形量整体上小于非桥台段,推测两者变形差异的内在机理在于非桥台段地基土仍未完全固结,因而其路堤沉降中包含新填地基土的部分固结沉降。
3.3 基底剖面沉降
对于基底剖面沉降主要采用预埋剖面沉降管的方式,结合剖面沉降仪采集基底不同位置处的沉降变形数据,现场实测如图 12所示。
![]() |
| 图 12 基底剖面沉降实测 |
根据现场试验数据可绘制出PC-1-1处的基底剖面沉降时程曲线,见图 13。
![]() |
| 图 13 PC-1-1基底剖面沉降时程曲线 |
在现场监测试验剖面沉降管的预埋设过程中,沉降管端部插入布设在现有路基土体中,因此在泡沫轻质土施工中可认为端部不产生沉降变形,即该处沉降量近似为零。通过图 13中曲线变化可知,PC-1-1各测试点的沉降随着时间的推移而增大,而变化速率逐渐减小,后期沉降逐渐趋于稳定状态。究其内在机理,主要是分层填筑时各层轻质土作为荷载逐级添加,路堤基底在上覆载荷下沉降持续累积,而填筑过程中泡沫轻质土由流态逐渐硬化转变为固态,由湿容重变为干容重,轻质土荷载在一定程度上有所降低,在宏观上表现为沉降发展变缓,而路堤填筑完成后基底竖向附加应力不再有较大变化,因此后期累积沉降量趋于不变。
分析沉降量与测试点位置的变化关系可知,随着测试点距路肩位置的增大,沉降量在走势上呈现逐渐减小的变化规律,在路肩处产生最大沉降,其最大沉降量为41.65 mm。从曲线整体走势上看,沉降沿着横向呈现勺形分布,推测其内在机理是本区间的填筑断面为台阶式倒梯形,越靠近路肩处的填筑高度越高,路堤基底所受的上覆荷载也就越大,相应的竖向附加应力值越大,因而产生的沉降变形也就越明显。
图 14给出了PC-2-1处的基底剖面沉降时程曲线。根据图 14可以看出,PC-2-1剖面沉降管处的沉降规律形式与PC-1-1处监测断面处的沉降分布基本类似,同样也是越靠近路肩位置处,产生的沉降量越大,最大沉降为43.35 mm。
![]() |
| 图 14 PC-2-1基底剖面沉降时程曲线 |
对比桥台处剖面沉降数据可知,相同条件下非桥台处的剖面沉降量略高于桥台处的沉降量,这主要是因为桥台处是在原位地基土上进行泡沫轻质土路堤的施工,而非桥台处则是在新填土地基上进行施工,该新填土地基还未充分固结压缩,因此在路基施工时上覆荷载的作用,非桥台处的剖面沉降量会略大于桥台处的沉降值。
4 结论
针对广州从化至清远连州高速公路某一标段泡沫轻质土路基填筑工程,通过现场试验分析得到以下结论:
1)从深层土水平位移方面,竖沿向均匀分布的各个测试点的水平位移量随着时间的推移不断发展增大,最终趋于收敛保持稳定。水平位移在空间上表现为底部变形最小、顶部变形最大,沿着埋深方向近似呈现为线性分布。总体水平位移相对较小,主要由于轻质土浇筑时具有良好的自立能力、产生的侧压力较小以及硬化初凝时间短的优点。
2)从深层分层沉降方面,填筑体在填筑初期沉降速率较快,后期沉降量增长逐渐放缓最终趋于不变。埋深越大产生的沉降越明显,从整体的趋势来看,泡沫轻质土路堤分层沉降沿埋深方向近似呈线性分布。
3)从基底剖面沉降方面,各测试点的沉降随着时间的推移而增大,而变化速率逐渐减小,后期沉降逐渐趋于稳定状态。随着测试点距路肩位置的增大,沉降量在走势上呈现逐渐减小的变化规律,在路肩处产生最大沉降,沉降整体上沿横向呈现勺形分布。
4)桥台处是在原位地基土上进行泡沫轻质土路堤的施工,而非桥台处则是在新填土地基上进行施工,该新填土地基还未充分固结压缩,因此在上覆荷载的作用下,非桥台段泡沫轻质土路基的变形量大于桥台段的变形。
内容源于网络,仅作分享使用,如有侵权,请联系删除
相关资料推荐:
知识点:半填半挖式轻质土路堤填筑期变形特性研究
0人已收藏
0人已打赏
免费2人已点赞
分享
结构资料库
返回版块41.29 万条内容 · 424 人订阅
阅读下一篇
铁路泡沫轻质土路基结构设计应用研究1 前言 泡沫轻质土主要由泡沫、水泥基胶凝材料、水及可选组分集料、掺合料、外加剂按照一定的比例混合搅拌, 并经物理、化学作用而硬化形成的一种轻质材料。泡沫轻质土具有轻质性、强度和密度可调性、高流动性、硬化后直立及施工便捷等特点, 已广泛应用于建筑、市政及公路等多个行业。随着高速铁路的快速发展及路网系统逐渐形成, 路基工程出现许多特殊疑难问题, 如在狭窄空间内路基填筑质量控制、受限段深厚软土地基沉降控制及新建高铁引入既有高铁车站的沉降控制等问题。其中新线接入既有高铁站对无砟轨道路基
回帖成功
经验值 +10
全部回复(0 )
只看楼主 我来说两句抢沙发