门刚节点
门式刚架横梁与立柱连接节点,可采用端板竖放、平放和斜放三种形式,那这三种形式如何选择呢?《门式刚架轻型房屋钢结构技术规范》图示15G108-6给出了示意:
等截面边柱与梁连接宜采用端板侧向竖放节点:

当竖向荷载起控制作用时,棋形边柱与梁连接宜采用端板平放节点,可减少节点的设计剪力:

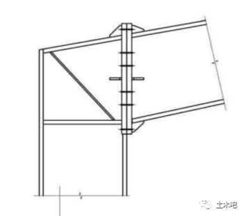
如果节点弯矩很大,棋形边柱与梁连接可采用端板斜放节点,加长抗弯连接的力臂,有利于布置螺栓:

内容源于网络,仅作分享使用,如有侵权,请联系删除
相关资料推荐:
知识点:梁柱节点
0人已收藏
0人已打赏
免费3人已点赞
分享
结构资料库
返回版块41.29 万条内容 · 424 人订阅
阅读下一篇
如何判别节点属于刚接、半刚接或铰接?疑问 如何判别一个连接节点属于刚接、半刚接或铰接? 答:在常规钢结构中,仅通过腹板连接的节点为铰接,腹板和上下翼缘同时连接的节点为刚接。端板连接的节点为半刚接。还可以通过计算转动刚度来进行更为精确的判断。 现实中钢结构的连接并无绝对的刚接与铰接,大部分节点形式属于半刚性。但为了降低计算难度,在传统的分析与设计中,连接节点常被简化为理想的铰接节点或刚接节点。一般认为连接对转动的约束达到理想刚接的
回帖成功
经验值 +10
全部回复(0 )
只看楼主 我来说两句抢沙发