1.当施工现场的监控人员发现土方或建筑物有裂纹或发出异常声音时,应立即报告给应急救援小组组长,并立即下令停止作业,并组织施工人员快速撤离到安全地点。
2.当土方或建筑物发生坍塌后,造成人员被埋、被压的情况下,应急救援小组全员上岗,除应立即逐级报告给主管部门之外,应保护好现场,在确认不会再次发生同类事故的前提下,立即组织人员进行抢救受伤人员。
3.当少部分土方坍塌时,现场抢救组专业救护人员要用铁锹进行撮土挖掘,并注意不要伤及被埋人员;当建筑物整体倒塌时,造成特大事故时,由应急救援小组统一领导和指挥,有关人员协调作战,保证抢险工作有条不紊的进行。要采用吊车、挖掘机进行抢救,现场要有指挥并监护,防止机械伤及被埋或被压人员。
4.被抢救出来的伤员,要由现场医疗室医生或急救组急救中心救护人员进行抢救,用担架把伤员抬到救护车上,对伤势严重的人员要立即进行吸氧和输液,到医院后组织医务人员全力救治伤员。
5.当核实所有人员获救后,将受伤人员的位置进行拍照或录像,禁止无关人员进入事故现场,等待事故调查组进行调查处理。
6.对在土方坍塌中死亡或伤残的人员,由善后处理组负责对死亡人员的家属进行安抚,伤残人员安置和财产理赔等善后处理工作。
工地发生坍塌事故,多数是基坑支护工程没做好导致的。今天,小编为大家详细说说各种基坑支护的形式、适用范围和选型要点。
一、 各种基坑支护形式简介及适用范围
放坡开挖的指导思想是“放”,通过“撤军”,挖除部分土,放出的足够的边坡,实现“前方”(基坑内)的安全。
土方边坡一般用边坡坡度表示,不同的土质允许的边坡坡度也不同。
放坡开挖的优点是施工速度快,造价较低;缺点是开挖和回填土方均较大,坑边变形大。软土地层中采用单级放坡开挖的基坑开挖深度不宜大于4m,采用多级放坡开挖的基坑开挖深度不宜大于7m。
适用条件:
a. 基坑周边开阔,满足放坡条件;
b. 基坑周边土体允许有较大位移;
c. 开挖面以上一定范围内无地下水或己经降水处理。
不适用范围:
a. 淤泥和流塑土层;
b. 地下水高于开挖面或未降水处理。

图1 放坡开挖剖面示意图

表1 各类土质放坡坡率允许值

图2 多级边坡
土钉墙通过打入“土军内部”一道道土钉,让前方的活跃好战分子有了后方的儿女情长的牵挂,自然不会玩命来犯了。
土钉墙是将基坑边坡通过由钢筋制成的土钉进行加固,边坡表面铺设一道钢筋网再喷射一层砼面层,使之与土方边坡相结合的边坡加固型支护施工方法。除了被加固的原位土体外,土钉墙由土钉、面层及必要的防排水系统组成。土钉墙也可以与水泥土桩、微型桩及预应力锚杆组合形成的复合土钉墙。
优点:材料用量和工程量少,施工速度快,经济性好;施工设备轻便,操作方法简单;对场地土层的适应性强;结构轻巧,柔性大,有很好的延性。
缺点:要求锚杆能避开场地周边其他建筑的基础和管线;在松散砂土、软塑、流塑粘性土以及有丰富地下水源的情况下不能单独使用土钉支护,必须与其他的土体加固支护方法相结合;基坑变形大。

图3 土钉墙剖面示意图

图4 一级土钉支护
适用条件:
a. 岩土条件较好;
b. 基坑周边土体允许有较大位移;
c. 己经降水处理或止水处理的岩土;
d. 地下水位以上为粘土、粉质粘土、粉土和砂土;
e. 开挖深度不宜大于12m。
不适用范围:
a. 土层为富含地下水的岩土层、含水砂土层,且未降水处理;
b. 膨胀土等特殊土层;
c. 基坑周边有严格控制位移的建筑物、构筑物和地下管线等
水泥土重力式围护墙同样打入“土军”内部,不过它是通过搅拌机械,将水泥等加固材料和地基土强行搅拌,形成连续搭接的水泥土柱状加固体挡墙。
由于水泥土重力式围护墙是无支撑自立式挡土墙,依靠墙体自重、墙底摩阻力和墙前基坑开挖面以下土体的被动土压力稳定墙体,因此一般水泥土重力式围护墙一般都比较墩重厚实,墙厚一般为0.7~0.8倍的开挖深度,这就要求基坑边与红线间有足够的宽度。

图5 重力式水泥土墙剖面示意图

图6 重力式水泥土墙现场图
重力式水泥土墙的平面布置有壁状布置、格栅状布置、锯齿形布置等形式。工程实践中,为了节省工程造价,又以格栅状的平面布置较为常用。

图7 重力式水泥土墙的平面布置方式
(a)壁状支护结构;(b)锯齿状支护结构;(c)格栅状支护结构

图8 水泥土搅拌桩成桩过程示意图
重力式水泥土墙的优点:由于一般坑内无支撑,便于机械化快速挖土;具有挡土、止水的双重功能;一般情况下较经济;施工中无振动、无噪音、污染少、挤土轻微。
重力式水泥土墙的缺点:首先是位移相对较大,尤其在基坑长度大时;其次是厚度较大,只有在红线位置和周围环境允许时才能采用,而且在水泥土搅拌桩施工时要注意防止影响周围环境。
重力式水泥土墙的适用条件:
a. 基坑开挖深度不宜大于7m,基坑周边土体允许有较大位移,基坑周边有足够的施工场地;
b. 填土、可塑、流塑粘性土、粉土、粉细砂、松散的中粗砂;
c. 坡顶超载不宜大于20kPa。
不适用范围:
a. 周边无足够施工场地;
b. 基坑周边有严格控制位移的建筑物、构筑物和地下管线等;
c. 墙深度范围内存在富含有机质的淤泥。
上面这张图片的台词充分说明了的悬臂式支挡结构的特点:硬顶生抗。
悬臂式支挡结构顶部位移较大,内力分布不理想,但可省去锚杆和支撑,当基坑较浅且基坑周边环境对支护结构位移的限制不严格时,可采用悬臂式支挡结构。悬臂式支护结构一般用于坑深7m以下。悬臂式支护结构可以采用不同的挡土结构,主要有排桩、钢板桩、SMW工法桩等。
1)排桩——一字长蛇阵
排桩支护结构是将桩体按照一定的距离或者咬合排列形成的支护挡土结构。根据成桩工艺的不同,可以将排桩分为:钻孔灌注桩、挖孔桩、压浆桩、预制混凝土桩和钢管桩等。
悬臂钢管桩适用于坑深小于5m的情况,抗弯刚度相对较小,优势是施工速度快,成本比混凝土排桩低。混凝土排桩适用于悬臂高度大于5m,抗弯刚度相对较大,但施工速度慢,成本也相对较高。排桩桩体根据实际需要可以有多种不同的平面排列形式,如图9所示。

图9 排桩围护体的常见形式
其中分离式排列形式(图 a)适用于没有地下水或者地下水位比较低的土质好的基坑工程;如果地下水位需要防水要求并不高时,可采用连续排列如图(b)所示;如果基坑工程要求增加支护结构的整体刚度,可以将桩交错排列,如图(c)所示;要求更大的整体刚度时可以用双排桩形式,如图(d)所示;如果需要防水而且空间有限可以选择咬合排列形式,如图(e)所示;有空间时可以在排桩后面进行连续止水形式或者分离式止水形式,如图(f)、(g)所示。

图10 荣域项目B2地块排桩(钢管桩)支护
排桩中钻孔灌注桩是最常见的支护结构形式。采用混凝土灌注桩时,悬臂式排桩的桩径宜大于或等于600mm。排桩的中心距不宜大于桩直径的2.0倍,桩间土防护措施宜采用内置钢筋网或钢丝网的喷射混凝土面层。围护桩上部往往结合砖砌挡土墙或者天然放坡或土钉墙,以降低围护结构造价。

图11 钻孔灌注桩现场图
(钻孔灌注桩一字排开,列阵挡土,故称之为一字长蛇阵)
钻孔灌注桩的优点:施工工艺简单,施工噪音低、振动小、对环境影响小,成本低(与地下连续墙相比),平面布置灵活,自身刚度和强度较大。
缺点:施工速度慢,需处理泥浆,自防水差、需要结合防水措施,整体刚度较差。
悬臂式钻孔灌注排桩适用于软土地层,一般开挖深度5~7m;在砂砾层和卵石中施工慎用。
2)钢板桩——八门金锁阵
钢板桩是一种带锁口的热轧型钢,靠锁口相互连接咬合,形成连续的钢板桩墙,用来挡土和挡水。
钢板桩的优点:材料质量可靠,施工快捷,工期短;占用场地较小;在防水要求不高的工程中,可采用自身防水;基坑施工完毕回填土后可将槽钢拔出回收再次使用。
钢板桩的缺点:钢板桩抗侧刚度相对较小,变形较大;钢板桩打入和拔除对土体扰动较大;钢板桩拔除后需对土体中留下的孔隙进行回填处理。

图12 钢板桩
(八字状的钢板桩手挽手肩并肩列阵迎敌,故称之为八门金锁阵)

图13 钢板桩现场图
钢板桩适用于开挖深度不大于7m、周边环境保护要求不高的基坑工程。由于钢板桩打入和拔除对周边环境影响较大,邻近对变形敏感建构筑物的基坑工程不宜采用。
3) 型钢混凝土搅拌墙——外圆内方阵
型钢混凝土搅拌墙是在水泥土深层搅拌桩墙体中插入型钢所形成的一种同时具有受力和防渗功能的加劲复合围护结构。SMW工法桩是在国内应用最多的型钢混凝土搅拌墙。

图14 SMW工法桩现场图

图15 SMW工法桩施工中插入型钢
(圆形的搅拌桩中插入方形的型钢加强,故称之为外圆内方阵)
SMW工法桩有如下优点:
a. 对周边环境影响小,施工不扰动邻近土体,能有效控制周边地面构筑物的沉降;
b. 抗渗性好,工法桩机连续作业的墙体无接缝,从而使它可比传统的连续墙具有更可靠的止水性;
c. 刚度较大,支护效果好;
d. 构造简单、施工简便、工期短;
e. 由于型钢可回收重复使用,成本较低。
SMW工法桩的问题和缺点:
a. 搅拌桩和型钢协同工作方面,仍有许多问题需要进一步深入研究;
b. 对型钢水泥土搅拌墙的一些设计施工参数还没有统一的标准,施工质量难于保证;
c. 由于型钢拔除后在搅拌桩中留下的孔隙需采取注浆等措施进行回填,特别是邻近变形敏感的建构筑物时,对回填质量要求较高。
SMW工法桩以水泥土搅拌桩为基础,凡是能够施工三轴水泥土搅拌桩的场地都可以考虑使用该工法。
随着开挖深度的加深,生顶硬抗已经无法阻挡“水土大军”了,还有什么“兵种”能够应敌,且看下回。
二、 各种基坑支护形式简介及适用范围
地下连续墙是采用原位连续成槽浇筑形成的钢筋混凝土围护墙,具有挡土和隔水双重作用。通常连续墙的厚度为600mm、800mm、1000mm,也有厚达1200mm的,地下连续墙一般与锚索或支撑组成锚拉式结构或支挡式结构。

图16 地下连续墙施工现场图
(钢筋混凝土墙连续一字排开,形成一道铜墙铁壁)

图17 地下连续墙施工程序示意
在工程应用中地下连续墙已被公认为是深基坑工程中最佳的挡土结构之一,它具有如下显著的优点:
a. 施工具有低噪音、低震动等优点,工程施工对环境的影响小;
b. 连续墙刚度大、整体性好,基坑开挖过程中安全性高,支护结构变形较小;
c. 墙身具有良好的抗渗能力,坑内降水时对坑外的影响较小;
d. 可作为地下室结构的外墙,可配合逆作法施工,以缩短工程的工期、降低工程造价。
地下连续墙造价较高,施工要求专用设备,只有用在一定深度的基坑工程或其它特殊条件下才能显示其经济性和特有的优势。一般情况下地下连续墙适用于如下条件的基坑工程:
a. 深度较大的基坑工程,一般开挖深度大于15m才有较好的经济性;
b. 邻近存在保护要求较高的建、构筑物,对基坑本身的变形和防水要求较高的工程;
c. 基地内空间有限,地下室外墙与红线距离极近,采用其它围护形式无法满足留设施工操作空间要求的工程;
d. 围护结构亦作为主体结构的一部分,且对防水、抗渗有较严格要求的工程。
锚拉式结构包含挡土结构与锚拉结构两部分。当悬臂式挡土结构招架不住的时候,就要上“预备队”了
这“预备队”就是锚拉结构,一般采用预应力锚索。预应力锚索是一种通过高强度预应力钢绞线和锚固将荷载传递到深层稳定岩土层的构件。当环境保护不允许在支护结构使用功能完成后锚杆杆体滞留在地层内时(此类工程越来越多),应采用可拆芯钢绞线锚杆。

图18 排桩+锚索支护现场图

图19 预应力锚索基本构造简图
锚拉式结构中的挡土结构可采用混凝土排桩、土钉墙、地下连续墙、SMW工法桩等,其中排桩+预应力锚索是应用最为普遍的锚拉式结构。
锚拉式结构一般还需要设置腰梁和冠梁。腰梁主要有钢腰梁(双拼工字钢或槽钢)和混凝土腰梁,锚拉结构的锚固力通过腰梁传递给支护结构,形成整体围护,保证基坑侧壁稳定性。冠梁是为了提高挡土结构的整体性。
锚拉式结构适用范围:
a. 场地狭小且需要深开挖;
b. 周边有严格控制位移的建筑物、构筑物和地下管线等;
c. 基坑边壁有锚杆设置地下空间。
不适用范围:
a. 锚杆不宜用在软土层和高水位的碎石土、砂土层中;
b. 当邻近基坑有建筑物地下室、地下构筑物等,锚杆的有效锚固长度不足时,不应采用锚杆;
c. 锚杆施工会造成基坑周边建(构)筑物的损害或违反城市地下空间规划等。
支撑式结构包含挡土结构与内支撑结构。也是在悬臂式挡土结构无法抵抗时,设置了一道道支援前线的支撑。内支撑可采用钢支撑、混凝土支撑、钢与混凝土混合支撑。
钢支撑具有自重轻、安装和拆除方便、施工速度快、可以重复利用等优点,而且安装后能立即发挥支撑作用,对减小由于时间效应而产生的支护结构位移十分有效。因此,形状规则的基坑(如地铁狭长型基坑)常采用钢支撑,但钢支撑刚度相对较小,节点构造和安装相对复杂,需要具有一定的施工技术水平。
混凝土支撑是在基坑内现浇而成的结构体系,布置形式和方式基本不受基坑平面形状的限制,具有刚度大、整体性好、施工技术相对简单等优点,所以应用范围较广。缺点是施工完毕后必须养护到一定强度后方可开挖土方,工期较长,且破除困难,产生大量建筑垃圾。
支撑式支护结构中的挡土结构可采用排桩、地下连续墙、SMW工法桩等。

图20 钢支撑+排桩支护现场图

图21 混凝土支撑+排桩支护现场图
支撑式支护结构适用范围广,可适用各种土层和基坑深度,一般用于安全等级高的深基坑工程。
“打虎亲兄弟,上阵父子兵。”双排桩就是这对“父子兵”。双排桩是沿基坑侧壁排列设置的由前、后两排支护桩和梁连接成的刚架及冠梁组成的支挡结构。实际的基坑工程中,在某些特殊条件下,锚杆、土钉、支撑受到实际条件的限制而无法实施,而采用单排悬臂桩又难以满足承载力、基坑变形等要求或者造价明显不合理的情况下,双排桩刚架结构是一种可供选择的基坑支护结构形式。

图22 双排桩支护剖面图

图23 双排桩现场图
与常用的支挡式支护结构如单排悬臂桩结构、锚拉式结构、支撑式结构相比,双排桩刚架支护结构有以下特点:
a. 与单排悬臂桩相比,其安全可靠性、经济合理性优于单排悬臂桩。
b. 与支撑式支挡结构相比,由于坑内不设支撑,不影响基坑开挖、地下结构施工,同时省去设置、拆除内支撑的工序,大大缩短了工期。在基坑面积很大、基坑深度不是很大的情况下,双排桩刚架支护结构的造价常低于支撑式支挡结构。
c. 与锚拉式支挡结构相比,在某些情况下,双排桩刚架结构可避免锚拉式支挡结构难以克服的缺点。
双排桩排距一般在2D~5D之间(D为桩径)。因此双排桩支护占地较大,对于建筑退线较少地块不适用。
此种工法通过支护结构与主体结构相结合,为支护结构提供了坚强的后盾,支护结构可以自豪的宣称:“找到靠山,我不怕不怕啦!”
支护结构与主体结构相结合是指采用主体地下结构的一部分构件(如地下室外墙、水平梁板、中间支承柱和桩)或全部构件作为基坑开挖阶段的支护结构,不设置或仅设置部分临时支护结构的一种设计和施工方法。

图24 逆作法施工顺序示意图
与常规的临时支护方法相比,采用支护结构与主体结构相结合的逆作法深基坑和地下结构具有诸多的优点:
a. 此工法可以上同时向地上和地下施工,可以缩短工程的施工工期;
b. 水平梁板支撑刚度大,挡土安全性高,基坑变形小,对周围的环境影响小;
c. 地面层先行完成,可作为材料堆置场或施工作业场;
d. 避免了采用临时支撑的浪费现象。
但逆作法也有如下缺点:
a. 支撑位置受地下室层高的限制,无法调整高度;
b. 挖土作业空间狭小,作业环境较差,不利于规模机械化施工、土方施工困难;
c. 结构接头处理多;
d. 对围护结构施工精度要求高。
支护结构与主体结构相结合适用于如下基坑工程:
a. 大面积的地下工程,一般边长大于100m的大基坑更为合适;
b. 大深度的地下工程,一般3层及以上地下室工程更为合理;
c. 复杂形状的地下工程;
d. 周边状况苛刻,对环境要求很高的地下工程;
e. 作业空间较小和上部结构工期要求紧迫的地下工程。
实际工程中,尚有两种或两种以上支护形式联合使用的情况,发挥各自优势,力求达到安全与经济的最优平衡点。具体工程实例如下:
1) 荣域项目B2地块:土钉墙+钢管桩+锚索。

图25 荣域项目B2地块基坑
2) 北京银泰中心基坑支护工程:土钉墙+灌注桩+锚杆。

图26 北京银泰中心基坑
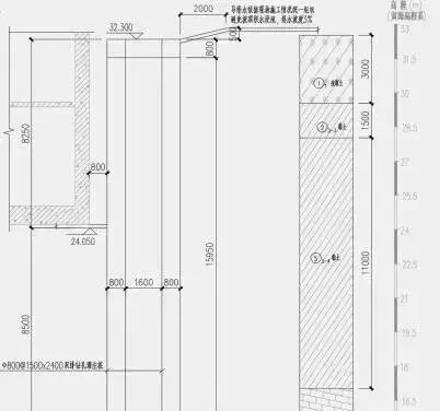
3) 国家大剧院基坑支护工程:挡土墙+灌注桩+地下连续墙+隔水帷幕。

图27 国家大剧院基坑
三 、 基坑支护选型要点
“安全可靠、经济合理、施工便利”是基坑设计的三原则。从安全角度,国家标准《建筑基坑支护技术规程》JGJ120-2012根据基坑破坏的后果,将基坑支护结构安全等级分为三级。

基坑支护设计时,首先应当依据基坑深度、工程水文地质条件、环境条件和使用条件等合理划分基坑侧壁安全等级,这是基坑选型的决定性因素。然后综合基坑侧壁安全等级、施工、气候条件、工期要求、造价等因素合理选择支护结构类型。同一基坑的不同侧壁可分别确定为不同的安全等级,并依据侧壁安全等级分别进行设计。

北京市地方标准《建筑基坑支护技术规程》DB11/489-2016表3.1.5中,将基坑侧壁安全等级结合开挖深度、水文地质条件、周边环境条件进行了更明确的对应。
基坑的安全等级确定后,可以结合水文地质情况和开挖深度,进行基坑选型,一般的基坑支护初步选型流程如下:

图28 基坑支护初步选型流程
具体细化的常见基坑选型表如下:
表2 常见基坑支护选型表




注:
1.各类基坑的造价均按基坑周长的单位长度计。
2.表中排桩造价均按钻孔灌注桩造价考虑。
3.表中造价分别按坑深3m(H≤3m)、6m(3m<H≤6m)、9m(6m<H≤10m)、12m(10m<H≤15m)粗略估算,旨在说明各种支护型式之间的大概的造价差异。工程造价应结合具体工程的实际情况,根据基坑支护设计单位的设计文件确定。
由于基坑支护有着很强的地域性、经验性,因此上表中仅是对大多数情况适用的基坑支护选型做了总结,具体工程还需要结合工程实际情况,经过详细分析比选,做出合理的基坑支护选型,达到安全适用、经济合理的最终目的。
内容源于网络,旨在分享,如有侵权,请联系删除
相关资料推荐:
https://ziliao.co188.com/p63456997.html
知识点:各种基坑支护的形式、适用范围和选型要点
0人已收藏
0人已打赏
免费5人已点赞
分享
道路工程
返回版块15.09 万条内容 · 689 人订阅
阅读下一篇
软土地基深井桩基工程中的旋挖钻孔灌注桩施工软土地基深井桩基工程中的旋挖钻孔灌注桩施工 旋挖钻孔灌注桩具有工作效率高、污染少、施工质量高的优势,在软土基地深井桩基工程中得到了较好的应用。文章在分析软土地质特点和旋挖钻孔灌注桩特点的基础之上,结合实例探讨了软土地基深井桩基工程中的旋挖钻孔灌注桩施工,实践证明在软土地基中应用旋挖钻孔灌注桩施工是完全可行的。 随着我国社会经济的发展,我国基础设施建设力度不断加强,不仅对建筑、公路交通等施工提出了质量、效率、造价方面的更高要求,也面临着软土地基施工等复杂地质条件的挑战。虽然旋挖钻孔灌注桩具有诸多优势,然而目前应用旋挖钻孔灌注桩技术还具有一定的局限性,制约了该技术应用的范围和实际施工的质量、效率和造价。
回帖成功
经验值 +10
全部回复(5 )
只看楼主 我来说两句-
chennut
沙发
2022-12-12 09:00:12
赞同0
-
许多多
板凳
2022-12-12 08:59:12
赞同0
加载更多很全面,图文并茂,可以收藏参考
回复 举报
不错的资料,谢谢分享。。。。。。
回复 举报