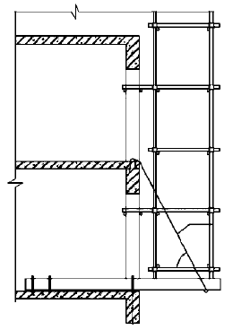
图1为某地建设主管部门的《房建市政工程建筑施工生产安全事故典型案例巡讲》课件中的规范施工示例,要求外架连墙件要与立杆连接并且与内外立杆同时连接。

图1规范施工示例
由图1可看出,连墙件是平楼面设置,拉在内外立杆处,距主节点超过300?mm,不仅将安全网捅了个洞,还挡在外架通道上,妨碍通行。
JGJ 130—2011《建筑施工扣件式钢管脚手架安全技术规范》中第6.4.3条连墙件的布置应符合以下规定:
(1)应靠近主节点设置,偏离主节点的距离不应大于300?mm;
(2)应从底层第一步纵向水平杆处开始设置,当该处设置有困难时,应采用其他可靠措施固定。
第2.1.26条:主节点为立杆、纵向水平杆、横向水平杆三杆紧靠的扣接点。依据规范可以得出结论:外架连墙件与纵向水平杆连接也是符合规范要求的。
外架内外立杆间由横向水平杆连接成一个整体。拉住了内立杆,外立杆也同时被固定。所以,拉住内排架主节点即可,而且没有安全网被捅穿、挡在外架通道上妨碍通行的缺点。即使有“同时扣住内外排架,能防止连墙扣件被误拆,可以提高安全性”的说法,但若是楼面一侧的连墙扣件(图1中画圈处)被拆,架体一侧扣得再完好也无济于事。
这是摘录自JGJ 130—2011《建筑施工扣件式钢管脚手架安全技术规范》中的图6.10.2型钢悬挑脚手架构造(图2)。

图2型钢悬挑脚手架构造示意
很多建筑从业人员“外架连墙件要与内外立杆同时连接”的观念与这张图片有很大的关系。图2中连墙件与横向水平杆重合。现场施工中能重合设置当然最好。但实际工地上最常见的作法基本都是平楼面设置,唯一的优点就是施工方便。
对于一种作法不确定该怎么办?首先查规范,要以规范为准,网上查询资料为人们带来了便利性,但也带来了不确定性,因此网上资料只能作为参考。大胆怀疑,小心求证,逻辑思考是解决工程问题的利器。
转自:建筑技术杂志社
推荐资料(点击文字跳转):
知识点:外架连墙件要与立杆连接,且与内外立杆同时连接吗 ?
0人已收藏
0人已打赏
免费2人已点赞
分享
建筑施工
返回版块66.02 万条内容 · 1639 人订阅
阅读下一篇
塔式起重机基础承载力不够,该如何处理?1 已施工完塔式起重机基础概况 某项目安装一台TC6515塔式起重机,由于塔式起重机基础土层位于 ②-1粉质粘土层,地基承载力特征值为80?kPa,不能满足塔式起重机说明书中地基承载力200?kPa的要求,所以采用了桩承台基础。承台为4.2?m×4.2?m×1.35?m,配筋双层双向?22@140,架立筋?12@280,承台混凝土强度等级为C35。塔式起重机桩采用钻孔灌注桩,共计4根,每根桩长15m,每根桩配筋818,箍筋
回帖成功
经验值 +10
全部回复(2 )
只看楼主 我来说两句抢地板没看懂。图1做法到底对还是错?
回复 举报
谢谢楼主的分享!
回复 举报