当砼结构尺寸达到一定标准时,需要设置后浇带,目前常见于地下室区域,纵横向设置多个后浇带,后浇带如果处理不好会造成严重的后果,最常见的是漏水与开裂。
1. 后浇带和膨胀加强带缝的两侧,宜采用专用钢板网隔断。
2. 后浇带和膨胀加强带应采用强度高一级的膨胀混凝土浇筑密实。
3. 在后浇带和膨胀加强带混凝土强度达到100%前,施工方应采取有效措施,保证两侧墙、柱的稳定,及地下室底板、楼板及顶板的水平力传递;且两侧一定区域内的模板及脚手架不得拆除,该区域内的隔墙不得砌筑。
4. 膨胀加强带宽度为2000mm,在两侧浇筑完成28天后浇筑。
5. 在后浇带的混凝土中也应加入高性能膨胀抗裂剂,建议掺量为胶凝材料的12%,其混凝土14天的限制膨胀率应≥0.025%。
6. 在膨胀加强带的混凝土中也应加入高性能膨胀抗裂剂,建议掺量为胶凝材料的15%,其混凝土14天的限制膨胀率应≥0.025%。

楼板后浇带

梁后浇带

墙后浇带

基础底板后浇带

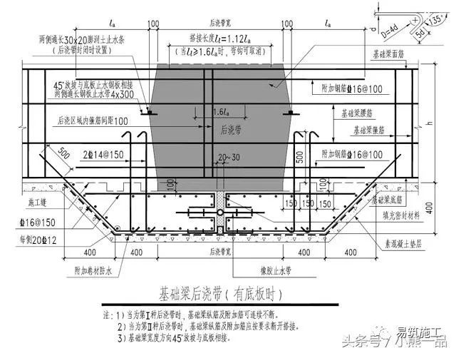
基础梁后浇带

膨胀加强带(适用:底板、顶板、楼板、墙)
内容源于网络,仅作分享使用,如有侵权,请联系删除
相关资料推荐:
知识点:砼结构后浇带
0人已收藏
0人已打赏
免费3人已点赞
分享
混凝土结构
返回版块140.17 万条内容 · 2216 人订阅
回帖成功
经验值 +10
全部回复(0 )
只看楼主 我来说两句抢沙发