土木在线论坛 \ 道路桥梁 \ 轨道交通 \ 地铁基坑减压降水工程实例

地铁基坑减压降水工程实例

发布于:2022-11-17 13:35:17 来自:道路桥梁/轨道交通 [复制转发]

地铁基坑工程中,地下水控制常采用降水、隔水(堵水)和回灌三种处理方法,但这些方法往往不是单一的,多综合使用。原理上,基坑影响范围内地下水位的降低靠排水(集水明排)或抽水(井点降水),对富水地区的地铁基坑工程,设置降水井抽水是主要措施。隔渗帷幕的作用是改变抽排水过程中“水漏斗”的形状,降低对基坑周边的影响。为了使基坑开挖过程中基坑周围地下水位下降较小,避免影响邻近建筑物及地下管线的正常使用,有时需设置回灌井点。本文介绍两个基坑降水工程实例。

1

承压含水层+落底式止水帷幕(坑内管井疏干车站范围内的承压水,封闭式降水)


某地铁车站属于长江一级阶地,车站深度范围内主要是黏土、粉质黏土。基底存在层及层承压含水层。车站围护结构采用落底式止水帷幕,对于浅层滞水,采用疏干井;对于深层承压水采用承压降水井的地下水处理方案。
1)工程概况
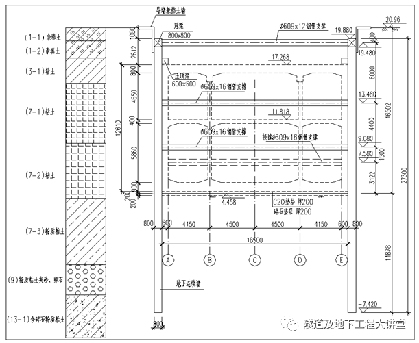
车站结构外包线长约581.0m,宽约20.0m ,车站结构顶板埋深约3.0m,底板埋深约16.0m,车站所处位置周边交通发育中,车流量不大,车站施工工法采用明挖法,基坑设计支护方案采用地下连续墙加内支撑。车站施工总平面布置图如图1所示,降水井平面布置如图2所示。
图片

1  车站施工总平面图(尺寸单位:mm
图片
2  车站降水井平面布置图(尺寸单位:mm
2 )工程地质与水文地质条件
工程地质条件
拟建场区地形平坦,原始地貌属长江冲积一级阶地。根据钻探揭示及对地层成因、年代的分析,本站基坑范围内地层主要由第四纪全新统人工堆积层()组成,岩性为粉质黏土、淤泥质粉质黏土、车站基坑底主要位于淤泥质粉质黏土夹粉土、粉质黏土粉土粉砂互层中。车站地质断面如图3所示。
图片
3  车站地质断面图(尺寸单位:mm
②水文地质条件。
勘察场地内的地下水有上层滞水、孔隙承压水两种类型。
a.上层滞水主要赋存于人工填土( Qm1)层,无统一自由水面,大气降水、地表水和生产、生活用水渗入是其主要的补给来源。勘察期间测得其初见水位埋深为1.03.6m,稳定水位埋深为1.24.3m
b.场地孔隙承压水为赋存于I级阶地第四系全新统冲积(Q4a1)粉质黏土、粉土、粉砂互层土(③4、③5)层及局部分布的④1粉细砂层中弱孔隙承压水,与长江、汉江具有一定的一定的水力联系,其上覆黏性土层及下伏残积土、基岩为相对隔水顶、底板。在勘察期间,于20061110日在Jz-JSYY-W1号抽水试验孔中测得承压水水头在地面下4.65m,相当于高程16.37m(黄海高程),根据在汉口地区不同地段不同时期长期观测结果表明,汉口地区长江I级阶地承压水测压水位高程最高为20.0m左右,承压水头高程年变化幅度在3.04.0m之间。
车站水文参数见表1
1  车站水文参数
图片
  3 )地下水控制方案
①目的
施工期间承压水头位于基坑底面以下1m,降水过程中设置观测孔对地下水位进行动态监测,并控制抽水中的含砂量,使其满足规范要求。
设计思路
在深度20m范围内的土层主要由黏土、粉质黏土组成,不同深度的粉质黏土层内夹有粉砂薄层,综合渗透系数为0.65 m/d。根据水文地质特点及工程要求降水深度,选用疏干降水及承压降水井设计。
降压井群设计
113轴围护结构地下连续墙进入13-1含碎石粉质黏土地层中,形成落底式止水帷幕,其余车站轴线范围内地下连续墙共设置61口井,降水井沿车站纵向20m间距设置,承压降水井主要针对单元黏土层,使基坑施工期坑内承压水头保持在基底以下1m。降水井平面布置图如图3所示。对于层填土中的地下水,施工中采取明沟排水法处理。排水沟设于基坑四周,比开挖面低0.4m以上,集水井比排水沟低0.5m以上,并随基坑开挖保持沟底、井底深度差。
4)地下水控制效果
基坑先期施作端头工作井时,由于降水未到位提前开挖造成基坑突涌,采用注浆封底措施并未解决该问题。经过专家分析与咨询,重新打设降水井降水,最后降水成功,后续基坑地下水控制及开挖过程较为顺利,保证了基坑本身及周边建筑物的安全。
2

承压含水层+落底式止水帷幕(坑内真空疏干潜水+减压承压水)

地铁车站站址区属滨海平原地貌类型,基坑在70m 深度范围内,均为第四纪松散沉积物,沉积年代为全新世Q4~晚更新世Q3土层,主要由黏性土、粉性土以及砂土组成。止水帷幕进入不透水1层黏土层,对于浅层潜水采用真空疏干井;对于深层层承压水层采用泄压井进行泄压,同时坑外设置观测井兼作回灌井,做好应急准备。

1)工程概况
车站基坑主体结构基坑标准段基坑开挖深度19.009m。北端头基坑开挖深度20.764m,南端头井基坑开挖深度21.223m。基坑外围围护地下连续墙深度41.4645.99m。沿车站经过的地下管线复杂,两侧建筑物较为密集,施工环境较为复杂,车站基坑开挖时应注意对周围建筑、道路、管线等的不利影响。车站施工总平面图如图4所示。
图片
4  车站施工总平面图(尺寸单位:m
2)工程地质条件
车站地处长江三角洲入海口的东南前缘,属滨海平原地貌类型。根据勘察揭露结果,本车站地基土在70 m 深度范围内,均为第四纪松散沉积物,沉积年代为全新世Q4~晚更新世Q3,为滨海~河口、滨海~浅海、滨海、沼泽、溺谷、河口~湖泽、河口~滨海相沉积;主要由黏性土、粉性土以及砂土组成,一般具有成层分布特点。场地地层分布具有以下特点:
浅部地层:浅层沉积的j灰色黏质粉土埋深在3.16.9m,车站基坑开挖需重点防治j层的流砂现象。
深部地层:受古河道切割影响,第层暗绿色粉质黏土在场地北侧区域缺失,古河道沉积层主要为31a层灰色粉质黏土夹黏质粉土、4层灰绿色粉质黏土、12层灰绿~灰色砂质粉土层;11层草黄~灰色砂质粉土层及11J层灰黄~灰色粉质黏土层在拟建车站场地受古河道切割影响,在场地北侧区域缺失,并且层位存在一定起伏;1层粉质黏土、2层黏质粉土与粉质黏土互层在拟建车站场地均有分布,层位分布较为稳定;层出露在约61.80m以下,在65m及以下的深孔中均有揭遇。承压水主要赋存于12层粉土、粉砂中,车站基坑开挖需考虑抗承压水稳定,车站典型地质横断面如图5所示。
图片
5  车站地质横断面图(尺寸单位:m
3)水文地质条件
潜水
拟建场地浅部地下水属于潜水类型。潜水一般据该地区区域资料地下水主要有浅部土层中,补给来源主要有大气降水入渗及地表水径流侧向补给,其排泄方式以蒸发消耗为主。浅部土层中的潜水位埋深,一般距地表面0.31.5m,年平均地下水位埋深距地表面0.50.7m。由于潜水与大气降水和地表水的关系十分密切,故水位呈季节性波动。勘察期间测得的地下水静止水位埋深一般为1.201.50m(相应高程为2.313.03m)。设计时可按安全需要选择合适的地下水位埋深。建议高水位可取设计室外地坪下0.5m,低水位可取设计室外地坪下1.5m
承压水
根据勘察结果,揭露的11层、12层、层为承压含水层。根据该地区工程实践,承压水水位高程呈周期变化,11层、12层、层承压水一般埋深变化范围为3.012.0m。由于本车站为地下两层,基坑挖深大,对承压水突涌更为敏感,详细勘察针对本场地存在第11层及12层承压水含水层共布置了3个承压水水位埋深观测孔,测得第11层承压水水位稳定埋深为4.615.17m(相应高程约-0.69-1.01m),第12层承压水水位稳定埋深为5.36m(相应高程约—1.60m)。
车站水文参数见表2
2  车站水文参数
图片  
4)地下水控制方案
设计思路
根据基坑开挖对环境的影响,结合地层及周边环境,降水方案设计主要从以下几个方面进行:
a.对于基坑开挖涉及的潜水含水层,由于被地下围护结构隔断,即隔断了潜水的水平补给来源。故设计为真空疏干降水井来完成降水工作。
b.对于本工程主体结构基坑第层的承压水,考虑到地下围护已深入第1层黏土层中,完全隔断第层承压水,并切断了坑内第层含水层水平补给来源,所以在第层承压含水层布置泄压井直接将其压力释放、泄压。
c.利用基坑内未抽水的观测井和基坑外观测备用井,加强水位观测,根据监测结果来指导抽水或采取回灌措施。
d.确保承压井不间断工作,根据群井试验抽水出水量及观测井水位决定抽水速率,控制承压水头与上覆土压力足以满足开挖基坑稳定性要求,这将使降水对环境的影响进一步降低。
疏干井布设方案
通过对基底稳定性验算,结合地层情况,本工程主体结构基坑暂共布设27口疏干井和3口疏干观测井,含盖挖段区布设1口疏干井。对于盖挖段区、区域利用其外侧疏干井进行疏干降水。
降压井布设方案

通过对基坑开挖底板稳定性计算可知:需要对主体结构基坑进行降低承压水水头。依据上述设计思路,根据本工程勘察报告获得水文参数,通过软件模拟计算,在主体结构基坑内布置13口泄压井(含4口观测井)。根据模拟结果,布设的泄压井能够满足基坑开挖的要求。同时为了加强坑外水位观测,检验围护封闭效果,在坑外布设6口观测井,根据观测数据必要时采取回灌措施。降水井平面布置图如图6所示。

图片

图6 车站降水平面布置图

5 )地下水控制效果

前期进行为期约20d的预抽水,对浅层进行疏干。随着基坑的开挖,开启降压井进行抽水,逐步增加降压井的开启个数。降压井开启时间为8个月,最终坑外沉降约40mm

内容源于网络,旨在分享,如有侵权,请联系删除


相关资料推荐:

地铁基坑降水工程施工合同(16页)

https://ziliao.co188.com/p63317086.html


知识点:地铁基坑减压降水工程实例


这个家伙什么也没有留下。。。

轨道交通

返回版块

1.02 万条内容 · 127 人订阅

猜你喜欢

阅读下一篇

11.05—11.11国内外轨道交通资讯

城轨资讯 11月7日,国家发改委官网发布关于进一步完善政策环境加大力度支持民间投资发展的意见。意见指出,支持民间投资参与102项重大工程等项目建设,鼓励民间投资以城市基础设施等为重点,通过综合开发模式参与重点项目建设。 国铁集团、北京市政府联合批复北京市郊铁路城市副中心线整体提升工程(北京西至良乡段)可行性研究报告,为线路年底前实现全面开工建设创造有利条件。

回帖成功

经验值 +10