当框架梁柱节点由于一些原因:诸如设计或施工不当,使用功能或环境改变,对结构抗震要求提高等原因造成承载力不足,延性、刚度不满足要求时,需对其进行加固补强。包钢加固是目前比较常见的加固方式,加固过程中节点的正确处理能够使内力传递、分配更合理,保持框架结构整体性。
众多研究表明,使用包钢法可以有效提高梁柱节点的承载力和延性。如对中节点和边节点分别进行了加固。为了避免梁底钢筋屈服,中节点采用螺栓锚固钢板在梁底的加固方法,同时用钢钉将钢板与柱子相连。经过加固,节点的破坏区域发生了改变,同时极限荷载增加了 20%,刚度增大 10%到 20%,而耗能能力没有明显改善。对于边节点,加固的目的主要在于将塑性铰区域固定在梁中,同时增加对节点的侧向约束。因此,钢板主要被布置在柱的上下端,这样的结果为:极限荷载增大 33%,初始刚度增大 12%,同时构件的耗能能力大大提高。

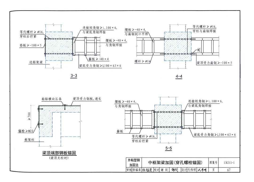
《混凝土结构加固构造》图集中对不同情况下节点的处理作了示意。柱的加固中,分别为中柱、角柱、边柱、壁柱遇梁的加固方式,节点处需用穿梁螺旋钢筋,连接两根角钢,做加强处理,柱顶需要用角钢来连接锚固。


梁遇柱的加固中,有中框架梁、边框架梁的不同情形,锚固方式有穿孔螺栓锚固和型钢箍锚固。梁上的包钢在节点处需进行锚固,可采用螺栓穿过柱的方式进行锚固连接。如遇柱的宽度较大难以穿孔及现场不允许的情况,可采用角钢锚固到柱上,用角钢锚固角钢的方式连接。实际的加固中亦可以用化学锚栓代替穿孔螺栓。



内容源于网络,仅作分享使用,如有侵权,请联系删除
相关资料推荐:
知识点:包钢加固
0人已收藏
0人已打赏
免费4人已点赞
分享
混凝土结构
返回版块140.17 万条内容 · 2213 人订阅
阅读下一篇
锚固用快固胶拉伸抗剪强度测定胶粘剂的性能是决定锚固质量的重要指标,结构中的锚固构件受拉压、受剪切作用,如何测定锚固用胶粘剂的受力性能呢?下面介绍一种测定锚固用快固胶拉伸和抗剪强度的方法-钢套筒法,本方法适用于混凝土结构锚固工程质量的现场检验,以快固型结构胶粘剂粘结带肋钢筋(或锚栓螺杆)与钢套筒的拉伸抗剪强度测定。本方法不得用于测定非快固型胶粘剂的拉伸抗剪强度。 试验设备及装置:试验机的加荷能力,应使件的破坏荷载处于试验机标定满负荷的20%~80%。试验机力值的示值误差不应大于1%。试验机应能连续、平稳、速率可控地施荷。夹持器及其夹具:试验机配备的夹持器及其夹具,应能自动对中,使力线与试件的轴线始终保持一致。
回帖成功
经验值 +10
全部回复(0 )
只看楼主 我来说两句抢沙发