土木在线论坛 \ 建筑设计 \ 公共建筑设计 \ 办公类建筑设计

办公类建筑设计

发布于:2022-11-10 16:36:10 来自:建筑设计/公共建筑设计 [复制转发]

设计要求

1

办公类建筑分类

       办公建筑的类型主要由使用对象和业务特点决定。不同的对象分别具有各自不同的业务组织形式、功能布置规律和运行管理方式,在建筑形式上呈现出不同的空间及其形态特征,形成不同类型的办公建筑。常见办公建筑类型见下表

图片

       办公业务是办公建筑的重要功能属性。办公功能可以以单一功能属性的方式出现在办公建筑中,也可以与其他属性的功能相融合。当办公建筑功能用房作为其他功能属性建筑的配属功能时,其用房配置和组织管理方式的确定应结合主导业务的需求综合判定。




2

功能构成

       办公建筑一般由办公业务用房、公共用房、服务用房和附属设施四个部分组成。功能设计的重点是需要根据企业的功能要求进行动静关系的划分、主次关系的划分。

     办公业务用房是办公人员开展日常工作所需的房间,包括办公室、会议室、资料室等,是办公建筑的基本功能用房。办公建筑功能用房的种类和数量应该根据题目类型、使用需求和建设标准合理确定。

     一般情况下,高管、财务、档案等行政办公室属于私密类,宜用连续房间排布,单个面积约为25~35m2;会议室一般为60m2,80m2,120m2几个面积类型,需设两个门洞,与私密类办公室合理布局;而对外联系密切,需要更好的空间交流的普通办公可以做成开放的共享办公空间,与公共休息交流空间结合布置,使其建筑性格更加活泼。

       或者题目为纯粹的小型企业联合办公空间,这就要加强企业和企业之间的内在联系,既拥有独立的办公空间,不受外界干扰,又将各企业间相互联系起来促进交流。

历年出题策略大多为以上情况。

(1)方便对外联络。需接受大量来访者的空间勇敢临近主入口或者交通通达处。

(2)方便内部联系。有密切工作关系的办公空间应布置在相近的位置。

(3)避免相互干扰。对容易产生噪声干扰的办公空间应集中布置,注意“闹”和“静”的分区和间隔。

(4)集中用途的房间应居中。为整个办公空间服务的部分及设施在布置时,应位于中心位置,便于办公人员使用。

(5)注意“内”“外”有别。在办公空间中某些机要部门应该同一般办公隔离出来。

图片

(办公建筑功能关系示意图)


3

设计原则

(1)当办公建筑与其他建筑共建在同一基地内或者与其他建筑合建时,应满足办公建筑的使用功能和环境要求,分区明确,宜设单独出入口。

(2)走道长度不大于40m时,走道最小净宽为:单面布置房间1.30m,双面布置房间1.50m。

(3)大会议室平面长宽比不宜大于2:1。

(4)单间办公室净面积不应小于10m2,普通办公室每人使用面积不应小于4m2。

(5)对外办事大厅宜靠近出入口或者单独分开设置,并与内部办公人员出入口分开。

(6)公用厕所应设残疾人专用设施;离最远的办公地点不应大于50m;应设置前室;公用厕所的门不宜直接开向办公用房、门厅、电梯厅等主要公共空间。


4

交通核设计

对于多层和高层办公建筑来说,设计好标准层较为重要,而交通核在标准层上所处的位置对空间组合具有较为重要的影响。

图片


5

房间布置

(1)小单间办公室的布置。该类办公室面积一般较小,配套设施较少,空间相对封闭,办公环境安静干扰少,但同其他办公组团联系不便。其典型形式是由走道将大小近似的中小空间结合起来。通常有传统的间隔式小单间办公室和根据需要把大空间重新分隔为若干小单间办公室的类型。

图片

(2)中、大型开敞式办公室的布置。该类办公室面积较大,空间大且无封闭分隔。各员工的办公位置根据工作流程组合在一起。各工作单元及办公组团内联系密切,利于统一管理,办公设施及其设备较为完善,工作效率高,交通面积少,但同时又存在相互干扰的问题,需要合理布置分隔空间的装置或者家具。其布局形式按几何形式整齐排列。

图片


2

案例介绍

1

设计背景和思想渊源

图片

(浙江普利斐特一期组团)

    1、红色栈道作为要素的流线重构

    2、建筑师抽取了车间的疏散楼梯、屋顶太阳能板的检修马道、跨越水池的小径、办公楼的室内楼梯,覆以统一的耐候钢板,或将之外化可视,或将之下沉消隐,又或使之穿层飞楼,还原了中国传统的山水绘画的中若隐若现、似断实连、曲折回绕的山径,并进一步构成了串联所有图景要素的核心线索——不仅是可视的,也是可游和堪用的。

图片

    3、公共区域放置的共享交流设施。在办公室区域中间设置由轻质的金属网的半围合空间,介入温暖的颜色,既是共享工作空间也是提供小憩的室内“庭院”。

图片

    4、会议室布置

图片

   5、共享办公空间:与外界有较强的空间渗透和交流。

图片

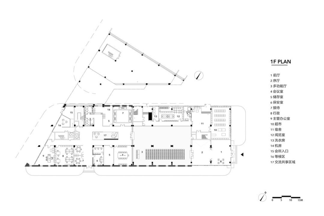
    6、各种类型的办公空间以及附属设施的设置,在此案例的平面图中都以十分明确的姿态表达。管理等行政办公室、会议室等均匀靠建筑外围排列;等候室、vip室等靠次门厅布置,有较好的交通通达度;功能之间被交通盒和共享交流空间隔开;不同类型的办公空间分区域布置(行政办公空间和研发所);开放办公空间宜设置大房间或者直接敞开,用软隔断分隔。

图片
图片


知识点:办公类建筑设计

关于办公、酒店类建筑设计深度的问题

  • lijiawei411
    lijiawei411 沙发

    办公业务是办公建筑的重要功能属性。办公功能可以以单一功能属性的方式出现在办公建筑中,也可以与其他属性的功能相融合。当办公建筑功能用房作为其他功能属性建筑的配属功能时,其用房配置和组织管理方式的确定应结合主导业务的需求综合判定。

    2022-11-13 20:53:13

    回复 举报
    赞同0
这个家伙什么也没有留下。。。

公共建筑设计

返回版块

51.17 万条内容 · 447 人订阅

猜你喜欢

阅读下一篇

展览类建筑设计

  展览类建筑主要体现为叙事性的组织,形成漫步空间。        展览类建筑包括美术馆、纪念馆、画院等,考察要点主要集中在空间布局、功能整合和流线组织的能力,面积约3000~3500m2。

回帖成功

经验值 +10