







排桩复合土钉






围护墙为排桩式(钻孔灌注桩)


围护墙为排桩式(素砼桩)



围护墙为排桩式(钻孔咬合桩)

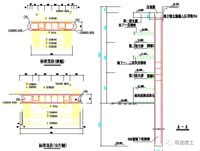
围护墙为墙式(地下连续墙)

围护墙为墙式(地下连续墙)


地下连续墙
(1)内支撑:钢筋砼支撑﹙永久钢筋砼结构支撑、临时钢筋砼支撑﹚、钢支撑、钢与钢筋砼组合支撑。
内支撑形式:对撑

临时钢筋砼支撑形式:桁架式对撑 角撑

桁架式对撑

临时钢筋砼支撑形式:内环式支撑





内容源于网络,仅作分享使用,如有侵权,请联系删除
相关资料推荐:
知识点:基坑支护结构形式
0人已收藏
0人已打赏
免费10人已点赞
分享
结构施工图
返回版块57.56 万条内容 · 1092 人订阅
阅读下一篇
打桩时遇到坍孔、导管堵管、钢筋笼上浮,如何处理?一、施工准备 二、施工工艺 2.1施工放线 施工放样前,复核设计提供的测量点位,复测平面控制网和高程控制网,进行平差,精度达到规范要求,方可进行施工放样。在施工放样桩位确定后,以桩基中心为圆心,以大于桩身半径在四周设立十字护桩,护筒做好标记并加固稳定。经监理工程师核查、批准后在原始地形复测的基础上往下钻进。 经经测量放线确定桩位后,采用破碎锤将原路面破除。 2.2物探
回帖成功
经验值 +10
全部回复(1 )
只看楼主 我来说两句 抢板凳学习了常见基坑支护结构形式,结构图及实景图解说,多谢了。
回复 举报