水泥砂浆:由水泥、细骨料和水,以及根据需要加入的石灰、活性掺合料或外加剂在现场配成的砂浆,分为水泥砂浆和水泥混合砂浆。通常所说的1:3水泥砂浆是用1 单位重量水泥和3单位重量砂配合。实际上忽视了水的成分,一般在0.6左右比例,即应成为1:3:0.6。
石材胶:分为两种,一种是有机胶,另外一种是无机胶。
1.有机胶种类:云石胶,干挂胶,AB胶,特点是粘结时间短,粘结强度高,对基面要求比较低。
缺点:耐老化性能差,时间长了容易脆化,有点像塑料桶太阳光照时间长了,一碰就脆化,断裂。
2.无机胶种类:石材湿贴胶,石材粘结剂,特点是粘结强度高,施工简单方便,对施工基面要求比较高,需要基面结实,无油污等杂质。耐老化性能优异,50年不变质。
缺点:超过3公分厚的石材,不能施工。必须要干挂。
景观中的应用
石材胶可能应用不多,但是水泥砂浆出现在园林景观大大小小的构筑与铺装中,应用广泛。

施工图案例
上一讲的岗亭除了石材干挂,同样也可以用粘哦!岗亭结构可以选择完整的结构柱,也可选择切角的结构柱使室内空间更加规整。相比干挂更节省空间,工艺也更简单。


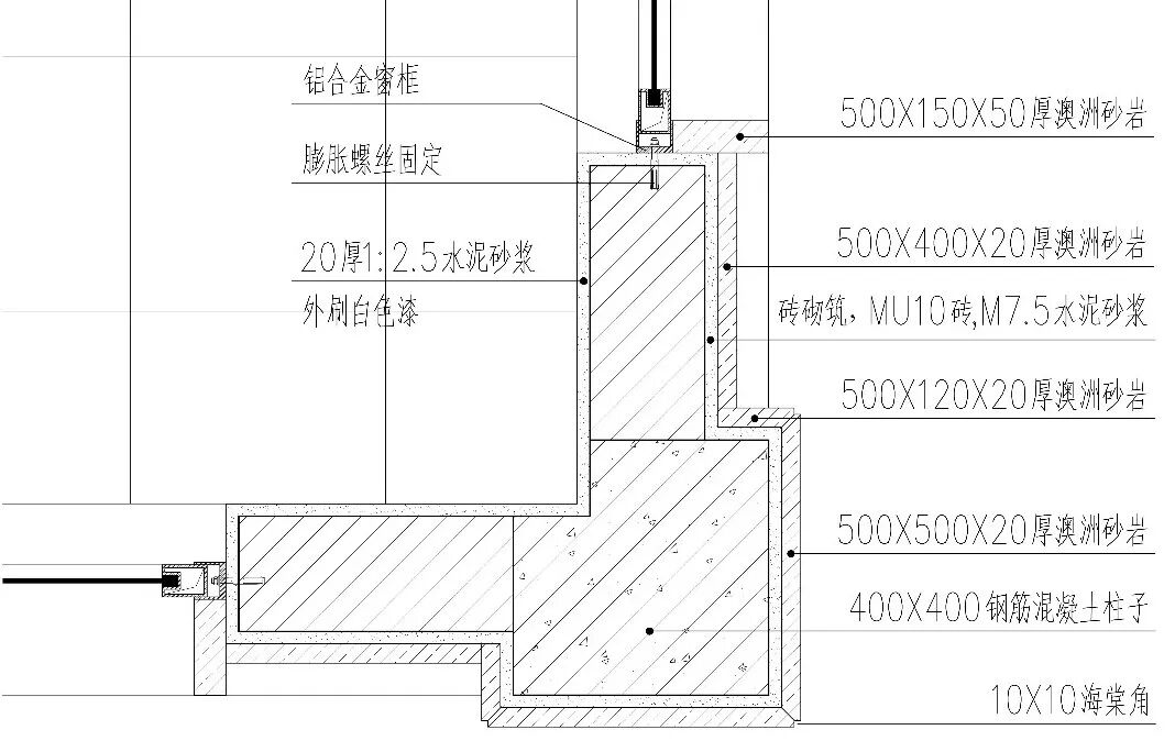
同样来一张大样图就知道,这是我们常见的做法,没有干挂工艺那么多构件。值得注意的是当石材有拼接时,会出现尖锐角,容易出现破损,需要使用海棠角收口。(上一章忘记讲了,嚯嚯嚯!)

也就是这个

还有鸡嘴缝、鸭嘴缝什么的.....你们自己去了解吧!剖面图也只是将干挂的龙骨和挂件换成了水泥砂浆。

(内容来源于网络,如有侵权请联系删除)
相关推荐:
知识点:石材的固定做法:水泥砂浆、石材胶等
0人已收藏
0人已打赏
免费0人已点赞
分享
景观规划设计
返回版块25.18 万条内容 · 282 人订阅
回帖成功
经验值 +10
全部回复(0 )
只看楼主 我来说两句抢沙发