一.景观常用材料——玻璃
1.概念:玻璃是一种在室外空间环境中表现力很强的材料,其透光、透视或不透视的特性,在现代景观中有很强的艺术表达。
2.种类:钢化玻璃、夹胶玻璃、磨砂玻璃、喷砂玻璃、压花玻璃、彩色玻璃、U形玻璃等。

▲常见玻璃种类
夹胶玻璃主要用在园林景观中,标注方法为玻璃厚度n+0.38的倍数PVB+n,夹胶玻璃就是在两块玻璃之间夹进一层以聚乙烯醇缩丁醛为主要成分的PVB薄膜。PVB则是一种塑化挤压成型的高分子材料。
二.玻璃胶
1.概念:玻璃胶,是一种常用的黏合剂,由硅酸钠(Na2O·mSiO2)和醋酸以及有机性的硅酮组成。硅酸钠易溶于水,有粘性,在南方称为水玻璃,在北方称为泡花碱。

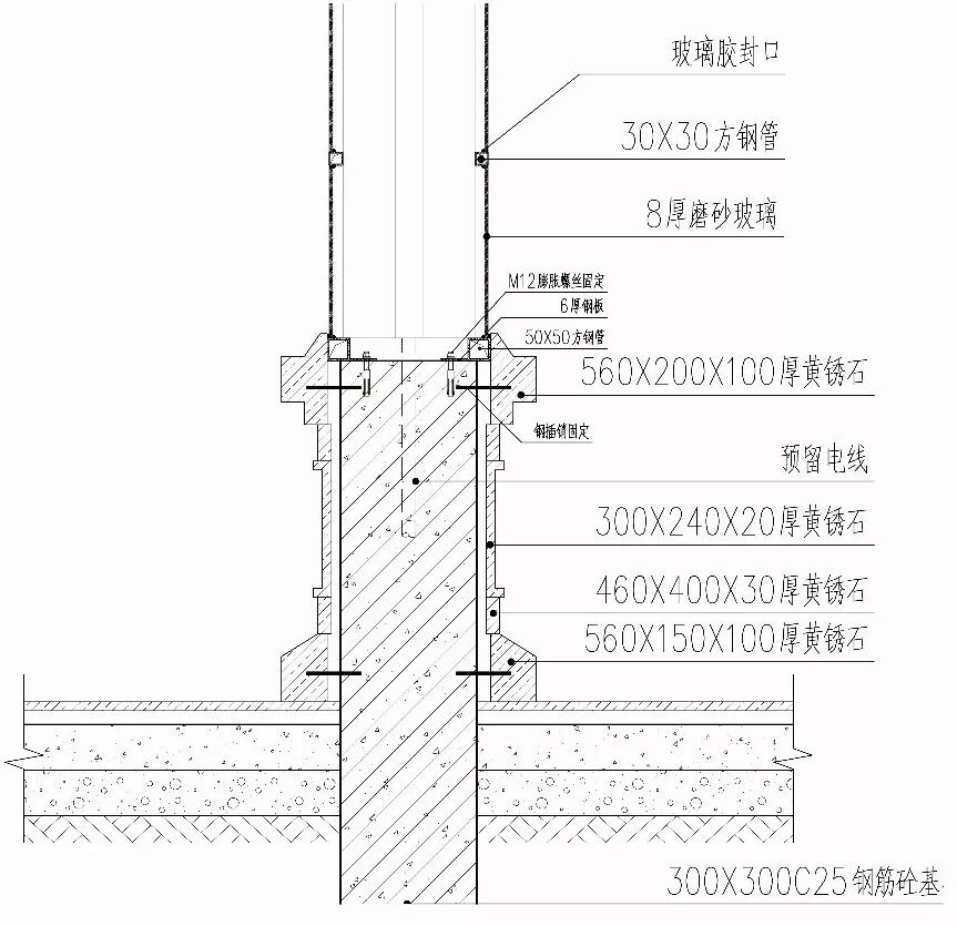
▲常用的固定做法
2.注意事项:
a.玻璃胶只能用在光面材质上,如钢、石材等。木材和混凝土之类的材质具有亦腐蚀性,粘黏面不稳定,所以不能用。
b.玻璃胶需在光面介质上使用,不能架空胶粘。

三.施工图案例
以景观灯柱为例,灯柱底座石材贴面,中上部以方钢龙骨和玻璃构成。来!解剖它!


经过剥皮拆骨后,绘制出它的平面图

灯柱的结构用了角钢去包住方钢,这是因为玻璃胶固定两边时,外面能看到胶体,不美观,使用角钢一边卡住玻璃,一边玻璃胶粘,使之更加稳固,安全系数更高,而且还不影响设计效果。


灯柱高度在三米左右,值得注意的是立面的玻璃不是一整块,而是对应其龙骨分块粘贴的。

灯柱的顶盖使用了角钢和螺丝固定,没有焊接或胶粘,是因为灯管亦损坏,预留检修口方便更换灯管。

灯柱底座又遇到了钢与混凝土的固定方式,你还记得怎么固定的吗?

(内容来源于网络,如有侵权请联系删除)
相关推荐:
知识点:玻璃的固定做法—玻璃胶粘
0人已收藏
0人已打赏
免费0人已点赞
分享
园林景观素材
返回版块7.04 万条内容 · 129 人订阅
阅读下一篇
钢材与钢材的固定做法介绍一.焊接 一种以加热、高温、高压的方式接合金属的制造工艺。 园林景观施工中最常用的是气焊和电弧焊,而电阻焊、感应焊、激光焊多用于精密的仪器制作。 二.螺栓、自攻螺丝、铆钉固定 大型的钢结构可用螺栓固定,较轻薄的饰面可直接用自攻螺钉和铆钉固定 第五章:钢材与混凝土、砖砌筑砌筑固定做法
回帖成功
经验值 +10
全部回复(0 )
只看楼主 我来说两句抢沙发