一.焊接
一种以加热、高温、高压的方式接合金属的制造工艺。

园林景观施工中最常用的是气焊和电弧焊,而电阻焊、感应焊、激光焊多用于精密的仪器制作。
二.螺栓、自攻螺丝、铆钉固定
大型的钢结构可用螺栓固定,较轻薄的饰面可直接用自攻螺钉和铆钉固定

第五章:钢材与混凝土、砖砌筑砌筑固定做法
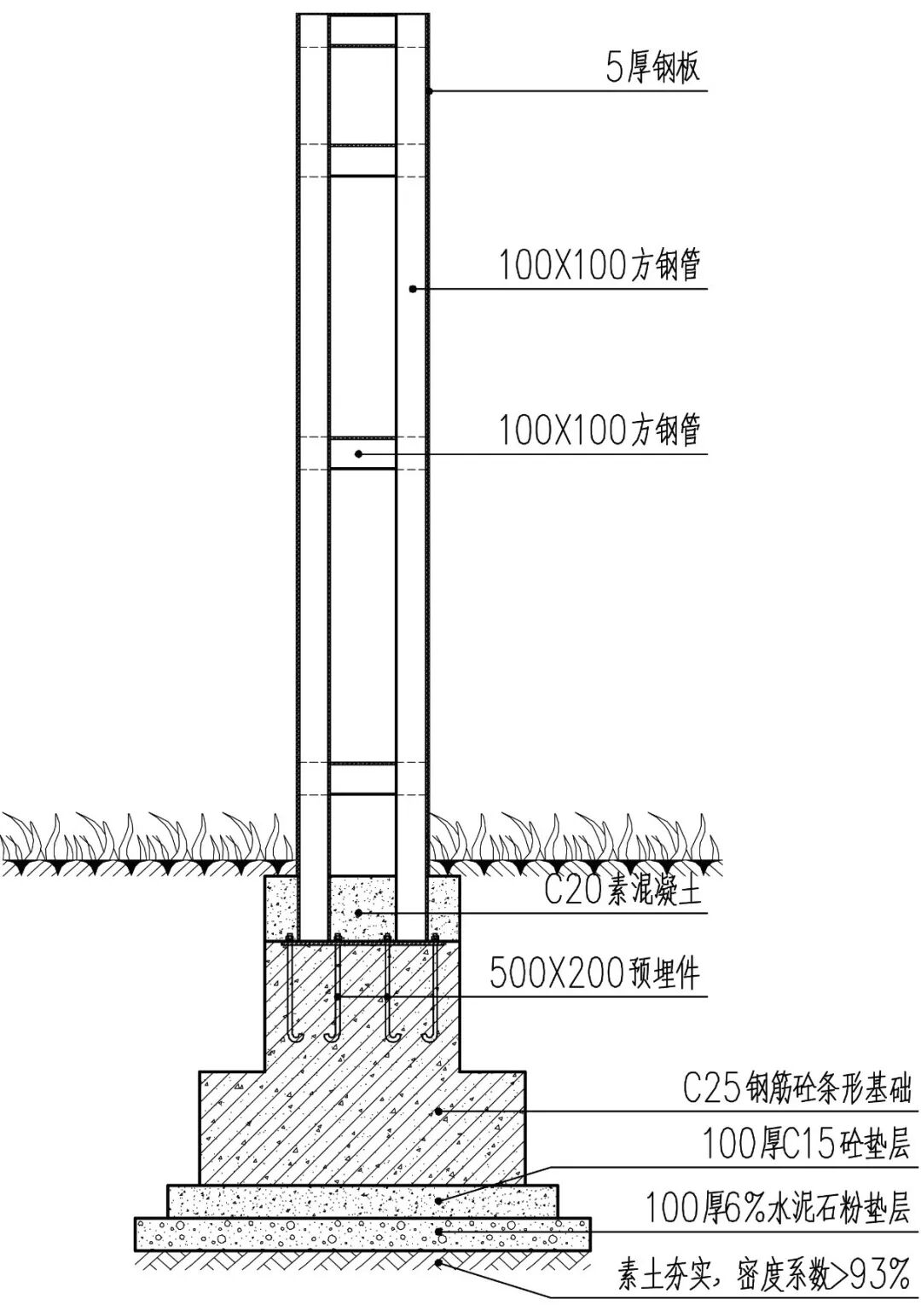
一.膨胀螺栓+钢构件、预埋件

与木材的固定方式一样,根据受力的不同情况,去选择不同的连接件。
二.在景观中的应用
钢结构比木结构造型多变,也容易更换回收,对应其风格类型上也应用的更多。

三.施工图案例

让我们来解剖这面景墙



相信模型能很直观的看清楚一个景墙的骨架分布和基础的做法,话说要是模型能做到这种地步,何愁不会画施工图啊。



龙骨的布置要在开洞面的角位上,有小于龙骨间距的开洞可用方钢管或角钢固定。

景墙受力和受风面较大的时候,可以使用加劲钢板加强钢结构的稳定性

耐候钢在景观设计中使用的频率也较高,那些钢板围合的种植池简单美观,通过上面案例的学习你能不能猜到它的做法呢?



因为种植池是需要覆土的,别看它体量小,受力可不小,所以种植池是需要用加劲钢板去增强拉力的。

如果觉得要更加稳固,可以再增加方钢管去加强结构稳定性。

相关推荐:
知识点:钢材与钢材的固定做法介绍
(内容来源于网络,如有侵权请联系删除)
0人已收藏
0人已打赏
免费0人已点赞
分享
园林景观素材
返回版块7.04 万条内容 · 129 人订阅
阅读下一篇
木材与混凝土、砖砌筑固定做法一. 螺栓、膨胀螺栓+钢构件、预埋件 膨胀螺栓用在混凝土、毛石筑中。锚栓多用于大体量构筑固定,预埋件砖砌筑不能用。 二. 在景观中的应用 木结构在园林景观中应用广泛,那么木柱子,它们是如何固定的?如果你想当然的以为是直接插入地下的那就大错特错啦!接触地面的木头容易腐蚀,所以需要借助钢构件去稳定结构,下面就来看看它的做法吧!
回帖成功
经验值 +10
全部回复(0 )
只看楼主 我来说两句抢沙发