疏散路径的确立,应以规避风险为基本原则!合理划分室内区域的火灾风险等级,理解疏散路径的确立原则,可处置诸多安全疏散的争议和误区!
1 火灾风险等级的划分!
2 疏散路径的确立原则!
3 房间嵌套(穿套)应予禁止!
4 前室嵌套(穿套)应予禁止!
5 疏散路径的几种形式!
6 一字形走道!单向.双向疏散走道!
7 袋形走道!
8 T形(丁字形)走道-宜与忌!
9 T形走道-疏散距离的计算规则!
10 T形走道-必须配套合理的消防设施!
11 环形(回形)走道的宜与忌!
12 双向·单向走道-在安全疏散中的重要意义,在《建规》中的对应关系!
第一章 火灾风险等级的划分
合理划分室内区域的火灾风险等级,是安全疏散设计的基础!
为方便理解,我们按火灾危险程度,将室内房间等视为危险区域,疏散走道视为次危险区域,前室和疏散楼梯间视为相对安全区域,其中:
1. 危险区域:包括各室内功能房间等。
2. 次危险区域:包括疏散走道等。
3. 相对安全区域:包括防烟前室、疏散楼梯(间)、避难层、避难间、避难走道等。
4. 室外安全区域:包括室外地面、符合疏散要求并具有直达地面设施的上人屋面、平台以及符合《建规》第6.6.4条要求的天桥、连廊等。
5. 示例(图示1):

第二章 疏散路径的确立原则
疏散路径的确立,应以规避风险为基本原则!
合理划分室内区域的火灾风险等级,理解疏散路径的确立原则,可处置诸多安全疏散的争议和误区!
一、疏散路径的确立,应以“危险区域”→“次危险区域”→“相对安全区域”→“室外安全区域”为基本原则。
风险逐级递减,是所有安全疏散路径须遵行的基本准则,是安全疏散设计的基础:

注1: 各功能区域的划分,参第一章要求。
注2: 风险逐级降低,包含越级降低,比如从危险区域(房间等)直接疏散至室外安全区域等。
二、人员在疏散过程中,从危险区域(房间等)应进入次危险区域(疏散走道等)或相对安全区域、室外安全区域,不应通过其他危险区域疏散,示例:
图示2的办公室A需要两个疏散门,疏散门应直接通向疏散走道,不应通过其他房间疏散。

三、人员在疏散过程中,进入疏散走道(次危险区域)后,不应再进入房间等危险区域,示例:
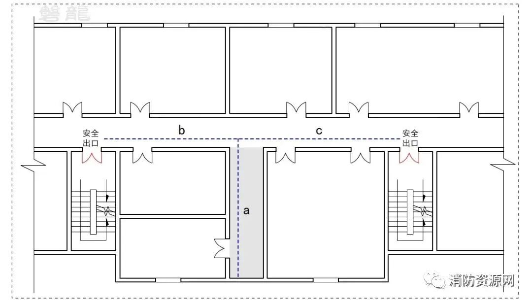
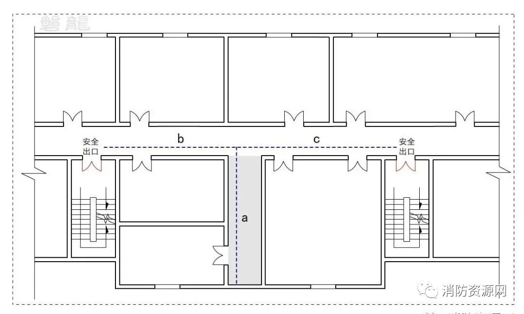
1、图示3建筑需要两个安全出口,分别设置在疏散走道的两端,是合理的疏散方案;

2、图示4将本建筑的右侧部分房间走道合并,左侧部分的疏散走道需要通过危险区域(合并后的房间)才能进入右侧楼梯,实为无效的疏散路径,导致左侧区域只具备一个有效的安全出口,对于需要不少于两个安全出口的建筑,应予禁止!

3、图示5将上部分走道封闭成功能房间,即使设置了连通门,也不应视为有效的疏散通道,两侧黄色走道部分,应视为袋形走道。

四、同理,进入前室或疏散楼梯间等相对安全区域后,就不应再进入走道等次危险区域:
图示6的户门直接对前室开放,不应再进入走道等次危险区域,本图示中前室内的户门,应视为只有一个安全出口。

第三章 房间嵌套(穿套)应予禁止
疏散路径的确立,是以规避风险为基本原则!合理划分室内区域的火灾风险等级,理解疏散路径的确立原则,可以处置房间嵌套(穿套)的争议和误区!
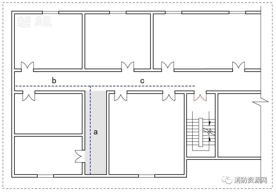
一、由第二章疏散路径的确立原则可知:人员从室内房间疏散,应确保风险逐级递减,不应采用嵌套(穿套)设置的方式,如确因功能需要,仅可以嵌套(穿套)一级相对面积较小的房间,禁止连环套的方式:
1、室内房间属于危险区域,一旦发生火灾,人员应迅速疏散至相对安全的次危险区域(疏散走道),通过疏散走道疏散至安全出口(图示7)。

2、当室内房间采用嵌套(穿套)设置的方式时,内部房间一旦发生火灾,必须经过另一个危险区域才能到达疏散走道或安全出口,存在一定风险(图示8)。关键是,如果外部房间起火,将直接阻断内部房间的安全疏散(图示9)。因此,这种嵌套(穿套)设置的方式不应许可。


3、确因功能需要,嵌套(穿套)设置的房间不应超过一级,疏散距离应按人员行走的直线距离计算,在图示10的公共建筑中,示例房间内任一点至房间直通疏散走道的疏散门的直线距离,应为L1+L2。

(图示10)
二、人员疏散过程中,从危险区域(房间等)应进入次危险区域(疏散走道等)或相对安全区域、安全区域,不应通过其他危险区域疏散,示例:
图示11的办公室A需要两个疏散门,疏散门应直接通向疏散走道,不应通过办公室B疏散,办公室A和办公室B之间的门,可以作为连通门,不能作为疏散门。

(图示11)
三、厂房仓库同样适应“危险区域”→“次危险区域”→“相对安全区域”→“室外安全区域”的基本疏散原则,应确保风险逐级递减,不应采用嵌套(穿套)设置的方式:
1、在图示12的厂房建筑中,同样应采用“房间”→“疏散走道”→“安全出口”的基本设置原则,确保风险逐级降低,厂房仓库疏散走道两侧的隔墙,其燃烧性能和耐火等级,应符合规范要求。

2、厂房仓库同样不应采用嵌套(穿套)设置的方式,确因功能需要,嵌套(穿套)设置的房间不应超过一级,疏散距离应按人员行走的直线距离计算,在图示13的厂房中,示例房间内任一点至安全出口的直线距离,应为L1+L2。

(图示13)
五、一些特殊的工业及公共建筑场所,可能因功能所需必须多级嵌套(穿套),应采取加强性安全措施,以利人员疏散。
六、住宅建筑中,同样不宜采用多级房间嵌套(穿套)设计,除卫生间、阳台等场所外,房间应能通过客厅(含扩展区域)疏散至户外。
第四章 前室嵌套(穿套)应予禁止
“前室穿套”,也称“前室套前室”,通常是指通过一个楼梯间前室(含合用前室)进入另一个楼梯间前室的疏散方式。从疏散路线上讲,从一个前室进入了另一个前室,或者从一个前室通过走道进入另一个前室,都属于“前室穿套”。
前室是防烟楼梯间的基本要素,由第一章基本原则可知,安全疏散应遵行“走道(或户门)→前室→楼梯间”的基本规则。进入前室,就已抵达安全出口,应从疏散楼梯撤离,不能再进入了另一个前室,更不能通过走道(不安全区域)进入了另一个前室。
以此为原则,除非是“两个疏散楼梯共用前室”的情况,其他前室均应只具备一个安全出口。也就是说,凡户门对楼梯间独立前室(或合用前室)开放的情况,均只能视为一个安全出口。这是基本规则,否则必将衍生极端方案,规范条文形成虚设。
“前室穿套”违背疏散路径的基本原则,容易衍生极端方案,且基本属于“更不方便使用和更不利于安全疏散”的方式,是用于规避规范条文的取巧措施,应予禁止。
有关前室穿套的详细解说,参专题:
疏散路径的确立,是消防安全疏散设计的根本!
常见的疏散路径形式,主要有一字形、袋形、环形(回形)、T形(丁字形)等,建筑平面的安全疏散路径,通常由这几种形式的走道构成!
建筑使用功能和疏散距离,是决定疏散路径形式的关键要素!
下面,针对不同疏散路径形式,分解如下:
一字形走道是最常见的疏散走道形式,是所有疏散路径形式的基本要素!
通常情况下,一字形走道可分解为单向走道(袋形走道)和双向走道(位于两个安全出口之间的走道)。
一、图示14的一字形疏散走道,设置有两个疏散楼梯,两个安全出口之间的疏散门具备双向疏散功能,对应走道为双向疏散走道,安全出口两端的走道为单向疏散走道,即袋形走道:

二、图示15的一字形疏散走道,仅设置有一个疏散楼梯,疏散走道的所有疏散门均为单向疏散,整个疏散走道均应视为单向疏散走道,即袋形走道:

三、关于双向疏散走道和单向疏散走道(袋形走道)的概念和应用,参本文第十二章理解!
第七章 袋形走道
袋形走道是一字形走道的一种形式,是指仅一个疏散方向的疏散走道,即单向疏散走道。
一、在《建规》中,袋形走道有其特殊意义,比如:
1、位于袋形走道两侧或尽端的疏散门至最近安全出口的直线距离受到更多限制;
2、歌舞娱乐放映游艺场所不宜布置在袋形走道;
3、房间内任一点至房间疏散门的直线距离,通常参照袋形走道疏散门至最近安全出口的直线距离确定。
等等!
二、“袋形走道”实质属于“单向疏散走道”,本文提出了“袋形走道”名称用“单向疏散走道”替代的观点,详见本文第十二章分解!
三、袋形走道示例:
示例1:在只有一个安全出口的疏散走道中,疏散走道都是以袋形走道的形式存在。

示例2:在有两个安全出口的建筑中,两个安全出口两侧的走道属于袋形走道。

T形走道也称为丁字形走道,是消防安全疏散设计中不可回避的形式。

(图示18)
二、T形走道的每个出口方向,均应能到达安全出口(图示19)。

(图示19)
二、仅有一个方向能到达安全出口的T形走道,不宜采用:
图示20所示的T形走道,仅有一个方向能到达安全出口,当人员从T字形走道出来时,如向左边疏散,则因折返而大幅增加疏散时间,不应许可。确有需要时,应按袋形走道处理,并按最不利情况下的折返长度复核安全距离,参见图示21。


注:本图示仅有一个方向能到达安全出口,不应许可。确有需要时,宜按袋形走道处理,按最不利情况下的折返长度计算疏散距离,即:(a+2b+c)≤L1且(b+2a+c)≤L1。L1为《建规》5.5.17所述“位于袋形走道两侧或尽端的疏散门至最近安全出口的直线距离”,比如,一二耐火等级的高层教学建筑:L1=15m。
三、倒T形走道的疏散形式,不应采用:
图示22中,出现了倒T形走道的疏散形式,人员可能在端头的走道上来回往返,不应采用。

四、特殊形式的T形疏散走道,应严格控制疏散距离:
图示23类似的疏散走道,阴影部位的短走道,存在误导疏散的可能,不宜采用。确需采用时,应满足相关条件,参见图示24。

(图示23)

(图示24)
注:本图示23、图示24的阴影部位走道,不宜采用。确需采用时,应按直线方向行走的疏散习惯,保证a 建规 》 5.5.17 所述“位于两个安全出口之间的疏散门至最近安全出口的直线距离”。
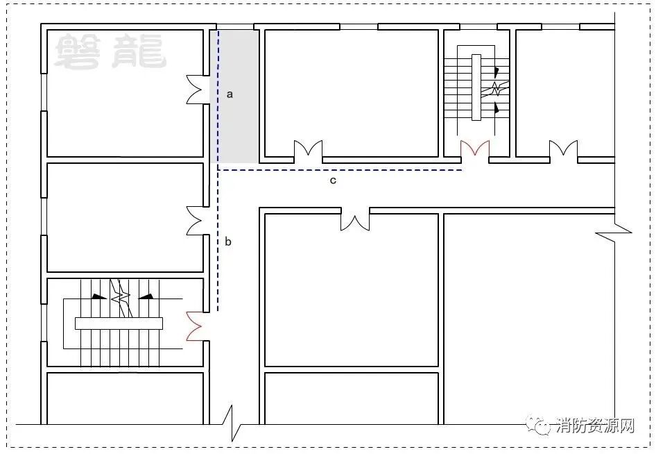
一、T形走道的疏散,应考虑可能在单向走道内往返的距离:
T形走道也称丁字形走道,应考虑可能在单向疏散走道内往返的距离,如图示25、图示26所示,应将其中的单向疏散走道部分距离(a)加倍计入安全疏散距离,且应保证a小于两翼距离(b、c),即应满足以下三个条件:
1. T形走道的每个出口方向,均应能到达安全出口。
2. a<b且a<c。
3. 2a+b≤L或2a+c≤L,L为《建规》5.5.17所述“位于两个安全出口之间的疏散门至最近安全出口的直线距离”。

(图示25)

二、托儿所、幼儿园,老年人照料设施,歌舞娱乐放映游艺场所等,不宜出现T形走道的形式,确有需要,宜按《建规》5.5.17袋形走道处理,即a+b或a+c不应超过5.5.17袋形走道的距离要求。
三、以上疏散处置要求,必须配套合理的消防设施,尤其是需要配套合理的疏散指示系统才能成立,详见第十章分解。
第十章 T形走道-必须配套合理的消防设施
对于T字形或回形疏散走道,必须辅以正确的疏散指示标志和应急照明系统,对于设置机械排烟系统的疏散走道,排烟口的设置宜使烟流方向与人员疏散方向相反。
一、疏散走道的疏散指示标志设置要求:
疏散走道的疏散指示标志设置,应与对应的疏散路径相对应,疏散指示标志应指向最近的疏散路径。图示27的丁字形路口,需增设指示标志,指向疏散距离较短的方向:

二、疏散走道的排烟口设置要求:
对于设置机械排烟系统的疏散走道,排烟口的设置宜使烟流方向与人员疏散方向相反,排烟口与附近安全出口相邻边缘之间的水平距离不应小于1.5m。图示28的丁字形路口设置的排烟口,应设置在疏散距离较长的一侧,使烟流方向与人员疏散方向相反:

第十一章 环形(回形)走道
一、环形(回形)走道是较为常见的形式,高层建筑的核心筒,通常会设置环形疏散走道(图示29)。

注:环形走道形式多样,图示29仅供参考!
二、没有安全出口的环形疏散路线,不应许可!
1、图示30、图示31所示的疏散走道,示例部位形成环形疏散路径,没有安全出口,不应采用。

(图示30)

三、带T形短走道的环形疏散路线,应严格控制疏散距离!
1、图示32的方案,上部区域形成了无安全出口的环形通道,不应许可。下部左右两侧形成T形路径,这类T形路径不宜采用。

2、图示33的方案,左侧区域的T形路径出来以后,没有直达安全出口,不宜采用,右侧区域的T形路径应严格控制疏散距离。

(图示33)
四、关于T形走道的疏散方案及疏散距离计算,参前述章节处置!
观点:将《建规》所述的“两个安全出口之间的疏散走道”和“袋形走道”,用“双向疏散走道”和“单向疏散走道”替代,对于规范的应用和普及,对于解决实际问题,具重要意义!
一、疏散走道分类,双向、单向疏散走道的概念
疏散走道的形式很多,按疏散方向分类,主要分为双向疏散和单向疏散两种形式。
1、双向疏散走道,是位于两个安全出口之间的疏散走道,从疏散走道的两个方向均可到达安全出口。
双向疏散走道对应《建规》表5.5.17和表5.5.29中所述的“位于两个安全出口之间的疏散门”所在的疏散走道。
2、单向疏散走道,仅一个方向能到达安全出口的疏散走道,就是规范所述的袋形走道。
单向疏散走道,是一端封闭,只有一个疏散方向的走道,和袋形走道是一个概念。这种走道的尽头没有出口,类似于一个袋子,因而得名袋形走道。
单向疏散走道是不利于安全疏散的,在单向走道内,人员存在折返的可能,从《建规》表5.5.17和表5.5.29可知,高层建筑类别的单向疏散走道,均考虑了走道往返距离,以高层教学建筑为例,双向疏散走道的距离为30m,单向疏散走道的距离15m。
3、示例:
图示34中,中间为双向疏散走道,左右两侧为单向疏散走道,即袋形走道,单向疏散走道的疏散距离,需考虑折返的可能。

(图示34)
二、双向、单向疏散走道在《建规》中的对应关系:
《建规》将直通疏散走道的疏散门分为“位于两个安全出口之间的疏散门”和“位于袋形走道的疏散门”。如采用双向、单向疏散走道的概念,可表述为:“直通双向疏散走道的疏散门”和“直通单向疏散走道的疏散门”,相比之下,后者表述更为清晰,容易为大众接受。
现行规范中,“位于两个安全出口之间的疏散走道”和“双向疏散走道”的概念一致,“单向疏散走道”和“袋形走道”的概念一致。实际上,现行规范与此相关的概念,均可以通过双向疏散走道和单向疏散走道来表述。

2、《建规》5.5.17修改表(修改内容用蓝色的字体表示):

三、双向、单向疏散走道的意义
现行规范中,“位于两个安全出口之间的疏散走道”和“双向疏散走道”的概念一致,“单向疏散走道”和“袋形走道”的概念一致。用双向、单向疏散走道的概念,能解决实际应用中的诸多困惑和争议!
1、双向、单向疏散走道的概念,更容易被大众理解:
随着改革深入,更多项目不需要审核验收,尤其是大量二次装修和改扩建项目,可能并没有专业的设计师执业,规范需要通俗化,让大家更容易理解和接受!
2、袋形走道的概念存在误解和争议:
《建规》等规范引用了袋形走道的概念,但并没有明确定义,具体实施中,一直存在误解和争议。
注:现行规范中,仅《消防词汇 第2部分:火灾预防》(GB/T5907.2-2015)有关于袋形走道的简单定义。
3、应用双向、单向疏散走道,更有利于解决实际问题:
现行规范及图示,列示的均为标准疏散方案,实际应用存在困惑。
3.1 实际的疏散路径形式多样,难以契合现行规范条文:
如前述章节所述,常见的疏散路径,有一字形、回形(环形)、T形(丁字形)等多种形式,实际应用中,往往是多种形式的综合,难以契合现行规范条文。
3.2 示例:
图示35的T形疏散走道,同时包括两个安全出口之间的疏散走道和袋形走道,很难和规范条文对应,即使《建规》图示做了特例示意,仍然留下诸多疑惑。
如果采用双向疏散走道和单向疏散的概念,结合单向疏散走道折返距离,问题迎刃而解,在本示例图中,2a+b、2a+c即为向左侧安全出口和右侧安全出口的疏散距离。具体解决方案,可参本文前述章节处置!

(图示35)
3.3 实际应用中,较多采用回形和T形疏散路径,3.2所述及示例,仅为冰山一角,如采用双向、单向疏散概念,可以解决大部分问题。
4、应用双向、单向疏散走道,更有利于规范应用:
示例:在《建规》中,袋形走道有其特殊意义,比如:歌舞娱乐放映游艺场所不宜布置在袋形走道等,如直接表述为“歌舞娱乐放映游艺场所不宜布置在单向疏散走道”,则通俗易懂,直观明了。
依此,将《建规》所述的“两个安全出口之间的疏散走道”和“袋形走道”,用“双向疏散走道”和“单向疏散走道”替代,对于规范的应用和普及,对于解决实际问题,具重要意义!
知识点:消防安全疏散路径
0人已收藏
0人已打赏
免费2人已点赞
分享
建筑规范
返回版块34.61 万条内容 · 519 人订阅
阅读下一篇
外墙保温及装饰,火灾风险-扑救·措施·展望!随着高龄建筑的增加,外墙保温装饰的结构性失效(变形、开裂、脱落等)及火灾风险等问题,日渐显露,并已引发广泛关注! 外墙脱落带来安全风险,外墙火灾蔓延迅速,目前尚无合适的扑救手段和消防措施! 维护难、更换难、扑救难,是外墙保温及装饰系统的典型特征。 不合理的保温装饰结构、生产与检验标准不一致、不合理的阻燃措施等,是引发问题的根源。 确立合理的结构形式及阻燃措施,是迫切需要解决的问题,否则,必将成为沉重的社会负担。
回帖成功
经验值 +10
全部回复(2 )
只看楼主 我来说两句抢地板太好了
回复 举报
拜读,答疑解惑。
回复 举报